Property
Account |
| Property ID: | 42278 | Abbreviated Legal Description: | SEVEN SISTERS BEACH 12 & TL TAX S (S1/2) 0.91 CH |
| Parcel # / Geo ID: | 994000011 | Agent Code: | |
| Type: | Real | | |
| Tax Area: | 0201 - 1-49H2L1 | Land Use Code | 91 |
| Open Space: | N | DFL | N |
| Historic Property: | N | Remodel Property: | N |
| Multi-Family Redevelopment: | N | | |
| Township: | 28N | Section: | 25 |
| Range: | 1E |
Location |
| Address: | | Mapsco: | 119/012 |
| Neighborhood: | HOOD HEAD: S36 T28N R1E, SEVEN SISTERS BCH, ODIN NELSON SP | Map ID: | |
| Neighborhood CD: | 3372 |
Owner |
| Name: | GRAHAM PERRY & | Owner ID: | 112787 |
| Mailing Address: | MICHELLE CLINE 2522 174TH AVE NE REDMOND, WA 98052-6222 | % Ownership: | 100.0000000000% |
| | | Exemptions: | |
Pay Tax Due
There is currently No Amount Due on this property.
Taxes and Assessment Details
Property Tax Information as of
03/12/2026
Click on "Statement Details" to expand or collapse a tax statement.
* Please enter a valid date ** Please enter a valid date *
Statement Details |
| | TOTAL: | $0.00 | $0.00 | $0.00 | $0.00 | $0.00 | $0.00 |
|
| | $0.00 | $0.00 | $0.00 | $0.00 | $0.00 | $0.00 |
Values
| (+) Improvement Homesite Value: | + | $0 | |
| (+) Improvement Non-Homesite Value: | + | $0 | |
| (+) Land Homesite Value: | + | $0 | |
| (+) Land Non-Homesite Value: | + | $51,500 | |
| (+) Curr Use (HS): | + | $0 | $0 |
| (+) Curr Use (NHS): | + | $0 | $0 |
| | | -------------------------- | |
| (=) Market Value: | = | $51,500 | |
| (–) Productivity Loss: | – | $0 | |
| | | -------------------------- | |
| (=) Subtotal: | = | $51,500 | |
| (+) Senior Appraised Value: | + | $0 | |
| (+) Non-Senior Appraised Value: | + | $51,500 | |
| | | -------------------------- | |
| (=) Total Appraised Value: | = | $51,500 | |
| (–) Senior Exemption Loss: | – | $0 | |
| (–) Exemption Loss: | – | $0 | |
| | | -------------------------- | |
| (=) Taxable Value: | = | $51,500 | |
Taxing Jurisdiction
| Owner: | GRAHAM PERRY & | | |
| % Ownership: | 100.0000000000% | | |
| Total Value: | $51,500 | | |
| Tax Area: | 0201 - 1-49H2L1 |
| CE | COUNTY CURRENT EXPENSE | 0.9034619479 | $51,500 | $51,500 | $46.53 | | |
| CNTYDD | DEVELOPMENTAL DISABILITIES | 0.0052121823 | $51,500 | $51,500 | $0.27 | | |
| CNTYVET | VETERANS RELIEF | 0.0052777810 | $51,500 | $51,500 | $0.27 | | |
| MENTAL | MENTAL HEALTH | 0.0052121823 | $51,500 | $51,500 | $0.27 | | |
| ROADS | COUNTY ROADS | 0.7415066410 | $51,500 | $51,500 | $38.19 | | |
| ROADSCU | COUNTY ROADS TO CUR EXP | 0.0000000000 | $51,500 | $51,500 | $0.00 | | |
| HOSP2CASH | HOSP DIST #2 GENERAL | 0.0536075306 | $51,500 | $51,500 | $2.76 | | |
| SCH49CP | SCHOOL DIST #49 CAP PROJ | 0.6279093905 | $51,500 | $51,500 | $32.34 | | |
| SCH49MO | SCHOOL DIST #49 EP & O | 0.6376483602 | $51,500 | $51,500 | $32.84 | | |
| CONSERVE | CONSERVATION FUTURES | 0.0275621078 | $51,500 | $51,500 | $1.42 | | |
| LIB1 | LIBRARY DIST #1 GENERAL | 0.2868827388 | $51,500 | $51,500 | $14.77 | | |
| PORTPT | PORT OF PT GENERAL | 0.1134941229 | $51,500 | $51,500 | $5.84 | | |
| PORTPTIDD | PORT OF PT IDD 2019 | 0.2577346692 | $51,500 | $51,500 | $13.27 | | |
| PUD1 | PUD #1 GENERAL | 0.0597888892 | $51,500 | $51,500 | $3.08 | | |
| STATE | STATE SCHOOL PART 1 | 1.4940692947 | $51,500 | $51,500 | $76.94 | | |
| STATE2 | STATE SCHOOL PART 2 | 0.8050170049 | $51,500 | $51,500 | $41.46 | | |
| | Total Tax Rate: | 6.0243848433 | | | | | |
| | | | | Taxes w/Current Exemptions: | $310.25 | | |
| | | | | Taxes w/o Exemptions: | $310.25 | | |
Improvement / Building
Sketch
| No sketches available for this property. |
Property Image
Land
| 1 | 9301F | Tidelands | 0.0000 | 0.00 | 0.00 | 0.00 | 0.00 | $1,500 | $0 |
| 2 | 3372-7115L | Low to Med Wtrfrt Lots West Facing on Hood Head | 0.0000 | 0.00 | 0.00 | 0.00 | 1.00 | $50,000 | $0 |
Roll Value History
| 2026 | N/A | N/A | N/A | N/A | N/A |
| 2025 | $0 | $51,500 | $0 | $51,500 | $51,500 |
| 2024 | $0 | $51,500 | $0 | $51,500 | $51,500 |
| 2023 | $0 | $51,500 | $0 | $51,500 | $51,500 |
| 2022 | $0 | $51,500 | $0 | $51,500 | $51,500 |
Deed and Sales History
| 1 | 06/11/2025 | SWD | Statutory Warranty Deed | BRIAN T KEHRER | GRAHAM PERRY & | | | $65,000.00 | 144446 | |
| 2 | 06/28/2018 | PRD | Personal Representatives Deed | DONOVAN F KEHRER | BRIAN T KEHRER | | | | 130485 | |
| 3 | 06/28/2018 | PRD | Personal Representatives Deed | TILLIE KEHRER | DONOVAN F KEHRER | | | | 130485 | |
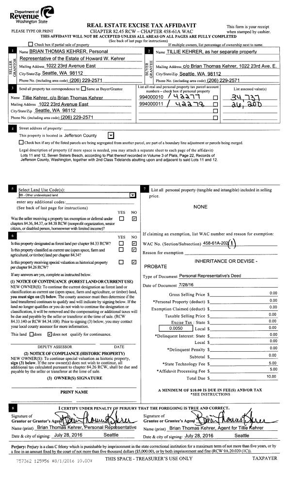
| 4 | 07/28/2016 | PRD | Personal Representatives Deed | HOWARD W KEHRER | TILLIE KEHRER | | | | 125956 | |
Payout Agreement
| No payout information available.. |