Property
Account |
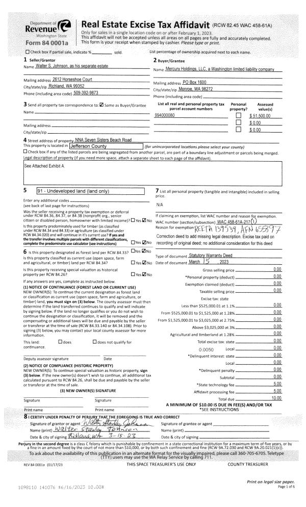
| Property ID: | 42347 | Abbreviated Legal Description: | SEVEN SISTERS BEACH TRACT 6 TL TAX E ABT(.91CHS) |
| Parcel # / Geo ID: | 994000080 | Agent Code: | |
| Type: | Real | | |
| Tax Area: | 0201 - 1-49H2L1 | Land Use Code | 91 |
| Open Space: | N | DFL | N |
| Historic Property: | N | Remodel Property: | N |
| Multi-Family Redevelopment: | N | | |
| Township: | 28N | Section: | 25 |
| Range: | 1E |
Location |
| Address: | | Mapsco: | 119/006 |
| Neighborhood: | HOOD HEAD: S36 T28N R1E, SEVEN SISTERS BCH, ODIN NELSON SP | Map ID: | |
| Neighborhood CD: | 3372 |
Owner |
| Name: | MERCURY HOLDINGS LLC | Owner ID: | 22392 |
| Mailing Address: | PO BOX 1600 MONROE, WA 98272 | % Ownership: | 100.0000000000% |
| | | Exemptions: | |
Pay Tax Due
Select the appropriate checkbox next to the year to be paid. Multiple years may be selected.
*Convenience Fee not included
Taxes and Assessment Details
Property Tax Information as of
03/10/2026
Click on "Statement Details" to expand or collapse a tax statement.
* Please enter a valid date ** Please enter a valid date *
Statement Details |
| 2026 | 31508 | STATE - STATE LEVY (SCHOOL) | $59.20 | $59.20 | $0.00 | $0.00 | $0.00 | $118.40 |
| 2026 | 31508 | COUNTY - COUNTY LEVIES (CE, DD, VET, MH) | $23.69 | $23.65 | $0.00 | $0.00 | $0.00 | $47.34 |
| 2026 | 31508 | CONSERVE - CONSERVATION FUTURES | $0.71 | $0.71 | $0.00 | $0.00 | $0.00 | $1.42 |
| 2026 | 31508 | COROADS - COUNTY ROADS (ROADS, DIV TO CE) | $19.10 | $19.09 | $0.00 | $0.00 | $0.00 | $38.19 |
| 2026 | 31508 | PORTPT - PORT DISTRICT | $9.56 | $9.55 | $0.00 | $0.00 | $0.00 | $19.11 |
| 2026 | 31508 | PUD1 - PUD #1 | $1.54 | $1.54 | $0.00 | $0.00 | $0.00 | $3.08 |
| 2026 | 31508 | LIB1 - LIBRARY DIST #1 | $7.39 | $7.38 | $0.00 | $0.00 | $0.00 | $14.77 |
| 2026 | 31508 | HD2 - HOSP DIST #2 | $1.38 | $1.38 | $0.00 | $0.00 | $0.00 | $2.76 |
| 2026 | 31508 | SD49 - SCHOOL DIST #49 | $32.59 | $32.59 | $0.00 | $0.00 | $0.00 | $65.18 |
| 2026 | 31508 | FPLCA - DNR Landowner Contingency Assmt | $3.00 | $3.00 | $0.00 | $0.00 | $0.00 | $6.00 |
| 2026 | 31508 | JCCD - JC Conservation District | $2.53 | $2.53 | $0.00 | $0.00 | $0.00 | $5.06 |
| 2026 | 31508 | NWA - Noxious Weed Assessment | $2.98 | $2.97 | $0.00 | $0.00 | $0.00 | $5.95 |
| 2026 | 31508 | WAT - Clean Water District | $13.00 | $13.00 | $0.00 | $0.00 | $0.00 | $26.00 |
| 2026 | 31508 | TOTAL: | $176.67 | $176.59 | $0.00 | $0.00 | $0.00 | $353.26 |
|
| 2026 | 31508 | $176.67 | $176.59 | $0.00 | $0.00 | $0.00 | $353.26 |
Statement Details |
| 2025 | 31580 | STATE - STATE LEVY (SCHOOL) | $61.76 | $61.74 | $0.00 | $0.00 | $123.50 | $0.00 |
| 2025 | 31580 | COUNTY - COUNTY LEVIES (CE, DD, VET, MH) | $24.29 | $24.27 | $0.00 | $0.00 | $48.56 | $0.00 |
| 2025 | 31580 | CONSERVE - CONSERVATION FUTURES | $0.73 | $0.73 | $0.00 | $0.00 | $1.46 | $0.00 |
| 2025 | 31580 | COROADS - COUNTY ROADS (ROADS, DIV TO CE) | $19.45 | $19.45 | $0.00 | $0.00 | $38.90 | $0.00 |
| 2025 | 31580 | PORTPT - PORT DISTRICT | $9.91 | $9.91 | $0.00 | $0.00 | $19.82 | $0.00 |
| 2025 | 31580 | PUD1 - PUD #1 | $1.59 | $1.59 | $0.00 | $0.00 | $3.18 | $0.00 |
| 2025 | 31580 | LIB1 - LIBRARY DIST #1 | $7.53 | $7.52 | $0.00 | $0.00 | $15.05 | $0.00 |
| 2025 | 31580 | HD2 - HOSP DIST #2 | $1.42 | $1.41 | $0.00 | $0.00 | $2.83 | $0.00 |
| 2025 | 31580 | SD49 - SCHOOL DIST #49 | $33.10 | $33.09 | $0.00 | $0.00 | $66.19 | $0.00 |
| 2025 | 31580 | FPLCA - DNR Landowner Contingency Assmt | $3.00 | $3.00 | $0.00 | $0.00 | $6.00 | $0.00 |
| 2025 | 31580 | JCCD - JC Conservation District | $2.53 | $2.53 | $0.00 | $0.00 | $5.06 | $0.00 |
| 2025 | 31580 | NWA - Noxious Weed Assessment | $2.15 | $2.15 | $0.00 | $0.00 | $4.30 | $0.00 |
| 2025 | 31580 | WAT - Clean Water District | $13.00 | $13.00 | $0.00 | $0.00 | $26.00 | $0.00 |
| 2025 | 31580 | TOTAL: | $180.46 | $180.39 | $0.00 | $0.00 | $360.85 | $0.00 |
|
| 2025 | 31580 | $180.46 | $180.39 | $0.00 | $0.00 | $360.85 | $0.00 |
Statement Details |
| 2024 | 31639 | STATE - STATE LEVY (SCHOOL) | $59.58 | $59.57 | $0.00 | $0.00 | $119.15 | $0.00 |
| 2024 | 31639 | COUNTY - COUNTY LEVIES (CE, DD, VET, MH) | $25.51 | $25.48 | $0.00 | $0.00 | $50.99 | $0.00 |
| 2024 | 31639 | CONSERVE - CONSERVATION FUTURES | $0.77 | $0.76 | $0.00 | $0.00 | $1.53 | $0.00 |
| 2024 | 31639 | COROADS - COUNTY ROADS (ROADS, DIV TO CE) | $20.51 | $20.51 | $0.00 | $0.00 | $41.02 | $0.00 |
| 2024 | 31639 | PORTPT - PORT DISTRICT | $10.53 | $10.53 | $0.00 | $0.00 | $21.06 | $0.00 |
| 2024 | 31639 | PUD1 - PUD #1 | $1.68 | $1.67 | $0.00 | $0.00 | $3.35 | $0.00 |
| 2024 | 31639 | LIB1 - LIBRARY DIST #1 | $7.94 | $7.93 | $0.00 | $0.00 | $15.87 | $0.00 |
| 2024 | 31639 | HD2 - HOSP DIST #2 | $1.49 | $1.48 | $0.00 | $0.00 | $2.97 | $0.00 |
| 2024 | 31639 | SD49 - SCHOOL DIST #49 | $26.61 | $26.59 | $0.00 | $0.00 | $53.20 | $0.00 |
| 2024 | 31639 | FPLCA - DNR Landowner Contingency Assmt | $3.00 | $3.00 | $0.00 | $0.00 | $6.00 | $0.00 |
| 2024 | 31639 | JCCD - JC Conservation District | $2.53 | $2.53 | $0.00 | $0.00 | $5.06 | $0.00 |
| 2024 | 31639 | NWA - Noxious Weed Assessment | $2.15 | $2.15 | $0.00 | $0.00 | $4.30 | $0.00 |
| 2024 | 31639 | WAT - Clean Water District | $12.50 | $12.50 | $0.00 | $0.00 | $25.00 | $0.00 |
| 2024 | 31639 | TOTAL: | $174.80 | $174.70 | $0.00 | $0.00 | $349.50 | $0.00 |
|
| 2024 | 31639 | $174.80 | $174.70 | $0.00 | $0.00 | $349.50 | $0.00 |
Statement Details |
| 2023 | 31681 | STATE - STATE LEVY (SCHOOL) | $60.63 | $60.61 | $0.00 | $0.00 | $121.24 | $0.00 |
| 2023 | 31681 | COUNTY - COUNTY LEVIES (CE, DD, VET, MH) | $26.45 | $26.45 | $0.00 | $0.00 | $52.90 | $0.00 |
| 2023 | 31681 | CONSERVE - CONSERVATION FUTURES | $0.80 | $0.79 | $0.00 | $0.00 | $1.59 | $0.00 |
| 2023 | 31681 | COROADS - COUNTY ROADS (ROADS, DIV TO CE) | $21.40 | $21.40 | $0.00 | $0.00 | $42.80 | $0.00 |
| 2023 | 31681 | PORTPT - PORT DISTRICT | $11.15 | $11.13 | $0.00 | $0.00 | $22.28 | $0.00 |
| 2023 | 31681 | PUD1 - PUD #1 | $1.76 | $1.75 | $0.00 | $0.00 | $3.51 | $0.00 |
| 2023 | 31681 | LIB1 - LIBRARY DIST #1 | $8.28 | $8.28 | $0.00 | $0.00 | $16.56 | $0.00 |
| 2023 | 31681 | HD2 - HOSP DIST #2 | $1.55 | $1.53 | $0.00 | $0.00 | $3.08 | $0.00 |
| 2023 | 31681 | SD49 - SCHOOL DIST #49 | $28.34 | $28.33 | $0.00 | $0.00 | $56.67 | $0.00 |
| 2023 | 31681 | FP - DNR Forest Fire Protection Assmt | $8.50 | $8.50 | $0.00 | $0.00 | $17.00 | $0.00 |
| 2023 | 31681 | FPLCA - DNR Landowner Contingency Assmt | $3.00 | $3.00 | $0.00 | $0.00 | $6.00 | $0.00 |
| 2023 | 31681 | JCCD - JC Conservation District | $2.53 | $2.53 | $0.00 | $0.00 | $5.06 | $0.00 |
| 2023 | 31681 | NWA - Noxious Weed Assessment | $2.15 | $2.15 | $0.00 | $0.00 | $4.30 | $0.00 |
| 2023 | 31681 | WAT - Clean Water District | $12.00 | $12.00 | $0.00 | $0.00 | $24.00 | $0.00 |
| 2023 | 31681 | FP ADMIN - FP ADMIN | $0.50 | $0.00 | $0.00 | $0.00 | $0.50 | $0.00 |
| 2023 | 31681 | TOTAL: | $189.04 | $188.45 | $0.00 | $0.00 | $377.49 | $0.00 |
|
| 2023 | 31681 | $189.04 | $188.45 | $0.00 | $0.00 | $377.49 | $0.00 |
Values
| (+) Improvement Homesite Value: | + | $0 | |
| (+) Improvement Non-Homesite Value: | + | $0 | |
| (+) Land Homesite Value: | + | $0 | |
| (+) Land Non-Homesite Value: | + | $51,500 | |
| (+) Curr Use (HS): | + | $0 | $0 |
| (+) Curr Use (NHS): | + | $0 | $0 |
| | | -------------------------- | |
| (=) Market Value: | = | $51,500 | |
| (–) Productivity Loss: | – | $0 | |
| | | -------------------------- | |
| (=) Subtotal: | = | $51,500 | |
| (+) Senior Appraised Value: | + | $0 | |
| (+) Non-Senior Appraised Value: | + | $51,500 | |
| | | -------------------------- | |
| (=) Total Appraised Value: | = | $51,500 | |
| (–) Senior Exemption Loss: | – | $0 | |
| (–) Exemption Loss: | – | $0 | |
| | | -------------------------- | |
| (=) Taxable Value: | = | $51,500 | |
Taxing Jurisdiction
| Owner: | MERCURY HOLDINGS LLC | | |
| % Ownership: | 100.0000000000% | | |
| Total Value: | $51,500 | | |
| Tax Area: | 0201 - 1-49H2L1 |
| CE | COUNTY CURRENT EXPENSE | 0.9034619479 | $51,500 | $51,500 | $46.53 | | |
| CNTYDD | DEVELOPMENTAL DISABILITIES | 0.0052121823 | $51,500 | $51,500 | $0.27 | | |
| CNTYVET | VETERANS RELIEF | 0.0052777810 | $51,500 | $51,500 | $0.27 | | |
| MENTAL | MENTAL HEALTH | 0.0052121823 | $51,500 | $51,500 | $0.27 | | |
| ROADS | COUNTY ROADS | 0.7415066410 | $51,500 | $51,500 | $38.19 | | |
| ROADSCU | COUNTY ROADS TO CUR EXP | 0.0000000000 | $51,500 | $51,500 | $0.00 | | |
| HOSP2CASH | HOSP DIST #2 GENERAL | 0.0536075306 | $51,500 | $51,500 | $2.76 | | |
| SCH49CP | SCHOOL DIST #49 CAP PROJ | 0.6279093905 | $51,500 | $51,500 | $32.34 | | |
| SCH49MO | SCHOOL DIST #49 EP & O | 0.6376483602 | $51,500 | $51,500 | $32.84 | | |
| CONSERVE | CONSERVATION FUTURES | 0.0275621078 | $51,500 | $51,500 | $1.42 | | |
| LIB1 | LIBRARY DIST #1 GENERAL | 0.2868827388 | $51,500 | $51,500 | $14.77 | | |
| PORTPT | PORT OF PT GENERAL | 0.1134941229 | $51,500 | $51,500 | $5.84 | | |
| PORTPTIDD | PORT OF PT IDD 2019 | 0.2577346692 | $51,500 | $51,500 | $13.27 | | |
| PUD1 | PUD #1 GENERAL | 0.0597888892 | $51,500 | $51,500 | $3.08 | | |
| STATE | STATE SCHOOL PART 1 | 1.4940692947 | $51,500 | $51,500 | $76.94 | | |
| STATE2 | STATE SCHOOL PART 2 | 0.8050170049 | $51,500 | $51,500 | $41.46 | | |
| | Total Tax Rate: | 6.0243848433 | | | | | |
| | | | | Taxes w/Current Exemptions: | $310.25 | | |
| | | | | Taxes w/o Exemptions: | $310.25 | | |
Improvement / Building
Sketch
| No sketches available for this property. |
Property Image
Land
| 1 | 9301F | | 0.0000 | 0.00 | 0.00 | 0.00 | 0.00 | $1,500 | $0 |
| 2 | 3372-7115L | | 0.0000 | 0.00 | 0.00 | 0.00 | 1.00 | $50,000 | $0 |
Roll Value History
| 2026 | N/A | N/A | N/A | N/A | N/A |
| 2025 | $0 | $51,500 | $0 | $51,500 | $51,500 |
| 2024 | $0 | $51,500 | $0 | $51,500 | $51,500 |
| 2023 | $0 | $51,500 | $0 | $51,500 | $51,500 |
| 2022 | $0 | $51,500 | $0 | $51,500 | $51,500 |
Deed and Sales History
| 1 | 03/15/2023 | SWD | Statutory Warranty Deed | | MERCURY HOLDINGS LLC | | | | 141076 | |
| 2 | 07/29/2022 | SWD | Statutory Warranty Deed | CAROL L JOHNSON | MERCURY HOLDINGS LLC | | | $150,800.00 | 139539 | |
|   | |
Payout Agreement
| No payout information available.. |