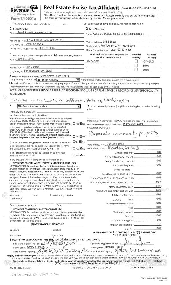
Property
Account |
| Property ID: | 42360 | Abbreviated Legal Description: | SEVEN SISTER'S BEACH LOT 74 |
| Parcel # / Geo ID: | 994000093 | Agent Code: | |
| Type: | Real | | |
| Tax Area: | 0201 - 1-49H2L1 | Land Use Code | 19 |
| Open Space: | N | DFL | N |
| Historic Property: | N | Remodel Property: | N |
| Multi-Family Redevelopment: | N | | |
| Township: | 28N | Section: | 25 |
| Range: | 1E |
Location |
| Address: | | Mapsco: | 120/009 |
| Neighborhood: | HOOD HEAD: S36 T28N R1E, SEVEN SISTERS BCH, ODIN NELSON SP | Map ID: | |
| Neighborhood CD: | 3372 |
Owner |
| Name: | RICHARD L DAVIES | Owner ID: | 42706 |
| Mailing Address: | 354 E ST PORT TOWNSEND, WA 98368-6564 | % Ownership: | 100.0000000000% |
| | | Exemptions: | |
Pay Tax Due
Select the appropriate checkbox next to the year to be paid. Multiple years may be selected.
*Convenience Fee not included
Taxes and Assessment Details
Property Tax Information as of
03/10/2026
Click on "Statement Details" to expand or collapse a tax statement.
* Please enter a valid date ** Please enter a valid date *
Statement Details |
| 2026 | 31521 | STATE - STATE LEVY (SCHOOL) | $93.94 | $93.93 | $0.00 | $0.00 | $0.00 | $187.87 |
| 2026 | 31521 | COUNTY - COUNTY LEVIES (CE, DD, VET, MH) | $37.58 | $37.54 | $0.00 | $0.00 | $0.00 | $75.12 |
| 2026 | 31521 | CONSERVE - CONSERVATION FUTURES | $1.13 | $1.12 | $0.00 | $0.00 | $0.00 | $2.25 |
| 2026 | 31521 | COROADS - COUNTY ROADS (ROADS, DIV TO CE) | $30.30 | $30.29 | $0.00 | $0.00 | $0.00 | $60.59 |
| 2026 | 31521 | PORTPT - PORT DISTRICT | $15.17 | $15.16 | $0.00 | $0.00 | $0.00 | $30.33 |
| 2026 | 31521 | PUD1 - PUD #1 | $2.45 | $2.44 | $0.00 | $0.00 | $0.00 | $4.89 |
| 2026 | 31521 | LIB1 - LIBRARY DIST #1 | $11.72 | $11.72 | $0.00 | $0.00 | $0.00 | $23.44 |
| 2026 | 31521 | HD2 - HOSP DIST #2 | $2.19 | $2.19 | $0.00 | $0.00 | $0.00 | $4.38 |
| 2026 | 31521 | SD49 - SCHOOL DIST #49 | $51.72 | $51.70 | $0.00 | $0.00 | $0.00 | $103.42 |
| 2026 | 31521 | FP - DNR Forest Fire Protection Assmt | $8.50 | $8.50 | $0.00 | $0.00 | $0.00 | $17.00 |
| 2026 | 31521 | FPLCA - DNR Landowner Contingency Assmt | $3.00 | $3.00 | $0.00 | $0.00 | $0.00 | $6.00 |
| 2026 | 31521 | JCCD - JC Conservation District | $2.55 | $2.55 | $0.00 | $0.00 | $0.00 | $5.10 |
| 2026 | 31521 | NWA - Noxious Weed Assessment | $2.98 | $2.97 | $0.00 | $0.00 | $0.00 | $5.95 |
| 2026 | 31521 | OSS - On Site Septic | $23.10 | $23.10 | $0.00 | $0.00 | $0.00 | $46.20 |
| 2026 | 31521 | WAT - Clean Water District | $13.00 | $13.00 | $0.00 | $0.00 | $0.00 | $26.00 |
| 2026 | 31521 | FP ADMIN - FP ADMIN | $0.50 | $0.00 | $0.00 | $0.00 | $0.00 | $0.50 |
| 2026 | 31521 | TOTAL: | $299.83 | $299.21 | $0.00 | $0.00 | $0.00 | $599.04 |
|
| 2026 | 31521 | $299.83 | $299.21 | $0.00 | $0.00 | $0.00 | $599.04 |
Statement Details |
| 2025 | 31593 | STATE - STATE LEVY (SCHOOL) | $97.99 | $97.97 | $0.00 | $0.00 | $195.96 | $0.00 |
| 2025 | 31593 | COUNTY - COUNTY LEVIES (CE, DD, VET, MH) | $38.53 | $38.53 | $0.00 | $0.00 | $77.06 | $0.00 |
| 2025 | 31593 | CONSERVE - CONSERVATION FUTURES | $1.16 | $1.15 | $0.00 | $0.00 | $2.31 | $0.00 |
| 2025 | 31593 | COROADS - COUNTY ROADS (ROADS, DIV TO CE) | $30.88 | $30.86 | $0.00 | $0.00 | $61.74 | $0.00 |
| 2025 | 31593 | PORTPT - PORT DISTRICT | $15.73 | $15.71 | $0.00 | $0.00 | $31.44 | $0.00 |
| 2025 | 31593 | PUD1 - PUD #1 | $2.52 | $2.52 | $0.00 | $0.00 | $5.04 | $0.00 |
| 2025 | 31593 | LIB1 - LIBRARY DIST #1 | $11.94 | $11.94 | $0.00 | $0.00 | $23.88 | $0.00 |
| 2025 | 31593 | HD2 - HOSP DIST #2 | $2.25 | $2.25 | $0.00 | $0.00 | $4.50 | $0.00 |
| 2025 | 31593 | SD49 - SCHOOL DIST #49 | $52.51 | $52.51 | $0.00 | $0.00 | $105.02 | $0.00 |
| 2025 | 31593 | FP - DNR Forest Fire Protection Assmt | $8.50 | $8.50 | $0.00 | $0.00 | $17.00 | $0.00 |
| 2025 | 31593 | FPLCA - DNR Landowner Contingency Assmt | $3.00 | $3.00 | $0.00 | $0.00 | $6.00 | $0.00 |
| 2025 | 31593 | JCCD - JC Conservation District | $2.55 | $2.55 | $0.00 | $0.00 | $5.10 | $0.00 |
| 2025 | 31593 | NWA - Noxious Weed Assessment | $2.15 | $2.15 | $0.00 | $0.00 | $4.30 | $0.00 |
| 2025 | 31593 | WAT - Clean Water District | $13.00 | $13.00 | $0.00 | $0.00 | $26.00 | $0.00 |
| 2025 | 31593 | FP ADMIN - FP ADMIN | $0.50 | $0.00 | $0.00 | $0.00 | $0.50 | $0.00 |
| 2025 | 31593 | TOTAL: | $283.21 | $282.64 | $0.00 | $0.00 | $565.85 | $0.00 |
|
| 2025 | 31593 | $283.21 | $282.64 | $0.00 | $0.00 | $565.85 | $0.00 |
Statement Details |
| 2024 | 31652 | STATE - STATE LEVY (SCHOOL) | $94.54 | $94.52 | $0.00 | $0.00 | $189.06 | $0.00 |
| 2024 | 31652 | COUNTY - COUNTY LEVIES (CE, DD, VET, MH) | $40.45 | $40.45 | $0.00 | $0.00 | $80.90 | $0.00 |
| 2024 | 31652 | CONSERVE - CONSERVATION FUTURES | $1.22 | $1.21 | $0.00 | $0.00 | $2.43 | $0.00 |
| 2024 | 31652 | COROADS - COUNTY ROADS (ROADS, DIV TO CE) | $32.55 | $32.55 | $0.00 | $0.00 | $65.10 | $0.00 |
| 2024 | 31652 | PORTPT - PORT DISTRICT | $16.72 | $16.70 | $0.00 | $0.00 | $33.42 | $0.00 |
| 2024 | 31652 | PUD1 - PUD #1 | $2.66 | $2.65 | $0.00 | $0.00 | $5.31 | $0.00 |
| 2024 | 31652 | LIB1 - LIBRARY DIST #1 | $12.60 | $12.59 | $0.00 | $0.00 | $25.19 | $0.00 |
| 2024 | 31652 | HD2 - HOSP DIST #2 | $2.36 | $2.36 | $0.00 | $0.00 | $4.72 | $0.00 |
| 2024 | 31652 | SD49 - SCHOOL DIST #49 | $42.22 | $42.21 | $0.00 | $0.00 | $84.43 | $0.00 |
| 2024 | 31652 | FP - DNR Forest Fire Protection Assmt | $8.50 | $8.50 | $0.00 | $0.00 | $17.00 | $0.00 |
| 2024 | 31652 | FPLCA - DNR Landowner Contingency Assmt | $3.00 | $3.00 | $0.00 | $0.00 | $6.00 | $0.00 |
| 2024 | 31652 | JCCD - JC Conservation District | $2.55 | $2.55 | $0.00 | $0.00 | $5.10 | $0.00 |
| 2024 | 31652 | NWA - Noxious Weed Assessment | $2.15 | $2.15 | $0.00 | $0.00 | $4.30 | $0.00 |
| 2024 | 31652 | WAT - Clean Water District | $12.50 | $12.50 | $0.00 | $0.00 | $25.00 | $0.00 |
| 2024 | 31652 | FP ADMIN - FP ADMIN | $0.50 | $0.00 | $0.00 | $0.00 | $0.50 | $0.00 |
| 2024 | 31652 | TOTAL: | $274.52 | $273.94 | $0.00 | $0.00 | $548.46 | $0.00 |
|
| 2024 | 31652 | $274.52 | $273.94 | $0.00 | $0.00 | $548.46 | $0.00 |
Statement Details |
| 2023 | 31694 | STATE - STATE LEVY (SCHOOL) | $103.65 | $103.65 | $0.00 | $0.00 | $207.30 | $0.00 |
| 2023 | 31694 | COUNTY - COUNTY LEVIES (CE, DD, VET, MH) | $45.24 | $45.21 | $0.00 | $0.00 | $90.45 | $0.00 |
| 2023 | 31694 | CONSERVE - CONSERVATION FUTURES | $1.36 | $1.35 | $0.00 | $0.00 | $2.71 | $0.00 |
| 2023 | 31694 | COROADS - COUNTY ROADS (ROADS, DIV TO CE) | $36.60 | $36.59 | $0.00 | $0.00 | $73.19 | $0.00 |
| 2023 | 31694 | PORTPT - PORT DISTRICT | $19.06 | $19.05 | $0.00 | $0.00 | $38.11 | $0.00 |
| 2023 | 31694 | PUD1 - PUD #1 | $3.00 | $3.00 | $0.00 | $0.00 | $6.00 | $0.00 |
| 2023 | 31694 | LIB1 - LIBRARY DIST #1 | $14.16 | $14.16 | $0.00 | $0.00 | $28.32 | $0.00 |
| 2023 | 31694 | HD2 - HOSP DIST #2 | $2.64 | $2.64 | $0.00 | $0.00 | $5.28 | $0.00 |
| 2023 | 31694 | SD49 - SCHOOL DIST #49 | $48.45 | $48.45 | $0.00 | $0.00 | $96.90 | $0.00 |
| 2023 | 31694 | FP - DNR Forest Fire Protection Assmt | $8.50 | $8.50 | $0.00 | $0.00 | $17.00 | $0.00 |
| 2023 | 31694 | FPLCA - DNR Landowner Contingency Assmt | $3.00 | $3.00 | $0.00 | $0.00 | $6.00 | $0.00 |
| 2023 | 31694 | JCCD - JC Conservation District | $2.55 | $2.55 | $0.00 | $0.00 | $5.10 | $0.00 |
| 2023 | 31694 | NWA - Noxious Weed Assessment | $2.15 | $2.15 | $0.00 | $0.00 | $4.30 | $0.00 |
| 2023 | 31694 | WAT - Clean Water District | $12.00 | $12.00 | $0.00 | $0.00 | $24.00 | $0.00 |
| 2023 | 31694 | FP ADMIN - FP ADMIN | $0.50 | $0.00 | $0.00 | $0.00 | $0.50 | $0.00 |
| 2023 | 31694 | TOTAL: | $302.86 | $302.30 | $0.00 | $0.00 | $605.16 | $0.00 |
|
| 2023 | 31694 | $302.86 | $302.30 | $0.00 | $0.00 | $605.16 | $0.00 |
Values
| (+) Improvement Homesite Value: | + | $0 | |
| (+) Improvement Non-Homesite Value: | + | $31,715 | |
| (+) Land Homesite Value: | + | $0 | |
| (+) Land Non-Homesite Value: | + | $50,000 | |
| (+) Curr Use (HS): | + | $0 | $0 |
| (+) Curr Use (NHS): | + | $0 | $0 |
| | | -------------------------- | |
| (=) Market Value: | = | $81,715 | |
| (–) Productivity Loss: | – | $0 | |
| | | -------------------------- | |
| (=) Subtotal: | = | $81,715 | |
| (+) Senior Appraised Value: | + | $0 | |
| (+) Non-Senior Appraised Value: | + | $81,715 | |
| | | -------------------------- | |
| (=) Total Appraised Value: | = | $81,715 | |
| (–) Senior Exemption Loss: | – | $0 | |
| (–) Exemption Loss: | – | $0 | |
| | | -------------------------- | |
| (=) Taxable Value: | = | $81,715 | |
Taxing Jurisdiction
| Owner: | RICHARD L DAVIES | | |
| % Ownership: | 100.0000000000% | | |
| Total Value: | $81,715 | | |
| Tax Area: | 0201 - 1-49H2L1 |
| CE | COUNTY CURRENT EXPENSE | 0.9034619479 | $81,715 | $81,715 | $73.83 | | |
| CNTYDD | DEVELOPMENTAL DISABILITIES | 0.0052121823 | $81,715 | $81,715 | $0.43 | | |
| CNTYVET | VETERANS RELIEF | 0.0052777810 | $81,715 | $81,715 | $0.43 | | |
| MENTAL | MENTAL HEALTH | 0.0052121823 | $81,715 | $81,715 | $0.43 | | |
| ROADS | COUNTY ROADS | 0.7415066410 | $81,715 | $81,715 | $60.59 | | |
| ROADSCU | COUNTY ROADS TO CUR EXP | 0.0000000000 | $81,715 | $81,715 | $0.00 | | |
| HOSP2CASH | HOSP DIST #2 GENERAL | 0.0536075306 | $81,715 | $81,715 | $4.38 | | |
| SCH49CP | SCHOOL DIST #49 CAP PROJ | 0.6279093905 | $81,715 | $81,715 | $51.31 | | |
| SCH49MO | SCHOOL DIST #49 EP & O | 0.6376483602 | $81,715 | $81,715 | $52.11 | | |
| CONSERVE | CONSERVATION FUTURES | 0.0275621078 | $81,715 | $81,715 | $2.25 | | |
| LIB1 | LIBRARY DIST #1 GENERAL | 0.2868827388 | $81,715 | $81,715 | $23.44 | | |
| PORTPT | PORT OF PT GENERAL | 0.1134941229 | $81,715 | $81,715 | $9.27 | | |
| PORTPTIDD | PORT OF PT IDD 2019 | 0.2577346692 | $81,715 | $81,715 | $21.06 | | |
| PUD1 | PUD #1 GENERAL | 0.0597888892 | $81,715 | $81,715 | $4.89 | | |
| STATE | STATE SCHOOL PART 1 | 1.4940692947 | $81,715 | $81,715 | $122.09 | | |
| STATE2 | STATE SCHOOL PART 2 | 0.8050170049 | $81,715 | $81,715 | $65.78 | | |
| | Total Tax Rate: | 6.0243848433 | | | | | |
| | | | | Taxes w/Current Exemptions: | $492.29 | | |
| | | | | Taxes w/o Exemptions: | $492.29 | | |
Improvement / Building
| Improvement #1: | Residential Bldg | State Code: | 19 | 480.0 sqft | Value: | $31,715 |
| Exterior Wall: | PL/T1 | Floor Construction: | FRAME | | Foundation: | PO&BL | Heating/Cooling: | WD/NO | | Inside Verify: | NO | Interior Finish: | UNFIN | | Roof Cover: | METAL |   |   |
|
| | Type | Description | Class CD | Sub Class CD | Year Built | Area |
| | MA | Main Area | 4- | C1S | 1998 | 480.0 |
| | CLOFT | Cabin Loft | 4 | * | 1998 | 256.0 |
| | CDECK | Cabin Deck | 4 | * | 1998 | 400.0 |
Sketch
Property Image
Land
| 1 | 3372-7125L | | 0.0000 | 0.00 | 0.00 | 0.00 | 1.00 | $50,000 | $0 |
Roll Value History
| 2026 | N/A | N/A | N/A | N/A | N/A |
| 2025 | $31,715 | $50,000 | $0 | $81,715 | $81,715 |
| 2024 | $31,715 | $50,000 | $0 | $81,715 | $81,715 |
| 2023 | $31,715 | $50,000 | $0 | $81,715 | $81,715 |
| 2022 | $38,058 | $50,000 | $0 | $88,058 | $88,058 |
Deed and Sales History
| 1 | 03/14/2023 | QCD | Quit Claim Deed | SHERRYL A JONES | RICHARD L DAVIES | | | | 140624 | |
| 2 | 02/02/2006 | SWD | Statutory Warranty Deed | LA MAINE TRUSTE, CHERYL L | DAVIES, RICHARD/SHERRYL JONES | 0 | 0 | $45,000.00 | 105989 | 0 |
| 3 | 04/27/2005 | WD | Warranty Deed | LA MAINE, JEFFREY A ESTAT | LA MAINE, JEFFREY/CREDIT TRUST | 0 | 0 | $0.00 | 104431 | 0 |
Payout Agreement
| No payout information available.. |