Property
Account |
| Property ID: | 42362 | Abbreviated Legal Description: | SEVEN SISTERS BEACH 42 |
| Parcel # / Geo ID: | 994000095 | Agent Code: | |
| Type: | Real | | |
| Tax Area: | 0201 - 1-49H2L1 | Land Use Code | 18 |
| Open Space: | N | DFL | N |
| Historic Property: | N | Remodel Property: | N |
| Multi-Family Redevelopment: | N | | |
| Township: | 28N | Section: | 25 |
| Range: | 1E |
Location |
| Address: | | Mapsco: | 119/042 |
| Neighborhood: | HOOD HEAD: S36 T28N R1E, SEVEN SISTERS BCH, ODIN NELSON SP | Map ID: | |
| Neighborhood CD: | 3372 |
Owner |
| Name: | SINCLAIR-KOHASHI FAMILY REVOCABLE TRUST | Owner ID: | 109979 |
| Mailing Address: | MICKEY A SINCLAIR TRUSTEE LOIS M KOHASHI-SINCLAIR TRUSTEE PO BOX 7 PORT GAMBLE, WA 98364 | % Ownership: | 100.0000000000% |
| | | Exemptions: | |
Pay Tax Due
Select the appropriate checkbox next to the year to be paid. Multiple years may be selected.
*Convenience Fee not included
Taxes and Assessment Details
Property Tax Information as of
03/12/2026
Click on "Statement Details" to expand or collapse a tax statement.
* Please enter a valid date ** Please enter a valid date *
Statement Details |
| 2026 | 31523 | STATE - STATE LEVY (SCHOOL) | $58.03 | $58.03 | $0.00 | $0.00 | $0.00 | $116.06 |
| 2026 | 31523 | COUNTY - COUNTY LEVIES (CE, DD, VET, MH) | $23.21 | $23.19 | $0.00 | $0.00 | $0.00 | $46.40 |
| 2026 | 31523 | CONSERVE - CONSERVATION FUTURES | $0.70 | $0.69 | $0.00 | $0.00 | $0.00 | $1.39 |
| 2026 | 31523 | COROADS - COUNTY ROADS (ROADS, DIV TO CE) | $18.72 | $18.71 | $0.00 | $0.00 | $0.00 | $37.43 |
| 2026 | 31523 | PORTPT - PORT DISTRICT | $9.38 | $9.36 | $0.00 | $0.00 | $0.00 | $18.74 |
| 2026 | 31523 | PUD1 - PUD #1 | $1.51 | $1.51 | $0.00 | $0.00 | $0.00 | $3.02 |
| 2026 | 31523 | LIB1 - LIBRARY DIST #1 | $7.24 | $7.24 | $0.00 | $0.00 | $0.00 | $14.48 |
| 2026 | 31523 | HD2 - HOSP DIST #2 | $1.36 | $1.35 | $0.00 | $0.00 | $0.00 | $2.71 |
| 2026 | 31523 | SD49 - SCHOOL DIST #49 | $31.95 | $31.94 | $0.00 | $0.00 | $0.00 | $63.89 |
| 2026 | 31523 | FPLCA - DNR Landowner Contingency Assmt | $3.00 | $3.00 | $0.00 | $0.00 | $0.00 | $6.00 |
| 2026 | 31523 | JCCD - JC Conservation District | $2.61 | $2.61 | $0.00 | $0.00 | $0.00 | $5.22 |
| 2026 | 31523 | NWA - Noxious Weed Assessment | $3.43 | $3.42 | $0.00 | $0.00 | $0.00 | $6.85 |
| 2026 | 31523 | WAT - Clean Water District | $13.00 | $13.00 | $0.00 | $0.00 | $0.00 | $26.00 |
| 2026 | 31523 | TOTAL: | $174.14 | $174.05 | $0.00 | $0.00 | $0.00 | $348.19 |
|
| 2026 | 31523 | $174.14 | $174.05 | $0.00 | $0.00 | $0.00 | $348.19 |
Statement Details |
| 2025 | 31595 | STATE - STATE LEVY (SCHOOL) | $60.53 | $60.53 | $0.00 | $0.00 | $121.06 | $0.00 |
| 2025 | 31595 | COUNTY - COUNTY LEVIES (CE, DD, VET, MH) | $23.82 | $23.78 | $0.00 | $0.00 | $47.60 | $0.00 |
| 2025 | 31595 | CONSERVE - CONSERVATION FUTURES | $0.72 | $0.71 | $0.00 | $0.00 | $1.43 | $0.00 |
| 2025 | 31595 | COROADS - COUNTY ROADS (ROADS, DIV TO CE) | $19.08 | $19.06 | $0.00 | $0.00 | $38.14 | $0.00 |
| 2025 | 31595 | PORTPT - PORT DISTRICT | $9.72 | $9.71 | $0.00 | $0.00 | $19.43 | $0.00 |
| 2025 | 31595 | PUD1 - PUD #1 | $1.56 | $1.55 | $0.00 | $0.00 | $3.11 | $0.00 |
| 2025 | 31595 | LIB1 - LIBRARY DIST #1 | $7.38 | $7.38 | $0.00 | $0.00 | $14.76 | $0.00 |
| 2025 | 31595 | HD2 - HOSP DIST #2 | $1.39 | $1.39 | $0.00 | $0.00 | $2.78 | $0.00 |
| 2025 | 31595 | SD49 - SCHOOL DIST #49 | $32.44 | $32.43 | $0.00 | $0.00 | $64.87 | $0.00 |
| 2025 | 31595 | FP - DNR Forest Fire Protection Assmt | $8.50 | $8.50 | $0.00 | $0.00 | $17.00 | $0.00 |
| 2025 | 31595 | FPLCA - DNR Landowner Contingency Assmt | $3.00 | $3.00 | $0.00 | $0.00 | $6.00 | $0.00 |
| 2025 | 31595 | JCCD - JC Conservation District | $2.65 | $2.65 | $0.00 | $0.00 | $5.30 | $0.00 |
| 2025 | 31595 | NWA - Noxious Weed Assessment | $2.45 | $2.45 | $0.00 | $0.00 | $4.90 | $0.00 |
| 2025 | 31595 | WAT - Clean Water District | $13.00 | $13.00 | $0.00 | $0.00 | $26.00 | $0.00 |
| 2025 | 31595 | FP ADMIN - FP ADMIN | $0.50 | $0.00 | $0.00 | $0.00 | $0.50 | $0.00 |
| 2025 | 31595 | TOTAL: | $186.74 | $186.14 | $0.00 | $0.00 | $372.88 | $0.00 |
|
| 2025 | 31595 | $186.74 | $186.14 | $0.00 | $0.00 | $372.88 | $0.00 |
Statement Details |
| 2024 | 31654 | STATE - STATE LEVY (SCHOOL) | $58.40 | $58.39 | $0.00 | $0.00 | $116.79 | $0.00 |
| 2024 | 31654 | COUNTY - COUNTY LEVIES (CE, DD, VET, MH) | $25.00 | $24.98 | $0.00 | $0.00 | $49.98 | $0.00 |
| 2024 | 31654 | CONSERVE - CONSERVATION FUTURES | $0.75 | $0.75 | $0.00 | $0.00 | $1.50 | $0.00 |
| 2024 | 31654 | COROADS - COUNTY ROADS (ROADS, DIV TO CE) | $20.11 | $20.10 | $0.00 | $0.00 | $40.21 | $0.00 |
| 2024 | 31654 | PORTPT - PORT DISTRICT | $10.33 | $10.31 | $0.00 | $0.00 | $20.64 | $0.00 |
| 2024 | 31654 | PUD1 - PUD #1 | $1.64 | $1.64 | $0.00 | $0.00 | $3.28 | $0.00 |
| 2024 | 31654 | LIB1 - LIBRARY DIST #1 | $7.78 | $7.78 | $0.00 | $0.00 | $15.56 | $0.00 |
| 2024 | 31654 | HD2 - HOSP DIST #2 | $1.46 | $1.46 | $0.00 | $0.00 | $2.92 | $0.00 |
| 2024 | 31654 | SD49 - SCHOOL DIST #49 | $26.08 | $26.08 | $0.00 | $0.00 | $52.16 | $0.00 |
| 2024 | 31654 | FP - DNR Forest Fire Protection Assmt | $8.50 | $8.50 | $0.00 | $0.00 | $17.00 | $0.00 |
| 2024 | 31654 | FPLCA - DNR Landowner Contingency Assmt | $3.00 | $3.00 | $0.00 | $0.00 | $6.00 | $0.00 |
| 2024 | 31654 | JCCD - JC Conservation District | $2.65 | $2.65 | $0.00 | $0.00 | $5.30 | $0.00 |
| 2024 | 31654 | NWA - Noxious Weed Assessment | $2.45 | $2.45 | $0.00 | $0.00 | $4.90 | $0.00 |
| 2024 | 31654 | WAT - Clean Water District | $12.50 | $12.50 | $0.00 | $0.00 | $25.00 | $0.00 |
| 2024 | 31654 | FP ADMIN - FP ADMIN | $0.50 | $0.00 | $0.00 | $0.00 | $0.50 | $0.00 |
| 2024 | 31654 | TOTAL: | $181.15 | $180.59 | $0.00 | $0.00 | $361.74 | $0.00 |
|
| 2024 | 31654 | $181.15 | $180.59 | $0.00 | $0.00 | $361.74 | $0.00 |
Statement Details |
| 2023 | 31696 | STATE - STATE LEVY (SCHOOL) | $59.42 | $59.41 | $0.00 | $0.00 | $118.83 | $0.00 |
| 2023 | 31696 | COUNTY - COUNTY LEVIES (CE, DD, VET, MH) | $25.94 | $25.91 | $0.00 | $0.00 | $51.85 | $0.00 |
| 2023 | 31696 | CONSERVE - CONSERVATION FUTURES | $0.78 | $0.77 | $0.00 | $0.00 | $1.55 | $0.00 |
| 2023 | 31696 | COROADS - COUNTY ROADS (ROADS, DIV TO CE) | $20.98 | $20.98 | $0.00 | $0.00 | $41.96 | $0.00 |
| 2023 | 31696 | PORTPT - PORT DISTRICT | $10.92 | $10.92 | $0.00 | $0.00 | $21.84 | $0.00 |
| 2023 | 31696 | PUD1 - PUD #1 | $1.72 | $1.72 | $0.00 | $0.00 | $3.44 | $0.00 |
| 2023 | 31696 | LIB1 - LIBRARY DIST #1 | $8.12 | $8.11 | $0.00 | $0.00 | $16.23 | $0.00 |
| 2023 | 31696 | HD2 - HOSP DIST #2 | $1.52 | $1.51 | $0.00 | $0.00 | $3.03 | $0.00 |
| 2023 | 31696 | SD49 - SCHOOL DIST #49 | $27.78 | $27.77 | $0.00 | $0.00 | $55.55 | $0.00 |
| 2023 | 31696 | FP - DNR Forest Fire Protection Assmt | $8.50 | $8.50 | $0.00 | $0.00 | $17.00 | $0.00 |
| 2023 | 31696 | FPLCA - DNR Landowner Contingency Assmt | $3.00 | $3.00 | $0.00 | $0.00 | $6.00 | $0.00 |
| 2023 | 31696 | JCCD - JC Conservation District | $2.65 | $2.65 | $0.00 | $0.00 | $5.30 | $0.00 |
| 2023 | 31696 | NWA - Noxious Weed Assessment | $2.45 | $2.45 | $0.00 | $0.00 | $4.90 | $0.00 |
| 2023 | 31696 | WAT - Clean Water District | $12.00 | $12.00 | $0.00 | $0.00 | $24.00 | $0.00 |
| 2023 | 31696 | FP ADMIN - FP ADMIN | $0.50 | $0.00 | $0.00 | $0.00 | $0.50 | $0.00 |
| 2023 | 31696 | TOTAL: | $186.28 | $185.70 | $0.00 | $0.00 | $371.98 | $0.00 |
|
| 2023 | 31696 | $186.28 | $185.70 | $0.00 | $0.00 | $371.98 | $0.00 |
Values
| (+) Improvement Homesite Value: | + | $0 | |
| (+) Improvement Non-Homesite Value: | + | $480 | |
| (+) Land Homesite Value: | + | $0 | |
| (+) Land Non-Homesite Value: | + | $50,000 | |
| (+) Curr Use (HS): | + | $0 | $0 |
| (+) Curr Use (NHS): | + | $0 | $0 |
| | | -------------------------- | |
| (=) Market Value: | = | $50,480 | |
| (–) Productivity Loss: | – | $0 | |
| | | -------------------------- | |
| (=) Subtotal: | = | $50,480 | |
| (+) Senior Appraised Value: | + | $0 | |
| (+) Non-Senior Appraised Value: | + | $50,480 | |
| | | -------------------------- | |
| (=) Total Appraised Value: | = | $50,480 | |
| (–) Senior Exemption Loss: | – | $0 | |
| (–) Exemption Loss: | – | $0 | |
| | | -------------------------- | |
| (=) Taxable Value: | = | $50,480 | |
Taxing Jurisdiction
| Owner: | SINCLAIR-KOHASHI FAMILY REVOCABLE TRUST | | |
| % Ownership: | 100.0000000000% | | |
| Total Value: | N/A | | |
| Tax Area: | 0201 - 1-49H2L1 |
| CE | COUNTY CURRENT EXPENSE | N/A | N/A | N/A | N/A | | |
| CNTYDD | DEVELOPMENTAL DISABILITIES | N/A | N/A | N/A | N/A | | |
| CNTYVET | VETERANS RELIEF | N/A | N/A | N/A | N/A | | |
| MENTAL | MENTAL HEALTH | N/A | N/A | N/A | N/A | | |
| ROADS | COUNTY ROADS | N/A | N/A | N/A | N/A | | |
| HOSP2CASH | HOSP DIST #2 GENERAL | N/A | N/A | N/A | N/A | | |
| SCH49CP | SCHOOL DIST #49 CAP PROJ | N/A | N/A | N/A | N/A | | |
| SCH49MO | SCHOOL DIST #49 EP & O | N/A | N/A | N/A | N/A | | |
| CONSERVE | CONSERVATION FUTURES | N/A | N/A | N/A | N/A | | |
| LIB1 | LIBRARY DIST #1 GENERAL | N/A | N/A | N/A | N/A | | |
| PORTPT | PORT OF PT GENERAL | N/A | N/A | N/A | N/A | | |
| PORTPTIDD | PORT OF PT IDD 2019 | N/A | N/A | N/A | N/A | | |
| PUD1 | PUD #1 GENERAL | N/A | N/A | N/A | N/A | | |
| STATE | STATE SCHOOL PART 1 | N/A | N/A | N/A | N/A | | |
| STATE2 | STATE SCHOOL PART 2 | N/A | N/A | N/A | N/A | | |
| | Total Tax Rate: | N/A | | | | | |
| | | | | Taxes w/Current Exemptions: | N/A | | |
| | | | | Taxes w/o Exemptions: | N/A | | |
Improvement / Building
| Improvement #1: | Residential Bldg | State Code: | 19 | 0.0 sqft | Value: | $480 |
Sketch
Property Image
Land
| 1 | 3372-7125L | | 0.0000 | 0.00 | 0.00 | 0.00 | 1.00 | $50,000 | $0 |
Roll Value History
| 2026 | N/A | N/A | N/A | N/A | N/A |
| 2025 | $480 | $50,000 | $0 | $50,480 | $50,480 |
| 2024 | $480 | $50,000 | $0 | $50,480 | $50,480 |
| 2023 | $480 | $50,000 | $0 | $50,480 | $50,480 |
| 2022 | $480 | $50,000 | $0 | $50,480 | $50,480 |
Deed and Sales History
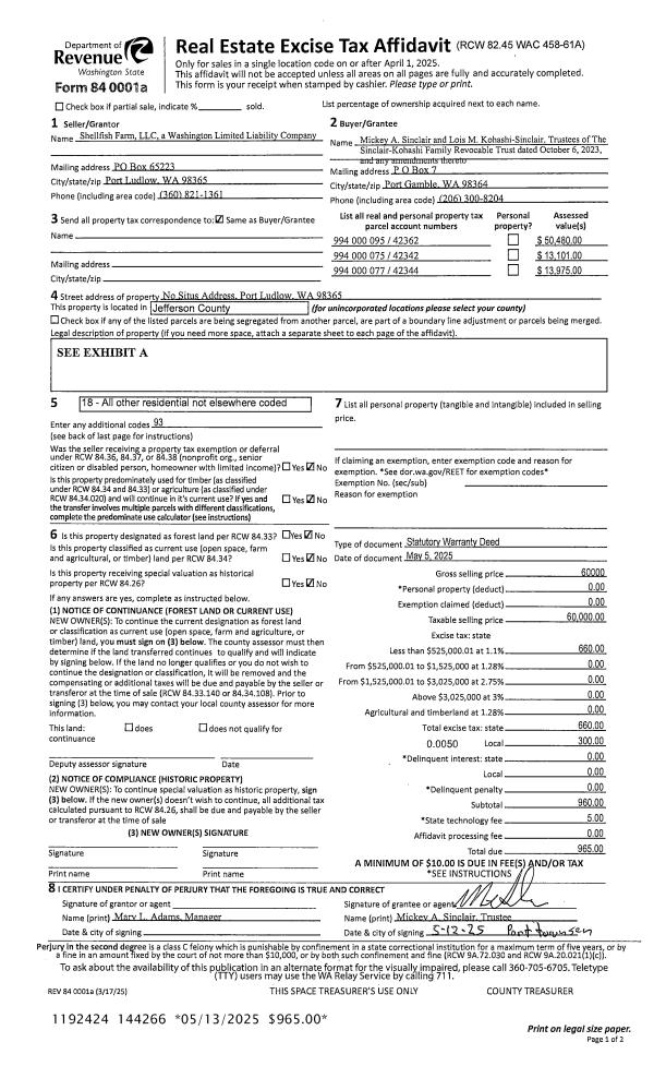
| 1 | 05/15/2025 | SWD | Statutory Warranty Deed | SHELLFISH FARM LLC | SINCLAIR-KOHASHI FAMILY REVOCABLE TRUST | | | $60,000.00 | 144266 | |
|   | |
| 2 | 11/17/2005 | SWD | Statutory Warranty Deed | ADAMS, MICHAEL & MARY | SHELLFISH FARM LLC | 0 | 0 | $0.00 | 105572 | 0 |
| 3 | 12/09/2003 | SWD | Statutory Warranty Deed | RUSSELL, JUNE WOOD | ADAMS, MICHAEL E/MARY | 0 | 0 | $0.00 | 99202 | 0 |
| 4 | 10/01/1998 | QCD | Quit Claim Deed | TERIMA KASIH TRUST | TOUR DU MONDE, DEE | 0 | 0 | $0.00 | 85416 | 0 |
| 5 | 05/16/1997 | QCD | Quit Claim Deed | DUMONDE, DEE TOUR | KASIH, TERIMA/TRUST | 0 | 0 | $0.00 | 81975 | 0 |
Payout Agreement
| No payout information available.. |