Property
Account |
| Property ID: | 42372 | Abbreviated Legal Description: | SECRET GARDEN COTTAGES CONDO UNIT 7 |
| Parcel # / Geo ID: | 994100007 | Agent Code: | |
| Type: | Real | | |
| Tax Area: | 0110 - C-50F1E1H2 | Land Use Code | 11 |
| Open Space: | N | DFL | N |
| Historic Property: | N | Remodel Property: | N |
| Multi-Family Redevelopment: | N | | |
| Township: | 30N | Section: | 2 |
| Range: | 1W |
Location |
| Address: | 801 ADAMS ST PORT TOWNSEND, WA 98368 | Mapsco: | 132/001 |
| Neighborhood: | CYCLE 6 CONDOMINIUMS - PORT TOWNSEND | Map ID: | |
| Neighborhood CD: | 6900 |
Owner |
| Name: | ANN STAFFORD | Owner ID: | 110355 |
| Mailing Address: | PO BOX 486 MEDINA, WA 98039-0486 | % Ownership: | 100.0000000000% |
| | | Exemptions: | |
Pay Tax Due
Select the appropriate checkbox next to the year to be paid. Multiple years may be selected.
*Convenience Fee not included
Taxes and Assessment Details
Property Tax Information as of
03/11/2026
Click on "Statement Details" to expand or collapse a tax statement.
* Please enter a valid date ** Please enter a valid date *
Statement Details |
| 2026 | 31533 | STATE - STATE LEVY (SCHOOL) | $632.08 | $632.07 | $0.00 | $0.00 | $0.00 | $1264.15 |
| 2026 | 31533 | COUNTY - COUNTY LEVIES (CE, DD, VET, MH) | $252.71 | $252.69 | $0.00 | $0.00 | $0.00 | $505.40 |
| 2026 | 31533 | CONSERVE - CONSERVATION FUTURES | $7.58 | $7.57 | $0.00 | $0.00 | $0.00 | $15.15 |
| 2026 | 31533 | CITYPT - CITY OF PT | $358.70 | $358.67 | $0.00 | $0.00 | $0.00 | $717.37 |
| 2026 | 31533 | PORTPT - PORT DISTRICT | $102.06 | $102.05 | $0.00 | $0.00 | $0.00 | $204.11 |
| 2026 | 31533 | PUD1 - PUD #1 | $16.44 | $16.43 | $0.00 | $0.00 | $0.00 | $32.87 |
| 2026 | 31533 | HD2 - HOSP DIST #2 | $14.74 | $14.74 | $0.00 | $0.00 | $0.00 | $29.48 |
| 2026 | 31533 | SD50 - SCHOOL DIST #50 | $500.75 | $500.73 | $0.00 | $0.00 | $0.00 | $1001.48 |
| 2026 | 31533 | FD1 - FIRE DISTRICT #1 | $334.64 | $334.63 | $0.00 | $0.00 | $0.00 | $669.27 |
| 2026 | 31533 | EMS1 - FIRE DIST #1 EMS | $128.67 | $128.66 | $0.00 | $0.00 | $0.00 | $257.33 |
| 2026 | 31533 | JCCD - JC Conservation District | $2.55 | $2.55 | $0.00 | $0.00 | $0.00 | $5.10 |
| 2026 | 31533 | NWA - Noxious Weed Assessment | $2.98 | $2.97 | $0.00 | $0.00 | $0.00 | $5.95 |
| 2026 | 31533 | TOTAL: | $2353.90 | $2353.76 | $0.00 | $0.00 | $0.00 | $4707.66 |
|
| 2026 | 31533 | $2353.90 | $2353.76 | $0.00 | $0.00 | $0.00 | $4707.66 |
Statement Details |
| 2025 | 31605 | STATE - STATE LEVY (SCHOOL) | $590.47 | $590.47 | $0.00 | $0.00 | $1180.94 | $0.00 |
| 2025 | 31605 | COUNTY - COUNTY LEVIES (CE, DD, VET, MH) | $232.21 | $232.19 | $0.00 | $0.00 | $464.40 | $0.00 |
| 2025 | 31605 | CONSERVE - CONSERVATION FUTURES | $6.97 | $6.96 | $0.00 | $0.00 | $13.93 | $0.00 |
| 2025 | 31605 | CITYPT - CITY OF PT | $334.86 | $334.85 | $0.00 | $0.00 | $669.71 | $0.00 |
| 2025 | 31605 | PORTPT - PORT DISTRICT | $94.75 | $94.75 | $0.00 | $0.00 | $189.50 | $0.00 |
| 2025 | 31605 | PUD1 - PUD #1 | $15.20 | $15.19 | $0.00 | $0.00 | $30.39 | $0.00 |
| 2025 | 31605 | HD2 - HOSP DIST #2 | $13.55 | $13.54 | $0.00 | $0.00 | $27.09 | $0.00 |
| 2025 | 31605 | SD50 - SCHOOL DIST #50 | $431.54 | $431.53 | $0.00 | $0.00 | $863.07 | $0.00 |
| 2025 | 31605 | FD1 - FIRE DISTRICT #1 | $306.41 | $306.41 | $0.00 | $0.00 | $612.82 | $0.00 |
| 2025 | 31605 | EMS1 - FIRE DIST #1 EMS | $117.86 | $117.85 | $0.00 | $0.00 | $235.71 | $0.00 |
| 2025 | 31605 | JCCD - JC Conservation District | $2.55 | $2.55 | $0.00 | $0.00 | $5.10 | $0.00 |
| 2025 | 31605 | NWA - Noxious Weed Assessment | $2.15 | $2.15 | $0.00 | $0.00 | $4.30 | $0.00 |
| 2025 | 31605 | TOTAL: | $2148.52 | $2148.44 | $0.00 | $0.00 | $4296.96 | $0.00 |
|
| 2025 | 31605 | $2148.52 | $2148.44 | $0.00 | $0.00 | $4296.96 | $0.00 |
Statement Details |
| 2024 | 31664 | STATE - STATE LEVY (SCHOOL) | $503.57 | $503.56 | $0.00 | $0.00 | $1007.13 | $0.00 |
| 2024 | 31664 | COUNTY - COUNTY LEVIES (CE, DD, VET, MH) | $215.49 | $215.46 | $0.00 | $0.00 | $430.95 | $0.00 |
| 2024 | 31664 | CONSERVE - CONSERVATION FUTURES | $6.46 | $6.46 | $0.00 | $0.00 | $12.92 | $0.00 |
| 2024 | 31664 | CITYPT - CITY OF PT | $307.91 | $307.88 | $0.00 | $0.00 | $615.79 | $0.00 |
| 2024 | 31664 | PORTPT - PORT DISTRICT | $89.01 | $88.99 | $0.00 | $0.00 | $178.00 | $0.00 |
| 2024 | 31664 | PUD1 - PUD #1 | $14.16 | $14.15 | $0.00 | $0.00 | $28.31 | $0.00 |
| 2024 | 31664 | HD2 - HOSP DIST #2 | $12.58 | $12.57 | $0.00 | $0.00 | $25.15 | $0.00 |
| 2024 | 31664 | SD50 - SCHOOL DIST #50 | $407.42 | $407.40 | $0.00 | $0.00 | $814.82 | $0.00 |
| 2024 | 31664 | FD1 - FIRE DISTRICT #1 | $284.92 | $284.91 | $0.00 | $0.00 | $569.83 | $0.00 |
| 2024 | 31664 | EMS1 - FIRE DIST #1 EMS | $108.83 | $108.82 | $0.00 | $0.00 | $217.65 | $0.00 |
| 2024 | 31664 | JCCD - JC Conservation District | $2.55 | $2.55 | $0.00 | $0.00 | $5.10 | $0.00 |
| 2024 | 31664 | NWA - Noxious Weed Assessment | $2.15 | $2.15 | $0.00 | $0.00 | $4.30 | $0.00 |
| 2024 | 31664 | TOTAL: | $1955.05 | $1954.90 | $0.00 | $0.00 | $3909.95 | $0.00 |
|
| 2024 | 31664 | $1955.05 | $1954.90 | $0.00 | $0.00 | $3909.95 | $0.00 |
Statement Details |
| 2023 | 31706 | STATE - STATE LEVY (SCHOOL) | $509.74 | $509.73 | $0.00 | $0.00 | $1019.47 | $0.00 |
| 2023 | 31706 | COUNTY - COUNTY LEVIES (CE, DD, VET, MH) | $222.45 | $222.43 | $0.00 | $0.00 | $444.88 | $0.00 |
| 2023 | 31706 | CONSERVE - CONSERVATION FUTURES | $6.67 | $6.67 | $0.00 | $0.00 | $13.34 | $0.00 |
| 2023 | 31706 | CITYPT - CITY OF PT | $314.37 | $314.37 | $0.00 | $0.00 | $628.74 | $0.00 |
| 2023 | 31706 | PORTPT - PORT DISTRICT | $93.71 | $93.69 | $0.00 | $0.00 | $187.40 | $0.00 |
| 2023 | 31706 | PUD1 - PUD #1 | $14.75 | $14.74 | $0.00 | $0.00 | $29.49 | $0.00 |
| 2023 | 31706 | HD2 - HOSP DIST #2 | $12.98 | $12.98 | $0.00 | $0.00 | $25.96 | $0.00 |
| 2023 | 31706 | SD50 - SCHOOL DIST #50 | $404.49 | $404.48 | $0.00 | $0.00 | $808.97 | $0.00 |
| 2023 | 31706 | FD1 - FIRE DISTRICT #1 | $183.24 | $183.24 | $0.00 | $0.00 | $366.48 | $0.00 |
| 2023 | 31706 | EMS1 - FIRE DIST #1 EMS | $77.95 | $77.94 | $0.00 | $0.00 | $155.89 | $0.00 |
| 2023 | 31706 | JCCD - JC Conservation District | $2.55 | $2.55 | $0.00 | $0.00 | $5.10 | $0.00 |
| 2023 | 31706 | NWA - Noxious Weed Assessment | $2.15 | $2.15 | $0.00 | $0.00 | $4.30 | $0.00 |
| 2023 | 31706 | TOTAL: | $1845.05 | $1844.97 | $0.00 | $0.00 | $3690.02 | $0.00 |
|
| 2023 | 31706 | $1845.05 | $1844.97 | $0.00 | $0.00 | $3690.02 | $0.00 |
Values
| (+) Improvement Homesite Value: | + | $0 | |
| (+) Improvement Non-Homesite Value: | + | $379,846 | |
| (+) Land Homesite Value: | + | $0 | |
| (+) Land Non-Homesite Value: | + | $170,000 | |
| (+) Curr Use (HS): | + | $0 | $0 |
| (+) Curr Use (NHS): | + | $0 | $0 |
| | | -------------------------- | |
| (=) Market Value: | = | $549,846 | |
| (–) Productivity Loss: | – | $0 | |
| | | -------------------------- | |
| (=) Subtotal: | = | $549,846 | |
| (+) Senior Appraised Value: | + | $0 | |
| (+) Non-Senior Appraised Value: | + | $549,846 | |
| | | -------------------------- | |
| (=) Total Appraised Value: | = | $549,846 | |
| (–) Senior Exemption Loss: | – | $0 | |
| (–) Exemption Loss: | – | $0 | |
| | | -------------------------- | |
| (=) Taxable Value: | = | $549,846 | |
Taxing Jurisdiction
| Owner: | ANN STAFFORD | | |
| % Ownership: | 100.0000000000% | | |
| Total Value: | $549,846 | | |
| Tax Area: | 0110 - C-50F1E1H2 |
| CE | COUNTY CURRENT EXPENSE | 0.9034619479 | $549,846 | $549,846 | $496.76 | | |
| CNTYDD | DEVELOPMENTAL DISABILITIES | 0.0052121823 | $549,846 | $549,846 | $2.87 | | |
| CNTYVET | VETERANS RELIEF | 0.0052777810 | $549,846 | $549,846 | $2.90 | | |
| MENTAL | MENTAL HEALTH | 0.0052121823 | $549,846 | $549,846 | $2.87 | | |
| PTGEN | CITY OF PT GENERAL | 0.8551967795 | $549,846 | $549,846 | $470.23 | | |
| PTLLL | CITY OF PT - LIBRARY LID LIFT | 0.4010114288 | $549,846 | $549,846 | $220.49 | | |
| PTMVBOND | CITY OF PT MV BOND | 0.0484717981 | $549,846 | $549,846 | $26.65 | | |
| HOSP2CASH | HOSP DIST #2 GENERAL | 0.0536075306 | $549,846 | $549,846 | $29.48 | | |
| SCH50BOND | SCHOOL DIST #50 BOND 2016 | 0.5377451389 | $549,846 | $549,846 | $295.68 | | |
| SCH50CP | SCHOOL DIST #50 CAP PROJ | 0.4573475088 | $549,846 | $549,846 | $251.47 | | |
| SCH50MO | SCHOOL DIST #50 EP & O | 0.8262822886 | $549,846 | $549,846 | $454.33 | | |
| CONSERVE | CONSERVATION FUTURES | 0.0275621078 | $549,846 | $549,846 | $15.15 | | |
| EMS1 | FIRE DIST #1 EMS | 0.4679948282 | $549,846 | $549,846 | $257.33 | | |
| FD1 | FIRE DIST #1 GENERAL | 1.2171942929 | $549,846 | $549,846 | $669.27 | | |
| PORTPT | PORT OF PT GENERAL | 0.1134941229 | $549,846 | $549,846 | $62.40 | | |
| PORTPTIDD | PORT OF PT IDD 2019 | 0.2577346692 | $549,846 | $549,846 | $141.71 | | |
| PUD1 | PUD #1 GENERAL | 0.0597888892 | $549,846 | $549,846 | $32.87 | | |
| STATE | STATE SCHOOL PART 1 | 1.4940692947 | $549,846 | $549,846 | $821.51 | | |
| STATE2 | STATE SCHOOL PART 2 | 0.8050170049 | $549,846 | $549,846 | $442.64 | | |
| | Total Tax Rate: | 8.5416817766 | | | | | |
| | | | | Taxes w/Current Exemptions: | $4,696.61 | | |
| | | | | Taxes w/o Exemptions: | $4,696.61 | | |
Improvement / Building
| Improvement #1: | Residential Bldg | State Code: | 11 | 959.0 sqft | Value: | $379,846 |
| Bathrooms (#): | 2 (FULL) | Bedrooms (#): | 2 | | Exterior Wall: | SI/ST | Foundation: | CONPR | | Heating/Cooling: | HPUMP | Roof Cover: | COMP |
|
| | Type | Description | Class CD | Sub Class CD | Year Built | Area |
| | MA | Main Area | 5+ | 15SF | 2016 | 637.0 |
| | MA2 | Second Floor Main Area | 5+ | 15SF | 2016 | 322.0 |
| | HWPOR | House Wood Porch | 5 | 15SF | 2016 | 210.0 |
| | PATIO | House Patio | 5 | * | 2016 | 180.0 |
Sketch
Property Image
Land
| 1 | 9941-4115S | | 0.0000 | 0.00 | 0.00 | 0.00 | 1.00 | $170,000 | $0 |
Roll Value History
| 2026 | N/A | N/A | N/A | N/A | N/A |
| 2025 | $379,846 | $170,000 | $0 | $549,846 | $549,846 |
| 2024 | $332,463 | $160,000 | $0 | $492,463 | $492,463 |
| 2023 | $285,308 | $150,000 | $0 | $435,308 | $435,308 |
| 2022 | $283,052 | $150,000 | $0 | $433,052 | $433,052 |
Deed and Sales History
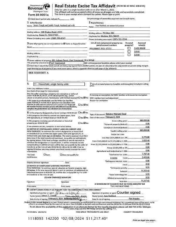
| 1 | 02/06/2024 | SWD | Statutory Warranty Deed | JAMES T & JUDITH A TOUGH | ANN STAFFORD | | | $683,000.00 | 142200 | |
| 2 | 03/18/2015 | SWD | Statutory Warranty Deed | SECRET GARDEN LLC | JAMES T & JUDITH A TOUGH | | | $75,000.00 | 122859 | |
Payout Agreement
| No payout information available.. |