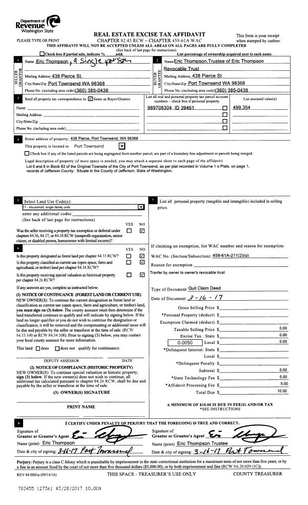
Property
Account |
| Property ID: | 42456 | Abbreviated Legal Description: | SHINE 2ND BLK 2 LOT 6 W/ 1/25TH UNDIV INT WELL SITE SUBJ/REST COVT #530584 |
| Parcel # / Geo ID: | 994600206 | Agent Code: | |
| Type: | Real | | |
| Tax Area: | 0213 - 1-49F1E1H2L1 | Land Use Code | 11 |
| Open Space: | N | DFL | N |
| Historic Property: | N | Remodel Property: | N |
| Multi-Family Redevelopment: | N | | |
| Township: | 28N | Section: | 33 |
| Range: | 1E |
Location |
| Address: | 112 MARGARET ST PORT LUDLOW, WA 98365 | Mapsco: | 122/020 |
| Neighborhood: | S33 T28 R1E;SHINE PLTS;WATNEY'S S;TEAL/SANTY/SHAW/JAKUM/CARL | Map ID: | |
| Neighborhood CD: | 3385 |
Owner |
| Name: | JEFFREY A & JENNIFER M STROH | Owner ID: | 91432 |
| Mailing Address: | 112 MARGARET ST PORT LUDLOW, WA 98365-9280 | % Ownership: | 100.0000000000% |
| | | Exemptions: | |
Pay Tax Due
Select the appropriate checkbox next to the year to be paid. Multiple years may be selected.
*Convenience Fee not included
Taxes and Assessment Details
Property Tax Information as of
03/11/2026
Click on "Statement Details" to expand or collapse a tax statement.
* Please enter a valid date ** Please enter a valid date *
Statement Details |
| 2026 | 31615 | STATE - STATE LEVY (SCHOOL) | $566.22 | $566.22 | $0.00 | $0.00 | $0.00 | $1132.44 |
| 2026 | 31615 | COUNTY - COUNTY LEVIES (CE, DD, VET, MH) | $226.39 | $226.36 | $0.00 | $0.00 | $0.00 | $452.75 |
| 2026 | 31615 | CONSERVE - CONSERVATION FUTURES | $6.79 | $6.79 | $0.00 | $0.00 | $0.00 | $13.58 |
| 2026 | 31615 | COROADS - COUNTY ROADS (ROADS, DIV TO CE) | $182.62 | $182.62 | $0.00 | $0.00 | $0.00 | $365.24 |
| 2026 | 31615 | PORTPT - PORT DISTRICT | $91.43 | $91.42 | $0.00 | $0.00 | $0.00 | $182.85 |
| 2026 | 31615 | PUD1 - PUD #1 | $14.73 | $14.72 | $0.00 | $0.00 | $0.00 | $29.45 |
| 2026 | 31615 | LIB1 - LIBRARY DIST #1 | $70.66 | $70.65 | $0.00 | $0.00 | $0.00 | $141.31 |
| 2026 | 31615 | HD2 - HOSP DIST #2 | $13.20 | $13.20 | $0.00 | $0.00 | $0.00 | $26.40 |
| 2026 | 31615 | SD49 - SCHOOL DIST #49 | $311.68 | $311.68 | $0.00 | $0.00 | $0.00 | $623.36 |
| 2026 | 31615 | FD1 - FIRE DISTRICT #1 | $299.77 | $299.77 | $0.00 | $0.00 | $0.00 | $599.54 |
| 2026 | 31615 | EMS1 - FIRE DIST #1 EMS | $115.26 | $115.26 | $0.00 | $0.00 | $0.00 | $230.52 |
| 2026 | 31615 | JCCD - JC Conservation District | $2.55 | $2.55 | $0.00 | $0.00 | $0.00 | $5.10 |
| 2026 | 31615 | NWA - Noxious Weed Assessment | $2.98 | $2.97 | $0.00 | $0.00 | $0.00 | $5.95 |
| 2026 | 31615 | OSS - On Site Septic | $23.10 | $23.10 | $0.00 | $0.00 | $0.00 | $46.20 |
| 2026 | 31615 | WAT - Clean Water District | $13.00 | $13.00 | $0.00 | $0.00 | $0.00 | $26.00 |
| 2026 | 31615 | TOTAL: | $1940.38 | $1940.31 | $0.00 | $0.00 | $0.00 | $3880.69 |
|
| 2026 | 31615 | $1940.38 | $1940.31 | $0.00 | $0.00 | $0.00 | $3880.69 |
Statement Details |
| 2025 | 31688 | STATE - STATE LEVY (SCHOOL) | $565.57 | $565.56 | $0.00 | $0.00 | $1131.13 | $0.00 |
| 2025 | 31688 | COUNTY - COUNTY LEVIES (CE, DD, VET, MH) | $222.42 | $222.40 | $0.00 | $0.00 | $444.82 | $0.00 |
| 2025 | 31688 | CONSERVE - CONSERVATION FUTURES | $6.67 | $6.67 | $0.00 | $0.00 | $13.34 | $0.00 |
| 2025 | 31688 | COROADS - COUNTY ROADS (ROADS, DIV TO CE) | $178.19 | $178.18 | $0.00 | $0.00 | $356.37 | $0.00 |
| 2025 | 31688 | PORTPT - PORT DISTRICT | $90.75 | $90.75 | $0.00 | $0.00 | $181.50 | $0.00 |
| 2025 | 31688 | PUD1 - PUD #1 | $14.56 | $14.55 | $0.00 | $0.00 | $29.11 | $0.00 |
| 2025 | 31688 | LIB1 - LIBRARY DIST #1 | $68.94 | $68.93 | $0.00 | $0.00 | $137.87 | $0.00 |
| 2025 | 31688 | HD2 - HOSP DIST #2 | $12.98 | $12.97 | $0.00 | $0.00 | $25.95 | $0.00 |
| 2025 | 31688 | SD49 - SCHOOL DIST #49 | $303.11 | $303.11 | $0.00 | $0.00 | $606.22 | $0.00 |
| 2025 | 31688 | FD1 - FIRE DISTRICT #1 | $293.49 | $293.49 | $0.00 | $0.00 | $586.98 | $0.00 |
| 2025 | 31688 | EMS1 - FIRE DIST #1 EMS | $112.89 | $112.88 | $0.00 | $0.00 | $225.77 | $0.00 |
| 2025 | 31688 | JCCD - JC Conservation District | $2.55 | $2.55 | $0.00 | $0.00 | $5.10 | $0.00 |
| 2025 | 31688 | NWA - Noxious Weed Assessment | $2.15 | $2.15 | $0.00 | $0.00 | $4.30 | $0.00 |
| 2025 | 31688 | WAT - Clean Water District | $13.00 | $13.00 | $0.00 | $0.00 | $26.00 | $0.00 |
| 2025 | 31688 | TOTAL: | $1887.27 | $1887.19 | $0.00 | $0.00 | $3774.46 | $0.00 |
|
| 2025 | 31688 | $1887.27 | $1887.19 | $0.00 | $0.00 | $3774.46 | $0.00 |
Statement Details |
| 2024 | 31747 | STATE - STATE LEVY (SCHOOL) | $515.73 | $515.73 | $0.00 | $0.00 | $1031.46 | $0.00 |
| 2024 | 31747 | COUNTY - COUNTY LEVIES (CE, DD, VET, MH) | $220.69 | $220.67 | $0.00 | $0.00 | $441.36 | $0.00 |
| 2024 | 31747 | CONSERVE - CONSERVATION FUTURES | $6.62 | $6.62 | $0.00 | $0.00 | $13.24 | $0.00 |
| 2024 | 31747 | COROADS - COUNTY ROADS (ROADS, DIV TO CE) | $177.59 | $177.57 | $0.00 | $0.00 | $355.16 | $0.00 |
| 2024 | 31747 | PORTPT - PORT DISTRICT | $91.16 | $91.15 | $0.00 | $0.00 | $182.31 | $0.00 |
| 2024 | 31747 | PUD1 - PUD #1 | $14.50 | $14.49 | $0.00 | $0.00 | $28.99 | $0.00 |
| 2024 | 31747 | LIB1 - LIBRARY DIST #1 | $68.71 | $68.70 | $0.00 | $0.00 | $137.41 | $0.00 |
| 2024 | 31747 | HD2 - HOSP DIST #2 | $12.88 | $12.87 | $0.00 | $0.00 | $25.75 | $0.00 |
| 2024 | 31747 | SD49 - SCHOOL DIST #49 | $230.30 | $230.30 | $0.00 | $0.00 | $460.60 | $0.00 |
| 2024 | 31747 | FD1 - FIRE DISTRICT #1 | $291.80 | $291.80 | $0.00 | $0.00 | $583.60 | $0.00 |
| 2024 | 31747 | EMS1 - FIRE DIST #1 EMS | $111.46 | $111.45 | $0.00 | $0.00 | $222.91 | $0.00 |
| 2024 | 31747 | JCCD - JC Conservation District | $2.55 | $2.55 | $0.00 | $0.00 | $5.10 | $0.00 |
| 2024 | 31747 | NWA - Noxious Weed Assessment | $2.15 | $2.15 | $0.00 | $0.00 | $4.30 | $0.00 |
| 2024 | 31747 | WAT - Clean Water District | $12.50 | $12.50 | $0.00 | $0.00 | $25.00 | $0.00 |
| 2024 | 31747 | TOTAL: | $1758.64 | $1758.55 | $0.00 | $0.00 | $3517.19 | $0.00 |
|
| 2024 | 31747 | $1758.64 | $1758.55 | $0.00 | $0.00 | $3517.19 | $0.00 |
Statement Details |
| 2023 | 31789 | STATE - STATE LEVY (SCHOOL) | $518.90 | $518.88 | $0.00 | $0.00 | $1037.78 | $0.00 |
| 2023 | 31789 | COUNTY - COUNTY LEVIES (CE, DD, VET, MH) | $226.44 | $226.41 | $0.00 | $0.00 | $452.85 | $0.00 |
| 2023 | 31789 | CONSERVE - CONSERVATION FUTURES | $6.79 | $6.79 | $0.00 | $0.00 | $13.58 | $0.00 |
| 2023 | 31789 | COROADS - COUNTY ROADS (ROADS, DIV TO CE) | $183.20 | $183.19 | $0.00 | $0.00 | $366.39 | $0.00 |
| 2023 | 31789 | PORTPT - PORT DISTRICT | $95.39 | $95.38 | $0.00 | $0.00 | $190.77 | $0.00 |
| 2023 | 31789 | PUD1 - PUD #1 | $15.01 | $15.01 | $0.00 | $0.00 | $30.02 | $0.00 |
| 2023 | 31789 | LIB1 - LIBRARY DIST #1 | $70.88 | $70.87 | $0.00 | $0.00 | $141.75 | $0.00 |
| 2023 | 31789 | HD2 - HOSP DIST #2 | $13.22 | $13.21 | $0.00 | $0.00 | $26.43 | $0.00 |
| 2023 | 31789 | SD49 - SCHOOL DIST #49 | $242.56 | $242.54 | $0.00 | $0.00 | $485.10 | $0.00 |
| 2023 | 31789 | FD3 - FIRE DISTRICT #3 | $225.26 | $225.26 | $0.00 | $0.00 | $450.52 | $0.00 |
| 2023 | 31789 | EMS3 - FIRE DIST #3 EMS | $80.53 | $80.53 | $0.00 | $0.00 | $161.06 | $0.00 |
| 2023 | 31789 | JCCD - JC Conservation District | $2.55 | $2.55 | $0.00 | $0.00 | $5.10 | $0.00 |
| 2023 | 31789 | NWA - Noxious Weed Assessment | $2.15 | $2.15 | $0.00 | $0.00 | $4.30 | $0.00 |
| 2023 | 31789 | WAT - Clean Water District | $12.00 | $12.00 | $0.00 | $0.00 | $24.00 | $0.00 |
| 2023 | 31789 | TOTAL: | $1694.88 | $1694.77 | $0.00 | $0.00 | $3389.65 | $0.00 |
|
| 2023 | 31789 | $1694.88 | $1694.77 | $0.00 | $0.00 | $3389.65 | $0.00 |
Values
| (+) Improvement Homesite Value: | + | $0 | |
| (+) Improvement Non-Homesite Value: | + | $401,809 | |
| (+) Land Homesite Value: | + | $0 | |
| (+) Land Non-Homesite Value: | + | $90,750 | |
| (+) Curr Use (HS): | + | $0 | $0 |
| (+) Curr Use (NHS): | + | $0 | $0 |
| | | -------------------------- | |
| (=) Market Value: | = | $492,559 | |
| (–) Productivity Loss: | – | $0 | |
| | | -------------------------- | |
| (=) Subtotal: | = | $492,559 | |
| (+) Senior Appraised Value: | + | $0 | |
| (+) Non-Senior Appraised Value: | + | $492,559 | |
| | | -------------------------- | |
| (=) Total Appraised Value: | = | $492,559 | |
| (–) Senior Exemption Loss: | – | $0 | |
| (–) Exemption Loss: | – | $0 | |
| | | -------------------------- | |
| (=) Taxable Value: | = | $492,559 | |
Taxing Jurisdiction
| Owner: | JEFFREY A & JENNIFER M STROH | | |
| % Ownership: | 100.0000000000% | | |
| Total Value: | $492,559 | | |
| Tax Area: | 0213 - 1-49F1E1H2L1 |
| CE | COUNTY CURRENT EXPENSE | 0.9034619479 | $492,559 | $492,559 | $445.01 | | |
| CNTYDD | DEVELOPMENTAL DISABILITIES | 0.0052121823 | $492,559 | $492,559 | $2.57 | | |
| CNTYVET | VETERANS RELIEF | 0.0052777810 | $492,559 | $492,559 | $2.60 | | |
| MENTAL | MENTAL HEALTH | 0.0052121823 | $492,559 | $492,559 | $2.57 | | |
| ROADS | COUNTY ROADS | 0.7415066410 | $492,559 | $492,559 | $365.24 | | |
| ROADSCU | COUNTY ROADS TO CUR EXP | 0.0000000000 | $492,559 | $492,559 | $0.00 | | |
| HOSP2CASH | HOSP DIST #2 GENERAL | 0.0536075306 | $492,559 | $492,559 | $26.40 | | |
| SCH49CP | SCHOOL DIST #49 CAP PROJ | 0.6279093905 | $492,559 | $492,559 | $309.28 | | |
| SCH49MO | SCHOOL DIST #49 EP & O | 0.6376483602 | $492,559 | $492,559 | $314.08 | | |
| CONSERVE | CONSERVATION FUTURES | 0.0275621078 | $492,559 | $492,559 | $13.58 | | |
| EMS1 | FIRE DIST #1 EMS | 0.4679948282 | $492,559 | $492,559 | $230.52 | | |
| FD1 | FIRE DIST #1 GENERAL | 1.2171942929 | $492,559 | $492,559 | $599.54 | | |
| LIB1 | LIBRARY DIST #1 GENERAL | 0.2868827388 | $492,559 | $492,559 | $141.31 | | |
| PORTPT | PORT OF PT GENERAL | 0.1134941229 | $492,559 | $492,559 | $55.90 | | |
| PORTPTIDD | PORT OF PT IDD 2019 | 0.2577346692 | $492,559 | $492,559 | $126.95 | | |
| PUD1 | PUD #1 GENERAL | 0.0597888892 | $492,559 | $492,559 | $29.45 | | |
| STATE | STATE SCHOOL PART 1 | 1.4940692947 | $492,559 | $492,559 | $735.92 | | |
| STATE2 | STATE SCHOOL PART 2 | 0.8050170049 | $492,559 | $492,559 | $396.52 | | |
| | Total Tax Rate: | 7.7095739644 | | | | | |
| | | | | Taxes w/Current Exemptions: | $3,797.44 | | |
| | | | | Taxes w/o Exemptions: | $3,797.44 | | |
Improvement / Building
| Improvement #1: | Residential Bldg | State Code: | 11 | 1680.0 sqft | Value: | $401,809 |
| Bathrooms (#): | 2 (FULL) | Bedrooms (#): | 3 | | Exterior Wall: | SI/ST | Floor Construction: | FRAME | | Foundation: | CONPR | Heating/Cooling: | ELBB | | Inside Verify: | NO | Roof Cover: | COMP |
|
| | Type | Description | Class CD | Sub Class CD | Year Built | Area |
| | MA | Main Area | 3+ | 1S | 2012 | 1680.0 |
| | HRPO | House Roof Patio | 4 | * | 2012 | 121.0 |
| | HDECK | House Deck | 4 | * | 2012 | 36.0 |
| | GDET | Detached Garage | 4 | * | 1997 | 1500.0 |
| | SHED | Shed (Table Not Dep) | 4 | * | 2002 | 120.0 |
Sketch
Property Image
Land
| 1 | 3385-1245S | | 0.0000 | 0.00 | 0.00 | 0.00 | 1.00 | $90,750 | $0 |
Roll Value History
| 2026 | N/A | N/A | N/A | N/A | N/A |
| 2025 | $401,809 | $90,750 | $0 | $492,559 | $492,559 |
| 2024 | $385,067 | $86,625 | $0 | $471,692 | $471,692 |
| 2023 | $368,325 | $77,500 | $0 | $445,825 | $445,825 |
| 2022 | $368,325 | $72,500 | $0 | $440,825 | $440,825 |
Deed and Sales History
| 1 | 12/01/2025 | MISC | MISC | JEFFREY A & JENNIFER M STROH | JEFFREY A & JENNIFER M STROH | | | | 0 | LOT CONSOL |
| 2 | 02/13/2014 | SWD | Statutory Warranty Deed | GARY C OLSON | JEFFREY A & JENNIFER M STROH | | | $265,000.00 | 120778 | |
|   | |
| 3 | 12/17/1996 | SWD | Statutory Warranty Deed | CHORLTON, JAMES F/K BYRON | OLSON, GARY C/PATRICIA E | 0 | 0 | $10,000.00 | 81079 | 0 |
Payout Agreement
| No payout information available.. |