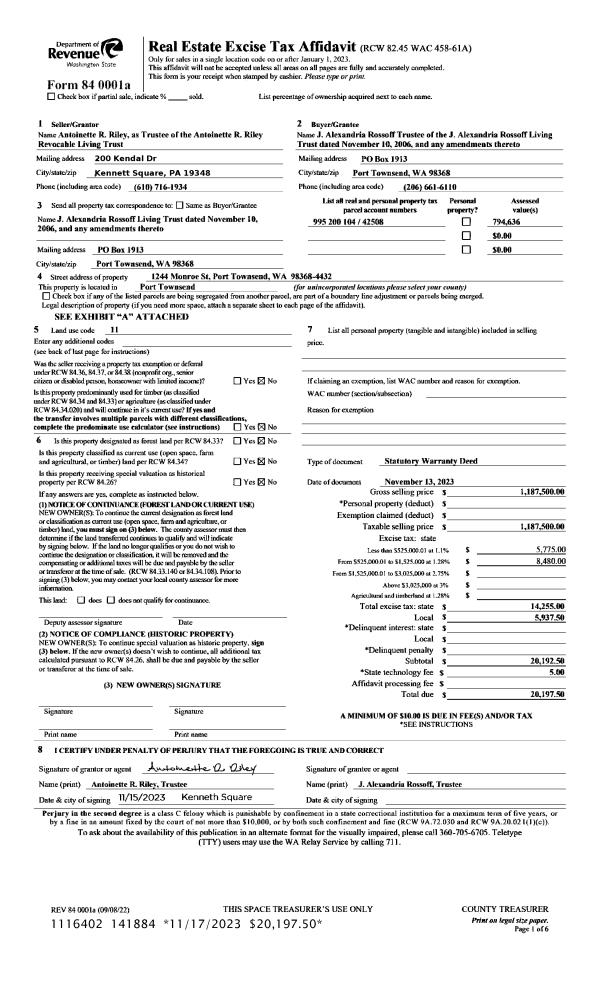
Property
Account |
| Property ID: | 42508 | Abbreviated Legal Description: | SMITH'S G. & M.A. ADDITION BLK 1 LOTS 5,6,7(N67'OF EA) |
| Parcel # / Geo ID: | 995200104 | Agent Code: | |
| Type: | Real | | |
| Tax Area: | 0110 - C-50F1E1H2 | Land Use Code | 11 |
| Open Space: | N | DFL | N |
| Historic Property: | N | Remodel Property: | N |
| Multi-Family Redevelopment: | N | | |
| Township: | 30N | Section: | 2 |
| Range: | 1W |
Location |
| Address: | 1244 MONROE ST PORT TOWNSEND, WA 98368 | Mapsco: | 132/006 |
| Neighborhood: | AL PETTYGROVE'S SMITH'S & DRUMMOND'S | Map ID: | |
| Neighborhood CD: | 6310 |
Owner |
| Name: | J ALEXANDRIA ROSSOFF LIVING TRUST | Owner ID: | 110016 |
| Mailing Address: | J ALEXANDRIA ROSSOFF TRUSTEE PO BOX 1913 PORT TOWNSEND, WA 98368-0063 | % Ownership: | 100.0000000000% |
| | | Exemptions: | |
Pay Tax Due
There is currently No Amount Due on this property.
Taxes and Assessment Details
Property Tax Information as of
03/11/2026
Click on "Statement Details" to expand or collapse a tax statement.
* Please enter a valid date ** Please enter a valid date *
Statement Details |
| | TOTAL: | $0.00 | $0.00 | $0.00 | $0.00 | $0.00 | $0.00 |
|
| | $0.00 | $0.00 | $0.00 | $0.00 | $0.00 | $0.00 |
Values
| (+) Improvement Homesite Value: | + | $0 | |
| (+) Improvement Non-Homesite Value: | + | $533,478 | |
| (+) Land Homesite Value: | + | $0 | |
| (+) Land Non-Homesite Value: | + | $525,000 | |
| (+) Curr Use (HS): | + | $0 | $0 |
| (+) Curr Use (NHS): | + | $0 | $0 |
| | | -------------------------- | |
| (=) Market Value: | = | $1,058,478 | |
| (–) Productivity Loss: | – | $0 | |
| | | -------------------------- | |
| (=) Subtotal: | = | $1,058,478 | |
| (+) Senior Appraised Value: | + | $0 | |
| (+) Non-Senior Appraised Value: | + | $1,058,478 | |
| | | -------------------------- | |
| (=) Total Appraised Value: | = | $1,058,478 | |
| (–) Senior Exemption Loss: | – | $0 | |
| (–) Exemption Loss: | – | $0 | |
| | | -------------------------- | |
| (=) Taxable Value: | = | $1,058,478 | |
Taxing Jurisdiction
| Owner: | J ALEXANDRIA ROSSOFF LIVING TRUST | | |
| % Ownership: | 100.0000000000% | | |
| Total Value: | $1,058,478 | | |
| Tax Area: | 0110 - C-50F1E1H2 |
| CE | COUNTY CURRENT EXPENSE | 0.9034619479 | $1,058,478 | $1,058,478 | $956.29 | | |
| CNTYDD | DEVELOPMENTAL DISABILITIES | 0.0052121823 | $1,058,478 | $1,058,478 | $5.52 | | |
| CNTYVET | VETERANS RELIEF | 0.0052777810 | $1,058,478 | $1,058,478 | $5.59 | | |
| MENTAL | MENTAL HEALTH | 0.0052121823 | $1,058,478 | $1,058,478 | $5.52 | | |
| PTGEN | CITY OF PT GENERAL | 0.8551967795 | $1,058,478 | $1,058,478 | $905.21 | | |
| PTLLL | CITY OF PT - LIBRARY LID LIFT | 0.4010114288 | $1,058,478 | $1,058,478 | $424.46 | | |
| PTMVBOND | CITY OF PT MV BOND | 0.0484717981 | $1,058,478 | $1,058,478 | $51.31 | | |
| HOSP2CASH | HOSP DIST #2 GENERAL | 0.0536075306 | $1,058,478 | $1,058,478 | $56.74 | | |
| SCH50BOND | SCHOOL DIST #50 BOND 2016 | 0.5377451389 | $1,058,478 | $1,058,478 | $569.19 | | |
| SCH50CP | SCHOOL DIST #50 CAP PROJ | 0.4573475088 | $1,058,478 | $1,058,478 | $484.09 | | |
| SCH50MO | SCHOOL DIST #50 EP & O | 0.8262822886 | $1,058,478 | $1,058,478 | $874.60 | | |
| CONSERVE | CONSERVATION FUTURES | 0.0275621078 | $1,058,478 | $1,058,478 | $29.17 | | |
| EMS1 | FIRE DIST #1 EMS | 0.4679948282 | $1,058,478 | $1,058,478 | $495.36 | | |
| FD1 | FIRE DIST #1 GENERAL | 1.2171942929 | $1,058,478 | $1,058,478 | $1,288.37 | | |
| PORTPT | PORT OF PT GENERAL | 0.1134941229 | $1,058,478 | $1,058,478 | $120.13 | | |
| PORTPTIDD | PORT OF PT IDD 2019 | 0.2577346692 | $1,058,478 | $1,058,478 | $272.81 | | |
| PUD1 | PUD #1 GENERAL | 0.0597888892 | $1,058,478 | $1,058,478 | $63.29 | | |
| STATE | STATE SCHOOL PART 1 | 1.4940692947 | $1,058,478 | $1,058,478 | $1,581.44 | | |
| STATE2 | STATE SCHOOL PART 2 | 0.8050170049 | $1,058,478 | $1,058,478 | $852.09 | | |
| | Total Tax Rate: | 8.5416817766 | | | | | |
| | | | | Taxes w/Current Exemptions: | $9,041.18 | | |
| | | | | Taxes w/o Exemptions: | $9,041.18 | | |
Improvement / Building
| Improvement #1: | Residential Bldg | State Code: | 11 | 1540.0 sqft | Value: | $533,478 |
| Bathrooms (#): | 2 (FULL) | Bedrooms (#): | 3 | | Exterior Wall: | SI/ST | Fireplace: | WD ST-GOOD | | Floor Construction: | FRAME | Foundation: | CONPR | | Heating/Cooling: | HTWTR | Inside Verify: | YES-FIX | | Roof Cover: | SHNGL |   |   |
|
| | Type | Description | Class CD | Sub Class CD | Year Built | Area |
| | MA | Main Area | 5 | 15SF | 1940 | 1330.0 |
| | MA2 | Second Floor Main Area | 5 | 15SF | 1940 | 210.0 |
| | HBAL | House Balcony | 4 | * | 1940 | 120.0 |
| | HCPOR | House Concrete Porch | 4 | * | 1940 | 39.0 |
| | HDECK | House Deck | 4 | * | 1940 | 920.0 |
| | SHED | Shed (Table Not Dep) | 4 | * | 1940 | 64.0 |
| | BSMTU | House basement unfinished | 2 | * | 1940 | 1120.0 |
Sketch
Property Image
Land
| 1 | 6310-1145L | Uptown Std Lot (Good View Area) | 0.0000 | 0.00 | 0.00 | 0.00 | 1.00 | $387,500 | $0 |
| 2 | 6310-1145L | Uptown Std Lot (Good View Area) | 0.0000 | 0.00 | 0.00 | 0.00 | 1.00 | $137,500 | $0 |
Roll Value History
| 2026 | N/A | N/A | N/A | N/A | N/A |
| 2025 | $533,478 | $525,000 | $0 | $1,058,478 | $1,058,478 |
| 2024 | $441,778 | $528,000 | $0 | $969,778 | $969,778 |
| 2023 | $374,636 | $420,000 | $0 | $794,636 | $794,636 |
| 2022 | $343,417 | $395,000 | $0 | $738,417 | $738,417 |
Deed and Sales History
| 1 | 11/13/2023 | SWD | Statutory Warranty Deed | ANTOINETTE R RILEY REVOCABLE LIVING TRUST | J ALEXANDRIA ROSSOFF LIVING TRUST | | | $1,187,500.00 | 141884 | |
| 2 | 09/23/2020 | QCD | Quit Claim Deed | ANTOINETTE R RILEY | ANTOINETTE R RILEY REVOCABLE LIVING TRUST | | | | 135179 | |
| 3 | 09/21/1998 | SWD | Statutory Warranty Deed | TOUR DU MONDE, DEE | RILEY, DAVID/ANTOINETTE | 0 | 0 | $327,000.00 | 85351 | 0 |
| 4 | 10/03/1995 | QCD | Quit Claim Deed | COUTO, ANTHONY M | COUTO, DEE | 0 | 0 | $0.00 | 77929 | 0 |
Payout Agreement
| No payout information available.. |