Property
Account |
| Property ID: | 42510 | Abbreviated Legal Description: | SMITH'S G. & M.A. ADDITION BLK 1 LOT 8(S72') |
| Parcel # / Geo ID: | 995200106 | Agent Code: | |
| Type: | Real | | |
| Tax Area: | 0110 - C-50F1E1H2 | Land Use Code | 11 |
| Open Space: | N | DFL | N |
| Historic Property: | N | Remodel Property: | N |
| Multi-Family Redevelopment: | N | | |
| Township: | 30N | Section: | 2 |
| Range: | 1W |
Location |
| Address: | 1231 JACKSON ST PORT TOWNSEND, WA 98368 | Mapsco: | 132/008 |
| Neighborhood: | AL PETTYGROVE'S SMITH'S & DRUMMOND'S | Map ID: | |
| Neighborhood CD: | 6310 |
Owner |
| Name: | THEODORE JASIK | Owner ID: | 113341 |
| Mailing Address: | 1231 JACKSON ST PORT TOWNSEND, WA 98368-4511 | % Ownership: | 100.0000000000% |
| | | Exemptions: | |
Pay Tax Due
There is currently No Amount Due on this property.
Taxes and Assessment Details
Property Tax Information as of
03/09/2026
Click on "Statement Details" to expand or collapse a tax statement.
* Please enter a valid date ** Please enter a valid date *
Statement Details |
| | TOTAL: | $0.00 | $0.00 | $0.00 | $0.00 | $0.00 | $0.00 |
|
| | $0.00 | $0.00 | $0.00 | $0.00 | $0.00 | $0.00 |
Values
| (+) Improvement Homesite Value: | + | $528,966 | |
| (+) Improvement Non-Homesite Value: | + | $33,537 | |
| (+) Land Homesite Value: | + | $290,000 | |
| (+) Land Non-Homesite Value: | + | $0 | |
| (+) Curr Use (HS): | + | $0 | $0 |
| (+) Curr Use (NHS): | + | $0 | $0 |
| | | -------------------------- | |
| (=) Market Value: | = | $852,503 | |
| (–) Productivity Loss: | – | $0 | |
| | | -------------------------- | |
| (=) Subtotal: | = | $852,503 | |
| (+) Senior Appraised Value: | + | $0 | |
| (+) Non-Senior Appraised Value: | + | $852,503 | |
| | | -------------------------- | |
| (=) Total Appraised Value: | = | $852,503 | |
| (–) Senior Exemption Loss: | – | $0 | |
| (–) Exemption Loss: | – | $0 | |
| | | -------------------------- | |
| (=) Taxable Value: | = | $852,503 | |
Taxing Jurisdiction
| Owner: | THEODORE JASIK | | |
| % Ownership: | 100.0000000000% | | |
| Total Value: | $852,503 | | |
| Tax Area: | 0110 - C-50F1E1H2 |
| CE | COUNTY CURRENT EXPENSE | 0.9034619479 | $852,503 | $852,503 | $770.20 | | |
| CNTYDD | DEVELOPMENTAL DISABILITIES | 0.0052121823 | $852,503 | $852,503 | $4.44 | | |
| CNTYVET | VETERANS RELIEF | 0.0052777810 | $852,503 | $852,503 | $4.50 | | |
| MENTAL | MENTAL HEALTH | 0.0052121823 | $852,503 | $852,503 | $4.44 | | |
| PTGEN | CITY OF PT GENERAL | 0.8551967795 | $852,503 | $852,503 | $729.06 | | |
| PTLLL | CITY OF PT - LIBRARY LID LIFT | 0.4010114288 | $852,503 | $852,503 | $341.86 | | |
| PTMVBOND | CITY OF PT MV BOND | 0.0484717981 | $852,503 | $852,503 | $41.32 | | |
| HOSP2CASH | HOSP DIST #2 GENERAL | 0.0536075306 | $852,503 | $852,503 | $45.70 | | |
| SCH50BOND | SCHOOL DIST #50 BOND 2016 | 0.5377451389 | $852,503 | $852,503 | $458.43 | | |
| SCH50CP | SCHOOL DIST #50 CAP PROJ | 0.4573475088 | $852,503 | $852,503 | $389.89 | | |
| SCH50MO | SCHOOL DIST #50 EP & O | 0.8262822886 | $852,503 | $852,503 | $704.41 | | |
| CONSERVE | CONSERVATION FUTURES | 0.0275621078 | $852,503 | $852,503 | $23.50 | | |
| EMS1 | FIRE DIST #1 EMS | 0.4679948282 | $852,503 | $852,503 | $398.97 | | |
| FD1 | FIRE DIST #1 GENERAL | 1.2171942929 | $852,503 | $852,503 | $1,037.66 | | |
| PORTPT | PORT OF PT GENERAL | 0.1134941229 | $852,503 | $852,503 | $96.75 | | |
| PORTPTIDD | PORT OF PT IDD 2019 | 0.2577346692 | $852,503 | $852,503 | $219.72 | | |
| PUD1 | PUD #1 GENERAL | 0.0597888892 | $852,503 | $852,503 | $50.97 | | |
| STATE | STATE SCHOOL PART 1 | 1.4940692947 | $852,503 | $852,503 | $1,273.70 | | |
| STATE2 | STATE SCHOOL PART 2 | 0.8050170049 | $852,503 | $852,503 | $686.28 | | |
| | Total Tax Rate: | 8.5416817766 | | | | | |
| | | | | Taxes w/Current Exemptions: | $7,281.80 | | |
| | | | | Taxes w/o Exemptions: | $7,281.80 | | |
Improvement / Building
| Improvement #1: | Residential Bldg | State Code: | 11 | 1652.0 sqft | Value: | $479,093 |
| Bathrooms (#): | 2 (FULL) | Bedrooms (#): | 3 | | Exterior Wall: | SI/ST | Fireplace: | WD ST-GOOD | | Floor Construction: | FRAME | Foundation: | CONPR | | Heating/Cooling: | F/A | Inside Verify: | YES-FIX | | Roof Cover: | COMP |   |   |
|
| | Type | Description | Class CD | Sub Class CD | Year Built | Area |
| | MA | Main Area | 5 | 15SF | 0 | 1043.0 |
| | MA2 | Second Floor Main Area | 5 | 15SF | 0 | 609.0 |
| | HWPOR | House Wood Porch | 5 | * | 0 | 116.0 |
| | SHED | Shed (Table Not Dep) | 5 | * | 0 | 96.0 |
| | OTHER | Other | 4 | * | 0 | 165.0 |
| Improvement #2: | Residential Bldg | State Code: | 11 | 180.0 sqft | Value: | $83,410 |
| Exterior Wall: | SI/ST | Inside Verify: | NO | | Interior Finish: | FIN | Roof Cover: | COMP |
|
Sketch
| No sketches available for this property. |
Property Image
Land
| 1 | 6310-1155L | Uptown Std Lot (View Area) | 0.0000 | 0.00 | 0.00 | 0.00 | 1.00 | $280,000 | $0 |
| 2 | 6310-1155L | Uptown Std Lot (View Area) | 0.0000 | 0.00 | 0.00 | 0.00 | 1.00 | $10,000 | $0 |
Roll Value History
| 2026 | N/A | N/A | N/A | N/A | N/A |
| 2025 | $562,503 | $290,000 | $0 | $852,503 | $852,503 |
| 2024 | $175,335 | $284,680 | $0 | $460,015 | $100,092 |
| 2023 | $168,321 | $266,490 | $0 | $434,811 | $99,618 |
| 2022 | $154,295 | $248,800 | $0 | $403,095 | $98,669 |
Deed and Sales History
| 1 | 09/15/2025 | SWD | Statutory Warranty Deed | J ALEXANDRIA ROSSOFF LIVING TRUST | THEODORE JASIK | | | $888,000.00 | 144941 | |
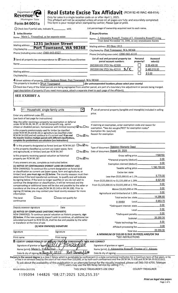
| 2 | 08/20/2025 | SWD | Statutory Warranty Deed | MARIE YOUSSEFIRAD | J ALEXANDRIA ROSSOFF LIVING TRUST | | | $1,190,750.00 | 144826 | |
|   | |
| 3 | 06/20/2013 | SWD | Statutory Warranty Deed | MARY F HEDBERG | FARIBORZ & MARIE YOUSSEFIRAD | | | $270,000.00 | 119494 | |
|   | |
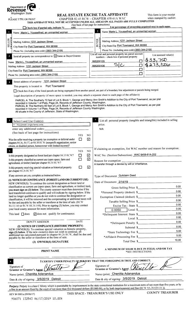
| 4 | 02/14/2000 | QCD | Quit Claim Deed | KENNEY, RICHARD L | HEDBERG, MARY F | 0 | 0 | $0.00 | 89224 | 0 |
| 5 | 11/26/1997 | QCD | Quit Claim Deed | COOPERMAN, D R/HARRIS, M | KENNEY, RICHARD/HEDBERG, MARY | 0 | 0 | $0.00 | 84236 | 0 |
Payout Agreement
| No payout information available.. |