Property
Account |
| Property ID: | 42522 | Abbreviated Legal Description: | SPRING VALLEY COTTAGES CONDO UNIT 6 TGTH W/PARKING SP 6 & STORAGE 6 |
| Parcel # / Geo ID: | 995300006 | Agent Code: | |
| Type: | Real | | |
| Tax Area: | 0110 - C-50F1E1H2 | Land Use Code | 14 |
| Open Space: | N | DFL | N |
| Historic Property: | N | Remodel Property: | N |
| Multi-Family Redevelopment: | N | | |
| Township: | 30N | Section: | 2 |
| Range: | 1W |
Location |
| Address: | 303 CASTELLANO WAY UNIT 6 PORT TOWNSEND, WA 98368 | Mapsco: | 132/035 |
| Neighborhood: | CYCLE 6 CONDOMINIUMS - PORT TOWNSEND | Map ID: | |
| Neighborhood CD: | 6900 |
Owner |
| Name: | ALLENE R NIEHAUS | Owner ID: | 106105 |
| Mailing Address: | 303 CASTELLANO WAY UNIT 6 PORT TOWNSEND, WA 98368 | % Ownership: | 100.0000000000% |
| | | Exemptions: | |
Pay Tax Due
Select the appropriate checkbox next to the year to be paid. Multiple years may be selected.
*Convenience Fee not included
Taxes and Assessment Details
Property Tax Information as of
03/11/2026
Click on "Statement Details" to expand or collapse a tax statement.
* Please enter a valid date ** Please enter a valid date *
Statement Details |
| 2026 | 31681 | STATE - STATE LEVY (SCHOOL) | $703.14 | $703.13 | $0.00 | $0.00 | $0.00 | $1406.27 |
| 2026 | 31681 | COUNTY - COUNTY LEVIES (CE, DD, VET, MH) | $281.13 | $281.09 | $0.00 | $0.00 | $0.00 | $562.22 |
| 2026 | 31681 | CONSERVE - CONSERVATION FUTURES | $8.43 | $8.43 | $0.00 | $0.00 | $0.00 | $16.86 |
| 2026 | 31681 | CITYPT - CITY OF PT | $399.02 | $399.00 | $0.00 | $0.00 | $0.00 | $798.02 |
| 2026 | 31681 | PORTPT - PORT DISTRICT | $113.54 | $113.53 | $0.00 | $0.00 | $0.00 | $227.07 |
| 2026 | 31681 | PUD1 - PUD #1 | $18.29 | $18.28 | $0.00 | $0.00 | $0.00 | $36.57 |
| 2026 | 31681 | HD2 - HOSP DIST #2 | $16.40 | $16.39 | $0.00 | $0.00 | $0.00 | $32.79 |
| 2026 | 31681 | SD50 - SCHOOL DIST #50 | $557.04 | $557.03 | $0.00 | $0.00 | $0.00 | $1114.07 |
| 2026 | 31681 | FD1 - FIRE DISTRICT #1 | $372.26 | $372.25 | $0.00 | $0.00 | $0.00 | $744.51 |
| 2026 | 31681 | EMS1 - FIRE DIST #1 EMS | $143.13 | $143.12 | $0.00 | $0.00 | $0.00 | $286.25 |
| 2026 | 31681 | JCCD - JC Conservation District | $2.55 | $2.55 | $0.00 | $0.00 | $0.00 | $5.10 |
| 2026 | 31681 | NWA - Noxious Weed Assessment | $2.98 | $2.97 | $0.00 | $0.00 | $0.00 | $5.95 |
| 2026 | 31681 | TOTAL: | $2617.91 | $2617.77 | $0.00 | $0.00 | $0.00 | $5235.68 |
|
| 2026 | 31681 | $2617.91 | $2617.77 | $0.00 | $0.00 | $0.00 | $5235.68 |
Statement Details |
| 2025 | 31754 | STATE - STATE LEVY (SCHOOL) | $675.04 | $675.04 | $0.00 | $0.00 | $1350.08 | $0.00 |
| 2025 | 31754 | COUNTY - COUNTY LEVIES (CE, DD, VET, MH) | $265.45 | $265.45 | $0.00 | $0.00 | $530.90 | $0.00 |
| 2025 | 31754 | CONSERVE - CONSERVATION FUTURES | $7.96 | $7.96 | $0.00 | $0.00 | $15.92 | $0.00 |
| 2025 | 31754 | CITYPT - CITY OF PT | $382.82 | $382.81 | $0.00 | $0.00 | $765.63 | $0.00 |
| 2025 | 31754 | PORTPT - PORT DISTRICT | $108.33 | $108.31 | $0.00 | $0.00 | $216.64 | $0.00 |
| 2025 | 31754 | PUD1 - PUD #1 | $17.37 | $17.37 | $0.00 | $0.00 | $34.74 | $0.00 |
| 2025 | 31754 | HD2 - HOSP DIST #2 | $15.49 | $15.48 | $0.00 | $0.00 | $30.97 | $0.00 |
| 2025 | 31754 | SD50 - SCHOOL DIST #50 | $493.35 | $493.34 | $0.00 | $0.00 | $986.69 | $0.00 |
| 2025 | 31754 | FD1 - FIRE DISTRICT #1 | $350.30 | $350.30 | $0.00 | $0.00 | $700.60 | $0.00 |
| 2025 | 31754 | EMS1 - FIRE DIST #1 EMS | $134.74 | $134.73 | $0.00 | $0.00 | $269.47 | $0.00 |
| 2025 | 31754 | JCCD - JC Conservation District | $2.55 | $2.55 | $0.00 | $0.00 | $5.10 | $0.00 |
| 2025 | 31754 | NWA - Noxious Weed Assessment | $2.15 | $2.15 | $0.00 | $0.00 | $4.30 | $0.00 |
| 2025 | 31754 | TOTAL: | $2455.55 | $2455.49 | $0.00 | $0.00 | $4911.04 | $0.00 |
|
| 2025 | 31754 | $2455.55 | $2455.49 | $0.00 | $0.00 | $4911.04 | $0.00 |
Statement Details |
| 2024 | 31813 | STATE - STATE LEVY (SCHOOL) | $599.90 | $599.89 | $0.00 | $0.00 | $1199.79 | $0.00 |
| 2024 | 31813 | COUNTY - COUNTY LEVIES (CE, DD, VET, MH) | $256.71 | $256.70 | $0.00 | $0.00 | $513.41 | $0.00 |
| 2024 | 31813 | CONSERVE - CONSERVATION FUTURES | $7.70 | $7.69 | $0.00 | $0.00 | $15.39 | $0.00 |
| 2024 | 31813 | CITYPT - CITY OF PT | $366.79 | $366.79 | $0.00 | $0.00 | $733.58 | $0.00 |
| 2024 | 31813 | PORTPT - PORT DISTRICT | $106.03 | $106.02 | $0.00 | $0.00 | $212.05 | $0.00 |
| 2024 | 31813 | PUD1 - PUD #1 | $16.86 | $16.86 | $0.00 | $0.00 | $33.72 | $0.00 |
| 2024 | 31813 | HD2 - HOSP DIST #2 | $14.98 | $14.98 | $0.00 | $0.00 | $29.96 | $0.00 |
| 2024 | 31813 | SD50 - SCHOOL DIST #50 | $485.35 | $485.34 | $0.00 | $0.00 | $970.69 | $0.00 |
| 2024 | 31813 | FD1 - FIRE DISTRICT #1 | $339.42 | $339.42 | $0.00 | $0.00 | $678.84 | $0.00 |
| 2024 | 31813 | EMS1 - FIRE DIST #1 EMS | $129.65 | $129.64 | $0.00 | $0.00 | $259.29 | $0.00 |
| 2024 | 31813 | JCCD - JC Conservation District | $2.55 | $2.55 | $0.00 | $0.00 | $5.10 | $0.00 |
| 2024 | 31813 | NWA - Noxious Weed Assessment | $2.15 | $2.15 | $0.00 | $0.00 | $4.30 | $0.00 |
| 2024 | 31813 | TOTAL: | $2328.09 | $2328.03 | $0.00 | $0.00 | $4656.12 | $0.00 |
|
| 2024 | 31813 | $2328.09 | $2328.03 | $0.00 | $0.00 | $4656.12 | $0.00 |
Statement Details |
| 2023 | 31855 | STATE - STATE LEVY (SCHOOL) | $600.06 | $600.05 | $0.00 | $0.00 | $1200.11 | $0.00 |
| 2023 | 31855 | COUNTY - COUNTY LEVIES (CE, DD, VET, MH) | $261.86 | $261.82 | $0.00 | $0.00 | $523.68 | $0.00 |
| 2023 | 31855 | CONSERVE - CONSERVATION FUTURES | $7.85 | $7.85 | $0.00 | $0.00 | $15.70 | $0.00 |
| 2023 | 31855 | CITYPT - CITY OF PT | $370.08 | $370.07 | $0.00 | $0.00 | $740.15 | $0.00 |
| 2023 | 31855 | PORTPT - PORT DISTRICT | $110.30 | $110.30 | $0.00 | $0.00 | $220.60 | $0.00 |
| 2023 | 31855 | PUD1 - PUD #1 | $17.36 | $17.35 | $0.00 | $0.00 | $34.71 | $0.00 |
| 2023 | 31855 | HD2 - HOSP DIST #2 | $15.28 | $15.28 | $0.00 | $0.00 | $30.56 | $0.00 |
| 2023 | 31855 | SD50 - SCHOOL DIST #50 | $476.16 | $476.14 | $0.00 | $0.00 | $952.30 | $0.00 |
| 2023 | 31855 | FD1 - FIRE DISTRICT #1 | $215.71 | $215.71 | $0.00 | $0.00 | $431.42 | $0.00 |
| 2023 | 31855 | EMS1 - FIRE DIST #1 EMS | $91.76 | $91.76 | $0.00 | $0.00 | $183.52 | $0.00 |
| 2023 | 31855 | JCCD - JC Conservation District | $2.55 | $2.55 | $0.00 | $0.00 | $5.10 | $0.00 |
| 2023 | 31855 | NWA - Noxious Weed Assessment | $2.15 | $2.15 | $0.00 | $0.00 | $4.30 | $0.00 |
| 2023 | 31855 | TOTAL: | $2171.12 | $2171.03 | $0.00 | $0.00 | $4342.15 | $0.00 |
|
| 2023 | 31855 | $2171.12 | $2171.03 | $0.00 | $0.00 | $4342.15 | $0.00 |
Values
| (+) Improvement Homesite Value: | + | $0 | |
| (+) Improvement Non-Homesite Value: | + | $441,662 | |
| (+) Land Homesite Value: | + | $0 | |
| (+) Land Non-Homesite Value: | + | $170,000 | |
| (+) Curr Use (HS): | + | $0 | $0 |
| (+) Curr Use (NHS): | + | $0 | $0 |
| | | -------------------------- | |
| (=) Market Value: | = | $611,662 | |
| (–) Productivity Loss: | – | $0 | |
| | | -------------------------- | |
| (=) Subtotal: | = | $611,662 | |
| (+) Senior Appraised Value: | + | $0 | |
| (+) Non-Senior Appraised Value: | + | $611,662 | |
| | | -------------------------- | |
| (=) Total Appraised Value: | = | $611,662 | |
| (–) Senior Exemption Loss: | – | $0 | |
| (–) Exemption Loss: | – | $0 | |
| | | -------------------------- | |
| (=) Taxable Value: | = | $611,662 | |
Taxing Jurisdiction
| Owner: | ALLENE R NIEHAUS | | |
| % Ownership: | 100.0000000000% | | |
| Total Value: | $611,662 | | |
| Tax Area: | 0110 - C-50F1E1H2 |
| CE | COUNTY CURRENT EXPENSE | 0.9034619479 | $611,662 | $611,662 | $552.61 | | |
| CNTYDD | DEVELOPMENTAL DISABILITIES | 0.0052121823 | $611,662 | $611,662 | $3.19 | | |
| CNTYVET | VETERANS RELIEF | 0.0052777810 | $611,662 | $611,662 | $3.23 | | |
| MENTAL | MENTAL HEALTH | 0.0052121823 | $611,662 | $611,662 | $3.19 | | |
| PTGEN | CITY OF PT GENERAL | 0.8551967795 | $611,662 | $611,662 | $523.09 | | |
| PTLLL | CITY OF PT - LIBRARY LID LIFT | 0.4010114288 | $611,662 | $611,662 | $245.28 | | |
| PTMVBOND | CITY OF PT MV BOND | 0.0484717981 | $611,662 | $611,662 | $29.65 | | |
| HOSP2CASH | HOSP DIST #2 GENERAL | 0.0536075306 | $611,662 | $611,662 | $32.79 | | |
| SCH50BOND | SCHOOL DIST #50 BOND 2016 | 0.5377451389 | $611,662 | $611,662 | $328.92 | | |
| SCH50CP | SCHOOL DIST #50 CAP PROJ | 0.4573475088 | $611,662 | $611,662 | $279.74 | | |
| SCH50MO | SCHOOL DIST #50 EP & O | 0.8262822886 | $611,662 | $611,662 | $505.41 | | |
| CONSERVE | CONSERVATION FUTURES | 0.0275621078 | $611,662 | $611,662 | $16.86 | | |
| EMS1 | FIRE DIST #1 EMS | 0.4679948282 | $611,662 | $611,662 | $286.25 | | |
| FD1 | FIRE DIST #1 GENERAL | 1.2171942929 | $611,662 | $611,662 | $744.51 | | |
| PORTPT | PORT OF PT GENERAL | 0.1134941229 | $611,662 | $611,662 | $69.42 | | |
| PORTPTIDD | PORT OF PT IDD 2019 | 0.2577346692 | $611,662 | $611,662 | $157.65 | | |
| PUD1 | PUD #1 GENERAL | 0.0597888892 | $611,662 | $611,662 | $36.57 | | |
| STATE | STATE SCHOOL PART 1 | 1.4940692947 | $611,662 | $611,662 | $913.87 | | |
| STATE2 | STATE SCHOOL PART 2 | 0.8050170049 | $611,662 | $611,662 | $492.40 | | |
| | Total Tax Rate: | 8.5416817766 | | | | | |
| | | | | Taxes w/Current Exemptions: | $5,224.63 | | |
| | | | | Taxes w/o Exemptions: | $5,224.63 | | |
Improvement / Building
| Improvement #1: | Residential Bldg | State Code: | 14 | 1143.0 sqft | Value: | $441,662 |
| Bathrooms (#): | 2 (FULL) | Bedrooms (#): | 2 | | Exterior Wall: | SI/ST | Floor Construction: | FRAME | | Foundation: | CONPR | Heating/Cooling: | ELBB | | Roof Cover: | COMP |   |   |
|
| | Type | Description | Class CD | Sub Class CD | Year Built | Area |
| | MA | Main Area | 5+ | 2S | 2007 | 735.0 |
| | MA2 | Second Floor Main Area | 5+ | 2S | 2007 | 408.0 |
| | HWPOR | House Wood Porch | 5 | * | 2007 | 96.0 |
| | HBAL | House Balcony | 5 | * | 2007 | 96.0 |
| | HDECK | House Deck | 5 | * | 2007 | 72.0 |
| | OTHER | Other | * | * | 2007 | 0.0 |
Sketch
| No sketches available for this property. |
Property Image
Land
| 1 | 9953-4115S | | 0.0000 | 0.00 | 0.00 | 0.00 | 1.00 | $170,000 | $0 |
Roll Value History
| 2026 | N/A | N/A | N/A | N/A | N/A |
| 2025 | $441,662 | $170,000 | $0 | $611,662 | $611,662 |
| 2024 | $412,998 | $150,000 | $0 | $562,998 | $562,998 |
| 2023 | $378,582 | $140,000 | $0 | $518,582 | $518,582 |
| 2022 | $374,781 | $135,000 | $0 | $509,781 | $509,781 |
Deed and Sales History
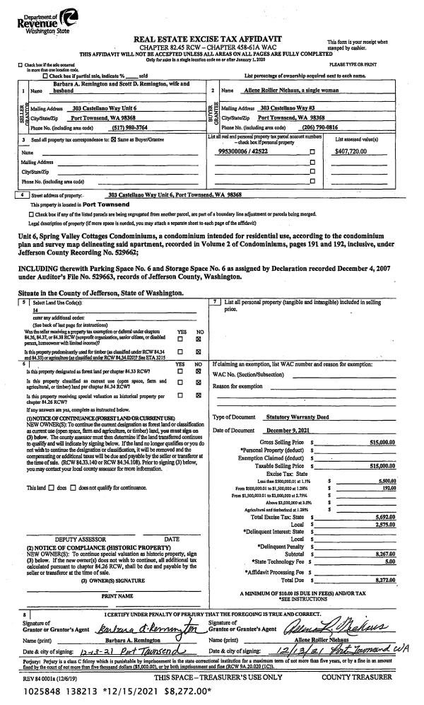
| 1 | 12/09/2021 | SWD | Statutory Warranty Deed | BARBARA A & SCOTT D REMINGTON | ALLENE R NIEHAUS | | | $515,000.00 | 138213 | |
| 2 | 12/13/2012 | SWD | Statutory Warranty Deed | FRED KIMBALL | BARBARA A & SCOTT D REMINGTON | | | $231,000.00 | 118494 | |
| 3 | 09/26/2012 | QCD | Quit Claim Deed | KIMBALL AND LANDIS LLC | KIMBALL, FRED/JANIE & LANDIS, | 0 | 0 | $0.00 | 118098 | 0 |
Payout Agreement
| No payout information available.. |