Property
Account |
| Property ID: | 42589 | Abbreviated Legal Description: | SNOW CREEK RANCH LOT 65 |
| Parcel # / Geo ID: | 995400062 | Agent Code: | |
| Type: | Real | | |
| Tax Area: | 0351 - 1-48F5E5H2C2L1 | Land Use Code | 18 |
| Open Space: | N | DFL | N |
| Historic Property: | N | Remodel Property: | N |
| Multi-Family Redevelopment: | N | | |
| Township: | 28N | Section: | 2 |
| Range: | 2W |
Location |
| Address: | | Mapsco: | 111/011 |
| Neighborhood: | SNOW CREEK RANCH & MITCHELL TRACT (ADJ LOT 64) | Map ID: | |
| Neighborhood CD: | 2615 |
Owner |
| Name: | KEVIN W AMO | Owner ID: | 91536 |
| Mailing Address: | 44 HIDDEN VALLEY RD QUILCENE, WA 98376-9541 | % Ownership: | 100.0000000000% |
| | | Exemptions: | |
Pay Tax Due
Select the appropriate checkbox next to the year to be paid. Multiple years may be selected.
*Convenience Fee not included
Taxes and Assessment Details
Property Tax Information as of
03/11/2026
Click on "Statement Details" to expand or collapse a tax statement.
* Please enter a valid date ** Please enter a valid date *
Statement Details |
| 2026 | 31748 | STATE - STATE LEVY (SCHOOL) | $40.14 | $40.13 | $0.00 | $0.00 | $0.00 | $80.27 |
| 2026 | 31748 | COUNTY - COUNTY LEVIES (CE, DD, VET, MH) | $16.04 | $16.04 | $0.00 | $0.00 | $0.00 | $32.08 |
| 2026 | 31748 | CONSERVE - CONSERVATION FUTURES | $0.48 | $0.48 | $0.00 | $0.00 | $0.00 | $0.96 |
| 2026 | 31748 | COROADS - COUNTY ROADS (ROADS, DIV TO CE) | $12.95 | $12.94 | $0.00 | $0.00 | $0.00 | $25.89 |
| 2026 | 31748 | PORTPT - PORT DISTRICT | $6.48 | $6.48 | $0.00 | $0.00 | $0.00 | $12.96 |
| 2026 | 31748 | PUD1 - PUD #1 | $1.05 | $1.04 | $0.00 | $0.00 | $0.00 | $2.09 |
| 2026 | 31748 | LIB1 - LIBRARY DIST #1 | $5.01 | $5.01 | $0.00 | $0.00 | $0.00 | $10.02 |
| 2026 | 31748 | HD2 - HOSP DIST #2 | $0.94 | $0.93 | $0.00 | $0.00 | $0.00 | $1.87 |
| 2026 | 31748 | SD48 - SCHOOL DIST #48 | $24.65 | $24.65 | $0.00 | $0.00 | $0.00 | $49.30 |
| 2026 | 31748 | FD5 - FIRE DISTRICT #5 | $18.65 | $18.65 | $0.00 | $0.00 | $0.00 | $37.30 |
| 2026 | 31748 | EMS5 - FIRE DIST #5 EMS | $6.66 | $6.65 | $0.00 | $0.00 | $0.00 | $13.31 |
| 2026 | 31748 | CEM2 - CEMETERY DIST #2 | $0.42 | $0.42 | $0.00 | $0.00 | $0.00 | $0.84 |
| 2026 | 31748 | JCCD - JC Conservation District | $2.53 | $2.53 | $0.00 | $0.00 | $0.00 | $5.06 |
| 2026 | 31748 | NWA - Noxious Weed Assessment | $2.98 | $2.97 | $0.00 | $0.00 | $0.00 | $5.95 |
| 2026 | 31748 | WAT - Clean Water District | $13.00 | $13.00 | $0.00 | $0.00 | $0.00 | $26.00 |
| 2026 | 31748 | TOTAL: | $151.98 | $151.92 | $0.00 | $0.00 | $0.00 | $303.90 |
|
| 2026 | 31748 | $151.98 | $151.92 | $0.00 | $0.00 | $0.00 | $303.90 |
Statement Details |
| 2025 | 31821 | STATE - STATE LEVY (SCHOOL) | $40.04 | $40.04 | $0.00 | $0.00 | $80.08 | $0.00 |
| 2025 | 31821 | COUNTY - COUNTY LEVIES (CE, DD, VET, MH) | $15.75 | $15.75 | $0.00 | $0.00 | $31.50 | $0.00 |
| 2025 | 31821 | CONSERVE - CONSERVATION FUTURES | $0.47 | $0.47 | $0.00 | $0.00 | $0.94 | $0.00 |
| 2025 | 31821 | COROADS - COUNTY ROADS (ROADS, DIV TO CE) | $12.62 | $12.61 | $0.00 | $0.00 | $25.23 | $0.00 |
| 2025 | 31821 | PORTPT - PORT DISTRICT | $6.43 | $6.42 | $0.00 | $0.00 | $12.85 | $0.00 |
| 2025 | 31821 | PUD1 - PUD #1 | $1.03 | $1.03 | $0.00 | $0.00 | $2.06 | $0.00 |
| 2025 | 31821 | LIB1 - LIBRARY DIST #1 | $4.88 | $4.88 | $0.00 | $0.00 | $9.76 | $0.00 |
| 2025 | 31821 | HD2 - HOSP DIST #2 | $0.92 | $0.92 | $0.00 | $0.00 | $1.84 | $0.00 |
| 2025 | 31821 | SD48 - SCHOOL DIST #48 | $23.58 | $23.58 | $0.00 | $0.00 | $47.16 | $0.00 |
| 2025 | 31821 | FD5 - FIRE DISTRICT #5 | $18.39 | $18.39 | $0.00 | $0.00 | $36.78 | $0.00 |
| 2025 | 31821 | EMS5 - FIRE DIST #5 EMS | $6.54 | $6.54 | $0.00 | $0.00 | $13.08 | $0.00 |
| 2025 | 31821 | CEM2 - CEMETERY DIST #2 | $0.42 | $0.41 | $0.00 | $0.00 | $0.83 | $0.00 |
| 2025 | 31821 | JCCD - JC Conservation District | $2.55 | $2.55 | $0.00 | $0.00 | $5.10 | $0.00 |
| 2025 | 31821 | NWA - Noxious Weed Assessment | $2.15 | $2.15 | $0.00 | $0.00 | $4.30 | $0.00 |
| 2025 | 31821 | WAT - Clean Water District | $13.00 | $13.00 | $0.00 | $0.00 | $26.00 | $0.00 |
| 2025 | 31821 | TOTAL: | $148.77 | $148.74 | $0.00 | $0.00 | $297.51 | $0.00 |
|
| 2025 | 31821 | $148.77 | $148.74 | $0.00 | $0.00 | $297.51 | $0.00 |
Statement Details |
| 2024 | 31880 | STATE - STATE LEVY (SCHOOL) | $36.89 | $36.87 | $0.00 | $0.00 | $73.76 | $0.00 |
| 2024 | 31880 | COUNTY - COUNTY LEVIES (CE, DD, VET, MH) | $15.78 | $15.78 | $0.00 | $0.00 | $31.56 | $0.00 |
| 2024 | 31880 | CONSERVE - CONSERVATION FUTURES | $0.48 | $0.47 | $0.00 | $0.00 | $0.95 | $0.00 |
| 2024 | 31880 | COROADS - COUNTY ROADS (ROADS, DIV TO CE) | $12.70 | $12.70 | $0.00 | $0.00 | $25.40 | $0.00 |
| 2024 | 31880 | PORTPT - PORT DISTRICT | $6.52 | $6.52 | $0.00 | $0.00 | $13.04 | $0.00 |
| 2024 | 31880 | PUD1 - PUD #1 | $1.04 | $1.03 | $0.00 | $0.00 | $2.07 | $0.00 |
| 2024 | 31880 | LIB1 - LIBRARY DIST #1 | $4.92 | $4.91 | $0.00 | $0.00 | $9.83 | $0.00 |
| 2024 | 31880 | HD2 - HOSP DIST #2 | $0.92 | $0.92 | $0.00 | $0.00 | $1.84 | $0.00 |
| 2024 | 31880 | SD48 - SCHOOL DIST #48 | $16.52 | $16.51 | $0.00 | $0.00 | $33.03 | $0.00 |
| 2024 | 31880 | FD5 - FIRE DISTRICT #5 | $18.44 | $18.43 | $0.00 | $0.00 | $36.87 | $0.00 |
| 2024 | 31880 | EMS5 - FIRE DIST #5 EMS | $6.33 | $6.33 | $0.00 | $0.00 | $12.66 | $0.00 |
| 2024 | 31880 | CEM2 - CEMETERY DIST #2 | $0.42 | $0.42 | $0.00 | $0.00 | $0.84 | $0.00 |
| 2024 | 31880 | JCCD - JC Conservation District | $2.55 | $2.55 | $0.00 | $0.00 | $5.10 | $0.00 |
| 2024 | 31880 | NWA - Noxious Weed Assessment | $2.15 | $2.15 | $0.00 | $0.00 | $4.30 | $0.00 |
| 2024 | 31880 | WAT - Clean Water District | $12.50 | $12.50 | $0.00 | $0.00 | $25.00 | $0.00 |
| 2024 | 31880 | TOTAL: | $138.16 | $138.09 | $0.00 | $0.00 | $276.25 | $0.00 |
|
| 2024 | 31880 | $138.16 | $138.09 | $0.00 | $0.00 | $276.25 | $0.00 |
Statement Details |
| 2023 | 31922 | STATE - STATE LEVY (SCHOOL) | $35.72 | $35.71 | $0.00 | $0.00 | $71.43 | $0.00 |
| 2023 | 31922 | COUNTY - COUNTY LEVIES (CE, DD, VET, MH) | $15.59 | $15.59 | $0.00 | $0.00 | $31.18 | $0.00 |
| 2023 | 31922 | CONSERVE - CONSERVATION FUTURES | $0.47 | $0.46 | $0.00 | $0.00 | $0.93 | $0.00 |
| 2023 | 31922 | COROADS - COUNTY ROADS (ROADS, DIV TO CE) | $12.61 | $12.61 | $0.00 | $0.00 | $25.22 | $0.00 |
| 2023 | 31922 | PORTPT - PORT DISTRICT | $6.57 | $6.56 | $0.00 | $0.00 | $13.13 | $0.00 |
| 2023 | 31922 | PUD1 - PUD #1 | $1.04 | $1.03 | $0.00 | $0.00 | $2.07 | $0.00 |
| 2023 | 31922 | LIB1 - LIBRARY DIST #1 | $4.88 | $4.88 | $0.00 | $0.00 | $9.76 | $0.00 |
| 2023 | 31922 | HD2 - HOSP DIST #2 | $0.92 | $0.90 | $0.00 | $0.00 | $1.82 | $0.00 |
| 2023 | 31922 | SD48 - SCHOOL DIST #48 | $17.25 | $17.25 | $0.00 | $0.00 | $34.50 | $0.00 |
| 2023 | 31922 | FD5 - FIRE DISTRICT #5 | $18.56 | $18.54 | $0.00 | $0.00 | $37.10 | $0.00 |
| 2023 | 31922 | EMS5 - FIRE DIST #5 EMS | $6.10 | $6.09 | $0.00 | $0.00 | $12.19 | $0.00 |
| 2023 | 31922 | CEM2 - CEMETERY DIST #2 | $0.43 | $0.43 | $0.00 | $0.00 | $0.86 | $0.00 |
| 2023 | 31922 | JCCD - JC Conservation District | $2.55 | $2.55 | $0.00 | $0.00 | $5.10 | $0.00 |
| 2023 | 31922 | NWA - Noxious Weed Assessment | $2.15 | $2.15 | $0.00 | $0.00 | $4.30 | $0.00 |
| 2023 | 31922 | WAT - Clean Water District | $12.00 | $12.00 | $0.00 | $0.00 | $24.00 | $0.00 |
| 2023 | 31922 | TOTAL: | $136.84 | $136.75 | $0.00 | $0.00 | $273.59 | $0.00 |
|
| 2023 | 31922 | $136.84 | $136.75 | $0.00 | $0.00 | $273.59 | $0.00 |
Values
| (+) Improvement Homesite Value: | + | $0 | |
| (+) Improvement Non-Homesite Value: | + | $414 | |
| (+) Land Homesite Value: | + | $0 | |
| (+) Land Non-Homesite Value: | + | $34,500 | |
| (+) Curr Use (HS): | + | $0 | $0 |
| (+) Curr Use (NHS): | + | $0 | $0 |
| | | -------------------------- | |
| (=) Market Value: | = | $34,914 | |
| (–) Productivity Loss: | – | $0 | |
| | | -------------------------- | |
| (=) Subtotal: | = | $34,914 | |
| (+) Senior Appraised Value: | + | $0 | |
| (+) Non-Senior Appraised Value: | + | $34,914 | |
| | | -------------------------- | |
| (=) Total Appraised Value: | = | $34,914 | |
| (–) Senior Exemption Loss: | – | $0 | |
| (–) Exemption Loss: | – | $0 | |
| | | -------------------------- | |
| (=) Taxable Value: | = | $34,914 | |
Taxing Jurisdiction
| Owner: | KEVIN W AMO | | |
| % Ownership: | 100.0000000000% | | |
| Total Value: | $34,914 | | |
| Tax Area: | 0351 - 1-48F5E5H2C2L1 |
| CE | COUNTY CURRENT EXPENSE | 0.9034619479 | $34,914 | $34,914 | $31.54 | | |
| CNTYDD | DEVELOPMENTAL DISABILITIES | 0.0052121823 | $34,914 | $34,914 | $0.18 | | |
| CNTYVET | VETERANS RELIEF | 0.0052777810 | $34,914 | $34,914 | $0.18 | | |
| MENTAL | MENTAL HEALTH | 0.0052121823 | $34,914 | $34,914 | $0.18 | | |
| ROADS | COUNTY ROADS | 0.7415066410 | $34,914 | $34,914 | $25.89 | | |
| ROADSCU | COUNTY ROADS TO CUR EXP | 0.0000000000 | $34,914 | $34,914 | $0.00 | | |
| HOSP2CASH | HOSP DIST #2 GENERAL | 0.0536075306 | $34,914 | $34,914 | $1.87 | | |
| SCH48MO | SCHOOL DIST #48 EP & O | 1.4120478917 | $34,914 | $34,914 | $49.30 | | |
| CEM2 | CEMETERY DIST #2 GENERAL | 0.0241266154 | $34,914 | $34,914 | $0.84 | | |
| CONSERVE | CONSERVATION FUTURES | 0.0275621078 | $34,914 | $34,914 | $0.96 | | |
| EMS5 | FIRE DIST #5 EMS | 0.3811607070 | $34,914 | $34,914 | $13.31 | | |
| FD5 | FIRE DIST #5 GENERAL | 0.8460827285 | $34,914 | $34,914 | $29.54 | | |
| FD5BOND | FIRE DIST #5 BOND 2016 | 0.2222840608 | $34,914 | $34,914 | $7.76 | | |
| LIB1 | LIBRARY DIST #1 GENERAL | 0.2868827388 | $34,914 | $34,914 | $10.02 | | |
| PORTPT | PORT OF PT GENERAL | 0.1134941229 | $34,914 | $34,914 | $3.96 | | |
| PORTPTIDD | PORT OF PT IDD 2019 | 0.2577346692 | $34,914 | $34,914 | $9.00 | | |
| PUD1 | PUD #1 GENERAL | 0.0597888892 | $34,914 | $34,914 | $2.09 | | |
| STATE | STATE SCHOOL PART 1 | 1.4940692947 | $34,914 | $34,914 | $52.16 | | |
| STATE2 | STATE SCHOOL PART 2 | 0.8050170049 | $34,914 | $34,914 | $28.11 | | |
| | Total Tax Rate: | 7.6445290960 | | | | | |
| | | | | Taxes w/Current Exemptions: | $266.89 | | |
| | | | | Taxes w/o Exemptions: | $266.89 | | |
Improvement / Building
| Improvement #1: | Residential Bldg | State Code: | 19 | 0.0 sqft | Value: | $414 |
Sketch
Property Image
Land
| 1 | 2615-1165L | | 0.0000 | 0.00 | 0.00 | 0.00 | 1.00 | $34,500 | $0 |
Roll Value History
| 2026 | N/A | N/A | N/A | N/A | N/A |
| 2025 | $414 | $34,500 | $0 | $34,914 | $34,914 |
| 2024 | $397 | $33,000 | $0 | $33,397 | $33,397 |
| 2023 | $380 | $31,500 | $0 | $31,880 | $31,880 |
| 2022 | $345 | $30,000 | $0 | $30,345 | $30,345 |
Deed and Sales History
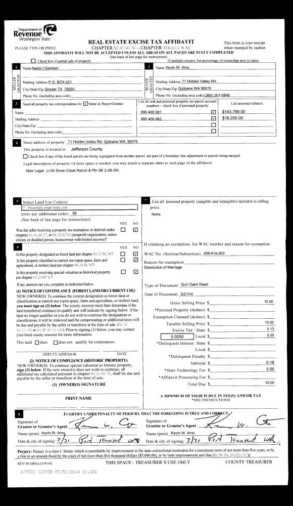
| 1 | 03/21/2014 | QCD | Quit Claim Deed | | | | | | 120938 | |
| 2 | 08/07/2002 | SWD | Statutory Warranty Deed | HARRY L/JEWELL CLINE ATWE | KEVIN W/NELDA L AMO | 0 | 0 | $147,500.00 | 95355 | 0 |
|   | |
| 3 | 12/09/1996 | QCD | Quit Claim Deed | ANNIS, BILL G/MARLYS | ATWELL, HARRY L | 0 | 0 | $4,000.00 | 80933 | 0 |
| 4 | 06/18/1996 | QCD | Quit Claim Deed | ANNIS, WILLIAM W/TIM D | ANNIS, BILL G/MARLYS | 0 | 0 | $0.00 | 79743 | 0 |
| 5 | 12/30/1992 | QCD | Quit Claim Deed | ANNIS, BILL/MARLYS | ANNIS, WILLIAM W/TIM D | 0 | 0 | $0.00 | 70266 | 0 |
Payout Agreement
| No payout information available.. |