Property
Account |
| Property ID: | 42644 | Abbreviated Legal Description: | SOUTH BAY #1 LOT 8 |
| Parcel # / Geo ID: | 995500008 | Agent Code: | |
| Type: | Real | | |
| Tax Area: | 0213 - 1-49F1E1H2L1 | Land Use Code | 11 |
| Open Space: | N | DFL | N |
| Historic Property: | N | Remodel Property: | N |
| Multi-Family Redevelopment: | N | | |
| Township: | 28N | Section: | 21 |
| Range: | 1E |
Location |
| Address: | 203 HIGHLAND DR PORT LUDLOW, WA 98365 | Mapsco: | 125/008 |
| Neighborhood: | SOUTH BAY 1, 2, & 3; EDGEWOOD AND GREENVIEW VILLAGES | Map ID: | |
| Neighborhood CD: | 3355 |
Owner |
| Name: | JAMES G LANZANO | Owner ID: | 109752 |
| Mailing Address: | 203 HIGHLAND DRIVE PORT LUDLOW, WA 98365-3458 | % Ownership: | 100.0000000000% |
| | | Exemptions: | |
Pay Tax Due
Select the appropriate checkbox next to the year to be paid. Multiple years may be selected.
*Convenience Fee not included
Taxes and Assessment Details
Property Tax Information as of
03/10/2026
Click on "Statement Details" to expand or collapse a tax statement.
* Please enter a valid date ** Please enter a valid date *
Statement Details |
| 2026 | 31803 | STATE - STATE LEVY (SCHOOL) | $578.13 | $578.13 | $0.00 | $0.00 | $0.00 | $1156.26 |
| 2026 | 31803 | COUNTY - COUNTY LEVIES (CE, DD, VET, MH) | $231.14 | $231.12 | $0.00 | $0.00 | $0.00 | $462.26 |
| 2026 | 31803 | CONSERVE - CONSERVATION FUTURES | $6.93 | $6.93 | $0.00 | $0.00 | $0.00 | $13.86 |
| 2026 | 31803 | COROADS - COUNTY ROADS (ROADS, DIV TO CE) | $186.46 | $186.46 | $0.00 | $0.00 | $0.00 | $372.92 |
| 2026 | 31803 | PORTPT - PORT DISTRICT | $93.35 | $93.35 | $0.00 | $0.00 | $0.00 | $186.70 |
| 2026 | 31803 | PUD1 - PUD #1 | $15.04 | $15.03 | $0.00 | $0.00 | $0.00 | $30.07 |
| 2026 | 31803 | LIB1 - LIBRARY DIST #1 | $72.14 | $72.14 | $0.00 | $0.00 | $0.00 | $144.28 |
| 2026 | 31803 | HD2 - HOSP DIST #2 | $13.48 | $13.48 | $0.00 | $0.00 | $0.00 | $26.96 |
| 2026 | 31803 | SD49 - SCHOOL DIST #49 | $318.25 | $318.23 | $0.00 | $0.00 | $0.00 | $636.48 |
| 2026 | 31803 | FD1 - FIRE DISTRICT #1 | $306.08 | $306.08 | $0.00 | $0.00 | $0.00 | $612.16 |
| 2026 | 31803 | EMS1 - FIRE DIST #1 EMS | $117.69 | $117.68 | $0.00 | $0.00 | $0.00 | $235.37 |
| 2026 | 31803 | FP - DNR Forest Fire Protection Assmt | $8.50 | $8.50 | $0.00 | $0.00 | $0.00 | $17.00 |
| 2026 | 31803 | FPLCA - DNR Landowner Contingency Assmt | $3.00 | $3.00 | $0.00 | $0.00 | $0.00 | $6.00 |
| 2026 | 31803 | JCCD - JC Conservation District | $2.55 | $2.55 | $0.00 | $0.00 | $0.00 | $5.10 |
| 2026 | 31803 | NWA - Noxious Weed Assessment | $2.98 | $2.97 | $0.00 | $0.00 | $0.00 | $5.95 |
| 2026 | 31803 | WAT - Clean Water District | $13.00 | $13.00 | $0.00 | $0.00 | $0.00 | $26.00 |
| 2026 | 31803 | FP ADMIN - FP ADMIN | $0.50 | $0.00 | $0.00 | $0.00 | $0.00 | $0.50 |
| 2026 | 31803 | TOTAL: | $1969.22 | $1968.65 | $0.00 | $0.00 | $0.00 | $3937.87 |
|
| 2026 | 31803 | $1969.22 | $1968.65 | $0.00 | $0.00 | $0.00 | $3937.87 |
Statement Details |
| 2025 | 31876 | STATE - STATE LEVY (SCHOOL) | $243.09 | $243.09 | $0.00 | $0.00 | $486.18 | $0.00 |
| 2025 | 31876 | COUNTY - COUNTY LEVIES (CE, DD, VET, MH) | $95.60 | $95.59 | $0.00 | $0.00 | $191.19 | $0.00 |
| 2025 | 31876 | CONSERVE - CONSERVATION FUTURES | $2.87 | $2.86 | $0.00 | $0.00 | $5.73 | $0.00 |
| 2025 | 31876 | COROADS - COUNTY ROADS (ROADS, DIV TO CE) | $76.60 | $76.58 | $0.00 | $0.00 | $153.18 | $0.00 |
| 2025 | 31876 | PORTPT - PORT DISTRICT | $39.02 | $39.00 | $0.00 | $0.00 | $78.02 | $0.00 |
| 2025 | 31876 | PUD1 - PUD #1 | $6.26 | $6.25 | $0.00 | $0.00 | $12.51 | $0.00 |
| 2025 | 31876 | LIB1 - LIBRARY DIST #1 | $29.63 | $29.63 | $0.00 | $0.00 | $59.26 | $0.00 |
| 2025 | 31876 | HD2 - HOSP DIST #2 | $5.58 | $5.57 | $0.00 | $0.00 | $11.15 | $0.00 |
| 2025 | 31876 | SD49 - SCHOOL DIST #49 | $130.29 | $130.27 | $0.00 | $0.00 | $260.56 | $0.00 |
| 2025 | 31876 | FD1 - FIRE DISTRICT #1 | $126.15 | $126.14 | $0.00 | $0.00 | $252.29 | $0.00 |
| 2025 | 31876 | EMS1 - FIRE DIST #1 EMS | $48.52 | $48.52 | $0.00 | $0.00 | $97.04 | $0.00 |
| 2025 | 31876 | FP - DNR Forest Fire Protection Assmt | $8.50 | $8.50 | $0.00 | $0.00 | $17.00 | $0.00 |
| 2025 | 31876 | FPLCA - DNR Landowner Contingency Assmt | $3.00 | $3.00 | $0.00 | $0.00 | $6.00 | $0.00 |
| 2025 | 31876 | JCCD - JC Conservation District | $2.55 | $2.55 | $0.00 | $0.00 | $5.10 | $0.00 |
| 2025 | 31876 | NWA - Noxious Weed Assessment | $2.15 | $2.15 | $0.00 | $0.00 | $4.30 | $0.00 |
| 2025 | 31876 | WAT - Clean Water District | $13.00 | $13.00 | $0.00 | $0.00 | $26.00 | $0.00 |
| 2025 | 31876 | FP ADMIN - FP ADMIN | $0.50 | $0.00 | $0.00 | $0.00 | $0.50 | $0.00 |
| 2025 | 31876 | TOTAL: | $833.31 | $832.70 | $0.00 | $0.00 | $1666.01 | $0.00 |
|
| 2025 | 31876 | $833.31 | $832.70 | $0.00 | $0.00 | $1666.01 | $0.00 |
Statement Details |
| 2024 | 31935 | STATE - STATE LEVY (SCHOOL) | $86.76 | $86.76 | $0.00 | $0.00 | $173.52 | $0.00 |
| 2024 | 31935 | COUNTY - COUNTY LEVIES (CE, DD, VET, MH) | $37.13 | $37.12 | $0.00 | $0.00 | $74.25 | $0.00 |
| 2024 | 31935 | CONSERVE - CONSERVATION FUTURES | $1.12 | $1.11 | $0.00 | $0.00 | $2.23 | $0.00 |
| 2024 | 31935 | COROADS - COUNTY ROADS (ROADS, DIV TO CE) | $29.88 | $29.87 | $0.00 | $0.00 | $59.75 | $0.00 |
| 2024 | 31935 | PORTPT - PORT DISTRICT | $15.34 | $15.33 | $0.00 | $0.00 | $30.67 | $0.00 |
| 2024 | 31935 | PUD1 - PUD #1 | $2.44 | $2.44 | $0.00 | $0.00 | $4.88 | $0.00 |
| 2024 | 31935 | LIB1 - LIBRARY DIST #1 | $11.56 | $11.56 | $0.00 | $0.00 | $23.12 | $0.00 |
| 2024 | 31935 | HD2 - HOSP DIST #2 | $2.17 | $2.16 | $0.00 | $0.00 | $4.33 | $0.00 |
| 2024 | 31935 | SD49 - SCHOOL DIST #49 | $38.74 | $38.74 | $0.00 | $0.00 | $77.48 | $0.00 |
| 2024 | 31935 | FD1 - FIRE DISTRICT #1 | $49.09 | $49.09 | $0.00 | $0.00 | $98.18 | $0.00 |
| 2024 | 31935 | EMS1 - FIRE DIST #1 EMS | $18.75 | $18.75 | $0.00 | $0.00 | $37.50 | $0.00 |
| 2024 | 31935 | FP - DNR Forest Fire Protection Assmt | $8.50 | $8.50 | $0.00 | $0.00 | $17.00 | $0.00 |
| 2024 | 31935 | FPLCA - DNR Landowner Contingency Assmt | $3.00 | $3.00 | $0.00 | $0.00 | $6.00 | $0.00 |
| 2024 | 31935 | JCCD - JC Conservation District | $2.53 | $2.53 | $0.00 | $0.00 | $5.06 | $0.00 |
| 2024 | 31935 | NWA - Noxious Weed Assessment | $2.15 | $2.15 | $0.00 | $0.00 | $4.30 | $0.00 |
| 2024 | 31935 | WAT - Clean Water District | $12.50 | $12.50 | $0.00 | $0.00 | $25.00 | $0.00 |
| 2024 | 31935 | FP ADMIN - FP ADMIN | $0.50 | $0.00 | $0.00 | $0.00 | $0.50 | $0.00 |
| 2024 | 31935 | TOTAL: | $322.16 | $321.61 | $0.00 | $0.00 | $643.77 | $0.00 |
|
| 2024 | 31935 | $322.16 | $321.61 | $0.00 | $0.00 | $643.77 | $0.00 |
Statement Details |
| 2023 | 31977 | STATE - STATE LEVY (SCHOOL) | $88.29 | $88.27 | $0.00 | $0.00 | $176.56 | $0.00 |
| 2023 | 31977 | COUNTY - COUNTY LEVIES (CE, DD, VET, MH) | $38.53 | $38.52 | $0.00 | $0.00 | $77.05 | $0.00 |
| 2023 | 31977 | CONSERVE - CONSERVATION FUTURES | $1.16 | $1.15 | $0.00 | $0.00 | $2.31 | $0.00 |
| 2023 | 31977 | COROADS - COUNTY ROADS (ROADS, DIV TO CE) | $31.18 | $31.16 | $0.00 | $0.00 | $62.34 | $0.00 |
| 2023 | 31977 | PORTPT - PORT DISTRICT | $16.23 | $16.22 | $0.00 | $0.00 | $32.45 | $0.00 |
| 2023 | 31977 | PUD1 - PUD #1 | $2.56 | $2.55 | $0.00 | $0.00 | $5.11 | $0.00 |
| 2023 | 31977 | LIB1 - LIBRARY DIST #1 | $12.06 | $12.06 | $0.00 | $0.00 | $24.12 | $0.00 |
| 2023 | 31977 | HD2 - HOSP DIST #2 | $2.25 | $2.24 | $0.00 | $0.00 | $4.49 | $0.00 |
| 2023 | 31977 | SD49 - SCHOOL DIST #49 | $41.27 | $41.26 | $0.00 | $0.00 | $82.53 | $0.00 |
| 2023 | 31977 | FD3 - FIRE DISTRICT #3 | $38.33 | $38.32 | $0.00 | $0.00 | $76.65 | $0.00 |
| 2023 | 31977 | EMS3 - FIRE DIST #3 EMS | $13.70 | $13.70 | $0.00 | $0.00 | $27.40 | $0.00 |
| 2023 | 31977 | FP - DNR Forest Fire Protection Assmt | $8.50 | $8.50 | $0.00 | $0.00 | $17.00 | $0.00 |
| 2023 | 31977 | FPLCA - DNR Landowner Contingency Assmt | $3.00 | $3.00 | $0.00 | $0.00 | $6.00 | $0.00 |
| 2023 | 31977 | JCCD - JC Conservation District | $2.53 | $2.53 | $0.00 | $0.00 | $5.06 | $0.00 |
| 2023 | 31977 | NWA - Noxious Weed Assessment | $2.15 | $2.15 | $0.00 | $0.00 | $4.30 | $0.00 |
| 2023 | 31977 | WAT - Clean Water District | $12.00 | $12.00 | $0.00 | $0.00 | $24.00 | $0.00 |
| 2023 | 31977 | FP ADMIN - FP ADMIN | $0.50 | $0.00 | $0.00 | $0.00 | $0.50 | $0.00 |
| 2023 | 31977 | TOTAL: | $314.24 | $313.63 | $0.00 | $0.00 | $627.87 | $0.00 |
|
| 2023 | 31977 | $314.24 | $313.63 | $0.00 | $0.00 | $627.87 | $0.00 |
Values
| (+) Improvement Homesite Value: | + | $0 | |
| (+) Improvement Non-Homesite Value: | + | $397,925 | |
| (+) Land Homesite Value: | + | $0 | |
| (+) Land Non-Homesite Value: | + | $105,000 | |
| (+) Curr Use (HS): | + | $0 | $0 |
| (+) Curr Use (NHS): | + | $0 | $0 |
| | | -------------------------- | |
| (=) Market Value: | = | $502,925 | |
| (–) Productivity Loss: | – | $0 | |
| | | -------------------------- | |
| (=) Subtotal: | = | $502,925 | |
| (+) Senior Appraised Value: | + | $0 | |
| (+) Non-Senior Appraised Value: | + | $502,925 | |
| | | -------------------------- | |
| (=) Total Appraised Value: | = | $502,925 | |
| (–) Senior Exemption Loss: | – | $0 | |
| (–) Exemption Loss: | – | $0 | |
| | | -------------------------- | |
| (=) Taxable Value: | = | $502,925 | |
Taxing Jurisdiction
| Owner: | JAMES G LANZANO | | |
| % Ownership: | 100.0000000000% | | |
| Total Value: | $502,925 | | |
| Tax Area: | 0213 - 1-49F1E1H2L1 |
| CE | COUNTY CURRENT EXPENSE | 0.9034619479 | $502,925 | $502,925 | $454.37 | | |
| CNTYDD | DEVELOPMENTAL DISABILITIES | 0.0052121823 | $502,925 | $502,925 | $2.62 | | |
| CNTYVET | VETERANS RELIEF | 0.0052777810 | $502,925 | $502,925 | $2.65 | | |
| MENTAL | MENTAL HEALTH | 0.0052121823 | $502,925 | $502,925 | $2.62 | | |
| ROADS | COUNTY ROADS | 0.7415066410 | $502,925 | $502,925 | $372.92 | | |
| ROADSCU | COUNTY ROADS TO CUR EXP | 0.0000000000 | $502,925 | $502,925 | $0.00 | | |
| HOSP2CASH | HOSP DIST #2 GENERAL | 0.0536075306 | $502,925 | $502,925 | $26.96 | | |
| SCH49CP | SCHOOL DIST #49 CAP PROJ | 0.6279093905 | $502,925 | $502,925 | $315.79 | | |
| SCH49MO | SCHOOL DIST #49 EP & O | 0.6376483602 | $502,925 | $502,925 | $320.69 | | |
| CONSERVE | CONSERVATION FUTURES | 0.0275621078 | $502,925 | $502,925 | $13.86 | | |
| EMS1 | FIRE DIST #1 EMS | 0.4679948282 | $502,925 | $502,925 | $235.37 | | |
| FD1 | FIRE DIST #1 GENERAL | 1.2171942929 | $502,925 | $502,925 | $612.16 | | |
| LIB1 | LIBRARY DIST #1 GENERAL | 0.2868827388 | $502,925 | $502,925 | $144.28 | | |
| PORTPT | PORT OF PT GENERAL | 0.1134941229 | $502,925 | $502,925 | $57.08 | | |
| PORTPTIDD | PORT OF PT IDD 2019 | 0.2577346692 | $502,925 | $502,925 | $129.62 | | |
| PUD1 | PUD #1 GENERAL | 0.0597888892 | $502,925 | $502,925 | $30.07 | | |
| STATE | STATE SCHOOL PART 1 | 1.4940692947 | $502,925 | $502,925 | $751.40 | | |
| STATE2 | STATE SCHOOL PART 2 | 0.8050170049 | $502,925 | $502,925 | $404.86 | | |
| | Total Tax Rate: | 7.7095739644 | | | | | |
| | | | | Taxes w/Current Exemptions: | $3,877.32 | | |
| | | | | Taxes w/o Exemptions: | $3,877.32 | | |
Improvement / Building
| Improvement #1: | Residential Bldg | State Code: | 11 | 1596.5 sqft | Value: | $397,925 |
| Bathrooms (#): | 2 (FULL) | Bedrooms (#): | 3 | | Exterior Wall: | SI/ST | Floor Construction: | FRAME | | Foundation: | CONPR | Heating/Cooling: | HPUMP | | Interior Finish: | FIN | Roof Cover: | COMP |
|
| | Type | Description | Class CD | Sub Class CD | Year Built | Area |
| | MA | Main Area | 4+ | 1S | 2024 | 1596.5 |
| | HCPOR | House Concrete Porch | 4 | 1S | 2024 | 82.5 |
| | GATT | House Attached Garage | 4 | 1S | 2024 | 495.0 |
Sketch
Property Image
Land
| 1 | 3355-1173L | | 0.0000 | 0.00 | 0.00 | 0.00 | 1.00 | $105,000 | $0 |
Roll Value History
| 2026 | N/A | N/A | N/A | N/A | N/A |
| 2025 | $397,925 | $105,000 | $0 | $502,925 | $502,925 |
| 2024 | $97,742 | $105,000 | $0 | $202,742 | $202,742 |
| 2023 | $0 | $75,000 | $0 | $75,000 | $75,000 |
| 2022 | $0 | $75,000 | $0 | $75,000 | $75,000 |
Deed and Sales History
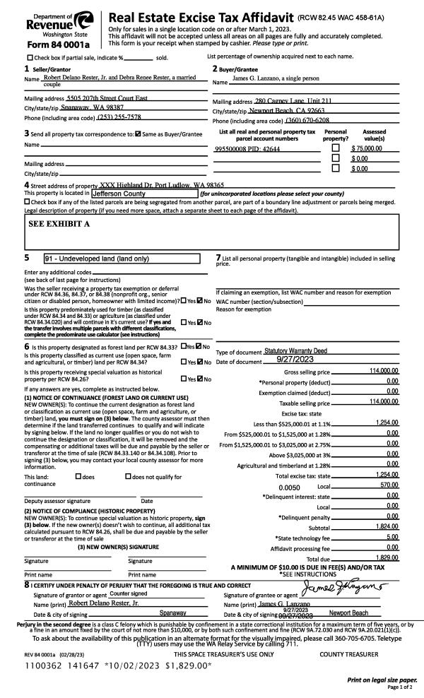
| 1 | 09/27/2023 | SWD | Statutory Warranty Deed | DEBRA R & ROBERT D RESTER JR | JAMES G LANZANO | | | $114,000.00 | 141647 | |
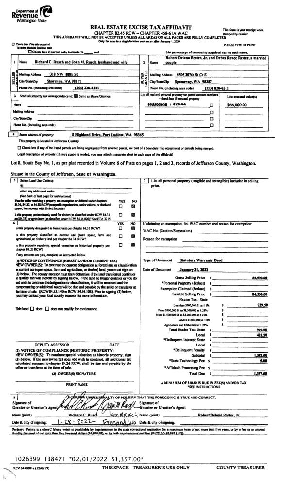
| 2 | 01/21/2022 | SWD | Statutory Warranty Deed | RICHARD C RUSCH | DEBRA R & ROBERT D RESTER JR | | | $84,500.00 | 138471 | |
Payout Agreement
| No payout information available.. |