Property
Account |
| Property ID: | 42645 | Abbreviated Legal Description: | SOUTH BAY #1 LOT 9 |
| Parcel # / Geo ID: | 995500009 | Agent Code: | |
| Type: | Real | | |
| Tax Area: | 0213 - 1-49F1E1H2L1 | Land Use Code | 11 |
| Open Space: | N | DFL | N |
| Historic Property: | N | Remodel Property: | N |
| Multi-Family Redevelopment: | N | | |
| Township: | 28N | Section: | 21 |
| Range: | 1E |
Location |
| Address: | 223 HIGHLAND DR PORT LUDLOW, WA 98365 | Mapsco: | 125/009 |
| Neighborhood: | SOUTH BAY 1, 2, & 3; EDGEWOOD AND GREENVIEW VILLAGES | Map ID: | |
| Neighborhood CD: | 3355 |
Owner |
| Name: | MARY M CAPRA | Owner ID: | 98475 |
| Mailing Address: | PO BOX 65224 PORT LUDLOW, WA 98365-0224 | % Ownership: | 100.0000000000% |
| | | Exemptions: | |
Pay Tax Due
Select the appropriate checkbox next to the year to be paid. Multiple years may be selected.
*Convenience Fee not included
Taxes and Assessment Details
Property Tax Information as of
03/10/2026
Click on "Statement Details" to expand or collapse a tax statement.
* Please enter a valid date ** Please enter a valid date *
Statement Details |
| 2026 | 31804 | STATE - STATE LEVY (SCHOOL) | $504.95 | $504.94 | $0.00 | $0.00 | $0.00 | $1009.89 |
| 2026 | 31804 | COUNTY - COUNTY LEVIES (CE, DD, VET, MH) | $201.89 | $201.86 | $0.00 | $0.00 | $0.00 | $403.75 |
| 2026 | 31804 | CONSERVE - CONSERVATION FUTURES | $6.06 | $6.05 | $0.00 | $0.00 | $0.00 | $12.11 |
| 2026 | 31804 | COROADS - COUNTY ROADS (ROADS, DIV TO CE) | $162.86 | $162.85 | $0.00 | $0.00 | $0.00 | $325.71 |
| 2026 | 31804 | PORTPT - PORT DISTRICT | $81.54 | $81.52 | $0.00 | $0.00 | $0.00 | $163.06 |
| 2026 | 31804 | PUD1 - PUD #1 | $13.13 | $13.13 | $0.00 | $0.00 | $0.00 | $26.26 |
| 2026 | 31804 | LIB1 - LIBRARY DIST #1 | $63.01 | $63.01 | $0.00 | $0.00 | $0.00 | $126.02 |
| 2026 | 31804 | HD2 - HOSP DIST #2 | $11.78 | $11.77 | $0.00 | $0.00 | $0.00 | $23.55 |
| 2026 | 31804 | SD49 - SCHOOL DIST #49 | $277.96 | $277.94 | $0.00 | $0.00 | $0.00 | $555.90 |
| 2026 | 31804 | FD1 - FIRE DISTRICT #1 | $267.33 | $267.33 | $0.00 | $0.00 | $0.00 | $534.66 |
| 2026 | 31804 | EMS1 - FIRE DIST #1 EMS | $102.79 | $102.78 | $0.00 | $0.00 | $0.00 | $205.57 |
| 2026 | 31804 | JCCD - JC Conservation District | $2.55 | $2.55 | $0.00 | $0.00 | $0.00 | $5.10 |
| 2026 | 31804 | NWA - Noxious Weed Assessment | $2.98 | $2.97 | $0.00 | $0.00 | $0.00 | $5.95 |
| 2026 | 31804 | TOTAL: | $1698.83 | $1698.70 | $0.00 | $0.00 | $0.00 | $3397.53 |
|
| 2026 | 31804 | $1698.83 | $1698.70 | $0.00 | $0.00 | $0.00 | $3397.53 |
Statement Details |
| 2025 | 31877 | STATE - STATE LEVY (SCHOOL) | $526.68 | $526.68 | $0.00 | $0.00 | $1053.36 | $0.00 |
| 2025 | 31877 | COUNTY - COUNTY LEVIES (CE, DD, VET, MH) | $207.11 | $207.10 | $0.00 | $0.00 | $414.21 | $0.00 |
| 2025 | 31877 | CONSERVE - CONSERVATION FUTURES | $6.21 | $6.21 | $0.00 | $0.00 | $12.42 | $0.00 |
| 2025 | 31877 | COROADS - COUNTY ROADS (ROADS, DIV TO CE) | $165.94 | $165.92 | $0.00 | $0.00 | $331.86 | $0.00 |
| 2025 | 31877 | PORTPT - PORT DISTRICT | $84.52 | $84.51 | $0.00 | $0.00 | $169.03 | $0.00 |
| 2025 | 31877 | PUD1 - PUD #1 | $13.55 | $13.55 | $0.00 | $0.00 | $27.10 | $0.00 |
| 2025 | 31877 | LIB1 - LIBRARY DIST #1 | $64.20 | $64.19 | $0.00 | $0.00 | $128.39 | $0.00 |
| 2025 | 31877 | HD2 - HOSP DIST #2 | $12.09 | $12.08 | $0.00 | $0.00 | $24.17 | $0.00 |
| 2025 | 31877 | SD49 - SCHOOL DIST #49 | $282.27 | $282.26 | $0.00 | $0.00 | $564.53 | $0.00 |
| 2025 | 31877 | FD1 - FIRE DISTRICT #1 | $273.31 | $273.30 | $0.00 | $0.00 | $546.61 | $0.00 |
| 2025 | 31877 | EMS1 - FIRE DIST #1 EMS | $105.12 | $105.12 | $0.00 | $0.00 | $210.24 | $0.00 |
| 2025 | 31877 | JCCD - JC Conservation District | $2.55 | $2.55 | $0.00 | $0.00 | $5.10 | $0.00 |
| 2025 | 31877 | NWA - Noxious Weed Assessment | $2.15 | $2.15 | $0.00 | $0.00 | $4.30 | $0.00 |
| 2025 | 31877 | TOTAL: | $1745.70 | $1745.62 | $0.00 | $0.00 | $3491.32 | $0.00 |
|
| 2025 | 31877 | $1745.70 | $1745.62 | $0.00 | $0.00 | $3491.32 | $0.00 |
Statement Details |
| 2024 | 31936 | STATE - STATE LEVY (SCHOOL) | $502.35 | $502.35 | $0.00 | $0.00 | $1004.70 | $0.00 |
| 2024 | 31936 | COUNTY - COUNTY LEVIES (CE, DD, VET, MH) | $214.98 | $214.95 | $0.00 | $0.00 | $429.93 | $0.00 |
| 2024 | 31936 | CONSERVE - CONSERVATION FUTURES | $6.45 | $6.44 | $0.00 | $0.00 | $12.89 | $0.00 |
| 2024 | 31936 | COROADS - COUNTY ROADS (ROADS, DIV TO CE) | $172.97 | $172.97 | $0.00 | $0.00 | $345.94 | $0.00 |
| 2024 | 31936 | PORTPT - PORT DISTRICT | $88.79 | $88.78 | $0.00 | $0.00 | $177.57 | $0.00 |
| 2024 | 31936 | PUD1 - PUD #1 | $14.12 | $14.12 | $0.00 | $0.00 | $28.24 | $0.00 |
| 2024 | 31936 | LIB1 - LIBRARY DIST #1 | $66.92 | $66.92 | $0.00 | $0.00 | $133.84 | $0.00 |
| 2024 | 31936 | HD2 - HOSP DIST #2 | $12.54 | $12.54 | $0.00 | $0.00 | $25.08 | $0.00 |
| 2024 | 31936 | SD49 - SCHOOL DIST #49 | $224.33 | $224.32 | $0.00 | $0.00 | $448.65 | $0.00 |
| 2024 | 31936 | FD1 - FIRE DISTRICT #1 | $284.23 | $284.23 | $0.00 | $0.00 | $568.46 | $0.00 |
| 2024 | 31936 | EMS1 - FIRE DIST #1 EMS | $108.57 | $108.56 | $0.00 | $0.00 | $217.13 | $0.00 |
| 2024 | 31936 | JCCD - JC Conservation District | $2.55 | $2.55 | $0.00 | $0.00 | $5.10 | $0.00 |
| 2024 | 31936 | NWA - Noxious Weed Assessment | $2.15 | $2.15 | $0.00 | $0.00 | $4.30 | $0.00 |
| 2024 | 31936 | TOTAL: | $1700.95 | $1700.88 | $0.00 | $0.00 | $3401.83 | $0.00 |
|
| 2024 | 31936 | $1700.95 | $1700.88 | $0.00 | $0.00 | $3401.83 | $0.00 |
Statement Details |
| 2023 | 31978 | STATE - STATE LEVY (SCHOOL) | $505.27 | $505.27 | $0.00 | $0.00 | $1010.54 | $0.00 |
| 2023 | 31978 | COUNTY - COUNTY LEVIES (CE, DD, VET, MH) | $220.49 | $220.47 | $0.00 | $0.00 | $440.96 | $0.00 |
| 2023 | 31978 | CONSERVE - CONSERVATION FUTURES | $6.61 | $6.61 | $0.00 | $0.00 | $13.22 | $0.00 |
| 2023 | 31978 | COROADS - COUNTY ROADS (ROADS, DIV TO CE) | $178.39 | $178.38 | $0.00 | $0.00 | $356.77 | $0.00 |
| 2023 | 31978 | PORTPT - PORT DISTRICT | $92.89 | $92.87 | $0.00 | $0.00 | $185.76 | $0.00 |
| 2023 | 31978 | PUD1 - PUD #1 | $14.62 | $14.61 | $0.00 | $0.00 | $29.23 | $0.00 |
| 2023 | 31978 | LIB1 - LIBRARY DIST #1 | $69.02 | $69.01 | $0.00 | $0.00 | $138.03 | $0.00 |
| 2023 | 31978 | HD2 - HOSP DIST #2 | $12.87 | $12.86 | $0.00 | $0.00 | $25.73 | $0.00 |
| 2023 | 31978 | SD49 - SCHOOL DIST #49 | $236.19 | $236.18 | $0.00 | $0.00 | $472.37 | $0.00 |
| 2023 | 31978 | FD3 - FIRE DISTRICT #3 | $219.35 | $219.35 | $0.00 | $0.00 | $438.70 | $0.00 |
| 2023 | 31978 | EMS3 - FIRE DIST #3 EMS | $78.42 | $78.42 | $0.00 | $0.00 | $156.84 | $0.00 |
| 2023 | 31978 | JCCD - JC Conservation District | $2.55 | $2.55 | $0.00 | $0.00 | $5.10 | $0.00 |
| 2023 | 31978 | NWA - Noxious Weed Assessment | $2.15 | $2.15 | $0.00 | $0.00 | $4.30 | $0.00 |
| 2023 | 31978 | TOTAL: | $1638.82 | $1638.73 | $0.00 | $0.00 | $3277.55 | $0.00 |
|
| 2023 | 31978 | $1638.82 | $1638.73 | $0.00 | $0.00 | $3277.55 | $0.00 |
Values
| (+) Improvement Homesite Value: | + | $329,258 | |
| (+) Improvement Non-Homesite Value: | + | $0 | |
| (+) Land Homesite Value: | + | $110,000 | |
| (+) Land Non-Homesite Value: | + | $0 | |
| (+) Curr Use (HS): | + | $0 | $0 |
| (+) Curr Use (NHS): | + | $0 | $0 |
| | | -------------------------- | |
| (=) Market Value: | = | $439,258 | |
| (–) Productivity Loss: | – | $0 | |
| | | -------------------------- | |
| (=) Subtotal: | = | $439,258 | |
| (+) Senior Appraised Value: | + | $0 | |
| (+) Non-Senior Appraised Value: | + | $439,258 | |
| | | -------------------------- | |
| (=) Total Appraised Value: | = | $439,258 | |
| (–) Senior Exemption Loss: | – | $0 | |
| (–) Exemption Loss: | – | $0 | |
| | | -------------------------- | |
| (=) Taxable Value: | = | $439,258 | |
Taxing Jurisdiction
| Owner: | MARY M CAPRA | | |
| % Ownership: | 100.0000000000% | | |
| Total Value: | $439,258 | | |
| Tax Area: | 0213 - 1-49F1E1H2L1 |
| CE | COUNTY CURRENT EXPENSE | 0.9034619479 | $439,258 | $439,258 | $396.85 | | |
| CNTYDD | DEVELOPMENTAL DISABILITIES | 0.0052121823 | $439,258 | $439,258 | $2.29 | | |
| CNTYVET | VETERANS RELIEF | 0.0052777810 | $439,258 | $439,258 | $2.32 | | |
| MENTAL | MENTAL HEALTH | 0.0052121823 | $439,258 | $439,258 | $2.29 | | |
| ROADS | COUNTY ROADS | 0.7415066410 | $439,258 | $439,258 | $325.71 | | |
| ROADSCU | COUNTY ROADS TO CUR EXP | 0.0000000000 | $439,258 | $439,258 | $0.00 | | |
| HOSP2CASH | HOSP DIST #2 GENERAL | 0.0536075306 | $439,258 | $439,258 | $23.55 | | |
| SCH49CP | SCHOOL DIST #49 CAP PROJ | 0.6279093905 | $439,258 | $439,258 | $275.81 | | |
| SCH49MO | SCHOOL DIST #49 EP & O | 0.6376483602 | $439,258 | $439,258 | $280.09 | | |
| CONSERVE | CONSERVATION FUTURES | 0.0275621078 | $439,258 | $439,258 | $12.11 | | |
| EMS1 | FIRE DIST #1 EMS | 0.4679948282 | $439,258 | $439,258 | $205.57 | | |
| FD1 | FIRE DIST #1 GENERAL | 1.2171942929 | $439,258 | $439,258 | $534.66 | | |
| LIB1 | LIBRARY DIST #1 GENERAL | 0.2868827388 | $439,258 | $439,258 | $126.02 | | |
| PORTPT | PORT OF PT GENERAL | 0.1134941229 | $439,258 | $439,258 | $49.85 | | |
| PORTPTIDD | PORT OF PT IDD 2019 | 0.2577346692 | $439,258 | $439,258 | $113.21 | | |
| PUD1 | PUD #1 GENERAL | 0.0597888892 | $439,258 | $439,258 | $26.26 | | |
| STATE | STATE SCHOOL PART 1 | 1.4940692947 | $439,258 | $439,258 | $656.28 | | |
| STATE2 | STATE SCHOOL PART 2 | 0.8050170049 | $439,258 | $439,258 | $353.61 | | |
| | Total Tax Rate: | 7.7095739644 | | | | | |
| | | | | Taxes w/Current Exemptions: | $3,386.48 | | |
| | | | | Taxes w/o Exemptions: | $3,386.48 | | |
Improvement / Building
| Improvement #1: | Residential Bldg | State Code: | 11 | 1301.0 sqft | Value: | $329,258 |
| Bathrooms (#): | 2 (FULL) | Bedrooms (#): | 3 | | Exterior Wall: | SI/ST | Fireplace: | SIN 1-AVG | | Floor Construction: | FRAME | Foundation: | CONPR | | Heating/Cooling: | F/A | Inside Verify: | YES-FIX | | Roof Cover: | COMP |   |   |
|
| | Type | Description | Class CD | Sub Class CD | Year Built | Area |
| | MA | Main Area | 4+ | 1S | 1999 | 1301.0 |
| | HDECK | House Deck | 4 | 1S | 1999 | 800.0 |
| | GATT | House Attached Garage | 4 | 1S | 1999 | 582.0 |
| | ASPHD | Asphalt Drive | 4 | 1S | 1999 | 1100.0 |
| | HWPOR | House Wood Porch | 4 | 1S | 1999 | 20.0 |
Sketch
| No sketches available for this property. |
Property Image
Land
| 1 | 3355-1173L | | 0.0000 | 0.00 | 0.00 | 0.00 | 1.00 | $110,000 | $0 |
Roll Value History
| 2026 | N/A | N/A | N/A | N/A | N/A |
| 2025 | $329,258 | $110,000 | $0 | $439,258 | $439,258 |
| 2024 | $329,258 | $110,000 | $0 | $439,258 | $439,258 |
| 2023 | $329,258 | $105,000 | $0 | $434,258 | $434,258 |
| 2022 | $329,258 | $100,000 | $0 | $429,258 | $429,258 |
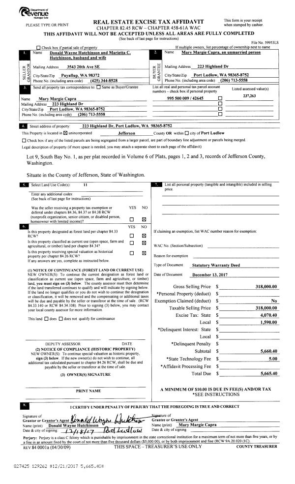
Deed and Sales History
| 1 | 12/13/2017 | SWD | Statutory Warranty Deed | DONALD W HUTCHINSON | MARY M CAPRA | | | $318,000.00 | 129262 | |
| 2 | 05/26/2004 | SWD | Statutory Warranty Deed | LEE, HENRY J & ANNETT | HUTCHINSON, DONALD/MARIETTA | 0 | 0 | $203,000.00 | 100402 | 0 |
| 3 | 10/08/2002 | SWD | Statutory Warranty Deed | TOOTILL, DAVID/AN E | LEE, HENRY J | 0 | 0 | $163,800.00 | 95767 | 0 |
| 4 | 09/04/1998 | SWD | Statutory Warranty Deed | BLAUVELT, RHEA/WOODCOOK, | TOOTILL, DAVID A/AN E | 0 | 0 | $35,000.00 | 85292 | 0 |
| 5 | 10/23/1997 | SWD | Statutory Warranty Deed | TILLMAN, ROBERT B | BLAUVELT, R M/WOODCOCK, M A | 0 | 0 | $0.00 | 83300 | 0 |
Payout Agreement
| No payout information available.. |