Property
Account |
| Property ID: | 42696 | Abbreviated Legal Description: | SOUTH BAY #2 LOT 3 |
| Parcel # / Geo ID: | 995600003 | Agent Code: | |
| Type: | Real | | |
| Tax Area: | 0213 - 1-49F1E1H2L1 | Land Use Code | 11 |
| Open Space: | N | DFL | N |
| Historic Property: | N | Remodel Property: | N |
| Multi-Family Redevelopment: | N | | |
| Township: | 28N | Section: | 21 |
| Range: | 1E |
Location |
| Address: | 250 CAMERON DR PORT LUDLOW, WA 98365 | Mapsco: | 126/003 |
| Neighborhood: | SOUTH BAY 1, 2, & 3; EDGEWOOD AND GREENVIEW VILLAGES | Map ID: | |
| Neighborhood CD: | 3355 |
Owner |
| Name: | PATTI D SUTTON | Owner ID: | 113917 |
| Mailing Address: | 8560 JOURNEY LN SE PORT ORCHARD, WA 98367-8529 | % Ownership: | 100.0000000000% |
| | | Exemptions: | |
Pay Tax Due
There is currently No Amount Due on this property.
Taxes and Assessment Details
Property Tax Information as of
03/09/2026
Click on "Statement Details" to expand or collapse a tax statement.
* Please enter a valid date ** Please enter a valid date *
Statement Details |
| | TOTAL: | $0.00 | $0.00 | $0.00 | $0.00 | $0.00 | $0.00 |
|
| | $0.00 | $0.00 | $0.00 | $0.00 | $0.00 | $0.00 |
Values
| (+) Improvement Homesite Value: | + | $0 | |
| (+) Improvement Non-Homesite Value: | + | $723,311 | |
| (+) Land Homesite Value: | + | $0 | |
| (+) Land Non-Homesite Value: | + | $153,750 | |
| (+) Curr Use (HS): | + | $0 | $0 |
| (+) Curr Use (NHS): | + | $0 | $0 |
| | | -------------------------- | |
| (=) Market Value: | = | $877,061 | |
| (–) Productivity Loss: | – | $0 | |
| | | -------------------------- | |
| (=) Subtotal: | = | $877,061 | |
| (+) Senior Appraised Value: | + | $0 | |
| (+) Non-Senior Appraised Value: | + | $877,061 | |
| | | -------------------------- | |
| (=) Total Appraised Value: | = | $877,061 | |
| (–) Senior Exemption Loss: | – | $0 | |
| (–) Exemption Loss: | – | $0 | |
| | | -------------------------- | |
| (=) Taxable Value: | = | $877,061 | |
Taxing Jurisdiction
| Owner: | PATTI D SUTTON | | |
| % Ownership: | 100.0000000000% | | |
| Total Value: | $877,061 | | |
| Tax Area: | 0213 - 1-49F1E1H2L1 |
| CE | COUNTY CURRENT EXPENSE | 0.9034619479 | $877,061 | $877,061 | $792.39 | | |
| CNTYDD | DEVELOPMENTAL DISABILITIES | 0.0052121823 | $877,061 | $877,061 | $4.57 | | |
| CNTYVET | VETERANS RELIEF | 0.0052777810 | $877,061 | $877,061 | $4.63 | | |
| MENTAL | MENTAL HEALTH | 0.0052121823 | $877,061 | $877,061 | $4.57 | | |
| ROADS | COUNTY ROADS | 0.7415066410 | $877,061 | $877,061 | $650.35 | | |
| ROADSCU | COUNTY ROADS TO CUR EXP | 0.0000000000 | $877,061 | $877,061 | $0.00 | | |
| HOSP2CASH | HOSP DIST #2 GENERAL | 0.0536075306 | $877,061 | $877,061 | $47.02 | | |
| SCH49CP | SCHOOL DIST #49 CAP PROJ | 0.6279093905 | $877,061 | $877,061 | $550.71 | | |
| SCH49MO | SCHOOL DIST #49 EP & O | 0.6376483602 | $877,061 | $877,061 | $559.26 | | |
| CONSERVE | CONSERVATION FUTURES | 0.0275621078 | $877,061 | $877,061 | $24.17 | | |
| EMS1 | FIRE DIST #1 EMS | 0.4679948282 | $877,061 | $877,061 | $410.46 | | |
| FD1 | FIRE DIST #1 GENERAL | 1.2171942929 | $877,061 | $877,061 | $1,067.55 | | |
| LIB1 | LIBRARY DIST #1 GENERAL | 0.2868827388 | $877,061 | $877,061 | $251.61 | | |
| PORTPT | PORT OF PT GENERAL | 0.1134941229 | $877,061 | $877,061 | $99.54 | | |
| PORTPTIDD | PORT OF PT IDD 2019 | 0.2577346692 | $877,061 | $877,061 | $226.05 | | |
| PUD1 | PUD #1 GENERAL | 0.0597888892 | $877,061 | $877,061 | $52.44 | | |
| STATE | STATE SCHOOL PART 1 | 1.4940692947 | $877,061 | $877,061 | $1,310.39 | | |
| STATE2 | STATE SCHOOL PART 2 | 0.8050170049 | $877,061 | $877,061 | $706.05 | | |
| | Total Tax Rate: | 7.7095739644 | | | | | |
| | | | | Taxes w/Current Exemptions: | $6,761.76 | | |
| | | | | Taxes w/o Exemptions: | $6,761.76 | | |
Improvement / Building
| Improvement #1: | Residential Bldg | State Code: | 11 | 2277.4 sqft | Value: | $723,311 |
| Bathrooms (#): | 2 (FULL) | Bathrooms (#): | 1 (HALF) | | Bedrooms (#): | 3 | Exterior Wall: | SI/ST | | Foundation: | CONPR | Heating/Cooling: | HPUMP | | Roof Cover: | COMP |   |   |
|
| | Type | Description | Class CD | Sub Class CD | Year Built | Area |
| | MA | Main Area | 5+ | 1S | 2025 | 2277.4 |
| | GATT | House Attached Garage | 4 | 1S | 2025 | 525.9 |
| | CONCD | Concrete Drive | 5 | * | 2025 | 1718.6 |
| | PATIO | House Patio | 5 | 1S | 2025 | 528.9 |
| | HRPO | House Roof Patio | 5 | 1S | 2025 | 225.9 |
| | HCPOR | House Concrete Porch | 5 | 1S | 2025 | 65.8 |
Sketch
Property Image
Land
| 1 | 3355-1155L | Avg Water/Terr View Lots | 0.0000 | 0.00 | 0.00 | 0.00 | 1.00 | $153,750 | $0 |
Roll Value History
| 2026 | N/A | N/A | N/A | N/A | N/A |
| 2025 | $723,311 | $153,750 | $0 | $877,061 | $877,061 |
| 2024 | $0 | $93,750 | $0 | $93,750 | $93,750 |
| 2023 | $0 | $93,750 | $0 | $93,750 | $93,750 |
| 2022 | $0 | $93,750 | $0 | $93,750 | $93,750 |
Deed and Sales History
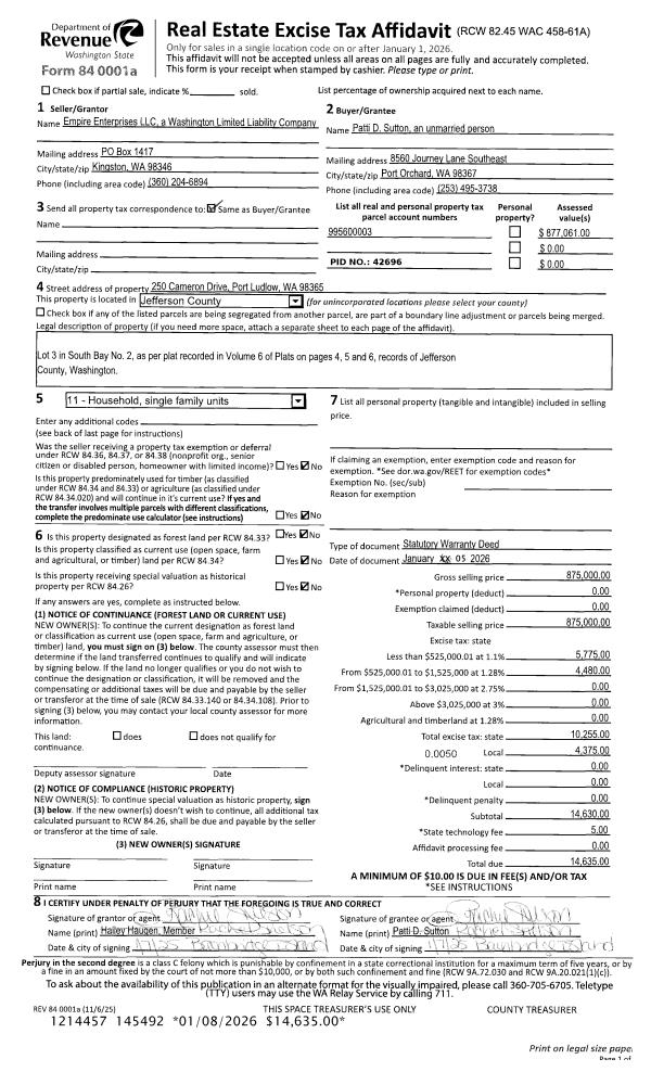
| 1 | 01/05/2026 | SWD | Statutory Warranty Deed | EMPIRE ENTERPRISES LLC | PATTI D SUTTON | | | $875,000.00 | 145492 | |
| 2 | 10/08/2024 | SWD | Statutory Warranty Deed | GARRETT LARSEN | EMPIRE ENTERPRISES LLC | | | $155,000.00 | 143338 | |
| 3 | 03/29/2022 | QCD | Quit Claim Deed | CANDICE & BOB CHAMBERLAIN | GARRETT LARSEN | | | $135,000.00 | 138805 | |
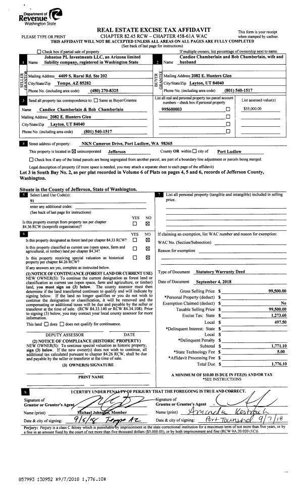
| 4 | 09/04/2018 | SWD | Statutory Warranty Deed | JOHNSTON PL INVESTMENTS LLC | CANDICE & BOB CHAMBERLAIN | | | $99,500.00 | 130952 | |
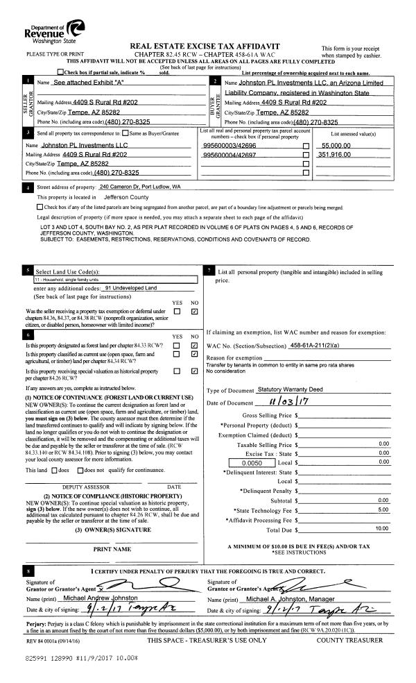
| 5 | 11/03/2017 | SWD | Statutory Warranty Deed | SHARON R JOHNSTON | JOHNSTON PL INVESTMENTS LLC | | | | 128990 | |
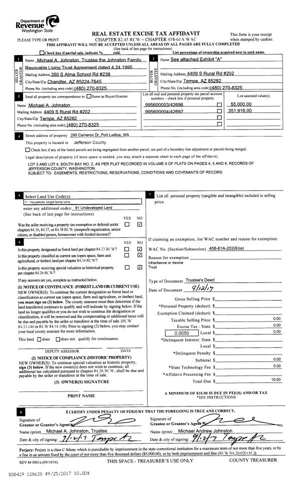
| 6 | 09/12/2017 | TRED | Trustee Deed | RICHARD A JOHNSTON TRSTEE | SHARON R JOHNSTON | | | | 128620 | |
| 7 | 04/24/1995 | QCD | Quit Claim Deed | JOHNSTON, RICHARD A/SHIRL | JOHNSTON FAMILY TRUST | 0 | 0 | $0.00 | 76804 | 0 |
Payout Agreement
| No payout information available.. |