Property
Account |
| Property ID: | 42702 | Abbreviated Legal Description: | SOUTH BAY #2 LOT 9 |
| Parcel # / Geo ID: | 995600009 | Agent Code: | |
| Type: | Real | | |
| Tax Area: | 0213 - 1-49F1E1H2L1 | Land Use Code | 11 |
| Open Space: | N | DFL | N |
| Historic Property: | N | Remodel Property: | N |
| Multi-Family Redevelopment: | N | | |
| Township: | 28N | Section: | 21 |
| Range: | 1E |
Location |
| Address: | 112 ARGYLE LN PORT LUDLOW, WA 98365 | Mapsco: | 126/009 |
| Neighborhood: | SOUTH BAY 1, 2, & 3; EDGEWOOD AND GREENVIEW VILLAGES | Map ID: | |
| Neighborhood CD: | 3355 |
Owner |
| Name: | WILLIAM C & SANDRA K GRIEVE | Owner ID: | 109974 |
| Mailing Address: | PO BOX 16505 SEATTLE, WA 98116-0505 | % Ownership: | 100.0000000000% |
| | | Exemptions: | |
Pay Tax Due
There is currently No Amount Due on this property.
Taxes and Assessment Details
Property Tax Information as of
03/14/2026
Click on "Statement Details" to expand or collapse a tax statement.
* Please enter a valid date ** Please enter a valid date *
Statement Details |
| | TOTAL: | $0.00 | $0.00 | $0.00 | $0.00 | $0.00 | $0.00 |
|
| | $0.00 | $0.00 | $0.00 | $0.00 | $0.00 | $0.00 |
Values
| (+) Improvement Homesite Value: | + | $0 | |
| (+) Improvement Non-Homesite Value: | + | $500,129 | |
| (+) Land Homesite Value: | + | $0 | |
| (+) Land Non-Homesite Value: | + | $106,500 | |
| (+) Curr Use (HS): | + | $0 | $0 |
| (+) Curr Use (NHS): | + | $0 | $0 |
| | | -------------------------- | |
| (=) Market Value: | = | $606,629 | |
| (–) Productivity Loss: | – | $0 | |
| | | -------------------------- | |
| (=) Subtotal: | = | $606,629 | |
| (+) Senior Appraised Value: | + | $0 | |
| (+) Non-Senior Appraised Value: | + | $606,629 | |
| | | -------------------------- | |
| (=) Total Appraised Value: | = | $606,629 | |
| (–) Senior Exemption Loss: | – | $0 | |
| (–) Exemption Loss: | – | $0 | |
| | | -------------------------- | |
| (=) Taxable Value: | = | $606,629 | |
Taxing Jurisdiction
| Owner: | WILLIAM C & SANDRA K GRIEVE | | |
| % Ownership: | 100.0000000000% | | |
| Total Value: | $606,629 | | |
| Tax Area: | 0213 - 1-49F1E1H2L1 |
| CE | COUNTY CURRENT EXPENSE | 0.9034619479 | $606,629 | $606,629 | $548.07 | | |
| CNTYDD | DEVELOPMENTAL DISABILITIES | 0.0052121823 | $606,629 | $606,629 | $3.16 | | |
| CNTYVET | VETERANS RELIEF | 0.0052777810 | $606,629 | $606,629 | $3.20 | | |
| MENTAL | MENTAL HEALTH | 0.0052121823 | $606,629 | $606,629 | $3.16 | | |
| ROADS | COUNTY ROADS | 0.7415066410 | $606,629 | $606,629 | $449.82 | | |
| ROADSCU | COUNTY ROADS TO CUR EXP | 0.0000000000 | $606,629 | $606,629 | $0.00 | | |
| HOSP2CASH | HOSP DIST #2 GENERAL | 0.0536075306 | $606,629 | $606,629 | $32.52 | | |
| SCH49CP | SCHOOL DIST #49 CAP PROJ | 0.6279093905 | $606,629 | $606,629 | $380.91 | | |
| SCH49MO | SCHOOL DIST #49 EP & O | 0.6376483602 | $606,629 | $606,629 | $386.82 | | |
| CONSERVE | CONSERVATION FUTURES | 0.0275621078 | $606,629 | $606,629 | $16.72 | | |
| EMS1 | FIRE DIST #1 EMS | 0.4679948282 | $606,629 | $606,629 | $283.90 | | |
| FD1 | FIRE DIST #1 GENERAL | 1.2171942929 | $606,629 | $606,629 | $738.39 | | |
| LIB1 | LIBRARY DIST #1 GENERAL | 0.2868827388 | $606,629 | $606,629 | $174.03 | | |
| PORTPT | PORT OF PT GENERAL | 0.1134941229 | $606,629 | $606,629 | $68.85 | | |
| PORTPTIDD | PORT OF PT IDD 2019 | 0.2577346692 | $606,629 | $606,629 | $156.35 | | |
| PUD1 | PUD #1 GENERAL | 0.0597888892 | $606,629 | $606,629 | $36.27 | | |
| STATE | STATE SCHOOL PART 1 | 1.4940692947 | $606,629 | $606,629 | $906.35 | | |
| STATE2 | STATE SCHOOL PART 2 | 0.8050170049 | $606,629 | $606,629 | $488.35 | | |
| | Total Tax Rate: | 7.7095739644 | | | | | |
| | | | | Taxes w/Current Exemptions: | $4,676.87 | | |
| | | | | Taxes w/o Exemptions: | $4,676.87 | | |
Improvement / Building
| Improvement #1: | Residential Bldg | State Code: | 11 | 2343.0 sqft | Value: | $500,129 |
| Bathrooms (#): | 3 (FULL) | Bathrooms (#): | 1 (HALF) | | Bedrooms (#): | 3 | Exterior Wall: | SI/ST | | Fireplace: | SIN 1-GOOD | Floor Construction: | FRAME | | Foundation: | CONPR | Heating/Cooling: | HPUMP | | Inside Verify: | NO | Roof Cover: | COMP |
|
| | Type | Description | Class CD | Sub Class CD | Year Built | Area |
| | MA | Main Area | 4+ | 15SF | 2004 | 1763.0 |
| | MA2 | Second Floor Main Area | 4+ | 15SF | 2004 | 580.0 |
| | PATIO | House Patio | 4 | 15SF | 2004 | 120.0 |
| | HBAL | House Balcony | 4 | 15SF | 2004 | 230.0 |
| | HCPOR | House Concrete Porch | 4 | 15SF | 2004 | 74.0 |
| | HDECK | House Deck | 4 | 15SF | 2004 | 359.0 |
| | GATT | House Attached Garage | 4 | 15SF | 2004 | 494.0 |
| | HWPOR | House Wood Porch | 4 | 15SF | 2004 | 92.0 |
| | CONCD | Concrete Drive | 4 | 15SF | 2004 | 625.0 |
Sketch
| No sketches available for this property. |
Property Image
Land
| 1 | 3355-1175L | Avg Golf Course or Terr View Lots | 0.0000 | 0.00 | 0.00 | 0.00 | 1.00 | $106,500 | $0 |
Roll Value History
| 2026 | N/A | N/A | N/A | N/A | N/A |
| 2025 | $500,129 | $106,500 | $0 | $606,629 | $606,629 |
| 2024 | $500,129 | $106,500 | $0 | $606,629 | $606,629 |
| 2023 | $500,129 | $101,500 | $0 | $601,629 | $601,629 |
| 2022 | $500,129 | $96,500 | $0 | $596,629 | $596,629 |
Deed and Sales History
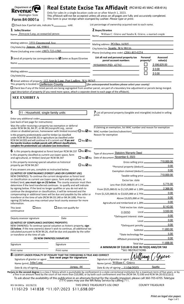
| 1 | 11/06/2023 | SWD | Statutory Warranty Deed | DUWAYNE LANG | WILLIAM C & SANDRA K GRIEVE | | | $710,000.00 | 141838 | |
| 2 | 10/14/2016 | PRD | Personal Representatives Deed | | | | | | 126438 | |
| 3 | 08/24/2004 | SWD | Statutory Warranty Deed | TRUSTON, THOMAS J & VIKKI | LANG, DUWAYNE & LINDA | 0 | 0 | $357,000.00 | 101294 | 0 |
| 4 | 07/15/2003 | SWD | Statutory Warranty Deed | FRANCIS, MICHAEL G | TRUSTON, THOMAS J/VICKI | 0 | 0 | $32,000.00 | 97812 | 0 |
| 5 | 05/12/1999 | SWD | Statutory Warranty Deed | PERON, KENNETH/FAMILY TRU | FRANCIS, MICHAEL G | 0 | 0 | $24,000.00 | 86943 | 0 |
Payout Agreement
| No payout information available.. |