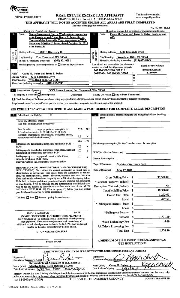
Property
Account |
| Property ID: | 42716 | Abbreviated Legal Description: | SOUTH BAY #3 LOT 5 |
| Parcel # / Geo ID: | 995700005 | Agent Code: | |
| Type: | Real | | |
| Tax Area: | 0213 - 1-49F1E1H2L1 | Land Use Code | 11 |
| Open Space: | N | DFL | N |
| Historic Property: | N | Remodel Property: | N |
| Multi-Family Redevelopment: | N | | |
| Township: | 28N | Section: | 21 |
| Range: | 1E |
Location |
| Address: | 120 DUNSMUIR RD PORT LUDLOW, WA 98365 | Mapsco: | 126/026 |
| Neighborhood: | SOUTH BAY 1, 2, & 3; EDGEWOOD AND GREENVIEW VILLAGES | Map ID: | |
| Neighborhood CD: | 3355 |
Owner |
| Name: | GEORGE J AYERS | Owner ID: | 10733 |
| Mailing Address: | DEBBIE LOUISE AYERS 131 NORTH BAY LN #1 PORT LUDLOW, WA 98365 | % Ownership: | 100.0000000000% |
| | | Exemptions: | |
Pay Tax Due
There is currently No Amount Due on this property.
Taxes and Assessment Details
Property Tax Information as of
03/10/2026
Click on "Statement Details" to expand or collapse a tax statement.
* Please enter a valid date ** Please enter a valid date *
Statement Details |
| | TOTAL: | $0.00 | $0.00 | $0.00 | $0.00 | $0.00 | $0.00 |
|
| | $0.00 | $0.00 | $0.00 | $0.00 | $0.00 | $0.00 |
Values
| (+) Improvement Homesite Value: | + | $0 | |
| (+) Improvement Non-Homesite Value: | + | $415,320 | |
| (+) Land Homesite Value: | + | $0 | |
| (+) Land Non-Homesite Value: | + | $95,000 | |
| (+) Curr Use (HS): | + | $0 | $0 |
| (+) Curr Use (NHS): | + | $0 | $0 |
| | | -------------------------- | |
| (=) Market Value: | = | $510,320 | |
| (–) Productivity Loss: | – | $0 | |
| | | -------------------------- | |
| (=) Subtotal: | = | $510,320 | |
| (+) Senior Appraised Value: | + | $0 | |
| (+) Non-Senior Appraised Value: | + | $510,320 | |
| | | -------------------------- | |
| (=) Total Appraised Value: | = | $510,320 | |
| (–) Senior Exemption Loss: | – | $0 | |
| (–) Exemption Loss: | – | $0 | |
| | | -------------------------- | |
| (=) Taxable Value: | = | $510,320 | |
Taxing Jurisdiction
| Owner: | GEORGE J AYERS | | |
| % Ownership: | 100.0000000000% | | |
| Total Value: | $510,320 | | |
| Tax Area: | 0213 - 1-49F1E1H2L1 |
| CE | COUNTY CURRENT EXPENSE | 0.9034619479 | $510,320 | $510,320 | $461.05 | | |
| CNTYDD | DEVELOPMENTAL DISABILITIES | 0.0052121823 | $510,320 | $510,320 | $2.66 | | |
| CNTYVET | VETERANS RELIEF | 0.0052777810 | $510,320 | $510,320 | $2.69 | | |
| MENTAL | MENTAL HEALTH | 0.0052121823 | $510,320 | $510,320 | $2.66 | | |
| ROADS | COUNTY ROADS | 0.7415066410 | $510,320 | $510,320 | $378.41 | | |
| ROADSCU | COUNTY ROADS TO CUR EXP | 0.0000000000 | $510,320 | $510,320 | $0.00 | | |
| HOSP2CASH | HOSP DIST #2 GENERAL | 0.0536075306 | $510,320 | $510,320 | $27.36 | | |
| SCH49CP | SCHOOL DIST #49 CAP PROJ | 0.6279093905 | $510,320 | $510,320 | $320.43 | | |
| SCH49MO | SCHOOL DIST #49 EP & O | 0.6376483602 | $510,320 | $510,320 | $325.40 | | |
| CONSERVE | CONSERVATION FUTURES | 0.0275621078 | $510,320 | $510,320 | $14.07 | | |
| EMS1 | FIRE DIST #1 EMS | 0.4679948282 | $510,320 | $510,320 | $238.83 | | |
| FD1 | FIRE DIST #1 GENERAL | 1.2171942929 | $510,320 | $510,320 | $621.16 | | |
| LIB1 | LIBRARY DIST #1 GENERAL | 0.2868827388 | $510,320 | $510,320 | $146.40 | | |
| PORTPT | PORT OF PT GENERAL | 0.1134941229 | $510,320 | $510,320 | $57.92 | | |
| PORTPTIDD | PORT OF PT IDD 2019 | 0.2577346692 | $510,320 | $510,320 | $131.53 | | |
| PUD1 | PUD #1 GENERAL | 0.0597888892 | $510,320 | $510,320 | $30.51 | | |
| STATE | STATE SCHOOL PART 1 | 1.4940692947 | $510,320 | $510,320 | $762.45 | | |
| STATE2 | STATE SCHOOL PART 2 | 0.8050170049 | $510,320 | $510,320 | $410.82 | | |
| | Total Tax Rate: | 7.7095739644 | | | | | |
| | | | | Taxes w/Current Exemptions: | $3,934.35 | | |
| | | | | Taxes w/o Exemptions: | $3,934.35 | | |
Improvement / Building
| Improvement #1: | Residential Bldg | State Code: | 11 | 2156.0 sqft | Value: | $415,320 |
| Bathrooms (#): | 2 (FULL) | Bathrooms (#): | 1 (HALF) | | Bedrooms (#): | 3 | Exterior Wall: | SI/ST | | Fireplace: | SIN 2-AVG | Floor Construction: | FRAME | | Foundation: | CONPR | Heating/Cooling: | ELBB | | Inside Verify: | NO | Roof Cover: | COMP |
|
| | Type | Description | Class CD | Sub Class CD | Year Built | Area |
| | MA | Main Area | 4+ | 15SF | 1990 | 1240.0 |
| | MA2 | Second Floor Main Area | 4+ | 15SF | 1990 | 916.0 |
| | HWPOR | House Wood Porch | 4 | 15SF | 1990 | 104.0 |
| | HDECK | House Deck | 4 | 15SF | 1990 | 190.0 |
| | GATT | House Attached Garage | 4 | 15SF | 1990 | 301.0 |
| | CONCD | Concrete Drive | 4 | 15SF | 1990 | 800.0 |
Sketch
| No sketches available for this property. |
Property Image
Land
| 1 | 3355-1177L | Filtered Golf Course or Terr View Lots | 0.0000 | 0.00 | 0.00 | 0.00 | 1.00 | $95,000 | $0 |
Roll Value History
| 2026 | N/A | N/A | N/A | N/A | N/A |
| 2025 | $415,320 | $95,000 | $0 | $510,320 | $510,320 |
| 2024 | $415,320 | $95,000 | $0 | $510,320 | $510,320 |
| 2023 | $415,320 | $90,000 | $0 | $505,320 | $505,320 |
| 2022 | $415,320 | $85,000 | $0 | $500,320 | $500,320 |
Deed and Sales History
Payout Agreement
| No payout information available.. |