Property
Account |
| Property ID: | 42719 | Abbreviated Legal Description: | SOUTH BAY #3 LOT 8 |
| Parcel # / Geo ID: | 995700008 | Agent Code: | |
| Type: | Real | | |
| Tax Area: | 0213 - 1-49F1E1H2L1 | Land Use Code | 11 |
| Open Space: | N | DFL | N |
| Historic Property: | N | Remodel Property: | N |
| Multi-Family Redevelopment: | N | | |
| Township: | 28N | Section: | 21 |
| Range: | 1E |
Location |
| Address: | | Mapsco: | 126/029 |
| Neighborhood: | SOUTH BAY 1, 2, & 3; EDGEWOOD AND GREENVIEW VILLAGES | Map ID: | |
| Neighborhood CD: | 3355 |
Owner |
| Name: | RICHARD & NIKKI MORASCO | Owner ID: | 98201 |
| Mailing Address: | 30 RAEBURN CT PORT LUDLOW, WA 98365-9796 | % Ownership: | 100.0000000000% |
| | | Exemptions: | |
Pay Tax Due
Select the appropriate checkbox next to the year to be paid. Multiple years may be selected.
*Convenience Fee not included
Taxes and Assessment Details
Property Tax Information as of
03/11/2026
Click on "Statement Details" to expand or collapse a tax statement.
* Please enter a valid date ** Please enter a valid date *
Statement Details |
| 2026 | 31878 | STATE - STATE LEVY (SCHOOL) | $82.77 | $82.76 | $0.00 | $0.00 | $0.00 | $165.53 |
| 2026 | 31878 | COUNTY - COUNTY LEVIES (CE, DD, VET, MH) | $33.10 | $33.09 | $0.00 | $0.00 | $0.00 | $66.19 |
| 2026 | 31878 | CONSERVE - CONSERVATION FUTURES | $0.99 | $0.99 | $0.00 | $0.00 | $0.00 | $1.98 |
| 2026 | 31878 | COROADS - COUNTY ROADS (ROADS, DIV TO CE) | $26.70 | $26.69 | $0.00 | $0.00 | $0.00 | $53.39 |
| 2026 | 31878 | PORTPT - PORT DISTRICT | $13.37 | $13.36 | $0.00 | $0.00 | $0.00 | $26.73 |
| 2026 | 31878 | PUD1 - PUD #1 | $2.15 | $2.15 | $0.00 | $0.00 | $0.00 | $4.30 |
| 2026 | 31878 | LIB1 - LIBRARY DIST #1 | $10.33 | $10.33 | $0.00 | $0.00 | $0.00 | $20.66 |
| 2026 | 31878 | HD2 - HOSP DIST #2 | $1.93 | $1.93 | $0.00 | $0.00 | $0.00 | $3.86 |
| 2026 | 31878 | SD49 - SCHOOL DIST #49 | $45.57 | $45.55 | $0.00 | $0.00 | $0.00 | $91.12 |
| 2026 | 31878 | FD1 - FIRE DISTRICT #1 | $43.82 | $43.82 | $0.00 | $0.00 | $0.00 | $87.64 |
| 2026 | 31878 | EMS1 - FIRE DIST #1 EMS | $16.85 | $16.85 | $0.00 | $0.00 | $0.00 | $33.70 |
| 2026 | 31878 | FPLCA - DNR Landowner Contingency Assmt | $3.00 | $3.00 | $0.00 | $0.00 | $0.00 | $6.00 |
| 2026 | 31878 | JCCD - JC Conservation District | $2.55 | $2.55 | $0.00 | $0.00 | $0.00 | $5.10 |
| 2026 | 31878 | NWA - Noxious Weed Assessment | $2.98 | $2.97 | $0.00 | $0.00 | $0.00 | $5.95 |
| 2026 | 31878 | WAT - Clean Water District | $13.00 | $13.00 | $0.00 | $0.00 | $0.00 | $26.00 |
| 2026 | 31878 | TOTAL: | $299.11 | $299.04 | $0.00 | $0.00 | $0.00 | $598.15 |
|
| 2026 | 31878 | $299.11 | $299.04 | $0.00 | $0.00 | $0.00 | $598.15 |
Statement Details |
| 2025 | 31951 | STATE - STATE LEVY (SCHOOL) | $86.33 | $86.32 | $0.00 | $0.00 | $172.65 | $0.00 |
| 2025 | 31951 | COUNTY - COUNTY LEVIES (CE, DD, VET, MH) | $33.95 | $33.94 | $0.00 | $0.00 | $67.89 | $0.00 |
| 2025 | 31951 | CONSERVE - CONSERVATION FUTURES | $1.02 | $1.02 | $0.00 | $0.00 | $2.04 | $0.00 |
| 2025 | 31951 | COROADS - COUNTY ROADS (ROADS, DIV TO CE) | $27.21 | $27.19 | $0.00 | $0.00 | $54.40 | $0.00 |
| 2025 | 31951 | PORTPT - PORT DISTRICT | $13.85 | $13.85 | $0.00 | $0.00 | $27.70 | $0.00 |
| 2025 | 31951 | PUD1 - PUD #1 | $2.22 | $2.22 | $0.00 | $0.00 | $4.44 | $0.00 |
| 2025 | 31951 | LIB1 - LIBRARY DIST #1 | $10.53 | $10.52 | $0.00 | $0.00 | $21.05 | $0.00 |
| 2025 | 31951 | HD2 - HOSP DIST #2 | $1.98 | $1.98 | $0.00 | $0.00 | $3.96 | $0.00 |
| 2025 | 31951 | SD49 - SCHOOL DIST #49 | $46.28 | $46.26 | $0.00 | $0.00 | $92.54 | $0.00 |
| 2025 | 31951 | FD1 - FIRE DISTRICT #1 | $44.80 | $44.80 | $0.00 | $0.00 | $89.60 | $0.00 |
| 2025 | 31951 | EMS1 - FIRE DIST #1 EMS | $17.23 | $17.23 | $0.00 | $0.00 | $34.46 | $0.00 |
| 2025 | 31951 | FPLCA - DNR Landowner Contingency Assmt | $3.00 | $3.00 | $0.00 | $0.00 | $6.00 | $0.00 |
| 2025 | 31951 | JCCD - JC Conservation District | $2.55 | $2.55 | $0.00 | $0.00 | $5.10 | $0.00 |
| 2025 | 31951 | NWA - Noxious Weed Assessment | $2.15 | $2.15 | $0.00 | $0.00 | $4.30 | $0.00 |
| 2025 | 31951 | WAT - Clean Water District | $13.00 | $13.00 | $0.00 | $0.00 | $26.00 | $0.00 |
| 2025 | 31951 | TOTAL: | $306.10 | $306.03 | $0.00 | $0.00 | $612.13 | $0.00 |
|
| 2025 | 31951 | $306.10 | $306.03 | $0.00 | $0.00 | $612.13 | $0.00 |
Statement Details |
| 2024 | 32010 | STATE - STATE LEVY (SCHOOL) | $83.29 | $83.29 | $0.00 | $0.00 | $166.58 | $0.00 |
| 2024 | 32010 | COUNTY - COUNTY LEVIES (CE, DD, VET, MH) | $35.65 | $35.63 | $0.00 | $0.00 | $71.28 | $0.00 |
| 2024 | 32010 | CONSERVE - CONSERVATION FUTURES | $1.07 | $1.07 | $0.00 | $0.00 | $2.14 | $0.00 |
| 2024 | 32010 | COROADS - COUNTY ROADS (ROADS, DIV TO CE) | $28.68 | $28.67 | $0.00 | $0.00 | $57.35 | $0.00 |
| 2024 | 32010 | PORTPT - PORT DISTRICT | $14.72 | $14.72 | $0.00 | $0.00 | $29.44 | $0.00 |
| 2024 | 32010 | PUD1 - PUD #1 | $2.34 | $2.34 | $0.00 | $0.00 | $4.68 | $0.00 |
| 2024 | 32010 | LIB1 - LIBRARY DIST #1 | $11.10 | $11.09 | $0.00 | $0.00 | $22.19 | $0.00 |
| 2024 | 32010 | HD2 - HOSP DIST #2 | $2.08 | $2.08 | $0.00 | $0.00 | $4.16 | $0.00 |
| 2024 | 32010 | SD49 - SCHOOL DIST #49 | $37.20 | $37.19 | $0.00 | $0.00 | $74.39 | $0.00 |
| 2024 | 32010 | FD1 - FIRE DISTRICT #1 | $47.13 | $47.12 | $0.00 | $0.00 | $94.25 | $0.00 |
| 2024 | 32010 | EMS1 - FIRE DIST #1 EMS | $18.00 | $18.00 | $0.00 | $0.00 | $36.00 | $0.00 |
| 2024 | 32010 | FP - DNR Forest Fire Protection Assmt | $8.50 | $8.50 | $0.00 | $0.00 | $17.00 | $0.00 |
| 2024 | 32010 | FPLCA - DNR Landowner Contingency Assmt | $3.00 | $3.00 | $0.00 | $0.00 | $6.00 | $0.00 |
| 2024 | 32010 | JCCD - JC Conservation District | $2.55 | $2.55 | $0.00 | $0.00 | $5.10 | $0.00 |
| 2024 | 32010 | NWA - Noxious Weed Assessment | $2.15 | $2.15 | $0.00 | $0.00 | $4.30 | $0.00 |
| 2024 | 32010 | WAT - Clean Water District | $12.50 | $12.50 | $0.00 | $0.00 | $25.00 | $0.00 |
| 2024 | 32010 | FP ADMIN - FP ADMIN | $0.50 | $0.00 | $0.00 | $0.00 | $0.50 | $0.00 |
| 2024 | 32010 | TOTAL: | $310.46 | $309.90 | $0.00 | $0.00 | $620.36 | $0.00 |
|
| 2024 | 32010 | $310.46 | $309.90 | $0.00 | $0.00 | $620.36 | $0.00 |
Statement Details |
| 2023 | 32052 | STATE - STATE LEVY (SCHOOL) | $84.76 | $84.74 | $0.00 | $0.00 | $169.50 | $0.00 |
| 2023 | 32052 | COUNTY - COUNTY LEVIES (CE, DD, VET, MH) | $36.99 | $36.98 | $0.00 | $0.00 | $73.97 | $0.00 |
| 2023 | 32052 | CONSERVE - CONSERVATION FUTURES | $1.11 | $1.11 | $0.00 | $0.00 | $2.22 | $0.00 |
| 2023 | 32052 | COROADS - COUNTY ROADS (ROADS, DIV TO CE) | $29.93 | $29.92 | $0.00 | $0.00 | $59.85 | $0.00 |
| 2023 | 32052 | PORTPT - PORT DISTRICT | $15.59 | $15.57 | $0.00 | $0.00 | $31.16 | $0.00 |
| 2023 | 32052 | PUD1 - PUD #1 | $2.45 | $2.45 | $0.00 | $0.00 | $4.90 | $0.00 |
| 2023 | 32052 | LIB1 - LIBRARY DIST #1 | $11.58 | $11.57 | $0.00 | $0.00 | $23.15 | $0.00 |
| 2023 | 32052 | HD2 - HOSP DIST #2 | $2.16 | $2.15 | $0.00 | $0.00 | $4.31 | $0.00 |
| 2023 | 32052 | SD49 - SCHOOL DIST #49 | $39.62 | $39.62 | $0.00 | $0.00 | $79.24 | $0.00 |
| 2023 | 32052 | FD3 - FIRE DISTRICT #3 | $36.79 | $36.79 | $0.00 | $0.00 | $73.58 | $0.00 |
| 2023 | 32052 | EMS3 - FIRE DIST #3 EMS | $13.16 | $13.15 | $0.00 | $0.00 | $26.31 | $0.00 |
| 2023 | 32052 | FP - DNR Forest Fire Protection Assmt | $8.50 | $8.50 | $0.00 | $0.00 | $17.00 | $0.00 |
| 2023 | 32052 | FPLCA - DNR Landowner Contingency Assmt | $3.00 | $3.00 | $0.00 | $0.00 | $6.00 | $0.00 |
| 2023 | 32052 | JCCD - JC Conservation District | $2.53 | $2.53 | $0.00 | $0.00 | $5.06 | $0.00 |
| 2023 | 32052 | NWA - Noxious Weed Assessment | $2.15 | $2.15 | $0.00 | $0.00 | $4.30 | $0.00 |
| 2023 | 32052 | WAT - Clean Water District | $12.00 | $12.00 | $0.00 | $0.00 | $24.00 | $0.00 |
| 2023 | 32052 | FP ADMIN - FP ADMIN | $0.50 | $0.00 | $0.00 | $0.00 | $0.50 | $0.00 |
| 2023 | 32052 | TOTAL: | $302.82 | $302.23 | $0.00 | $0.00 | $605.05 | $0.00 |
|
| 2023 | 32052 | $302.82 | $302.23 | $0.00 | $0.00 | $605.05 | $0.00 |
Values
| (+) Improvement Homesite Value: | + | $0 | |
| (+) Improvement Non-Homesite Value: | + | $0 | |
| (+) Land Homesite Value: | + | $0 | |
| (+) Land Non-Homesite Value: | + | $72,000 | |
| (+) Curr Use (HS): | + | $0 | $0 |
| (+) Curr Use (NHS): | + | $0 | $0 |
| | | -------------------------- | |
| (=) Market Value: | = | $72,000 | |
| (–) Productivity Loss: | – | $0 | |
| | | -------------------------- | |
| (=) Subtotal: | = | $72,000 | |
| (+) Senior Appraised Value: | + | $0 | |
| (+) Non-Senior Appraised Value: | + | $72,000 | |
| | | -------------------------- | |
| (=) Total Appraised Value: | = | $72,000 | |
| (–) Senior Exemption Loss: | – | $0 | |
| (–) Exemption Loss: | – | $0 | |
| | | -------------------------- | |
| (=) Taxable Value: | = | $72,000 | |
Taxing Jurisdiction
| Owner: | RICHARD & NIKKI MORASCO | | |
| % Ownership: | 100.0000000000% | | |
| Total Value: | N/A | | |
| Tax Area: | 0213 - 1-49F1E1H2L1 |
| CE | COUNTY CURRENT EXPENSE | N/A | N/A | N/A | N/A | | |
| CNTYDD | DEVELOPMENTAL DISABILITIES | N/A | N/A | N/A | N/A | | |
| CNTYVET | VETERANS RELIEF | N/A | N/A | N/A | N/A | | |
| MENTAL | MENTAL HEALTH | N/A | N/A | N/A | N/A | | |
| ROADS | COUNTY ROADS | N/A | N/A | N/A | N/A | | |
| HOSP2CASH | HOSP DIST #2 GENERAL | N/A | N/A | N/A | N/A | | |
| SCH49CP | SCHOOL DIST #49 CAP PROJ | N/A | N/A | N/A | N/A | | |
| SCH49MO | SCHOOL DIST #49 EP & O | N/A | N/A | N/A | N/A | | |
| CONSERVE | CONSERVATION FUTURES | N/A | N/A | N/A | N/A | | |
| EMS1 | FIRE DIST #1 EMS | N/A | N/A | N/A | N/A | | |
| FD1 | FIRE DIST #1 GENERAL | N/A | N/A | N/A | N/A | | |
| LIB1 | LIBRARY DIST #1 GENERAL | N/A | N/A | N/A | N/A | | |
| PORTPT | PORT OF PT GENERAL | N/A | N/A | N/A | N/A | | |
| PORTPTIDD | PORT OF PT IDD 2019 | N/A | N/A | N/A | N/A | | |
| PUD1 | PUD #1 GENERAL | N/A | N/A | N/A | N/A | | |
| STATE | STATE SCHOOL PART 1 | N/A | N/A | N/A | N/A | | |
| STATE2 | STATE SCHOOL PART 2 | N/A | N/A | N/A | N/A | | |
| | Total Tax Rate: | N/A | | | | | |
| | | | | Taxes w/Current Exemptions: | N/A | | |
| | | | | Taxes w/o Exemptions: | N/A | | |
Improvement / Building
Sketch
| No sketches available for this property. |
Property Image
Land
| 1 | 3355-1165L | | 0.0000 | 0.00 | 0.00 | 0.00 | 1.00 | $72,000 | $0 |
Roll Value History
| 2026 | N/A | N/A | N/A | N/A | N/A |
| 2025 | $0 | $72,000 | $0 | $72,000 | $72,000 |
| 2024 | $0 | $72,000 | $0 | $72,000 | $72,000 |
| 2023 | $0 | $72,000 | $0 | $72,000 | $72,000 |
| 2022 | $0 | $72,000 | $0 | $72,000 | $72,000 |
Deed and Sales History
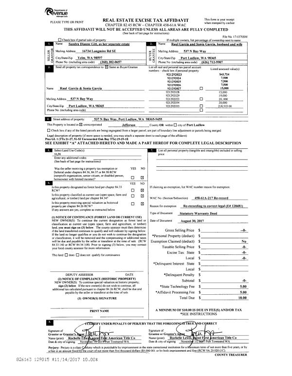
| 1 | 10/12/2017 | SWD | Statutory Warranty Deed | ALLEN A PANASUK | RICHARD & NIKKI MORASCO | | | $565,000.00 | 128916 | |
|   | |
| 2 | 11/07/2001 | SWD | Statutory Warranty Deed | WARD, EMMERSON TRUSTEE OF | PANASUK, ALLEN A/DELEE A | 0 | 0 | $0.00 | 93531 | 0 |
| 3 | 11/29/1994 | QCD | Quit Claim Deed | WARD, L EMMERSON/MARIAN M | WARD, EMMERSON/TRUST | 0 | 0 | $0.00 | 75698 | 0 |
| 4 | 11/25/1994 | QCD | Quit Claim Deed | WARD, L EMMERSON/MARIAN M | WARD, MARIAN W/TRUST | 0 | 0 | $0.00 | 75699 | 0 |
Payout Agreement
| No payout information available.. |