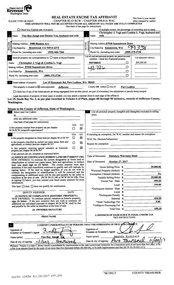
Property
Account |
| Property ID: | 42726 | Abbreviated Legal Description: | SOUTH BAY #3 LOT 15 |
| Parcel # / Geo ID: | 995700015 | Agent Code: | |
| Type: | Real | | |
| Tax Area: | 0213 - 1-49F1E1H2L1 | Land Use Code | 11 |
| Open Space: | N | DFL | N |
| Historic Property: | N | Remodel Property: | N |
| Multi-Family Redevelopment: | N | | |
| Township: | 28N | Section: | 16 |
| Range: | 1E |
Location |
| Address: | 266 DUNSMUIR RD PORT LUDLOW, WA 98365 | Mapsco: | 126/036 |
| Neighborhood: | SOUTH BAY 1, 2, & 3; EDGEWOOD AND GREENVIEW VILLAGES | Map ID: | |
| Neighborhood CD: | 3355 |
Owner |
| Name: | CHRISTOPHER J & CYNTHIA L VOGT | Owner ID: | 98322 |
| Mailing Address: | 266 DUNSMUIR RD PORT LUDLOW, WA 98365-8737 | % Ownership: | 100.0000000000% |
| | | Exemptions: | |
Pay Tax Due
There is currently No Amount Due on this property.
Taxes and Assessment Details
Property Tax Information as of
03/13/2026
Click on "Statement Details" to expand or collapse a tax statement.
* Please enter a valid date ** Please enter a valid date *
Statement Details |
| | TOTAL: | $0.00 | $0.00 | $0.00 | $0.00 | $0.00 | $0.00 |
|
| | $0.00 | $0.00 | $0.00 | $0.00 | $0.00 | $0.00 |
Values
| (+) Improvement Homesite Value: | + | $0 | |
| (+) Improvement Non-Homesite Value: | + | $507,288 | |
| (+) Land Homesite Value: | + | $0 | |
| (+) Land Non-Homesite Value: | + | $90,250 | |
| (+) Curr Use (HS): | + | $0 | $0 |
| (+) Curr Use (NHS): | + | $0 | $0 |
| | | -------------------------- | |
| (=) Market Value: | = | $597,538 | |
| (–) Productivity Loss: | – | $0 | |
| | | -------------------------- | |
| (=) Subtotal: | = | $597,538 | |
| (+) Senior Appraised Value: | + | $0 | |
| (+) Non-Senior Appraised Value: | + | $597,538 | |
| | | -------------------------- | |
| (=) Total Appraised Value: | = | $597,538 | |
| (–) Senior Exemption Loss: | – | $0 | |
| (–) Exemption Loss: | – | $0 | |
| | | -------------------------- | |
| (=) Taxable Value: | = | $597,538 | |
Taxing Jurisdiction
| Owner: | CHRISTOPHER J & CYNTHIA L VOGT | | |
| % Ownership: | 100.0000000000% | | |
| Total Value: | $597,538 | | |
| Tax Area: | 0213 - 1-49F1E1H2L1 |
| CE | COUNTY CURRENT EXPENSE | 0.9034619479 | $597,538 | $597,538 | $539.85 | | |
| CNTYDD | DEVELOPMENTAL DISABILITIES | 0.0052121823 | $597,538 | $597,538 | $3.11 | | |
| CNTYVET | VETERANS RELIEF | 0.0052777810 | $597,538 | $597,538 | $3.15 | | |
| MENTAL | MENTAL HEALTH | 0.0052121823 | $597,538 | $597,538 | $3.11 | | |
| ROADS | COUNTY ROADS | 0.7415066410 | $597,538 | $597,538 | $443.08 | | |
| ROADSCU | COUNTY ROADS TO CUR EXP | 0.0000000000 | $597,538 | $597,538 | $0.00 | | |
| HOSP2CASH | HOSP DIST #2 GENERAL | 0.0536075306 | $597,538 | $597,538 | $32.03 | | |
| SCH49CP | SCHOOL DIST #49 CAP PROJ | 0.6279093905 | $597,538 | $597,538 | $375.20 | | |
| SCH49MO | SCHOOL DIST #49 EP & O | 0.6376483602 | $597,538 | $597,538 | $381.02 | | |
| CONSERVE | CONSERVATION FUTURES | 0.0275621078 | $597,538 | $597,538 | $16.47 | | |
| EMS1 | FIRE DIST #1 EMS | 0.4679948282 | $597,538 | $597,538 | $279.64 | | |
| FD1 | FIRE DIST #1 GENERAL | 1.2171942929 | $597,538 | $597,538 | $727.32 | | |
| LIB1 | LIBRARY DIST #1 GENERAL | 0.2868827388 | $597,538 | $597,538 | $171.42 | | |
| PORTPT | PORT OF PT GENERAL | 0.1134941229 | $597,538 | $597,538 | $67.82 | | |
| PORTPTIDD | PORT OF PT IDD 2019 | 0.2577346692 | $597,538 | $597,538 | $154.01 | | |
| PUD1 | PUD #1 GENERAL | 0.0597888892 | $597,538 | $597,538 | $35.73 | | |
| STATE | STATE SCHOOL PART 1 | 1.4940692947 | $597,538 | $597,538 | $892.76 | | |
| STATE2 | STATE SCHOOL PART 2 | 0.8050170049 | $597,538 | $597,538 | $481.03 | | |
| | Total Tax Rate: | 7.7095739644 | | | | | |
| | | | | Taxes w/Current Exemptions: | $4,606.75 | | |
| | | | | Taxes w/o Exemptions: | $4,606.75 | | |
Improvement / Building
| Improvement #1: | Residential Bldg | State Code: | 11 | 1854.0 sqft | Value: | $507,288 |
| Bathrooms (#): | 3 (FULL) | Bedrooms (#): | 2 | | Exterior Wall: | SI/ST | Foundation: | CONPR | | Heating/Cooling: | ELBB | Roof Cover: | COMP |
|
| | Type | Description | Class CD | Sub Class CD | Year Built | Area |
| | MA | Main Area | 5- | 1S | 2021 | 1854.0 |
| | GATT | House Attached Garage | 5 | 1S | 2021 | 639.0 |
| | HWPOR | House Wood Porch | 5 | 1S | 2021 | 300.0 |
| | HCPOR | House Concrete Porch | 5 | 1S | 2021 | 63.0 |
Sketch
Property Image
Land
| 1 | 3355-1175L | Avg Golf Course or Terr View Lots | 0.0000 | 0.00 | 0.00 | 0.00 | 1.00 | $90,250 | $0 |
Roll Value History
| 2026 | N/A | N/A | N/A | N/A | N/A |
| 2025 | $507,288 | $90,250 | $0 | $597,538 | $597,538 |
| 2024 | $507,288 | $90,250 | $0 | $597,538 | $597,538 |
| 2023 | $507,288 | $85,250 | $0 | $592,538 | $592,538 |
| 2022 | $458,470 | $80,250 | $0 | $538,720 | $538,720 |
Deed and Sales History
| 1 | 10/27/2017 | SWD | Statutory Warranty Deed | TIEN REN JIANG | CHRISTOPHER J & CYNTHIA L VOGT | | | $39,000.00 | 129056 | |
| 2 | 08/10/2004 | SWD | Statutory Warranty Deed | 12-D2, INC | JIANG, TIEN REN/YOU, ZHIMIN | 0 | 0 | $38,500.00 | 101141 | 0 |
| 3 | 07/12/2001 | SWD | Statutory Warranty Deed | O'DONNELL, MARK F | I2-D2, INCORPORATED A WASHINGT | 0 | 0 | $0.00 | 92834 | 0 |
Payout Agreement
| No payout information available.. |