Property
Account |
| Property ID: | 42728 | Abbreviated Legal Description: | SOUTH BAY #3 LOT 17 |
| Parcel # / Geo ID: | 995700017 | Agent Code: | |
| Type: | Real | | |
| Tax Area: | 0213 - 1-49F1E1H2L1 | Land Use Code | 11 |
| Open Space: | N | DFL | N |
| Historic Property: | N | Remodel Property: | N |
| Multi-Family Redevelopment: | N | | |
| Township: | 28N | Section: | 21 |
| Range: | 1E |
Location |
| Address: | 233 DUNSMUIR RD PORT LUDLOW, WA 98365 | Mapsco: | 126/038 |
| Neighborhood: | SOUTH BAY 1, 2, & 3; EDGEWOOD AND GREENVIEW VILLAGES | Map ID: | |
| Neighborhood CD: | 3355 |
Owner |
| Name: | CHRISTOPHER MCNEILL | Owner ID: | 104824 |
| Mailing Address: | 233 DUNSMUIR RD PORT LUDLOW, WA 98365-8737 | % Ownership: | 100.0000000000% |
| | | Exemptions: | |
Pay Tax Due
Select the appropriate checkbox next to the year to be paid. Multiple years may be selected.
*Convenience Fee not included
Taxes and Assessment Details
Property Tax Information as of
03/11/2026
Click on "Statement Details" to expand or collapse a tax statement.
* Please enter a valid date ** Please enter a valid date *
Statement Details |
| 2026 | 31887 | STATE - STATE LEVY (SCHOOL) | $540.49 | $540.47 | $0.00 | $0.00 | $0.00 | $1080.96 |
| 2026 | 31887 | COUNTY - COUNTY LEVIES (CE, DD, VET, MH) | $216.09 | $216.07 | $0.00 | $0.00 | $0.00 | $432.16 |
| 2026 | 31887 | CONSERVE - CONSERVATION FUTURES | $6.48 | $6.48 | $0.00 | $0.00 | $0.00 | $12.96 |
| 2026 | 31887 | COROADS - COUNTY ROADS (ROADS, DIV TO CE) | $174.32 | $174.31 | $0.00 | $0.00 | $0.00 | $348.63 |
| 2026 | 31887 | PORTPT - PORT DISTRICT | $87.27 | $87.27 | $0.00 | $0.00 | $0.00 | $174.54 |
| 2026 | 31887 | PUD1 - PUD #1 | $14.06 | $14.05 | $0.00 | $0.00 | $0.00 | $28.11 |
| 2026 | 31887 | LIB1 - LIBRARY DIST #1 | $67.44 | $67.44 | $0.00 | $0.00 | $0.00 | $134.88 |
| 2026 | 31887 | HD2 - HOSP DIST #2 | $12.60 | $12.60 | $0.00 | $0.00 | $0.00 | $25.20 |
| 2026 | 31887 | SD49 - SCHOOL DIST #49 | $297.51 | $297.51 | $0.00 | $0.00 | $0.00 | $595.02 |
| 2026 | 31887 | FD1 - FIRE DISTRICT #1 | $286.15 | $286.14 | $0.00 | $0.00 | $0.00 | $572.29 |
| 2026 | 31887 | EMS1 - FIRE DIST #1 EMS | $110.02 | $110.02 | $0.00 | $0.00 | $0.00 | $220.04 |
| 2026 | 31887 | JCCD - JC Conservation District | $2.55 | $2.55 | $0.00 | $0.00 | $0.00 | $5.10 |
| 2026 | 31887 | NWA - Noxious Weed Assessment | $2.98 | $2.97 | $0.00 | $0.00 | $0.00 | $5.95 |
| 2026 | 31887 | TOTAL: | $1817.96 | $1817.88 | $0.00 | $0.00 | $0.00 | $3635.84 |
|
| 2026 | 31887 | $1817.96 | $1817.88 | $0.00 | $0.00 | $0.00 | $3635.84 |
Statement Details |
| 2025 | 31960 | STATE - STATE LEVY (SCHOOL) | $563.75 | $563.73 | $0.00 | $0.00 | $1127.48 | $0.00 |
| 2025 | 31960 | COUNTY - COUNTY LEVIES (CE, DD, VET, MH) | $221.70 | $221.68 | $0.00 | $0.00 | $443.38 | $0.00 |
| 2025 | 31960 | CONSERVE - CONSERVATION FUTURES | $6.65 | $6.65 | $0.00 | $0.00 | $13.30 | $0.00 |
| 2025 | 31960 | COROADS - COUNTY ROADS (ROADS, DIV TO CE) | $177.61 | $177.60 | $0.00 | $0.00 | $355.21 | $0.00 |
| 2025 | 31960 | PORTPT - PORT DISTRICT | $90.47 | $90.46 | $0.00 | $0.00 | $180.93 | $0.00 |
| 2025 | 31960 | PUD1 - PUD #1 | $14.51 | $14.50 | $0.00 | $0.00 | $29.01 | $0.00 |
| 2025 | 31960 | LIB1 - LIBRARY DIST #1 | $68.72 | $68.71 | $0.00 | $0.00 | $137.43 | $0.00 |
| 2025 | 31960 | HD2 - HOSP DIST #2 | $12.94 | $12.93 | $0.00 | $0.00 | $25.87 | $0.00 |
| 2025 | 31960 | SD49 - SCHOOL DIST #49 | $302.14 | $302.12 | $0.00 | $0.00 | $604.26 | $0.00 |
| 2025 | 31960 | FD1 - FIRE DISTRICT #1 | $292.54 | $292.54 | $0.00 | $0.00 | $585.08 | $0.00 |
| 2025 | 31960 | EMS1 - FIRE DIST #1 EMS | $112.52 | $112.52 | $0.00 | $0.00 | $225.04 | $0.00 |
| 2025 | 31960 | JCCD - JC Conservation District | $2.55 | $2.55 | $0.00 | $0.00 | $5.10 | $0.00 |
| 2025 | 31960 | NWA - Noxious Weed Assessment | $2.15 | $2.15 | $0.00 | $0.00 | $4.30 | $0.00 |
| 2025 | 31960 | TOTAL: | $1868.25 | $1868.14 | $0.00 | $0.00 | $3736.39 | $0.00 |
|
| 2025 | 31960 | $1868.25 | $1868.14 | $0.00 | $0.00 | $3736.39 | $0.00 |
Statement Details |
| 2024 | 32019 | STATE - STATE LEVY (SCHOOL) | $538.12 | $538.10 | $0.00 | $0.00 | $1076.22 | $0.00 |
| 2024 | 32019 | COUNTY - COUNTY LEVIES (CE, DD, VET, MH) | $230.27 | $230.25 | $0.00 | $0.00 | $460.52 | $0.00 |
| 2024 | 32019 | CONSERVE - CONSERVATION FUTURES | $6.91 | $6.90 | $0.00 | $0.00 | $13.81 | $0.00 |
| 2024 | 32019 | COROADS - COUNTY ROADS (ROADS, DIV TO CE) | $185.29 | $185.28 | $0.00 | $0.00 | $370.57 | $0.00 |
| 2024 | 32019 | PORTPT - PORT DISTRICT | $95.11 | $95.10 | $0.00 | $0.00 | $190.21 | $0.00 |
| 2024 | 32019 | PUD1 - PUD #1 | $15.13 | $15.12 | $0.00 | $0.00 | $30.25 | $0.00 |
| 2024 | 32019 | LIB1 - LIBRARY DIST #1 | $71.69 | $71.68 | $0.00 | $0.00 | $143.37 | $0.00 |
| 2024 | 32019 | HD2 - HOSP DIST #2 | $13.44 | $13.43 | $0.00 | $0.00 | $26.87 | $0.00 |
| 2024 | 32019 | SD49 - SCHOOL DIST #49 | $240.29 | $240.29 | $0.00 | $0.00 | $480.58 | $0.00 |
| 2024 | 32019 | FD1 - FIRE DISTRICT #1 | $304.46 | $304.46 | $0.00 | $0.00 | $608.92 | $0.00 |
| 2024 | 32019 | EMS1 - FIRE DIST #1 EMS | $116.30 | $116.29 | $0.00 | $0.00 | $232.59 | $0.00 |
| 2024 | 32019 | JCCD - JC Conservation District | $2.55 | $2.55 | $0.00 | $0.00 | $5.10 | $0.00 |
| 2024 | 32019 | NWA - Noxious Weed Assessment | $2.15 | $2.15 | $0.00 | $0.00 | $4.30 | $0.00 |
| 2024 | 32019 | TOTAL: | $1821.71 | $1821.60 | $0.00 | $0.00 | $3643.31 | $0.00 |
|
| 2024 | 32019 | $1821.71 | $1821.60 | $0.00 | $0.00 | $3643.31 | $0.00 |
Statement Details |
| 2023 | 32061 | STATE - STATE LEVY (SCHOOL) | $541.66 | $541.66 | $0.00 | $0.00 | $1083.32 | $0.00 |
| 2023 | 32061 | COUNTY - COUNTY LEVIES (CE, DD, VET, MH) | $236.36 | $236.36 | $0.00 | $0.00 | $472.72 | $0.00 |
| 2023 | 32061 | CONSERVE - CONSERVATION FUTURES | $7.09 | $7.09 | $0.00 | $0.00 | $14.18 | $0.00 |
| 2023 | 32061 | COROADS - COUNTY ROADS (ROADS, DIV TO CE) | $191.24 | $191.23 | $0.00 | $0.00 | $382.47 | $0.00 |
| 2023 | 32061 | PORTPT - PORT DISTRICT | $99.58 | $99.56 | $0.00 | $0.00 | $199.14 | $0.00 |
| 2023 | 32061 | PUD1 - PUD #1 | $15.67 | $15.67 | $0.00 | $0.00 | $31.34 | $0.00 |
| 2023 | 32061 | LIB1 - LIBRARY DIST #1 | $73.99 | $73.98 | $0.00 | $0.00 | $147.97 | $0.00 |
| 2023 | 32061 | HD2 - HOSP DIST #2 | $13.80 | $13.79 | $0.00 | $0.00 | $27.59 | $0.00 |
| 2023 | 32061 | SD49 - SCHOOL DIST #49 | $253.20 | $253.19 | $0.00 | $0.00 | $506.39 | $0.00 |
| 2023 | 32061 | FD3 - FIRE DISTRICT #3 | $235.15 | $235.15 | $0.00 | $0.00 | $470.30 | $0.00 |
| 2023 | 32061 | EMS3 - FIRE DIST #3 EMS | $84.07 | $84.06 | $0.00 | $0.00 | $168.13 | $0.00 |
| 2023 | 32061 | JCCD - JC Conservation District | $2.55 | $2.55 | $0.00 | $0.00 | $5.10 | $0.00 |
| 2023 | 32061 | NWA - Noxious Weed Assessment | $2.15 | $2.15 | $0.00 | $0.00 | $4.30 | $0.00 |
| 2023 | 32061 | TOTAL: | $1756.51 | $1756.44 | $0.00 | $0.00 | $3512.95 | $0.00 |
|
| 2023 | 32061 | $1756.51 | $1756.44 | $0.00 | $0.00 | $3512.95 | $0.00 |
Values
| (+) Improvement Homesite Value: | + | $0 | |
| (+) Improvement Non-Homesite Value: | + | $375,170 | |
| (+) Land Homesite Value: | + | $0 | |
| (+) Land Non-Homesite Value: | + | $95,000 | |
| (+) Curr Use (HS): | + | $0 | $0 |
| (+) Curr Use (NHS): | + | $0 | $0 |
| | | -------------------------- | |
| (=) Market Value: | = | $470,170 | |
| (–) Productivity Loss: | – | $0 | |
| | | -------------------------- | |
| (=) Subtotal: | = | $470,170 | |
| (+) Senior Appraised Value: | + | $0 | |
| (+) Non-Senior Appraised Value: | + | $470,170 | |
| | | -------------------------- | |
| (=) Total Appraised Value: | = | $470,170 | |
| (–) Senior Exemption Loss: | – | $0 | |
| (–) Exemption Loss: | – | $0 | |
| | | -------------------------- | |
| (=) Taxable Value: | = | $470,170 | |
Taxing Jurisdiction
| Owner: | CHRISTOPHER MCNEILL | | |
| % Ownership: | 100.0000000000% | | |
| Total Value: | $470,170 | | |
| Tax Area: | 0213 - 1-49F1E1H2L1 |
| CE | COUNTY CURRENT EXPENSE | 0.9034619479 | $470,170 | $470,170 | $424.78 | | |
| CNTYDD | DEVELOPMENTAL DISABILITIES | 0.0052121823 | $470,170 | $470,170 | $2.45 | | |
| CNTYVET | VETERANS RELIEF | 0.0052777810 | $470,170 | $470,170 | $2.48 | | |
| MENTAL | MENTAL HEALTH | 0.0052121823 | $470,170 | $470,170 | $2.45 | | |
| ROADS | COUNTY ROADS | 0.7415066410 | $470,170 | $470,170 | $348.63 | | |
| ROADSCU | COUNTY ROADS TO CUR EXP | 0.0000000000 | $470,170 | $470,170 | $0.00 | | |
| HOSP2CASH | HOSP DIST #2 GENERAL | 0.0536075306 | $470,170 | $470,170 | $25.20 | | |
| SCH49CP | SCHOOL DIST #49 CAP PROJ | 0.6279093905 | $470,170 | $470,170 | $295.22 | | |
| SCH49MO | SCHOOL DIST #49 EP & O | 0.6376483602 | $470,170 | $470,170 | $299.80 | | |
| CONSERVE | CONSERVATION FUTURES | 0.0275621078 | $470,170 | $470,170 | $12.96 | | |
| EMS1 | FIRE DIST #1 EMS | 0.4679948282 | $470,170 | $470,170 | $220.04 | | |
| FD1 | FIRE DIST #1 GENERAL | 1.2171942929 | $470,170 | $470,170 | $572.29 | | |
| LIB1 | LIBRARY DIST #1 GENERAL | 0.2868827388 | $470,170 | $470,170 | $134.88 | | |
| PORTPT | PORT OF PT GENERAL | 0.1134941229 | $470,170 | $470,170 | $53.36 | | |
| PORTPTIDD | PORT OF PT IDD 2019 | 0.2577346692 | $470,170 | $470,170 | $121.18 | | |
| PUD1 | PUD #1 GENERAL | 0.0597888892 | $470,170 | $470,170 | $28.11 | | |
| STATE | STATE SCHOOL PART 1 | 1.4940692947 | $470,170 | $470,170 | $702.47 | | |
| STATE2 | STATE SCHOOL PART 2 | 0.8050170049 | $470,170 | $470,170 | $378.49 | | |
| | Total Tax Rate: | 7.7095739644 | | | | | |
| | | | | Taxes w/Current Exemptions: | $3,624.79 | | |
| | | | | Taxes w/o Exemptions: | $3,624.79 | | |
Improvement / Building
| Improvement #1: | Residential Bldg | State Code: | 11 | 1345.0 sqft | Value: | $375,170 |
| Bathrooms (#): | 2 (FULL) | Bathrooms (#): | 1 (HALF) | | Bedrooms (#): | 3 | Exterior Wall: | SI/ST | | Fireplace: | SIN 1-GOOD | Floor Construction: | FRAME | | Foundation: | CONPR | Heating/Cooling: | HPUMP | | Inside Verify: | YES-FIX | Roof Cover: | COMP |
|
| | Type | Description | Class CD | Sub Class CD | Year Built | Area |
| | MA | Main Area | 4 | 1S | 1999 | 1345.0 |
| | PATIO | House Patio | 4 | 1S | 1999 | 168.0 |
| | HDECK | House Deck | 4 | 1S | 1999 | 394.0 |
| | GBSMT | Basement Garage | 4 | 1S | 1999 | 525.0 |
| | BSMTF | House basement finished | 4 | 1S | 1999 | 590.0 |
| | CONCD | Concrete Drive | 4 | 1S | 1999 | 1550.0 |
Sketch
| No sketches available for this property. |
Property Image
Land
| 1 | 3355-1177L | | 0.0000 | 0.00 | 0.00 | 0.00 | 1.00 | $95,000 | $0 |
Roll Value History
| 2026 | N/A | N/A | N/A | N/A | N/A |
| 2025 | $375,170 | $95,000 | $0 | $470,170 | $470,170 |
| 2024 | $375,170 | $95,000 | $0 | $470,170 | $470,170 |
| 2023 | $375,170 | $90,000 | $0 | $465,170 | $465,170 |
| 2022 | $375,170 | $85,000 | $0 | $460,170 | $460,170 |
Deed and Sales History
| 1 | 05/20/2021 | SWD | Statutory Warranty Deed | ELIZABETH & ROBIN MILLER | CHRISTOPHER MCNEILL | | | $459,000.00 | 136825 | |
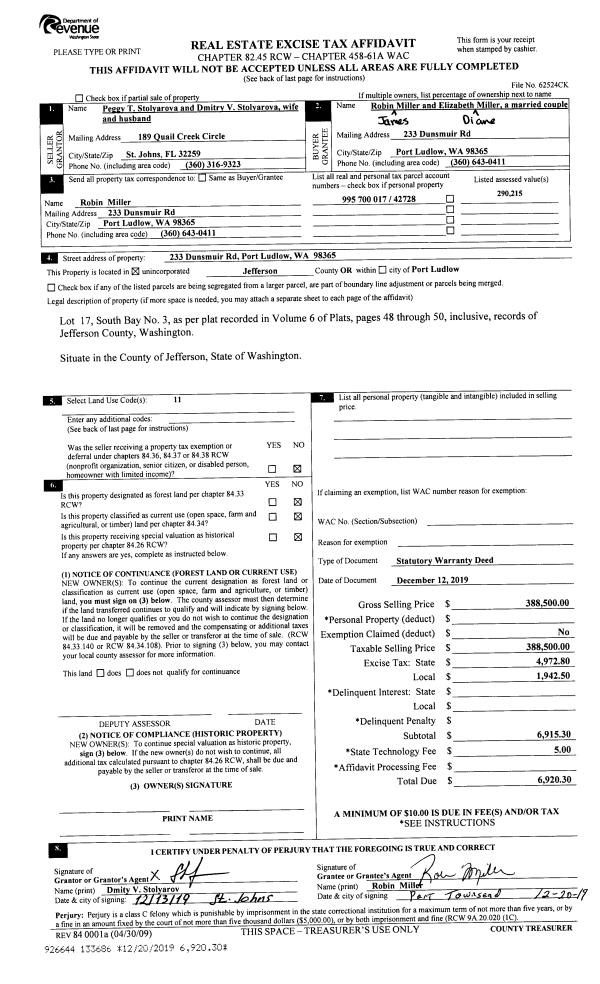
| 2 | 12/12/2019 | SWD | Statutory Warranty Deed | PEGGY T STOLYAROVA | ELIZABETH & ROBIN MILLER | | | $388,500.00 | 133686 | |
| 3 | 09/18/2006 | SWD | Statutory Warranty Deed | PLESCIA, DOUGLAS R/MADONN | STOLYAROVA, PEGGY T/DMITRY V | 0 | 0 | $344,500.00 | 107698 | 0 |
| 4 | 02/12/2003 | SWD | Statutory Warranty Deed | FORBES, GLEN H/JUNE E | PLESCIA, DOUGLAS R/MADONNA R | 0 | 0 | $235,000.00 | 96710 | 0 |
Payout Agreement
| No payout information available.. |