Property
Account |
| Property ID: | 42731 | Abbreviated Legal Description: | SOUTH BAY #3 LOT 20 |
| Parcel # / Geo ID: | 995700020 | Agent Code: | |
| Type: | Real | | |
| Tax Area: | 0213 - 1-49F1E1H2L1 | Land Use Code | 11 |
| Open Space: | N | DFL | N |
| Historic Property: | N | Remodel Property: | N |
| Multi-Family Redevelopment: | N | | |
| Township: | 28N | Section: | 21 |
| Range: | 1E |
Location |
| Address: | 111 DUNSMUIR RD PORT LUDLOW, WA 98365 | Mapsco: | 126/041 |
| Neighborhood: | SOUTH BAY 1, 2, & 3; EDGEWOOD AND GREENVIEW VILLAGES | Map ID: | |
| Neighborhood CD: | 3355 |
Owner |
| Name: | FOSTER FAMILY TRUST | Owner ID: | 99575 |
| Mailing Address: | MICHAEL B J FOSTER TRUSTEE KARIN FOSTER TRUSTEE 111 DUNSMUIR RD PORT LUDLOW, WA 98365-8736 | % Ownership: | 100.0000000000% |
| | | Exemptions: | |
Pay Tax Due
There is currently No Amount Due on this property.
Taxes and Assessment Details
Property Tax Information as of
03/12/2026
Click on "Statement Details" to expand or collapse a tax statement.
* Please enter a valid date ** Please enter a valid date *
Statement Details |
| | TOTAL: | $0.00 | $0.00 | $0.00 | $0.00 | $0.00 | $0.00 |
|
| | $0.00 | $0.00 | $0.00 | $0.00 | $0.00 | $0.00 |
Values
| (+) Improvement Homesite Value: | + | $0 | |
| (+) Improvement Non-Homesite Value: | + | $463,229 | |
| (+) Land Homesite Value: | + | $0 | |
| (+) Land Non-Homesite Value: | + | $100,000 | |
| (+) Curr Use (HS): | + | $0 | $0 |
| (+) Curr Use (NHS): | + | $0 | $0 |
| | | -------------------------- | |
| (=) Market Value: | = | $563,229 | |
| (–) Productivity Loss: | – | $0 | |
| | | -------------------------- | |
| (=) Subtotal: | = | $563,229 | |
| (+) Senior Appraised Value: | + | $0 | |
| (+) Non-Senior Appraised Value: | + | $563,229 | |
| | | -------------------------- | |
| (=) Total Appraised Value: | = | $563,229 | |
| (–) Senior Exemption Loss: | – | $0 | |
| (–) Exemption Loss: | – | $0 | |
| | | -------------------------- | |
| (=) Taxable Value: | = | $563,229 | |
Taxing Jurisdiction
| Owner: | FOSTER FAMILY TRUST | | |
| % Ownership: | 100.0000000000% | | |
| Total Value: | $563,229 | | |
| Tax Area: | 0213 - 1-49F1E1H2L1 |
| CE | COUNTY CURRENT EXPENSE | 0.9034619479 | $563,229 | $563,229 | $508.86 | | |
| CNTYDD | DEVELOPMENTAL DISABILITIES | 0.0052121823 | $563,229 | $563,229 | $2.94 | | |
| CNTYVET | VETERANS RELIEF | 0.0052777810 | $563,229 | $563,229 | $2.97 | | |
| MENTAL | MENTAL HEALTH | 0.0052121823 | $563,229 | $563,229 | $2.94 | | |
| ROADS | COUNTY ROADS | 0.7415066410 | $563,229 | $563,229 | $417.64 | | |
| ROADSCU | COUNTY ROADS TO CUR EXP | 0.0000000000 | $563,229 | $563,229 | $0.00 | | |
| HOSP2CASH | HOSP DIST #2 GENERAL | 0.0536075306 | $563,229 | $563,229 | $30.19 | | |
| SCH49CP | SCHOOL DIST #49 CAP PROJ | 0.6279093905 | $563,229 | $563,229 | $353.66 | | |
| SCH49MO | SCHOOL DIST #49 EP & O | 0.6376483602 | $563,229 | $563,229 | $359.14 | | |
| CONSERVE | CONSERVATION FUTURES | 0.0275621078 | $563,229 | $563,229 | $15.52 | | |
| EMS1 | FIRE DIST #1 EMS | 0.4679948282 | $563,229 | $563,229 | $263.59 | | |
| FD1 | FIRE DIST #1 GENERAL | 1.2171942929 | $563,229 | $563,229 | $685.56 | | |
| LIB1 | LIBRARY DIST #1 GENERAL | 0.2868827388 | $563,229 | $563,229 | $161.58 | | |
| PORTPT | PORT OF PT GENERAL | 0.1134941229 | $563,229 | $563,229 | $63.92 | | |
| PORTPTIDD | PORT OF PT IDD 2019 | 0.2577346692 | $563,229 | $563,229 | $145.16 | | |
| PUD1 | PUD #1 GENERAL | 0.0597888892 | $563,229 | $563,229 | $33.67 | | |
| STATE | STATE SCHOOL PART 1 | 1.4940692947 | $563,229 | $563,229 | $841.50 | | |
| STATE2 | STATE SCHOOL PART 2 | 0.8050170049 | $563,229 | $563,229 | $453.41 | | |
| | Total Tax Rate: | 7.7095739644 | | | | | |
| | | | | Taxes w/Current Exemptions: | $4,342.25 | | |
| | | | | Taxes w/o Exemptions: | $4,342.25 | | |
Improvement / Building
| Improvement #1: | Residential Bldg | State Code: | 11 | 2577.0 sqft | Value: | $463,229 |
| Bathrooms (#): | 2 (FULL) | Bathrooms (#): | 1 (HALF) | | Bedrooms (#): | 3 | Exterior Wall: | SI/ST | | Fireplace: | SIN 1-GOOD | Floor Construction: | FRAME | | Foundation: | CONPR | Heating/Cooling: | HPUMP | | Inside Verify: | YES | Roof Cover: | COMP |
|
| | Type | Description | Class CD | Sub Class CD | Year Built | Area |
| | MA | Main Area | 4 | 15SF | 1989 | 1990.0 |
| | MA2 | Second Floor Main Area | 4 | 15SF | 1989 | 587.0 |
| | HCPOR | House Concrete Porch | 4 | 15SF | 1989 | 48.0 |
| | HDECK | House Deck | 4 | 15SF | 1989 | 300.0 |
| | GATT | House Attached Garage | 4 | 15SF | 1989 | 672.0 |
| | CONCD | Concrete Drive | 4 | 15SF | 1989 | 1100.0 |
Sketch
| No sketches available for this property. |
Property Image
Land
| 1 | 3355-1175L | Avg Golf Course or Terr View Lots | 0.0000 | 0.00 | 0.00 | 0.00 | 1.00 | $100,000 | $0 |
Roll Value History
| 2026 | N/A | N/A | N/A | N/A | N/A |
| 2025 | $463,229 | $100,000 | $0 | $563,229 | $563,229 |
| 2024 | $463,229 | $100,000 | $0 | $563,229 | $563,229 |
| 2023 | $463,229 | $95,000 | $0 | $558,229 | $558,229 |
| 2022 | $463,229 | $90,000 | $0 | $553,229 | $553,229 |
Deed and Sales History
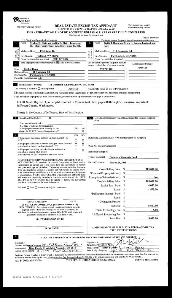
| 1 | 07/09/2018 | SWD | Statutory Warranty Deed | KEITH DUNN & MARY FEENEY | FOSTER FAMILY TRUST | | | $429,900.00 | 130582 | |
| 2 | 03/16/2015 | SWD | Statutory Warranty Deed | BLAIR FAMILY TRUST | KEITH DUNN & MARY FEENEY | | | $315,000.00 | 122868 | |
| 3 | 11/20/2013 | QCD | Quit Claim Deed | MICHAEL S BLAIR | BLAIR FAMILY TRUST | | | | 120387 | |
| 4 | 08/05/2003 | SWD | Statutory Warranty Deed | PRUSSING, GRACE W | BLAIR, MICHAEL S & JUDITH D | 0 | 0 | $250,000.00 | 98058 | 0 |
| 5 | 06/13/2001 | WD | Warranty Deed | PRUSSING, GRACE W PERSONA | PRUSSING, GRACE W | 0 | 0 | $0.00 | 92411 | 0 |
Payout Agreement
| No payout information available.. |