Property
Account |
| Property ID: | 42735 | Abbreviated Legal Description: | SOUTH BAY #3 LOT 24 |
| Parcel # / Geo ID: | 995700024 | Agent Code: | |
| Type: | Real | | |
| Tax Area: | 0213 - 1-49F1E1H2L1 | Land Use Code | 11 |
| Open Space: | N | DFL | N |
| Historic Property: | N | Remodel Property: | N |
| Multi-Family Redevelopment: | N | | |
| Township: | 28N | Section: | 20 |
| Range: | 1E |
Location |
| Address: | 60 FERNRIDGE LN PORT LUDLOW, WA 98365 | Mapsco: | 126/045 |
| Neighborhood: | SOUTH BAY 1, 2, & 3; EDGEWOOD AND GREENVIEW VILLAGES | Map ID: | |
| Neighborhood CD: | 3355 |
Owner |
| Name: | BARRY H LUKE | Owner ID: | 110959 |
| Mailing Address: | J DANIEL KELLEHER 60 FERNRIDGE LN PORT LUDLOW, WA 98365-9546 | % Ownership: | 100.0000000000% |
| | | Exemptions: | |
Pay Tax Due
Select the appropriate checkbox next to the year to be paid. Multiple years may be selected.
*Convenience Fee not included
Taxes and Assessment Details
Property Tax Information as of
03/11/2026
Click on "Statement Details" to expand or collapse a tax statement.
* Please enter a valid date ** Please enter a valid date *
Statement Details |
| 2026 | 31894 | STATE - STATE LEVY (SCHOOL) | $708.50 | $708.48 | $0.00 | $0.00 | $0.00 | $1416.98 |
| 2026 | 31894 | COUNTY - COUNTY LEVIES (CE, DD, VET, MH) | $283.27 | $283.23 | $0.00 | $0.00 | $0.00 | $566.50 |
| 2026 | 31894 | CONSERVE - CONSERVATION FUTURES | $8.50 | $8.49 | $0.00 | $0.00 | $0.00 | $16.99 |
| 2026 | 31894 | COROADS - COUNTY ROADS (ROADS, DIV TO CE) | $228.51 | $228.50 | $0.00 | $0.00 | $0.00 | $457.01 |
| 2026 | 31894 | PORTPT - PORT DISTRICT | $114.41 | $114.39 | $0.00 | $0.00 | $0.00 | $228.80 |
| 2026 | 31894 | PUD1 - PUD #1 | $18.43 | $18.42 | $0.00 | $0.00 | $0.00 | $36.85 |
| 2026 | 31894 | LIB1 - LIBRARY DIST #1 | $88.41 | $88.40 | $0.00 | $0.00 | $0.00 | $176.81 |
| 2026 | 31894 | HD2 - HOSP DIST #2 | $16.52 | $16.52 | $0.00 | $0.00 | $0.00 | $33.04 |
| 2026 | 31894 | SD49 - SCHOOL DIST #49 | $390.00 | $390.00 | $0.00 | $0.00 | $0.00 | $780.00 |
| 2026 | 31894 | FD1 - FIRE DISTRICT #1 | $375.10 | $375.09 | $0.00 | $0.00 | $0.00 | $750.19 |
| 2026 | 31894 | EMS1 - FIRE DIST #1 EMS | $144.22 | $144.22 | $0.00 | $0.00 | $0.00 | $288.44 |
| 2026 | 31894 | JCCD - JC Conservation District | $2.55 | $2.55 | $0.00 | $0.00 | $0.00 | $5.10 |
| 2026 | 31894 | NWA - Noxious Weed Assessment | $2.98 | $2.97 | $0.00 | $0.00 | $0.00 | $5.95 |
| 2026 | 31894 | TOTAL: | $2381.40 | $2381.26 | $0.00 | $0.00 | $0.00 | $4762.66 |
|
| 2026 | 31894 | $2381.40 | $2381.26 | $0.00 | $0.00 | $0.00 | $4762.66 |
Statement Details |
| 2025 | 31967 | STATE - STATE LEVY (SCHOOL) | $738.99 | $738.97 | $0.00 | $0.00 | $1477.96 | $0.00 |
| 2025 | 31967 | COUNTY - COUNTY LEVIES (CE, DD, VET, MH) | $290.62 | $290.58 | $0.00 | $0.00 | $581.20 | $0.00 |
| 2025 | 31967 | CONSERVE - CONSERVATION FUTURES | $8.72 | $8.71 | $0.00 | $0.00 | $17.43 | $0.00 |
| 2025 | 31967 | COROADS - COUNTY ROADS (ROADS, DIV TO CE) | $232.82 | $232.82 | $0.00 | $0.00 | $465.64 | $0.00 |
| 2025 | 31967 | PORTPT - PORT DISTRICT | $118.58 | $118.58 | $0.00 | $0.00 | $237.16 | $0.00 |
| 2025 | 31967 | PUD1 - PUD #1 | $19.02 | $19.01 | $0.00 | $0.00 | $38.03 | $0.00 |
| 2025 | 31967 | LIB1 - LIBRARY DIST #1 | $90.08 | $90.07 | $0.00 | $0.00 | $180.15 | $0.00 |
| 2025 | 31967 | HD2 - HOSP DIST #2 | $16.96 | $16.95 | $0.00 | $0.00 | $33.91 | $0.00 |
| 2025 | 31967 | SD49 - SCHOOL DIST #49 | $396.06 | $396.04 | $0.00 | $0.00 | $792.10 | $0.00 |
| 2025 | 31967 | FD1 - FIRE DISTRICT #1 | $383.48 | $383.48 | $0.00 | $0.00 | $766.96 | $0.00 |
| 2025 | 31967 | EMS1 - FIRE DIST #1 EMS | $147.50 | $147.49 | $0.00 | $0.00 | $294.99 | $0.00 |
| 2025 | 31967 | JCCD - JC Conservation District | $2.55 | $2.55 | $0.00 | $0.00 | $5.10 | $0.00 |
| 2025 | 31967 | NWA - Noxious Weed Assessment | $2.15 | $2.15 | $0.00 | $0.00 | $4.30 | $0.00 |
| 2025 | 31967 | TOTAL: | $2447.53 | $2447.40 | $0.00 | $0.00 | $4894.93 | $0.00 |
|
| 2025 | 31967 | $2447.53 | $2447.40 | $0.00 | $0.00 | $4894.93 | $0.00 |
Statement Details |
| 2024 | 32026 | STATE - STATE LEVY (SCHOOL) | $614.88 | $614.88 | $0.00 | $0.00 | $1229.76 | $0.00 |
| 2024 | 32026 | COUNTY - COUNTY LEVIES (CE, DD, VET, MH) | $263.13 | $263.10 | $0.00 | $0.00 | $526.23 | $0.00 |
| 2024 | 32026 | CONSERVE - CONSERVATION FUTURES | $7.89 | $7.89 | $0.00 | $0.00 | $15.78 | $0.00 |
| 2024 | 32026 | COROADS - COUNTY ROADS (ROADS, DIV TO CE) | $211.72 | $211.71 | $0.00 | $0.00 | $423.43 | $0.00 |
| 2024 | 32026 | PORTPT - PORT DISTRICT | $108.68 | $108.68 | $0.00 | $0.00 | $217.36 | $0.00 |
| 2024 | 32026 | PUD1 - PUD #1 | $17.28 | $17.28 | $0.00 | $0.00 | $34.56 | $0.00 |
| 2024 | 32026 | LIB1 - LIBRARY DIST #1 | $81.91 | $81.91 | $0.00 | $0.00 | $163.82 | $0.00 |
| 2024 | 32026 | HD2 - HOSP DIST #2 | $15.35 | $15.35 | $0.00 | $0.00 | $30.70 | $0.00 |
| 2024 | 32026 | SD49 - SCHOOL DIST #49 | $274.58 | $274.57 | $0.00 | $0.00 | $549.15 | $0.00 |
| 2024 | 32026 | FD1 - FIRE DISTRICT #1 | $347.90 | $347.90 | $0.00 | $0.00 | $695.80 | $0.00 |
| 2024 | 32026 | EMS1 - FIRE DIST #1 EMS | $132.89 | $132.88 | $0.00 | $0.00 | $265.77 | $0.00 |
| 2024 | 32026 | JCCD - JC Conservation District | $2.55 | $2.55 | $0.00 | $0.00 | $5.10 | $0.00 |
| 2024 | 32026 | NWA - Noxious Weed Assessment | $2.15 | $2.15 | $0.00 | $0.00 | $4.30 | $0.00 |
| 2024 | 32026 | TOTAL: | $2080.91 | $2080.85 | $0.00 | $0.00 | $4161.76 | $0.00 |
|
| 2024 | 32026 | $2080.91 | $2080.85 | $0.00 | $0.00 | $4161.76 | $0.00 |
Statement Details |
| 2023 | 32068 | STATE - STATE LEVY (SCHOOL) | $619.78 | $619.77 | $0.00 | $0.00 | $1239.55 | $0.00 |
| 2023 | 32068 | COUNTY - COUNTY LEVIES (CE, DD, VET, MH) | $270.47 | $270.43 | $0.00 | $0.00 | $540.90 | $0.00 |
| 2023 | 32068 | CONSERVE - CONSERVATION FUTURES | $8.11 | $8.11 | $0.00 | $0.00 | $16.22 | $0.00 |
| 2023 | 32068 | COROADS - COUNTY ROADS (ROADS, DIV TO CE) | $218.82 | $218.81 | $0.00 | $0.00 | $437.63 | $0.00 |
| 2023 | 32068 | PORTPT - PORT DISTRICT | $113.94 | $113.92 | $0.00 | $0.00 | $227.86 | $0.00 |
| 2023 | 32068 | PUD1 - PUD #1 | $17.93 | $17.92 | $0.00 | $0.00 | $35.85 | $0.00 |
| 2023 | 32068 | LIB1 - LIBRARY DIST #1 | $84.66 | $84.65 | $0.00 | $0.00 | $169.31 | $0.00 |
| 2023 | 32068 | HD2 - HOSP DIST #2 | $15.79 | $15.78 | $0.00 | $0.00 | $31.57 | $0.00 |
| 2023 | 32068 | SD49 - SCHOOL DIST #49 | $289.72 | $289.70 | $0.00 | $0.00 | $579.42 | $0.00 |
| 2023 | 32068 | FD3 - FIRE DISTRICT #3 | $269.06 | $269.06 | $0.00 | $0.00 | $538.12 | $0.00 |
| 2023 | 32068 | EMS3 - FIRE DIST #3 EMS | $96.19 | $96.19 | $0.00 | $0.00 | $192.38 | $0.00 |
| 2023 | 32068 | JCCD - JC Conservation District | $2.55 | $2.55 | $0.00 | $0.00 | $5.10 | $0.00 |
| 2023 | 32068 | NWA - Noxious Weed Assessment | $2.15 | $2.15 | $0.00 | $0.00 | $4.30 | $0.00 |
| 2023 | 32068 | TOTAL: | $2009.17 | $2009.04 | $0.00 | $0.00 | $4018.21 | $0.00 |
|
| 2023 | 32068 | $2009.17 | $2009.04 | $0.00 | $0.00 | $4018.21 | $0.00 |
Values
| (+) Improvement Homesite Value: | + | $0 | |
| (+) Improvement Non-Homesite Value: | + | $516,326 | |
| (+) Land Homesite Value: | + | $0 | |
| (+) Land Non-Homesite Value: | + | $100,000 | |
| (+) Curr Use (HS): | + | $0 | $0 |
| (+) Curr Use (NHS): | + | $0 | $0 |
| | | -------------------------- | |
| (=) Market Value: | = | $616,326 | |
| (–) Productivity Loss: | – | $0 | |
| | | -------------------------- | |
| (=) Subtotal: | = | $616,326 | |
| (+) Senior Appraised Value: | + | $0 | |
| (+) Non-Senior Appraised Value: | + | $616,326 | |
| | | -------------------------- | |
| (=) Total Appraised Value: | = | $616,326 | |
| (–) Senior Exemption Loss: | – | $0 | |
| (–) Exemption Loss: | – | $0 | |
| | | -------------------------- | |
| (=) Taxable Value: | = | $616,326 | |
Taxing Jurisdiction
| Owner: | BARRY H LUKE | | |
| % Ownership: | 100.0000000000% | | |
| Total Value: | $616,326 | | |
| Tax Area: | 0213 - 1-49F1E1H2L1 |
| CE | COUNTY CURRENT EXPENSE | 0.9034619479 | $616,326 | $616,326 | $556.83 | | |
| CNTYDD | DEVELOPMENTAL DISABILITIES | 0.0052121823 | $616,326 | $616,326 | $3.21 | | |
| CNTYVET | VETERANS RELIEF | 0.0052777810 | $616,326 | $616,326 | $3.25 | | |
| MENTAL | MENTAL HEALTH | 0.0052121823 | $616,326 | $616,326 | $3.21 | | |
| ROADS | COUNTY ROADS | 0.7415066410 | $616,326 | $616,326 | $457.01 | | |
| ROADSCU | COUNTY ROADS TO CUR EXP | 0.0000000000 | $616,326 | $616,326 | $0.00 | | |
| HOSP2CASH | HOSP DIST #2 GENERAL | 0.0536075306 | $616,326 | $616,326 | $33.04 | | |
| SCH49CP | SCHOOL DIST #49 CAP PROJ | 0.6279093905 | $616,326 | $616,326 | $387.00 | | |
| SCH49MO | SCHOOL DIST #49 EP & O | 0.6376483602 | $616,326 | $616,326 | $393.00 | | |
| CONSERVE | CONSERVATION FUTURES | 0.0275621078 | $616,326 | $616,326 | $16.99 | | |
| EMS1 | FIRE DIST #1 EMS | 0.4679948282 | $616,326 | $616,326 | $288.44 | | |
| FD1 | FIRE DIST #1 GENERAL | 1.2171942929 | $616,326 | $616,326 | $750.19 | | |
| LIB1 | LIBRARY DIST #1 GENERAL | 0.2868827388 | $616,326 | $616,326 | $176.81 | | |
| PORTPT | PORT OF PT GENERAL | 0.1134941229 | $616,326 | $616,326 | $69.95 | | |
| PORTPTIDD | PORT OF PT IDD 2019 | 0.2577346692 | $616,326 | $616,326 | $158.85 | | |
| PUD1 | PUD #1 GENERAL | 0.0597888892 | $616,326 | $616,326 | $36.85 | | |
| STATE | STATE SCHOOL PART 1 | 1.4940692947 | $616,326 | $616,326 | $920.83 | | |
| STATE2 | STATE SCHOOL PART 2 | 0.8050170049 | $616,326 | $616,326 | $496.15 | | |
| | Total Tax Rate: | 7.7095739644 | | | | | |
| | | | | Taxes w/Current Exemptions: | $4,751.61 | | |
| | | | | Taxes w/o Exemptions: | $4,751.61 | | |
Improvement / Building
| Improvement #1: | Residential Bldg | State Code: | 11 | 1877.0 sqft | Value: | $516,326 |
| Bathrooms (#): | 2 (FULL) | Bedrooms (#): | 3 | | Exterior Wall: | SI/ST | Fireplace: | SIN 1-GOOD | | Floor Construction: | FRAME | Foundation: | CONPR | | Heating/Cooling: | HPUMP | Roof Cover: | COMP |
|
| | Type | Description | Class CD | Sub Class CD | Year Built | Area |
| | MA | Main Area | 5- | 1S | 2005 | 1877.0 |
| | HBAL | House Balcony | 5 | 1S | 2005 | 124.0 |
| | HCPOR | House Concrete Porch | 5 | 1S | 2005 | 193.0 |
| | HDECK | House Deck | 5 | 1S | 2005 | 88.0 |
| | GATT | House Attached Garage | 5 | 1S | 2005 | 462.0 |
| | HWPOR | House Wood Porch | 5 | 1S | 2005 | 124.0 |
| | CONCD | Concrete Drive | 5 | 1S | 2005 | 315.0 |
Sketch
| No sketches available for this property. |
Property Image
Land
| 1 | 3355-1175L | | 0.0000 | 0.00 | 0.00 | 0.00 | 1.00 | $100,000 | $0 |
Roll Value History
| 2026 | N/A | N/A | N/A | N/A | N/A |
| 2025 | $516,326 | $100,000 | $0 | $616,326 | $616,326 |
| 2024 | $516,326 | $100,000 | $0 | $616,326 | $616,326 |
| 2023 | $441,536 | $90,000 | $0 | $531,536 | $531,536 |
| 2022 | $441,536 | $85,000 | $0 | $526,536 | $526,536 |
Deed and Sales History
| 1 | 06/07/2024 | SWD | Statutory Warranty Deed | JACK L PIPER LIVING TRUST | BARRY H LUKE | | | $620,000.00 | 142723 | |
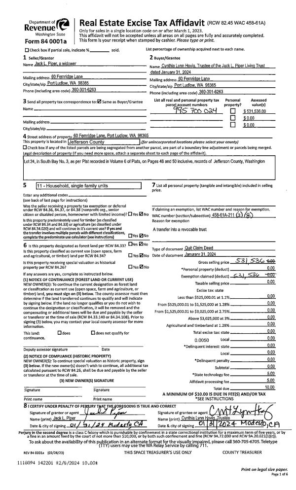
| 2 | 01/31/2024 | QCD | Quit Claim Deed | JACK L PIPER | JACK L PIPER LIVING TRUST | | | | 142201 | |
| 3 | 06/23/2005 | SWD | Statutory Warranty Deed | MIKE WASH LLC A WASH LIM LIA C | PIPER, JACK L/MARLOWE | | | $395,000.00 | 103985 | 0 |
| 4 | 03/04/2005 | QCD | Quit Claim Deed | KLAY, MICHAEL/STACY A | MIKEWASH, LLC | 0 | 0 | $0.00 | 102887 | 0 |
| 5 | 10/14/2004 | SWD | Statutory Warranty Deed | DITTMAN, GERALD L/BARBARA | KLAY, MICHAEL/STACY A | 0 | 0 | $48,000.00 | 101764 | 0 |
| 6 | 04/06/1999 | QCD | Quit Claim Deed | DITTMAN, GERALD L/BARBARA | DITTMAN, GERALD & BARBARA/TR | 0 | 0 | $0.00 | 86784 | 0 |
Payout Agreement
| No payout information available.. |