Property
Account |
| Property ID: | 42772 | Abbreviated Legal Description: | LAGOON VIEW LONG PLAT LOT 3 S/EASE |
| Parcel # / Geo ID: | 996400003 | Agent Code: | |
| Type: | Real | | |
| Tax Area: | 0323 - 1-48F2E2P1H2C2L1 | Land Use Code | 91 |
| Open Space: | N | DFL | N |
| Historic Property: | N | Remodel Property: | N |
| Multi-Family Redevelopment: | N | | |
| Township: | 26N | Section: | 34 |
| Range: | 1W |
Location |
| Address: | 360 WHITNEY COURT QUILCENE, WA 98376 | Mapsco: | 106/027 |
| Neighborhood: | S34 & S35 T26N R1W & SEXAUER SHORT PLAT | Map ID: | |
| Neighborhood CD: | 2267 |
Owner |
| Name: | SHANA B CANTONI | Owner ID: | 99523 |
| Mailing Address: | 342 NW 103RD ST SEATTLE, WA 98177-4938 | % Ownership: | 100.0000000000% |
| | | Exemptions: | |
Pay Tax Due
Select the appropriate checkbox next to the year to be paid. Multiple years may be selected.
*Convenience Fee not included
Taxes and Assessment Details
Property Tax Information as of
03/10/2026
Click on "Statement Details" to expand or collapse a tax statement.
* Please enter a valid date ** Please enter a valid date *
Statement Details |
| 2026 | 31931 | STATE - STATE LEVY (SCHOOL) | $115.43 | $115.42 | $0.00 | $0.00 | $0.00 | $230.85 |
| 2026 | 31931 | COUNTY - COUNTY LEVIES (CE, DD, VET, MH) | $46.15 | $46.13 | $0.00 | $0.00 | $0.00 | $92.28 |
| 2026 | 31931 | CONSERVE - CONSERVATION FUTURES | $1.39 | $1.38 | $0.00 | $0.00 | $0.00 | $2.77 |
| 2026 | 31931 | COROADS - COUNTY ROADS (ROADS, DIV TO CE) | $37.23 | $37.22 | $0.00 | $0.00 | $0.00 | $74.45 |
| 2026 | 31931 | PORTPT - PORT DISTRICT | $18.64 | $18.64 | $0.00 | $0.00 | $0.00 | $37.28 |
| 2026 | 31931 | PUD1 - PUD #1 | $3.00 | $3.00 | $0.00 | $0.00 | $0.00 | $6.00 |
| 2026 | 31931 | LIB1 - LIBRARY DIST #1 | $14.41 | $14.40 | $0.00 | $0.00 | $0.00 | $28.81 |
| 2026 | 31931 | HD2 - HOSP DIST #2 | $2.69 | $2.69 | $0.00 | $0.00 | $0.00 | $5.38 |
| 2026 | 31931 | SD48 - SCHOOL DIST #48 | $70.89 | $70.89 | $0.00 | $0.00 | $0.00 | $141.78 |
| 2026 | 31931 | FD2 - FIRE DISTRICT #2 | $37.91 | $37.90 | $0.00 | $0.00 | $0.00 | $75.81 |
| 2026 | 31931 | EMS2 - FIRE DIST #2 EMS | $21.35 | $21.34 | $0.00 | $0.00 | $0.00 | $42.69 |
| 2026 | 31931 | CEM2 - CEMETERY DIST #2 | $1.21 | $1.21 | $0.00 | $0.00 | $0.00 | $2.42 |
| 2026 | 31931 | PARK1 - PARK & REC DIST #1 | $7.40 | $7.40 | $0.00 | $0.00 | $0.00 | $14.80 |
| 2026 | 31931 | FP - DNR Forest Fire Protection Assmt | $8.50 | $8.50 | $0.00 | $0.00 | $0.00 | $17.00 |
| 2026 | 31931 | FPLCA - DNR Landowner Contingency Assmt | $3.00 | $3.00 | $0.00 | $0.00 | $0.00 | $6.00 |
| 2026 | 31931 | JCCD - JC Conservation District | $2.73 | $2.73 | $0.00 | $0.00 | $0.00 | $5.46 |
| 2026 | 31931 | NWA - Noxious Weed Assessment | $4.10 | $4.10 | $0.00 | $0.00 | $0.00 | $8.20 |
| 2026 | 31931 | WAT - Clean Water District | $13.00 | $13.00 | $0.00 | $0.00 | $0.00 | $26.00 |
| 2026 | 31931 | FP ADMIN - FP ADMIN | $0.50 | $0.00 | $0.00 | $0.00 | $0.00 | $0.50 |
| 2026 | 31931 | TOTAL: | $409.53 | $408.95 | $0.00 | $0.00 | $0.00 | $818.48 |
|
| 2026 | 31931 | $409.53 | $408.95 | $0.00 | $0.00 | $0.00 | $818.48 |
Statement Details |
| 2025 | 32004 | STATE - STATE LEVY (SCHOOL) | $120.40 | $120.38 | $0.00 | $0.00 | $240.78 | $0.00 |
| 2025 | 32004 | COUNTY - COUNTY LEVIES (CE, DD, VET, MH) | $47.35 | $47.34 | $0.00 | $0.00 | $94.69 | $0.00 |
| 2025 | 32004 | CONSERVE - CONSERVATION FUTURES | $1.42 | $1.42 | $0.00 | $0.00 | $2.84 | $0.00 |
| 2025 | 32004 | COROADS - COUNTY ROADS (ROADS, DIV TO CE) | $37.94 | $37.92 | $0.00 | $0.00 | $75.86 | $0.00 |
| 2025 | 32004 | PORTPT - PORT DISTRICT | $19.33 | $19.31 | $0.00 | $0.00 | $38.64 | $0.00 |
| 2025 | 32004 | PUD1 - PUD #1 | $3.10 | $3.10 | $0.00 | $0.00 | $6.20 | $0.00 |
| 2025 | 32004 | LIB1 - LIBRARY DIST #1 | $14.68 | $14.67 | $0.00 | $0.00 | $29.35 | $0.00 |
| 2025 | 32004 | HD2 - HOSP DIST #2 | $2.76 | $2.76 | $0.00 | $0.00 | $5.52 | $0.00 |
| 2025 | 32004 | SD48 - SCHOOL DIST #48 | $70.90 | $70.89 | $0.00 | $0.00 | $141.79 | $0.00 |
| 2025 | 32004 | FD2 - FIRE DISTRICT #2 | $39.15 | $39.14 | $0.00 | $0.00 | $78.29 | $0.00 |
| 2025 | 32004 | EMS2 - FIRE DIST #2 EMS | $22.04 | $22.04 | $0.00 | $0.00 | $44.08 | $0.00 |
| 2025 | 32004 | CEM2 - CEMETERY DIST #2 | $1.25 | $1.25 | $0.00 | $0.00 | $2.50 | $0.00 |
| 2025 | 32004 | PARK1 - PARK & REC DIST #1 | $5.72 | $5.72 | $0.00 | $0.00 | $11.44 | $0.00 |
| 2025 | 32004 | FP - DNR Forest Fire Protection Assmt | $8.50 | $8.50 | $0.00 | $0.00 | $17.00 | $0.00 |
| 2025 | 32004 | FPLCA - DNR Landowner Contingency Assmt | $3.00 | $3.00 | $0.00 | $0.00 | $6.00 | $0.00 |
| 2025 | 32004 | JCCD - JC Conservation District | $2.73 | $2.73 | $0.00 | $0.00 | $5.46 | $0.00 |
| 2025 | 32004 | NWA - Noxious Weed Assessment | $2.90 | $2.90 | $0.00 | $0.00 | $5.80 | $0.00 |
| 2025 | 32004 | WAT - Clean Water District | $13.00 | $13.00 | $0.00 | $0.00 | $26.00 | $0.00 |
| 2025 | 32004 | FP ADMIN - FP ADMIN | $0.50 | $0.00 | $0.00 | $0.00 | $0.50 | $0.00 |
| 2025 | 32004 | TOTAL: | $416.67 | $416.07 | $0.00 | $0.00 | $832.74 | $0.00 |
|
| 2025 | 32004 | $416.67 | $416.07 | $0.00 | $0.00 | $832.74 | $0.00 |
Statement Details |
| 2024 | 32063 | STATE - STATE LEVY (SCHOOL) | $103.51 | $103.51 | $0.00 | $0.00 | $207.02 | $0.00 |
| 2024 | 32063 | COUNTY - COUNTY LEVIES (CE, DD, VET, MH) | $44.30 | $44.29 | $0.00 | $0.00 | $88.59 | $0.00 |
| 2024 | 32063 | CONSERVE - CONSERVATION FUTURES | $1.33 | $1.33 | $0.00 | $0.00 | $2.66 | $0.00 |
| 2024 | 32063 | COROADS - COUNTY ROADS (ROADS, DIV TO CE) | $35.65 | $35.63 | $0.00 | $0.00 | $71.28 | $0.00 |
| 2024 | 32063 | PORTPT - PORT DISTRICT | $18.30 | $18.29 | $0.00 | $0.00 | $36.59 | $0.00 |
| 2024 | 32063 | PUD1 - PUD #1 | $2.91 | $2.91 | $0.00 | $0.00 | $5.82 | $0.00 |
| 2024 | 32063 | LIB1 - LIBRARY DIST #1 | $13.79 | $13.79 | $0.00 | $0.00 | $27.58 | $0.00 |
| 2024 | 32063 | HD2 - HOSP DIST #2 | $2.59 | $2.58 | $0.00 | $0.00 | $5.17 | $0.00 |
| 2024 | 32063 | SD48 - SCHOOL DIST #48 | $46.36 | $46.36 | $0.00 | $0.00 | $92.72 | $0.00 |
| 2024 | 32063 | FD2 - FIRE DISTRICT #2 | $36.83 | $36.82 | $0.00 | $0.00 | $73.65 | $0.00 |
| 2024 | 32063 | EMS2 - FIRE DIST #2 EMS | $20.73 | $20.73 | $0.00 | $0.00 | $41.46 | $0.00 |
| 2024 | 32063 | CEM2 - CEMETERY DIST #2 | $1.18 | $1.18 | $0.00 | $0.00 | $2.36 | $0.00 |
| 2024 | 32063 | PARK1 - PARK & REC DIST #1 | $5.18 | $5.17 | $0.00 | $0.00 | $10.35 | $0.00 |
| 2024 | 32063 | FP - DNR Forest Fire Protection Assmt | $8.50 | $8.50 | $0.00 | $0.00 | $17.00 | $0.00 |
| 2024 | 32063 | FPLCA - DNR Landowner Contingency Assmt | $3.00 | $3.00 | $0.00 | $0.00 | $6.00 | $0.00 |
| 2024 | 32063 | JCCD - JC Conservation District | $2.73 | $2.73 | $0.00 | $0.00 | $5.46 | $0.00 |
| 2024 | 32063 | NWA - Noxious Weed Assessment | $2.90 | $2.90 | $0.00 | $0.00 | $5.80 | $0.00 |
| 2024 | 32063 | WAT - Clean Water District | $12.50 | $12.50 | $0.00 | $0.00 | $25.00 | $0.00 |
| 2024 | 32063 | FP ADMIN - FP ADMIN | $0.50 | $0.00 | $0.00 | $0.00 | $0.50 | $0.00 |
| 2024 | 32063 | TOTAL: | $362.79 | $362.22 | $0.00 | $0.00 | $725.01 | $0.00 |
|
| 2024 | 32063 | $362.79 | $362.22 | $0.00 | $0.00 | $725.01 | $0.00 |
Statement Details |
| 2023 | 32105 | STATE - STATE LEVY (SCHOOL) | $96.62 | $96.62 | $0.00 | $0.00 | $193.24 | $0.00 |
| 2023 | 32105 | COUNTY - COUNTY LEVIES (CE, DD, VET, MH) | $42.16 | $42.16 | $0.00 | $0.00 | $84.32 | $0.00 |
| 2023 | 32105 | CONSERVE - CONSERVATION FUTURES | $1.27 | $1.26 | $0.00 | $0.00 | $2.53 | $0.00 |
| 2023 | 32105 | COROADS - COUNTY ROADS (ROADS, DIV TO CE) | $34.12 | $34.11 | $0.00 | $0.00 | $68.23 | $0.00 |
| 2023 | 32105 | PORTPT - PORT DISTRICT | $17.77 | $17.75 | $0.00 | $0.00 | $35.52 | $0.00 |
| 2023 | 32105 | PUD1 - PUD #1 | $2.80 | $2.79 | $0.00 | $0.00 | $5.59 | $0.00 |
| 2023 | 32105 | LIB1 - LIBRARY DIST #1 | $13.20 | $13.20 | $0.00 | $0.00 | $26.40 | $0.00 |
| 2023 | 32105 | HD2 - HOSP DIST #2 | $2.47 | $2.45 | $0.00 | $0.00 | $4.92 | $0.00 |
| 2023 | 32105 | SD48 - SCHOOL DIST #48 | $46.66 | $46.66 | $0.00 | $0.00 | $93.32 | $0.00 |
| 2023 | 32105 | FD2 - FIRE DISTRICT #2 | $36.60 | $36.60 | $0.00 | $0.00 | $73.20 | $0.00 |
| 2023 | 32105 | EMS2 - FIRE DIST #2 EMS | $20.52 | $20.52 | $0.00 | $0.00 | $41.04 | $0.00 |
| 2023 | 32105 | CEM2 - CEMETERY DIST #2 | $1.17 | $1.16 | $0.00 | $0.00 | $2.33 | $0.00 |
| 2023 | 32105 | PARK1 - PARK & REC DIST #1 | $4.59 | $4.58 | $0.00 | $0.00 | $9.17 | $0.00 |
| 2023 | 32105 | FP - DNR Forest Fire Protection Assmt | $8.50 | $8.50 | $0.00 | $0.00 | $17.00 | $0.00 |
| 2023 | 32105 | FPLCA - DNR Landowner Contingency Assmt | $3.00 | $3.00 | $0.00 | $0.00 | $6.00 | $0.00 |
| 2023 | 32105 | JCCD - JC Conservation District | $2.73 | $2.73 | $0.00 | $0.00 | $5.46 | $0.00 |
| 2023 | 32105 | NWA - Noxious Weed Assessment | $2.90 | $2.90 | $0.00 | $0.00 | $5.80 | $0.00 |
| 2023 | 32105 | WAT - Clean Water District | $12.00 | $12.00 | $0.00 | $0.00 | $24.00 | $0.00 |
| 2023 | 32105 | FP ADMIN - FP ADMIN | $0.50 | $0.00 | $0.00 | $0.00 | $0.50 | $0.00 |
| 2023 | 32105 | TOTAL: | $349.58 | $348.99 | $0.00 | $0.00 | $698.57 | $0.00 |
|
| 2023 | 32105 | $349.58 | $348.99 | $0.00 | $0.00 | $698.57 | $0.00 |
Values
| (+) Improvement Homesite Value: | + | $0 | |
| (+) Improvement Non-Homesite Value: | + | $0 | |
| (+) Land Homesite Value: | + | $0 | |
| (+) Land Non-Homesite Value: | + | $100,408 | |
| (+) Curr Use (HS): | + | $0 | $0 |
| (+) Curr Use (NHS): | + | $0 | $0 |
| | | -------------------------- | |
| (=) Market Value: | = | $100,408 | |
| (–) Productivity Loss: | – | $0 | |
| | | -------------------------- | |
| (=) Subtotal: | = | $100,408 | |
| (+) Senior Appraised Value: | + | $0 | |
| (+) Non-Senior Appraised Value: | + | $100,408 | |
| | | -------------------------- | |
| (=) Total Appraised Value: | = | $100,408 | |
| (–) Senior Exemption Loss: | – | $0 | |
| (–) Exemption Loss: | – | $0 | |
| | | -------------------------- | |
| (=) Taxable Value: | = | $100,408 | |
Taxing Jurisdiction
| Owner: | SHANA B CANTONI | | |
| % Ownership: | 100.0000000000% | | |
| Total Value: | $100,408 | | |
| Tax Area: | 0323 - 1-48F2E2P1H2C2L1 |
| CE | COUNTY CURRENT EXPENSE | 0.9034619479 | $100,408 | $100,408 | $90.71 | | |
| CNTYDD | DEVELOPMENTAL DISABILITIES | 0.0052121823 | $100,408 | $100,408 | $0.52 | | |
| CNTYVET | VETERANS RELIEF | 0.0052777810 | $100,408 | $100,408 | $0.53 | | |
| MENTAL | MENTAL HEALTH | 0.0052121823 | $100,408 | $100,408 | $0.52 | | |
| ROADS | COUNTY ROADS | 0.7415066410 | $100,408 | $100,408 | $74.45 | | |
| ROADSCU | COUNTY ROADS TO CUR EXP | 0.0000000000 | $100,408 | $100,408 | $0.00 | | |
| HOSP2CASH | HOSP DIST #2 GENERAL | 0.0536075306 | $100,408 | $100,408 | $5.38 | | |
| SCH48MO | SCHOOL DIST #48 EP & O | 1.4120478917 | $100,408 | $100,408 | $141.78 | | |
| CEM2 | CEMETERY DIST #2 GENERAL | 0.0241266154 | $100,408 | $100,408 | $2.42 | | |
| CONSERVE | CONSERVATION FUTURES | 0.0275621078 | $100,408 | $100,408 | $2.77 | | |
| FD2 | FIRE DIST #2 GENERAL | 0.7549976873 | $100,408 | $100,408 | $75.81 | | |
| LIB1 | LIBRARY DIST #1 GENERAL | 0.2868827388 | $100,408 | $100,408 | $28.81 | | |
| PARK1 | PARK & REC DIST #1 GENERAL | 0.1474441110 | $100,408 | $100,408 | $14.80 | | |
| PORTPT | PORT OF PT GENERAL | 0.1134941229 | $100,408 | $100,408 | $11.40 | | |
| PORTPTIDD | PORT OF PT IDD 2019 | 0.2577346692 | $100,408 | $100,408 | $25.88 | | |
| PUD1 | PUD #1 GENERAL | 0.0597888892 | $100,408 | $100,408 | $6.00 | | |
| STATE | STATE SCHOOL PART 1 | 1.4940692947 | $100,408 | $100,408 | $150.02 | | |
| STATE2 | STATE SCHOOL PART 2 | 0.8050170049 | $100,408 | $100,408 | $80.83 | | |
| EMS2 | FIRE DIST #2 EMS | 0.4251727858 | $100,408 | $100,408 | $42.69 | | |
| | Total Tax Rate: | 7.5226161838 | | | | | |
| | | | | Taxes w/Current Exemptions: | $755.32 | | |
| | | | | Taxes w/o Exemptions: | $755.32 | | |
Improvement / Building
Sketch
| No sketches available for this property. |
Property Image
Land
| 1 | 2267-1515F | | 0.0000 | 0.00 | 74.00 | 0.00 | 0.00 | $24,339 | $0 |
| 2 | 1575A | | 4.1800 | 182080.80 | 0.00 | 0.00 | 0.00 | $38,456 | $0 |
| 3 | 9301F | | 0.0000 | 0.00 | 0.00 | 0.00 | 0.00 | $3,113 | $0 |
| 4 | 2267-1375S | | 1.0000 | 43560.00 | 0.00 | 0.00 | 1.00 | $34,500 | $0 |
Roll Value History
| 2026 | N/A | N/A | N/A | N/A | N/A |
| 2025 | $0 | $100,408 | $0 | $100,408 | $100,408 |
| 2024 | $0 | $100,408 | $0 | $100,408 | $100,408 |
| 2023 | $0 | $89,482 | $0 | $89,482 | $89,482 |
| 2022 | $0 | $82,086 | $0 | $82,086 | $82,086 |
Deed and Sales History
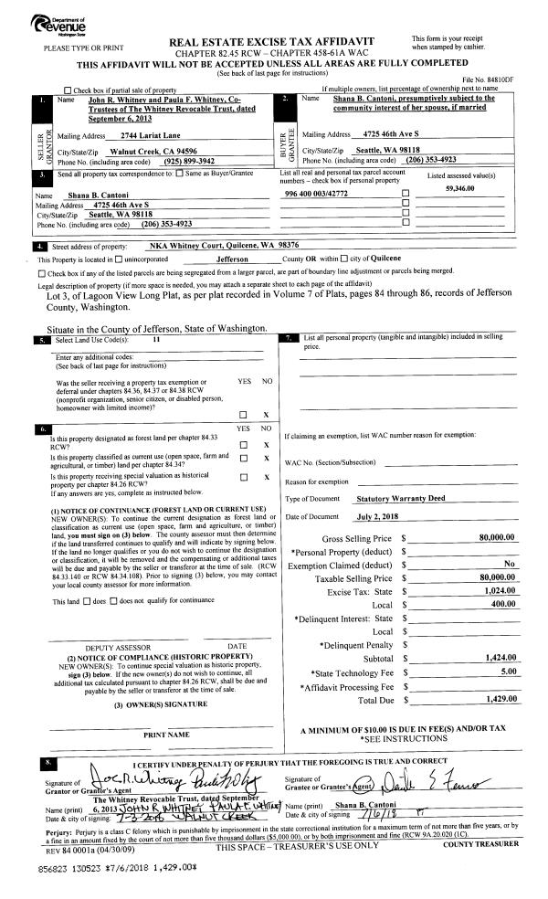
| 1 | 07/02/2018 | SWD | Statutory Warranty Deed | WHITNEY REVOCABLE TRUST | SHANA B CANTONI | | | $80,000.00 | 130523 | |
| 2 | 06/14/2016 | QCD | Quit Claim Deed | JOHN R WHITNEY | WHITNEY REVOCABLE TRUST | | | | 125707 | |
| 3 | 06/04/2016 | QCD | Quit Claim Deed | WHITNEY TOANDOS LLC | JOHN R WHITNEY | | | | 125706 | |
| 4 | 12/22/1997 | QCD | Quit Claim Deed | WHITNEY, LUCILE R | WHITNEY, DAVID W | 0 | 0 | $25,500.00 | 83522 | 0 |
| 5 | 12/22/1997 | QCD | Quit Claim Deed | WHITNEY, DAVID W | WHITNEY TOANDOS LLC | 0 | 0 | $0.00 | 83526 | 0 |
Payout Agreement
| No payout information available.. |