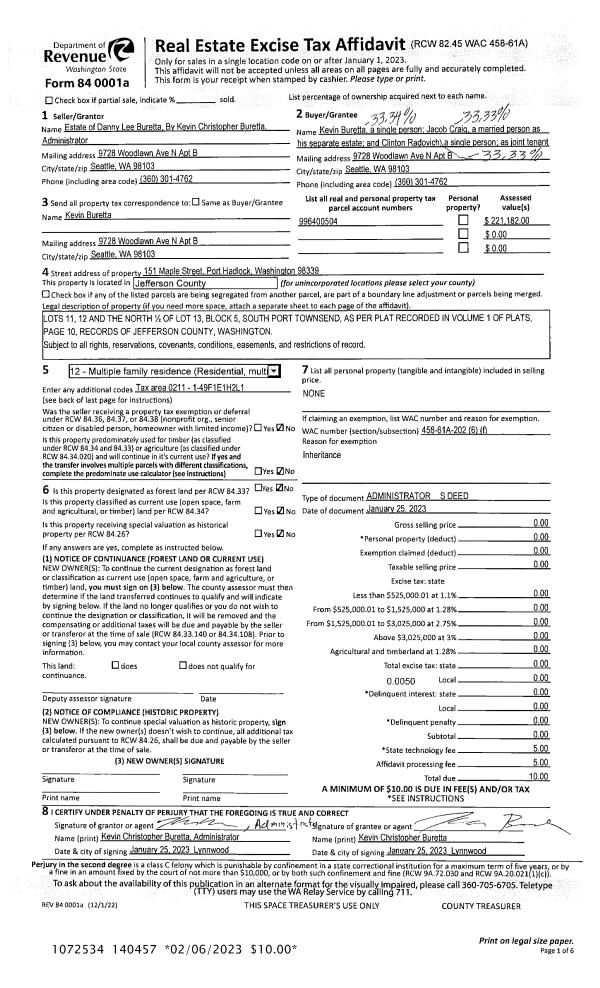
Property
Account |
| Property ID: | 42812 | Abbreviated Legal Description: | SOUTH PORT TOWNSEND BLK 5, LOTS 11 & 12(ALL), 13(N1/2) |
| Parcel # / Geo ID: | 996400504 | Agent Code: | |
| Type: | Real | | |
| Tax Area: | 0211 - 1-49F1E1H2L1 | Land Use Code | 12 |
| Open Space: | N | DFL | N |
| Historic Property: | N | Remodel Property: | N |
| Multi-Family Redevelopment: | N | | |
| Township: | 29N | Section: | 2 |
| Range: | 1W |
Location |
| Address: | 151 MAPLE ST PORT HADLOCK, WA 98339 | Mapsco: | 127/038 |
| Neighborhood: | HAYDEN'S; PHILLIP'S TO IRONDALE; SOUTH PORT TOWNSEND | Map ID: | |
| Neighborhood CD: | 4212 |
Owner |
| Name: | KEVIN BURETTA | Owner ID: | 108285 |
| Mailing Address: | JACOB CRAIG CLINTON RADOVICH 9728 WOODLAWN AVE N APT B SEATTLE, WA 98103-3530 | % Ownership: | 100.0000000000% |
| | | Exemptions: | |
Pay Tax Due
Select the appropriate checkbox next to the year to be paid. Multiple years may be selected.
*Convenience Fee not included
Taxes and Assessment Details
Property Tax Information as of
03/12/2026
Click on "Statement Details" to expand or collapse a tax statement.
* Please enter a valid date ** Please enter a valid date *
Statement Details |
| 2026 | 31971 | STATE - STATE LEVY (SCHOOL) | $317.53 | $317.52 | $0.00 | $0.00 | $0.00 | $635.05 |
| 2026 | 31971 | COUNTY - COUNTY LEVIES (CE, DD, VET, MH) | $126.95 | $126.94 | $0.00 | $0.00 | $0.00 | $253.89 |
| 2026 | 31971 | CONSERVE - CONSERVATION FUTURES | $3.81 | $3.80 | $0.00 | $0.00 | $0.00 | $7.61 |
| 2026 | 31971 | COROADS - COUNTY ROADS (ROADS, DIV TO CE) | $102.41 | $102.41 | $0.00 | $0.00 | $0.00 | $204.82 |
| 2026 | 31971 | PORTPT - PORT DISTRICT | $51.28 | $51.26 | $0.00 | $0.00 | $0.00 | $102.54 |
| 2026 | 31971 | PUD1 - PUD #1 | $8.26 | $8.25 | $0.00 | $0.00 | $0.00 | $16.51 |
| 2026 | 31971 | LIB1 - LIBRARY DIST #1 | $39.62 | $39.62 | $0.00 | $0.00 | $0.00 | $79.24 |
| 2026 | 31971 | HD2 - HOSP DIST #2 | $7.41 | $7.40 | $0.00 | $0.00 | $0.00 | $14.81 |
| 2026 | 31971 | SD49 - SCHOOL DIST #49 | $174.79 | $174.78 | $0.00 | $0.00 | $0.00 | $349.57 |
| 2026 | 31971 | FD1 - FIRE DISTRICT #1 | $168.11 | $168.10 | $0.00 | $0.00 | $0.00 | $336.21 |
| 2026 | 31971 | EMS1 - FIRE DIST #1 EMS | $64.64 | $64.63 | $0.00 | $0.00 | $0.00 | $129.27 |
| 2026 | 31971 | JCCD - JC Conservation District | $2.55 | $2.55 | $0.00 | $0.00 | $0.00 | $5.10 |
| 2026 | 31971 | NWA - Noxious Weed Assessment | $2.98 | $2.97 | $0.00 | $0.00 | $0.00 | $5.95 |
| 2026 | 31971 | OSS - On Site Septic | $23.10 | $23.10 | $0.00 | $0.00 | $0.00 | $46.20 |
| 2026 | 31971 | WAT - Clean Water District | $13.00 | $13.00 | $0.00 | $0.00 | $0.00 | $26.00 |
| 2026 | 31971 | TOTAL: | $1106.44 | $1106.33 | $0.00 | $0.00 | $0.00 | $2212.77 |
|
| 2026 | 31971 | $1106.44 | $1106.33 | $0.00 | $0.00 | $0.00 | $2212.77 |
Statement Details |
| 2025 | 32044 | STATE - STATE LEVY (SCHOOL) | $316.54 | $316.53 | $0.00 | $0.00 | $633.07 | $0.00 |
| 2025 | 32044 | COUNTY - COUNTY LEVIES (CE, DD, VET, MH) | $124.50 | $124.46 | $0.00 | $0.00 | $248.96 | $0.00 |
| 2025 | 32044 | CONSERVE - CONSERVATION FUTURES | $3.74 | $3.73 | $0.00 | $0.00 | $7.47 | $0.00 |
| 2025 | 32044 | COROADS - COUNTY ROADS (ROADS, DIV TO CE) | $99.73 | $99.72 | $0.00 | $0.00 | $199.45 | $0.00 |
| 2025 | 32044 | PORTPT - PORT DISTRICT | $50.80 | $50.79 | $0.00 | $0.00 | $101.59 | $0.00 |
| 2025 | 32044 | PUD1 - PUD #1 | $8.15 | $8.14 | $0.00 | $0.00 | $16.29 | $0.00 |
| 2025 | 32044 | LIB1 - LIBRARY DIST #1 | $38.58 | $38.58 | $0.00 | $0.00 | $77.16 | $0.00 |
| 2025 | 32044 | HD2 - HOSP DIST #2 | $7.26 | $7.26 | $0.00 | $0.00 | $14.52 | $0.00 |
| 2025 | 32044 | SD49 - SCHOOL DIST #49 | $169.65 | $169.63 | $0.00 | $0.00 | $339.28 | $0.00 |
| 2025 | 32044 | FD1 - FIRE DISTRICT #1 | $164.26 | $164.26 | $0.00 | $0.00 | $328.52 | $0.00 |
| 2025 | 32044 | EMS1 - FIRE DIST #1 EMS | $63.18 | $63.18 | $0.00 | $0.00 | $126.36 | $0.00 |
| 2025 | 32044 | JCCD - JC Conservation District | $2.55 | $2.55 | $0.00 | $0.00 | $5.10 | $0.00 |
| 2025 | 32044 | NWA - Noxious Weed Assessment | $2.15 | $2.15 | $0.00 | $0.00 | $4.30 | $0.00 |
| 2025 | 32044 | OSS - On Site Septic | $21.50 | $21.50 | $0.00 | $0.00 | $43.00 | $0.00 |
| 2025 | 32044 | WAT - Clean Water District | $13.00 | $13.00 | $0.00 | $0.00 | $26.00 | $0.00 |
| 2025 | 32044 | TOTAL: | $1085.59 | $1085.48 | $0.00 | $0.00 | $2171.07 | $0.00 |
|
| 2025 | 32044 | $1085.59 | $1085.48 | $0.00 | $0.00 | $2171.07 | $0.00 |
Statement Details |
| 2024 | 32103 | STATE - STATE LEVY (SCHOOL) | $291.26 | $291.25 | $0.00 | $0.00 | $582.51 | $0.00 |
| 2024 | 32103 | COUNTY - COUNTY LEVIES (CE, DD, VET, MH) | $124.65 | $124.62 | $0.00 | $0.00 | $249.27 | $0.00 |
| 2024 | 32103 | CONSERVE - CONSERVATION FUTURES | $3.74 | $3.73 | $0.00 | $0.00 | $7.47 | $0.00 |
| 2024 | 32103 | COROADS - COUNTY ROADS (ROADS, DIV TO CE) | $100.29 | $100.28 | $0.00 | $0.00 | $200.57 | $0.00 |
| 2024 | 32103 | PORTPT - PORT DISTRICT | $51.48 | $51.48 | $0.00 | $0.00 | $102.96 | $0.00 |
| 2024 | 32103 | PUD1 - PUD #1 | $8.19 | $8.18 | $0.00 | $0.00 | $16.37 | $0.00 |
| 2024 | 32103 | LIB1 - LIBRARY DIST #1 | $38.80 | $38.80 | $0.00 | $0.00 | $77.60 | $0.00 |
| 2024 | 32103 | HD2 - HOSP DIST #2 | $7.27 | $7.27 | $0.00 | $0.00 | $14.54 | $0.00 |
| 2024 | 32103 | SD49 - SCHOOL DIST #49 | $130.06 | $130.05 | $0.00 | $0.00 | $260.11 | $0.00 |
| 2024 | 32103 | FD1 - FIRE DISTRICT #1 | $164.79 | $164.79 | $0.00 | $0.00 | $329.58 | $0.00 |
| 2024 | 32103 | EMS1 - FIRE DIST #1 EMS | $62.95 | $62.94 | $0.00 | $0.00 | $125.89 | $0.00 |
| 2024 | 32103 | JCCD - JC Conservation District | $2.55 | $2.55 | $0.00 | $0.00 | $5.10 | $0.00 |
| 2024 | 32103 | NWA - Noxious Weed Assessment | $2.15 | $2.15 | $0.00 | $0.00 | $4.30 | $0.00 |
| 2024 | 32103 | OSS - On Site Septic | $21.00 | $21.00 | $0.00 | $0.00 | $42.00 | $0.00 |
| 2024 | 32103 | WAT - Clean Water District | $12.50 | $12.50 | $0.00 | $0.00 | $25.00 | $0.00 |
| 2024 | 32103 | TOTAL: | $1021.68 | $1021.59 | $0.00 | $0.00 | $2043.27 | $0.00 |
|
| 2024 | 32103 | $1021.68 | $1021.59 | $0.00 | $0.00 | $2043.27 | $0.00 |
Statement Details |
| 2023 | 32145 | STATE - STATE LEVY (SCHOOL) | $260.35 | $260.34 | $0.00 | $0.00 | $520.69 | $0.00 |
| 2023 | 32145 | COUNTY - COUNTY LEVIES (CE, DD, VET, MH) | $113.63 | $113.59 | $0.00 | $0.00 | $227.22 | $0.00 |
| 2023 | 32145 | CONSERVE - CONSERVATION FUTURES | $3.41 | $3.40 | $0.00 | $0.00 | $6.81 | $0.00 |
| 2023 | 32145 | COROADS - COUNTY ROADS (ROADS, DIV TO CE) | $91.93 | $91.91 | $0.00 | $0.00 | $183.84 | $0.00 |
| 2023 | 32145 | PORTPT - PORT DISTRICT | $47.86 | $47.86 | $0.00 | $0.00 | $95.72 | $0.00 |
| 2023 | 32145 | PUD1 - PUD #1 | $7.53 | $7.53 | $0.00 | $0.00 | $15.06 | $0.00 |
| 2023 | 32145 | LIB1 - LIBRARY DIST #1 | $35.56 | $35.56 | $0.00 | $0.00 | $71.12 | $0.00 |
| 2023 | 32145 | HD2 - HOSP DIST #2 | $6.64 | $6.62 | $0.00 | $0.00 | $13.26 | $0.00 |
| 2023 | 32145 | SD49 - SCHOOL DIST #49 | $121.70 | $121.70 | $0.00 | $0.00 | $243.40 | $0.00 |
| 2023 | 32145 | FD1 - FIRE DISTRICT #1 | $93.59 | $93.59 | $0.00 | $0.00 | $187.18 | $0.00 |
| 2023 | 32145 | EMS1 - FIRE DIST #1 EMS | $39.81 | $39.81 | $0.00 | $0.00 | $79.62 | $0.00 |
| 2023 | 32145 | JCCD - JC Conservation District | $2.55 | $2.55 | $0.00 | $0.00 | $5.10 | $0.00 |
| 2023 | 32145 | NWA - Noxious Weed Assessment | $2.15 | $2.15 | $0.00 | $0.00 | $4.30 | $0.00 |
| 2023 | 32145 | OSS - On Site Septic | $20.50 | $20.50 | $0.00 | $0.00 | $41.00 | $0.00 |
| 2023 | 32145 | WAT - Clean Water District | $12.00 | $12.00 | $0.00 | $0.00 | $24.00 | $0.00 |
| 2023 | 32145 | TOTAL: | $859.21 | $859.11 | $0.00 | $0.00 | $1718.32 | $0.00 |
|
| 2023 | 32145 | $859.21 | $859.11 | $0.00 | $0.00 | $1718.32 | $0.00 |
Values
| (+) Improvement Homesite Value: | + | $0 | |
| (+) Improvement Non-Homesite Value: | + | $168,419 | |
| (+) Land Homesite Value: | + | $0 | |
| (+) Land Non-Homesite Value: | + | $107,800 | |
| (+) Curr Use (HS): | + | $0 | $0 |
| (+) Curr Use (NHS): | + | $0 | $0 |
| | | -------------------------- | |
| (=) Market Value: | = | $276,219 | |
| (–) Productivity Loss: | – | $0 | |
| | | -------------------------- | |
| (=) Subtotal: | = | $276,219 | |
| (+) Senior Appraised Value: | + | $0 | |
| (+) Non-Senior Appraised Value: | + | $276,219 | |
| | | -------------------------- | |
| (=) Total Appraised Value: | = | $276,219 | |
| (–) Senior Exemption Loss: | – | $0 | |
| (–) Exemption Loss: | – | $0 | |
| | | -------------------------- | |
| (=) Taxable Value: | = | $276,219 | |
Taxing Jurisdiction
| Owner: | KEVIN BURETTA | | |
| % Ownership: | 100.0000000000% | | |
| Total Value: | $276,219 | | |
| Tax Area: | 0211 - 1-49F1E1H2L1 |
| CE | COUNTY CURRENT EXPENSE | 0.9034619479 | $276,219 | $276,219 | $249.55 | | |
| CNTYDD | DEVELOPMENTAL DISABILITIES | 0.0052121823 | $276,219 | $276,219 | $1.44 | | |
| CNTYVET | VETERANS RELIEF | 0.0052777810 | $276,219 | $276,219 | $1.46 | | |
| MENTAL | MENTAL HEALTH | 0.0052121823 | $276,219 | $276,219 | $1.44 | | |
| ROADS | COUNTY ROADS | 0.7415066410 | $276,219 | $276,219 | $204.82 | | |
| ROADSCU | COUNTY ROADS TO CUR EXP | 0.0000000000 | $276,219 | $276,219 | $0.00 | | |
| HOSP2CASH | HOSP DIST #2 GENERAL | 0.0536075306 | $276,219 | $276,219 | $14.81 | | |
| SCH49CP | SCHOOL DIST #49 CAP PROJ | 0.6279093905 | $276,219 | $276,219 | $173.44 | | |
| SCH49MO | SCHOOL DIST #49 EP & O | 0.6376483602 | $276,219 | $276,219 | $176.13 | | |
| CONSERVE | CONSERVATION FUTURES | 0.0275621078 | $276,219 | $276,219 | $7.61 | | |
| EMS1 | FIRE DIST #1 EMS | 0.4679948282 | $276,219 | $276,219 | $129.27 | | |
| FD1 | FIRE DIST #1 GENERAL | 1.2171942929 | $276,219 | $276,219 | $336.21 | | |
| LIB1 | LIBRARY DIST #1 GENERAL | 0.2868827388 | $276,219 | $276,219 | $79.24 | | |
| PORTPT | PORT OF PT GENERAL | 0.1134941229 | $276,219 | $276,219 | $31.35 | | |
| PORTPTIDD | PORT OF PT IDD 2019 | 0.2577346692 | $276,219 | $276,219 | $71.19 | | |
| PUD1 | PUD #1 GENERAL | 0.0597888892 | $276,219 | $276,219 | $16.51 | | |
| STATE | STATE SCHOOL PART 1 | 1.4940692947 | $276,219 | $276,219 | $412.69 | | |
| STATE2 | STATE SCHOOL PART 2 | 0.8050170049 | $276,219 | $276,219 | $222.36 | | |
| | Total Tax Rate: | 7.7095739644 | | | | | |
| | | | | Taxes w/Current Exemptions: | $2,129.52 | | |
| | | | | Taxes w/o Exemptions: | $2,129.52 | | |
Improvement / Building
| Improvement #1: | Residential Bldg | State Code: | 12 | 1920.0 sqft | Value: | $168,419 |
| Bathrooms (#): | 1 (FULL) | Bedrooms (#): | 2 | | Exterior Wall: | SI/ST | Fireplace: | SIN 1-FAIR | | Floor Construction: | FRAME | Foundation: | CONPR | | Heating/Cooling: | ELBB | Inside Verify: | YES-FIX | | Roof Cover: | COMP |   |   |
|
| | Type | Description | Class CD | Sub Class CD | Year Built | Area |
| | MA | Main Area | 3+ | D1S | 1976 | 1920.0 |
| | HCPOR | House Concrete Porch | 3 | * | 1976 | 72.0 |
| | DATT | Duplex Attached Garage | 2 | D1S | 1976 | 528.0 |
Sketch
| No sketches available for this property. |
Property Image
Land
| 1 | 4212-1187L | | 0.0000 | 0.00 | 0.00 | 0.00 | 1.00 | $3,300 | $0 |
| 2 | 4212-2285S | | 0.0000 | 0.00 | 0.00 | 0.00 | 1.00 | $71,500 | $0 |
| 3 | 9808 | | 0.0000 | 0.00 | 0.00 | 0.00 | 1.00 | $33,000 | $0 |
Roll Value History
| 2026 | N/A | N/A | N/A | N/A | N/A |
| 2025 | $168,419 | $107,800 | $0 | $276,219 | $276,219 |
| 2024 | $161,096 | $102,900 | $0 | $263,996 | $263,996 |
| 2023 | $153,774 | $98,000 | $0 | $251,774 | $251,774 |
| 2022 | $123,182 | $98,000 | $0 | $221,182 | $221,182 |
Deed and Sales History
| 1 | 01/25/2023 | ADM | Administrator Deed | DANNY L BURETTA | KEVIN BURETTA | | | | 140457 | |
| 2 | 01/01/2020 | QCD | Quit Claim Deed | RONALD L MARLOW LIVING TRUST | DANNY L BURETTA | | | | 133756 | |
| 3 | 02/13/2015 | QCD | Quit Claim Deed | DANNY L BURETTA LIVING TRUST | RONALD L MARLOW LIVING TRUST | | | | 122690 | |
| 4 | 07/02/2013 | QCD | Quit Claim Deed | DAN L BURETTA | DANNY L BURETTA LIVING TRUST | | | | 119750 | |
| 5 | 06/07/2000 | SWD | Statutory Warranty Deed | BARNHOUSE, HOWARD T | BURETTA, DAN L/MARY E | 0 | 0 | $110,000.00 | 89830 | 0 |
Payout Agreement
| No payout information available.. |