Property
Account |
| Property ID: | 42816 | Abbreviated Legal Description: | SOUTH PORT TOWNSEND BLK 5 LOTS 6(S1/2),7 & 8(ALL) WITH S/VAC 2ND ST ADJ |
| Parcel # / Geo ID: | 996400508 | Agent Code: | |
| Type: | Real | | |
| Tax Area: | 0211 - 1-49F1E1H2L1 | Land Use Code | 12 |
| Open Space: | N | DFL | N |
| Historic Property: | N | Remodel Property: | N |
| Multi-Family Redevelopment: | N | | |
| Township: | 29N | Section: | 2 |
| Range: | 1W |
Location |
| Address: | 120 D ST PORT HADLOCK, WA 98339 | Mapsco: | 127/036 |
| Neighborhood: | HAYDEN'S; PHILLIP'S TO IRONDALE; SOUTH PORT TOWNSEND | Map ID: | |
| Neighborhood CD: | 4212 |
Owner |
| Name: | BOURLAND FAMILY LIVING TRUST | Owner ID: | 111238 |
| Mailing Address: | KENNETH W & SARA M BOURLAND TRUSTEES 37190 S ROCK CREST DR TUCSON, AZ 85739-1184 | % Ownership: | 100.0000000000% |
| | | Exemptions: | |
Pay Tax Due
Select the appropriate checkbox next to the year to be paid. Multiple years may be selected.
*Convenience Fee not included
Taxes and Assessment Details
Property Tax Information as of
03/11/2026
Click on "Statement Details" to expand or collapse a tax statement.
* Please enter a valid date ** Please enter a valid date *
Statement Details |
| 2026 | 31975 | STATE - STATE LEVY (SCHOOL) | $349.54 | $349.54 | $0.00 | $0.00 | $0.00 | $699.08 |
| 2026 | 31975 | COUNTY - COUNTY LEVIES (CE, DD, VET, MH) | $139.74 | $139.74 | $0.00 | $0.00 | $0.00 | $279.48 |
| 2026 | 31975 | CONSERVE - CONSERVATION FUTURES | $4.19 | $4.19 | $0.00 | $0.00 | $0.00 | $8.38 |
| 2026 | 31975 | COROADS - COUNTY ROADS (ROADS, DIV TO CE) | $112.74 | $112.73 | $0.00 | $0.00 | $0.00 | $225.47 |
| 2026 | 31975 | PORTPT - PORT DISTRICT | $56.45 | $56.43 | $0.00 | $0.00 | $0.00 | $112.88 |
| 2026 | 31975 | PUD1 - PUD #1 | $9.09 | $9.09 | $0.00 | $0.00 | $0.00 | $18.18 |
| 2026 | 31975 | LIB1 - LIBRARY DIST #1 | $43.62 | $43.61 | $0.00 | $0.00 | $0.00 | $87.23 |
| 2026 | 31975 | HD2 - HOSP DIST #2 | $8.15 | $8.15 | $0.00 | $0.00 | $0.00 | $16.30 |
| 2026 | 31975 | SD49 - SCHOOL DIST #49 | $192.42 | $192.40 | $0.00 | $0.00 | $0.00 | $384.82 |
| 2026 | 31975 | FD1 - FIRE DISTRICT #1 | $185.06 | $185.05 | $0.00 | $0.00 | $0.00 | $370.11 |
| 2026 | 31975 | EMS1 - FIRE DIST #1 EMS | $71.15 | $71.15 | $0.00 | $0.00 | $0.00 | $142.30 |
| 2026 | 31975 | JCCD - JC Conservation District | $2.55 | $2.55 | $0.00 | $0.00 | $0.00 | $5.10 |
| 2026 | 31975 | NWA - Noxious Weed Assessment | $2.98 | $2.97 | $0.00 | $0.00 | $0.00 | $5.95 |
| 2026 | 31975 | OSS - On Site Septic | $23.10 | $23.10 | $0.00 | $0.00 | $0.00 | $46.20 |
| 2026 | 31975 | WAT - Clean Water District | $13.00 | $13.00 | $0.00 | $0.00 | $0.00 | $26.00 |
| 2026 | 31975 | TOTAL: | $1213.78 | $1213.70 | $0.00 | $0.00 | $0.00 | $2427.48 |
|
| 2026 | 31975 | $1213.78 | $1213.70 | $0.00 | $0.00 | $0.00 | $2427.48 |
Statement Details |
| 2025 | 32048 | STATE - STATE LEVY (SCHOOL) | $348.48 | $348.47 | $0.00 | $0.00 | $696.95 | $0.00 |
| 2025 | 32048 | COUNTY - COUNTY LEVIES (CE, DD, VET, MH) | $137.05 | $137.02 | $0.00 | $0.00 | $274.07 | $0.00 |
| 2025 | 32048 | CONSERVE - CONSERVATION FUTURES | $4.11 | $4.11 | $0.00 | $0.00 | $8.22 | $0.00 |
| 2025 | 32048 | COROADS - COUNTY ROADS (ROADS, DIV TO CE) | $109.79 | $109.78 | $0.00 | $0.00 | $219.57 | $0.00 |
| 2025 | 32048 | PORTPT - PORT DISTRICT | $55.92 | $55.92 | $0.00 | $0.00 | $111.84 | $0.00 |
| 2025 | 32048 | PUD1 - PUD #1 | $8.97 | $8.96 | $0.00 | $0.00 | $17.93 | $0.00 |
| 2025 | 32048 | LIB1 - LIBRARY DIST #1 | $42.48 | $42.47 | $0.00 | $0.00 | $84.95 | $0.00 |
| 2025 | 32048 | HD2 - HOSP DIST #2 | $8.00 | $7.99 | $0.00 | $0.00 | $15.99 | $0.00 |
| 2025 | 32048 | SD49 - SCHOOL DIST #49 | $186.76 | $186.76 | $0.00 | $0.00 | $373.52 | $0.00 |
| 2025 | 32048 | FD1 - FIRE DISTRICT #1 | $180.83 | $180.83 | $0.00 | $0.00 | $361.66 | $0.00 |
| 2025 | 32048 | EMS1 - FIRE DIST #1 EMS | $69.56 | $69.55 | $0.00 | $0.00 | $139.11 | $0.00 |
| 2025 | 32048 | JCCD - JC Conservation District | $2.55 | $2.55 | $0.00 | $0.00 | $5.10 | $0.00 |
| 2025 | 32048 | NWA - Noxious Weed Assessment | $2.15 | $2.15 | $0.00 | $0.00 | $4.30 | $0.00 |
| 2025 | 32048 | OSS - On Site Septic | $21.50 | $21.50 | $0.00 | $0.00 | $43.00 | $0.00 |
| 2025 | 32048 | WAT - Clean Water District | $13.00 | $13.00 | $0.00 | $0.00 | $26.00 | $0.00 |
| 2025 | 32048 | TOTAL: | $1191.15 | $1191.06 | $0.00 | $0.00 | $2382.21 | $0.00 |
|
| 2025 | 32048 | $1191.15 | $1191.06 | $0.00 | $0.00 | $2382.21 | $0.00 |
Statement Details |
| 2024 | 32107 | STATE - STATE LEVY (SCHOOL) | $320.66 | $320.65 | $0.00 | $0.00 | $641.31 | $0.00 |
| 2024 | 32107 | COUNTY - COUNTY LEVIES (CE, DD, VET, MH) | $137.23 | $137.20 | $0.00 | $0.00 | $274.43 | $0.00 |
| 2024 | 32107 | CONSERVE - CONSERVATION FUTURES | $4.12 | $4.11 | $0.00 | $0.00 | $8.23 | $0.00 |
| 2024 | 32107 | COROADS - COUNTY ROADS (ROADS, DIV TO CE) | $110.42 | $110.40 | $0.00 | $0.00 | $220.82 | $0.00 |
| 2024 | 32107 | PORTPT - PORT DISTRICT | $56.67 | $56.67 | $0.00 | $0.00 | $113.34 | $0.00 |
| 2024 | 32107 | PUD1 - PUD #1 | $9.02 | $9.01 | $0.00 | $0.00 | $18.03 | $0.00 |
| 2024 | 32107 | LIB1 - LIBRARY DIST #1 | $42.72 | $42.71 | $0.00 | $0.00 | $85.43 | $0.00 |
| 2024 | 32107 | HD2 - HOSP DIST #2 | $8.01 | $8.00 | $0.00 | $0.00 | $16.01 | $0.00 |
| 2024 | 32107 | SD49 - SCHOOL DIST #49 | $143.20 | $143.18 | $0.00 | $0.00 | $286.38 | $0.00 |
| 2024 | 32107 | FD1 - FIRE DISTRICT #1 | $181.43 | $181.42 | $0.00 | $0.00 | $362.85 | $0.00 |
| 2024 | 32107 | EMS1 - FIRE DIST #1 EMS | $69.30 | $69.30 | $0.00 | $0.00 | $138.60 | $0.00 |
| 2024 | 32107 | JCCD - JC Conservation District | $2.55 | $2.55 | $0.00 | $0.00 | $5.10 | $0.00 |
| 2024 | 32107 | NWA - Noxious Weed Assessment | $2.15 | $2.15 | $0.00 | $0.00 | $4.30 | $0.00 |
| 2024 | 32107 | OSS - On Site Septic | $21.00 | $21.00 | $0.00 | $0.00 | $42.00 | $0.00 |
| 2024 | 32107 | WAT - Clean Water District | $12.50 | $12.50 | $0.00 | $0.00 | $25.00 | $0.00 |
| 2024 | 32107 | TOTAL: | $1120.98 | $1120.85 | $0.00 | $0.00 | $2241.83 | $0.00 |
|
| 2024 | 32107 | $1120.98 | $1120.85 | $0.00 | $0.00 | $2241.83 | $0.00 |
Statement Details |
| 2023 | 32149 | STATE - STATE LEVY (SCHOOL) | $283.58 | $283.57 | $0.00 | $0.00 | $567.15 | $0.00 |
| 2023 | 32149 | COUNTY - COUNTY LEVIES (CE, DD, VET, MH) | $123.74 | $123.73 | $0.00 | $0.00 | $247.47 | $0.00 |
| 2023 | 32149 | CONSERVE - CONSERVATION FUTURES | $3.71 | $3.71 | $0.00 | $0.00 | $7.42 | $0.00 |
| 2023 | 32149 | COROADS - COUNTY ROADS (ROADS, DIV TO CE) | $100.12 | $100.11 | $0.00 | $0.00 | $200.23 | $0.00 |
| 2023 | 32149 | PORTPT - PORT DISTRICT | $52.13 | $52.13 | $0.00 | $0.00 | $104.26 | $0.00 |
| 2023 | 32149 | PUD1 - PUD #1 | $8.21 | $8.20 | $0.00 | $0.00 | $16.41 | $0.00 |
| 2023 | 32149 | LIB1 - LIBRARY DIST #1 | $38.74 | $38.73 | $0.00 | $0.00 | $77.47 | $0.00 |
| 2023 | 32149 | HD2 - HOSP DIST #2 | $7.22 | $7.22 | $0.00 | $0.00 | $14.44 | $0.00 |
| 2023 | 32149 | SD49 - SCHOOL DIST #49 | $132.56 | $132.55 | $0.00 | $0.00 | $265.11 | $0.00 |
| 2023 | 32149 | FD1 - FIRE DISTRICT #1 | $101.94 | $101.94 | $0.00 | $0.00 | $203.88 | $0.00 |
| 2023 | 32149 | EMS1 - FIRE DIST #1 EMS | $43.37 | $43.36 | $0.00 | $0.00 | $86.73 | $0.00 |
| 2023 | 32149 | JCCD - JC Conservation District | $2.55 | $2.55 | $0.00 | $0.00 | $5.10 | $0.00 |
| 2023 | 32149 | NWA - Noxious Weed Assessment | $2.15 | $2.15 | $0.00 | $0.00 | $4.30 | $0.00 |
| 2023 | 32149 | OSS - On Site Septic | $20.50 | $20.50 | $0.00 | $0.00 | $41.00 | $0.00 |
| 2023 | 32149 | WAT - Clean Water District | $12.00 | $12.00 | $0.00 | $0.00 | $24.00 | $0.00 |
| 2023 | 32149 | TOTAL: | $932.52 | $932.45 | $0.00 | $0.00 | $1864.97 | $0.00 |
|
| 2023 | 32149 | $932.52 | $932.45 | $0.00 | $0.00 | $1864.97 | $0.00 |
Values
| (+) Improvement Homesite Value: | + | $0 | |
| (+) Improvement Non-Homesite Value: | + | $193,170 | |
| (+) Land Homesite Value: | + | $0 | |
| (+) Land Non-Homesite Value: | + | $110,902 | |
| (+) Curr Use (HS): | + | $0 | $0 |
| (+) Curr Use (NHS): | + | $0 | $0 |
| | | -------------------------- | |
| (=) Market Value: | = | $304,072 | |
| (–) Productivity Loss: | – | $0 | |
| | | -------------------------- | |
| (=) Subtotal: | = | $304,072 | |
| (+) Senior Appraised Value: | + | $0 | |
| (+) Non-Senior Appraised Value: | + | $304,072 | |
| | | -------------------------- | |
| (=) Total Appraised Value: | = | $304,072 | |
| (–) Senior Exemption Loss: | – | $0 | |
| (–) Exemption Loss: | – | $0 | |
| | | -------------------------- | |
| (=) Taxable Value: | = | $304,072 | |
Taxing Jurisdiction
| Owner: | BOURLAND FAMILY LIVING TRUST | | |
| % Ownership: | 100.0000000000% | | |
| Total Value: | $304,072 | | |
| Tax Area: | 0211 - 1-49F1E1H2L1 |
| CE | COUNTY CURRENT EXPENSE | 0.9034619479 | $304,072 | $304,072 | $274.72 | | |
| CNTYDD | DEVELOPMENTAL DISABILITIES | 0.0052121823 | $304,072 | $304,072 | $1.58 | | |
| CNTYVET | VETERANS RELIEF | 0.0052777810 | $304,072 | $304,072 | $1.60 | | |
| MENTAL | MENTAL HEALTH | 0.0052121823 | $304,072 | $304,072 | $1.58 | | |
| ROADS | COUNTY ROADS | 0.7415066410 | $304,072 | $304,072 | $225.47 | | |
| ROADSCU | COUNTY ROADS TO CUR EXP | 0.0000000000 | $304,072 | $304,072 | $0.00 | | |
| HOSP2CASH | HOSP DIST #2 GENERAL | 0.0536075306 | $304,072 | $304,072 | $16.30 | | |
| SCH49CP | SCHOOL DIST #49 CAP PROJ | 0.6279093905 | $304,072 | $304,072 | $190.93 | | |
| SCH49MO | SCHOOL DIST #49 EP & O | 0.6376483602 | $304,072 | $304,072 | $193.89 | | |
| CONSERVE | CONSERVATION FUTURES | 0.0275621078 | $304,072 | $304,072 | $8.38 | | |
| EMS1 | FIRE DIST #1 EMS | 0.4679948282 | $304,072 | $304,072 | $142.30 | | |
| FD1 | FIRE DIST #1 GENERAL | 1.2171942929 | $304,072 | $304,072 | $370.11 | | |
| LIB1 | LIBRARY DIST #1 GENERAL | 0.2868827388 | $304,072 | $304,072 | $87.23 | | |
| PORTPT | PORT OF PT GENERAL | 0.1134941229 | $304,072 | $304,072 | $34.51 | | |
| PORTPTIDD | PORT OF PT IDD 2019 | 0.2577346692 | $304,072 | $304,072 | $78.37 | | |
| PUD1 | PUD #1 GENERAL | 0.0597888892 | $304,072 | $304,072 | $18.18 | | |
| STATE | STATE SCHOOL PART 1 | 1.4940692947 | $304,072 | $304,072 | $454.30 | | |
| STATE2 | STATE SCHOOL PART 2 | 0.8050170049 | $304,072 | $304,072 | $244.78 | | |
| | Total Tax Rate: | 7.7095739644 | | | | | |
| | | | | Taxes w/Current Exemptions: | $2,344.23 | | |
| | | | | Taxes w/o Exemptions: | $2,344.23 | | |
Improvement / Building
| Improvement #1: | Residential Bldg | State Code: | 12 | 2120.0 sqft | Value: | $193,170 |
| Bathrooms (#): | 2 (FULL) | Bedrooms (#): | 2 | | Exterior Wall: | PL/T1 | Fireplace: | SIN 1-AVG | | Floor Construction: | FRAME | Foundation: | CONPR | | Heating/Cooling: | ELBB | Inside Verify: | YES-FIX | | Roof Cover: | SHAKE |   |   |
|
| | Type | Description | Class CD | Sub Class CD | Year Built | Area |
| | MA | Main Area | 3+ | D1S | 1976 | 2120.0 |
| | HWPOR | House Wood Porch | 3 | * | 1976 | 144.0 |
| | HDECK | House Deck | 3 | * | 1976 | 400.0 |
| | DATT | Duplex Attached Garage | 2 | D1S | 1976 | 480.0 |
Sketch
| No sketches available for this property. |
Property Image
Land
| 1 | 4212-1187L | | 0.0000 | 0.00 | 0.00 | 0.00 | 1.00 | $6,402 | $0 |
| 2 | 4212-2285S | | 0.0000 | 0.00 | 0.00 | 0.00 | 1.00 | $71,500 | $0 |
| 3 | 9808 | | 0.0000 | 0.00 | 0.00 | 0.00 | 1.00 | $33,000 | $0 |
Roll Value History
| 2026 | N/A | N/A | N/A | N/A | N/A |
| 2025 | $193,170 | $110,902 | $0 | $304,072 | $304,072 |
| 2024 | $184,771 | $105,861 | $0 | $290,632 | $290,632 |
| 2023 | $176,373 | $100,820 | $0 | $277,193 | $277,193 |
| 2022 | $140,095 | $100,820 | $0 | $240,915 | $240,915 |
Deed and Sales History
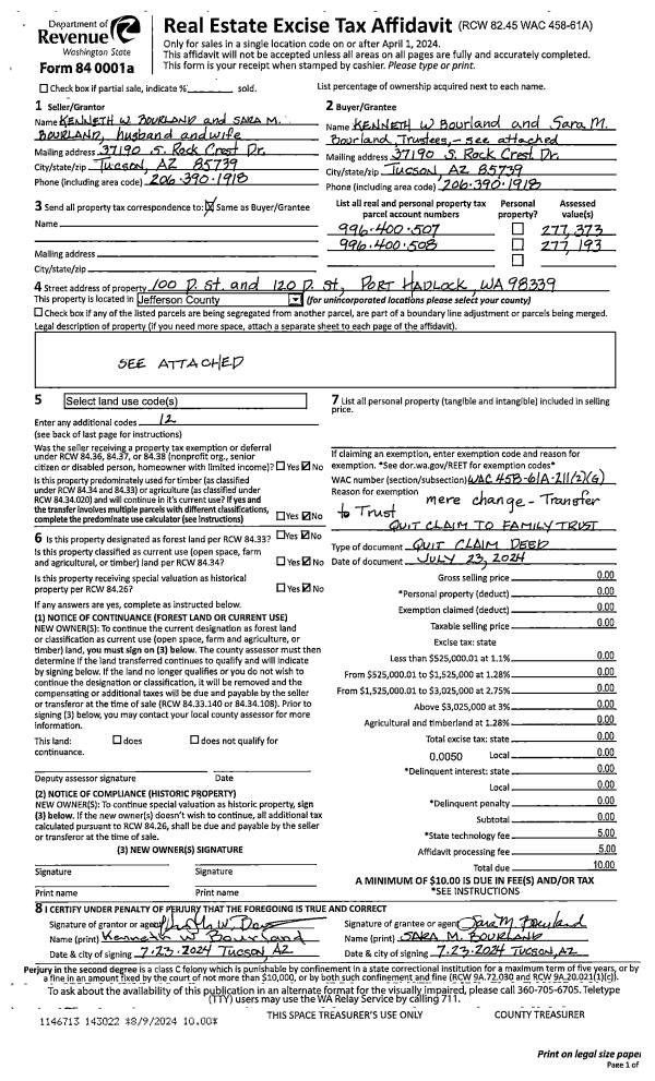
| 1 | 07/23/2024 | QCD | Quit Claim Deed | KENNETH W BOURLAND | BOURLAND FAMILY LIVING TRUST | | | | 143022 | |
Payout Agreement
| No payout information available.. |