Property
Account |
| Property ID: | 42891 | Abbreviated Legal Description: | SQUAMISH HARBOR BCH LOT 34 (INC. T.L.'S ADJ) |
| Parcel # / Geo ID: | 996600035 | Agent Code: | |
| Type: | Real | | |
| Tax Area: | 0213 - 1-49F1E1H2L1 | Land Use Code | 11 |
| Open Space: | N | DFL | N |
| Historic Property: | N | Remodel Property: | N |
| Multi-Family Redevelopment: | N | | |
| Township: | 27N | Section: | 5 |
| Range: | 1E |
Location |
| Address: | 491 SOUTH POINT RD PORT LUDLOW, WA 98365 | Mapsco: | 129/035 |
| Neighborhood: | PLAT OF SQUAMISH HARBOR BEACH | Map ID: | |
| Neighborhood CD: | 3415 |
Owner |
| Name: | ROBB B & CARA L RANKIN | Owner ID: | 101030 |
| Mailing Address: | 491 S POINT RD PORT LUDLOW, WA 98365-9298 | % Ownership: | 100.0000000000% |
| | | Exemptions: | |
Pay Tax Due
Select the appropriate checkbox next to the year to be paid. Multiple years may be selected.
*Convenience Fee not included
Taxes and Assessment Details
Property Tax Information as of
03/12/2026
Click on "Statement Details" to expand or collapse a tax statement.
* Please enter a valid date ** Please enter a valid date *
Statement Details |
| 2026 | 32050 | STATE - STATE LEVY (SCHOOL) | $757.68 | $757.66 | $0.00 | $0.00 | $0.00 | $1515.34 |
| 2026 | 32050 | COUNTY - COUNTY LEVIES (CE, DD, VET, MH) | $302.92 | $302.92 | $0.00 | $0.00 | $0.00 | $605.84 |
| 2026 | 32050 | CONSERVE - CONSERVATION FUTURES | $9.09 | $9.08 | $0.00 | $0.00 | $0.00 | $18.17 |
| 2026 | 32050 | COROADS - COUNTY ROADS (ROADS, DIV TO CE) | $244.37 | $244.36 | $0.00 | $0.00 | $0.00 | $488.73 |
| 2026 | 32050 | PORTPT - PORT DISTRICT | $122.34 | $122.33 | $0.00 | $0.00 | $0.00 | $244.67 |
| 2026 | 32050 | PUD1 - PUD #1 | $19.71 | $19.70 | $0.00 | $0.00 | $0.00 | $39.41 |
| 2026 | 32050 | LIB1 - LIBRARY DIST #1 | $94.55 | $94.54 | $0.00 | $0.00 | $0.00 | $189.09 |
| 2026 | 32050 | HD2 - HOSP DIST #2 | $17.67 | $17.66 | $0.00 | $0.00 | $0.00 | $35.33 |
| 2026 | 32050 | SD49 - SCHOOL DIST #49 | $417.07 | $417.07 | $0.00 | $0.00 | $0.00 | $834.14 |
| 2026 | 32050 | FD1 - FIRE DISTRICT #1 | $401.13 | $401.13 | $0.00 | $0.00 | $0.00 | $802.26 |
| 2026 | 32050 | EMS1 - FIRE DIST #1 EMS | $154.23 | $154.23 | $0.00 | $0.00 | $0.00 | $308.46 |
| 2026 | 32050 | FP - DNR Forest Fire Protection Assmt | $8.50 | $8.50 | $0.00 | $0.00 | $0.00 | $17.00 |
| 2026 | 32050 | FPLCA - DNR Landowner Contingency Assmt | $3.00 | $3.00 | $0.00 | $0.00 | $0.00 | $6.00 |
| 2026 | 32050 | JCCD - JC Conservation District | $2.55 | $2.55 | $0.00 | $0.00 | $0.00 | $5.10 |
| 2026 | 32050 | NWA - Noxious Weed Assessment | $2.98 | $2.97 | $0.00 | $0.00 | $0.00 | $5.95 |
| 2026 | 32050 | OSS - On Site Septic | $23.10 | $23.10 | $0.00 | $0.00 | $0.00 | $46.20 |
| 2026 | 32050 | WAT - Clean Water District | $13.00 | $13.00 | $0.00 | $0.00 | $0.00 | $26.00 |
| 2026 | 32050 | FP ADMIN - FP ADMIN | $0.50 | $0.00 | $0.00 | $0.00 | $0.00 | $0.50 |
| 2026 | 32050 | TOTAL: | $2594.39 | $2593.80 | $0.00 | $0.00 | $0.00 | $5188.19 |
|
| 2026 | 32050 | $2594.39 | $2593.80 | $0.00 | $0.00 | $0.00 | $5188.19 |
Statement Details |
| 2025 | 32123 | STATE - STATE LEVY (SCHOOL) | $754.42 | $754.40 | $0.00 | $0.00 | $1508.82 | $0.00 |
| 2025 | 32123 | COUNTY - COUNTY LEVIES (CE, DD, VET, MH) | $296.67 | $296.67 | $0.00 | $0.00 | $593.34 | $0.00 |
| 2025 | 32123 | CONSERVE - CONSERVATION FUTURES | $8.90 | $8.89 | $0.00 | $0.00 | $17.79 | $0.00 |
| 2025 | 32123 | COROADS - COUNTY ROADS (ROADS, DIV TO CE) | $237.68 | $237.68 | $0.00 | $0.00 | $475.36 | $0.00 |
| 2025 | 32123 | PORTPT - PORT DISTRICT | $121.06 | $121.05 | $0.00 | $0.00 | $242.11 | $0.00 |
| 2025 | 32123 | PUD1 - PUD #1 | $19.41 | $19.41 | $0.00 | $0.00 | $38.82 | $0.00 |
| 2025 | 32123 | LIB1 - LIBRARY DIST #1 | $91.96 | $91.95 | $0.00 | $0.00 | $183.91 | $0.00 |
| 2025 | 32123 | HD2 - HOSP DIST #2 | $17.31 | $17.31 | $0.00 | $0.00 | $34.62 | $0.00 |
| 2025 | 32123 | SD49 - SCHOOL DIST #49 | $404.32 | $404.31 | $0.00 | $0.00 | $808.63 | $0.00 |
| 2025 | 32123 | FD1 - FIRE DISTRICT #1 | $391.49 | $391.48 | $0.00 | $0.00 | $782.97 | $0.00 |
| 2025 | 32123 | EMS1 - FIRE DIST #1 EMS | $150.58 | $150.57 | $0.00 | $0.00 | $301.15 | $0.00 |
| 2025 | 32123 | FP - DNR Forest Fire Protection Assmt | $8.50 | $8.50 | $0.00 | $0.00 | $17.00 | $0.00 |
| 2025 | 32123 | FPLCA - DNR Landowner Contingency Assmt | $3.00 | $3.00 | $0.00 | $0.00 | $6.00 | $0.00 |
| 2025 | 32123 | JCCD - JC Conservation District | $2.55 | $2.55 | $0.00 | $0.00 | $5.10 | $0.00 |
| 2025 | 32123 | NWA - Noxious Weed Assessment | $2.15 | $2.15 | $0.00 | $0.00 | $4.30 | $0.00 |
| 2025 | 32123 | OSS - On Site Septic | $21.50 | $21.50 | $0.00 | $0.00 | $43.00 | $0.00 |
| 2025 | 32123 | WAT - Clean Water District | $13.00 | $13.00 | $0.00 | $0.00 | $26.00 | $0.00 |
| 2025 | 32123 | FP ADMIN - FP ADMIN | $0.50 | $0.00 | $0.00 | $0.00 | $0.50 | $0.00 |
| 2025 | 32123 | TOTAL: | $2545.00 | $2544.42 | $0.00 | $0.00 | $5089.42 | $0.00 |
|
| 2025 | 32123 | $2545.00 | $2544.42 | $0.00 | $0.00 | $5089.42 | $0.00 |
Statement Details |
| 2024 | 32182 | STATE - STATE LEVY (SCHOOL) | $722.06 | $722.06 | $0.00 | $0.00 | $1444.12 | $0.00 |
| 2024 | 32182 | COUNTY - COUNTY LEVIES (CE, DD, VET, MH) | $308.99 | $308.96 | $0.00 | $0.00 | $617.95 | $0.00 |
| 2024 | 32182 | CONSERVE - CONSERVATION FUTURES | $9.27 | $9.26 | $0.00 | $0.00 | $18.53 | $0.00 |
| 2024 | 32182 | COROADS - COUNTY ROADS (ROADS, DIV TO CE) | $248.63 | $248.61 | $0.00 | $0.00 | $497.24 | $0.00 |
| 2024 | 32182 | PORTPT - PORT DISTRICT | $127.62 | $127.62 | $0.00 | $0.00 | $255.24 | $0.00 |
| 2024 | 32182 | PUD1 - PUD #1 | $20.30 | $20.29 | $0.00 | $0.00 | $40.59 | $0.00 |
| 2024 | 32182 | LIB1 - LIBRARY DIST #1 | $96.19 | $96.19 | $0.00 | $0.00 | $192.38 | $0.00 |
| 2024 | 32182 | HD2 - HOSP DIST #2 | $18.03 | $18.03 | $0.00 | $0.00 | $36.06 | $0.00 |
| 2024 | 32182 | SD49 - SCHOOL DIST #49 | $322.44 | $322.43 | $0.00 | $0.00 | $644.87 | $0.00 |
| 2024 | 32182 | FD1 - FIRE DISTRICT #1 | $408.54 | $408.54 | $0.00 | $0.00 | $817.08 | $0.00 |
| 2024 | 32182 | EMS1 - FIRE DIST #1 EMS | $156.05 | $156.05 | $0.00 | $0.00 | $312.10 | $0.00 |
| 2024 | 32182 | JCCD - JC Conservation District | $2.55 | $2.55 | $0.00 | $0.00 | $5.10 | $0.00 |
| 2024 | 32182 | NWA - Noxious Weed Assessment | $2.15 | $2.15 | $0.00 | $0.00 | $4.30 | $0.00 |
| 2024 | 32182 | OSS - On Site Septic | $21.00 | $21.00 | $0.00 | $0.00 | $42.00 | $0.00 |
| 2024 | 32182 | WAT - Clean Water District | $12.50 | $12.50 | $0.00 | $0.00 | $25.00 | $0.00 |
| 2024 | 32182 | TOTAL: | $2476.32 | $2476.24 | $0.00 | $0.00 | $4952.56 | $0.00 |
|
| 2024 | 32182 | $2476.32 | $2476.24 | $0.00 | $0.00 | $4952.56 | $0.00 |
Statement Details |
| 2023 | 32224 | STATE - STATE LEVY (SCHOOL) | $728.84 | $728.83 | $0.00 | $0.00 | $1457.67 | $0.00 |
| 2023 | 32224 | COUNTY - COUNTY LEVIES (CE, DD, VET, MH) | $318.05 | $318.03 | $0.00 | $0.00 | $636.08 | $0.00 |
| 2023 | 32224 | CONSERVE - CONSERVATION FUTURES | $9.54 | $9.53 | $0.00 | $0.00 | $19.07 | $0.00 |
| 2023 | 32224 | COROADS - COUNTY ROADS (ROADS, DIV TO CE) | $257.33 | $257.31 | $0.00 | $0.00 | $514.64 | $0.00 |
| 2023 | 32224 | PORTPT - PORT DISTRICT | $133.98 | $133.97 | $0.00 | $0.00 | $267.95 | $0.00 |
| 2023 | 32224 | PUD1 - PUD #1 | $21.08 | $21.08 | $0.00 | $0.00 | $42.16 | $0.00 |
| 2023 | 32224 | LIB1 - LIBRARY DIST #1 | $99.56 | $99.55 | $0.00 | $0.00 | $199.11 | $0.00 |
| 2023 | 32224 | HD2 - HOSP DIST #2 | $18.56 | $18.56 | $0.00 | $0.00 | $37.12 | $0.00 |
| 2023 | 32224 | SD49 - SCHOOL DIST #49 | $340.69 | $340.69 | $0.00 | $0.00 | $681.38 | $0.00 |
| 2023 | 32224 | FD3 - FIRE DISTRICT #3 | $316.41 | $316.40 | $0.00 | $0.00 | $632.81 | $0.00 |
| 2023 | 32224 | EMS3 - FIRE DIST #3 EMS | $113.12 | $113.11 | $0.00 | $0.00 | $226.23 | $0.00 |
| 2023 | 32224 | JCCD - JC Conservation District | $2.55 | $2.55 | $0.00 | $0.00 | $5.10 | $0.00 |
| 2023 | 32224 | NWA - Noxious Weed Assessment | $2.15 | $2.15 | $0.00 | $0.00 | $4.30 | $0.00 |
| 2023 | 32224 | OSS - On Site Septic | $20.50 | $20.50 | $0.00 | $0.00 | $41.00 | $0.00 |
| 2023 | 32224 | WAT - Clean Water District | $12.00 | $12.00 | $0.00 | $0.00 | $24.00 | $0.00 |
| 2023 | 32224 | TOTAL: | $2394.36 | $2394.26 | $0.00 | $0.00 | $4788.62 | $0.00 |
|
| 2023 | 32224 | $2394.36 | $2394.26 | $0.00 | $0.00 | $4788.62 | $0.00 |
Values
| (+) Improvement Homesite Value: | + | $0 | |
| (+) Improvement Non-Homesite Value: | + | $354,608 | |
| (+) Land Homesite Value: | + | $0 | |
| (+) Land Non-Homesite Value: | + | $304,500 | |
| (+) Curr Use (HS): | + | $0 | $0 |
| (+) Curr Use (NHS): | + | $0 | $0 |
| | | -------------------------- | |
| (=) Market Value: | = | $659,108 | |
| (–) Productivity Loss: | – | $0 | |
| | | -------------------------- | |
| (=) Subtotal: | = | $659,108 | |
| (+) Senior Appraised Value: | + | $0 | |
| (+) Non-Senior Appraised Value: | + | $659,108 | |
| | | -------------------------- | |
| (=) Total Appraised Value: | = | $659,108 | |
| (–) Senior Exemption Loss: | – | $0 | |
| (–) Exemption Loss: | – | $0 | |
| | | -------------------------- | |
| (=) Taxable Value: | = | $659,108 | |
Taxing Jurisdiction
| Owner: | ROBB B & CARA L RANKIN | | |
| % Ownership: | 100.0000000000% | | |
| Total Value: | N/A | | |
| Tax Area: | 0213 - 1-49F1E1H2L1 |
| CE | COUNTY CURRENT EXPENSE | N/A | N/A | N/A | N/A | | |
| CNTYDD | DEVELOPMENTAL DISABILITIES | N/A | N/A | N/A | N/A | | |
| CNTYVET | VETERANS RELIEF | N/A | N/A | N/A | N/A | | |
| MENTAL | MENTAL HEALTH | N/A | N/A | N/A | N/A | | |
| ROADS | COUNTY ROADS | N/A | N/A | N/A | N/A | | |
| HOSP2CASH | HOSP DIST #2 GENERAL | N/A | N/A | N/A | N/A | | |
| SCH49CP | SCHOOL DIST #49 CAP PROJ | N/A | N/A | N/A | N/A | | |
| SCH49MO | SCHOOL DIST #49 EP & O | N/A | N/A | N/A | N/A | | |
| CONSERVE | CONSERVATION FUTURES | N/A | N/A | N/A | N/A | | |
| EMS1 | FIRE DIST #1 EMS | N/A | N/A | N/A | N/A | | |
| FD1 | FIRE DIST #1 GENERAL | N/A | N/A | N/A | N/A | | |
| LIB1 | LIBRARY DIST #1 GENERAL | N/A | N/A | N/A | N/A | | |
| PORTPT | PORT OF PT GENERAL | N/A | N/A | N/A | N/A | | |
| PORTPTIDD | PORT OF PT IDD 2019 | N/A | N/A | N/A | N/A | | |
| PUD1 | PUD #1 GENERAL | N/A | N/A | N/A | N/A | | |
| STATE | STATE SCHOOL PART 1 | N/A | N/A | N/A | N/A | | |
| STATE2 | STATE SCHOOL PART 2 | N/A | N/A | N/A | N/A | | |
| | Total Tax Rate: | N/A | | | | | |
| | | | | Taxes w/Current Exemptions: | N/A | | |
| | | | | Taxes w/o Exemptions: | N/A | | |
Improvement / Building
| Improvement #1: | Residential Bldg | State Code: | 11 | 1346.0 sqft | Value: | $354,608 |
| Bathrooms (#): | 2 (FULL) | Bedrooms (#): | 2 | | Exterior Wall: | SI/ST | Fireplace: | SIN 1-GOOD | | Fireplace: | WD ST-GOOD | Floor Construction: | FRAME | | Foundation: | CONPR | Heating/Cooling: | HPUMP | | Inside Verify: | YES | Roof Cover: | COMP |
|
| | Type | Description | Class CD | Sub Class CD | Year Built | Area |
| | MA | Main Area | 3+ | 1S | 1977 | 1346.0 |
| | PATIO | House Patio | 3 | * | 1977 | 636.0 |
| | HWPOR | House Wood Porch | 3 | * | 1977 | 296.0 |
| | CARPTN | Carport W/O Floor | 3 | * | 1977 | 480.0 |
| | SHED | Shed (Table Not Dep) | 4 | * | 1977 | 100.0 |
| | BSMTF | House basement finished | 3 | * | 1977 | 1346.0 |
| | GDET | Detached Garage | 3 | * | 1977 | 864.0 |
| | HRPO | House Roof Patio | 3 | * | 1977 | 296.0 |
| | HWPOR | House Wood Porch | 3 | * | 1977 | 160.0 |
Sketch
Property Image
Land
| 1 | 3415-1125S | | 0.0000 | 0.00 | 0.00 | 0.00 | 1.00 | $304,500 | $0 |
Roll Value History
| 2026 | N/A | N/A | N/A | N/A | N/A |
| 2025 | $354,608 | $304,500 | $0 | $659,108 | $659,108 |
| 2024 | $339,191 | $290,000 | $0 | $629,191 | $629,191 |
| 2023 | $339,191 | $285,000 | $0 | $624,191 | $624,191 |
| 2022 | $339,190 | $280,000 | $0 | $619,190 | $619,190 |
Deed and Sales History
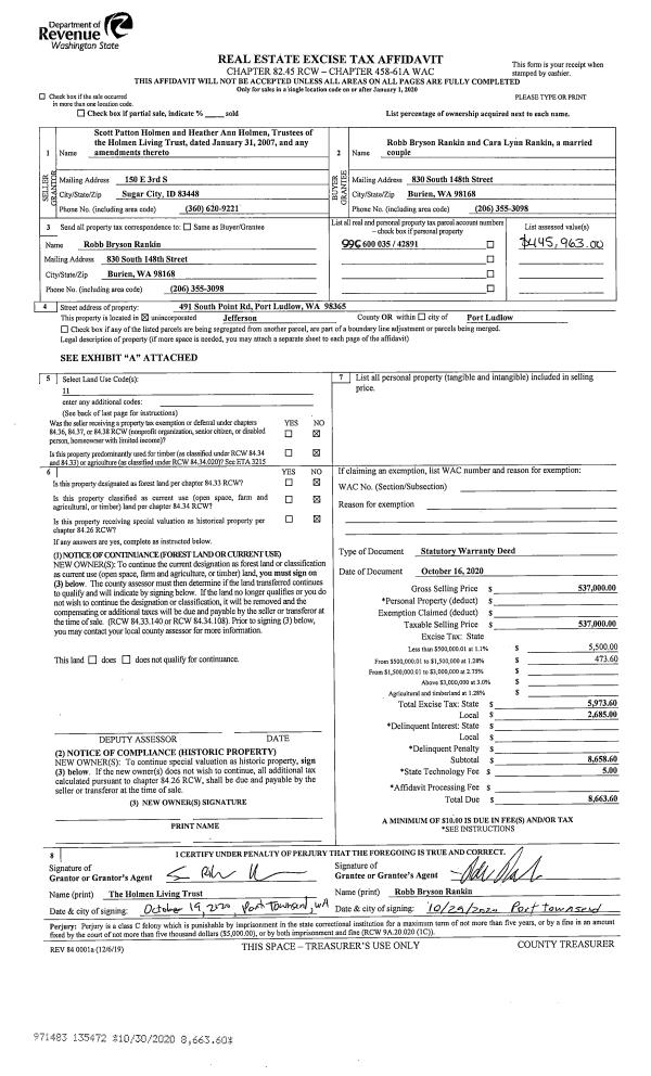
| 1 | 10/16/2020 | SWD | Statutory Warranty Deed | SCOTT P HOLMEN | ROBB B & CARA L RANKIN | | | $537,000.00 | 135472 | |
| 2 | 08/21/2012 | SWD | Statutory Warranty Deed | HOLMEN, SCOTT Patton | HOLMEN, SCOTT & HEATHER/TRUST | 0 | 0 | $0.00 | 117973 | 0 |
| 3 | 11/17/2011 | SWD | Statutory Warranty Deed | HELMONDS, RONALD A/DEBORA | HOLMEN, SCOTT PATTON | 0 | 0 | $370,000.00 | 116816 | 0 |
| 4 | 11/17/2011 | QCD | Quit Claim Deed | HOLMEN, HEATHER A | HOLMEN, SCOTT PATTON | 0 | 0 | $0.00 | 116817 | 0 |
| 5 | 09/10/2002 | SWD | Statutory Warranty Deed | RICHARD M KOVAK | RONALD & DEBORAH HELMONDS | 0 | 0 | $368,000.00 | 95553 | 0 |
|   | |
| 6 | 01/03/2002 | QCD | Quit Claim Deed | DIGHTMAN, MAUREEN J | KOVAK, RICHARD M | 0 | 0 | $0.00 | 93815 | 0 |
| 7 | 02/01/1993 | REC | Real Estate Contract | JESS, SIDNEY/MARTHA | DIGHTMAN, MAUREEN J/KOVAC, RIC | 0 | 0 | $237,000.00 | 70317 | 0 |
Payout Agreement
| No payout information available.. |