Property
Account |
| Property ID: | 42910 | Abbreviated Legal Description: | STRICKLAND &SWANSON SUBDIVISION.1 LOT 2 |
| Parcel # / Geo ID: | 996900002 | Agent Code: | |
| Type: | Real | | |
| Tax Area: | 0211 - 1-49F1E1H2L1 | Land Use Code | 11 |
| Open Space: | N | DFL | N |
| Historic Property: | N | Remodel Property: | N |
| Multi-Family Redevelopment: | N | | |
| Township: | 28N | Section: | 5 |
| Range: | 1W |
Location |
| Address: | 154 WILD PLUM LN CHIMACUM, WA 98325 | Mapsco: | 129/047 |
| Neighborhood: | S3 & S4 T28N R1W; COUNTRY RIDGE; MT TOWNSEND VISTA; SHT PTS | Map ID: | |
| Neighborhood CD: | 4320 |
Owner |
| Name: | KEITH E RASMUSSEN | Owner ID: | 93347 |
| Mailing Address: | 154 WILD PLUM LANE CHIMACUM, WA 98325-8728 | % Ownership: | 100.0000000000% |
| | | Exemptions: | |
Pay Tax Due
Select the appropriate checkbox next to the year to be paid. Multiple years may be selected.
*Convenience Fee not included
Taxes and Assessment Details
Property Tax Information as of
03/11/2026
Click on "Statement Details" to expand or collapse a tax statement.
* Please enter a valid date ** Please enter a valid date *
Statement Details |
| 2026 | 32069 | STATE - STATE LEVY (SCHOOL) | $743.89 | $743.89 | $0.00 | $0.00 | $0.00 | $1487.78 |
| 2026 | 32069 | COUNTY - COUNTY LEVIES (CE, DD, VET, MH) | $297.41 | $297.39 | $0.00 | $0.00 | $0.00 | $594.80 |
| 2026 | 32069 | CONSERVE - CONSERVATION FUTURES | $8.92 | $8.92 | $0.00 | $0.00 | $0.00 | $17.84 |
| 2026 | 32069 | COROADS - COUNTY ROADS (ROADS, DIV TO CE) | $239.92 | $239.92 | $0.00 | $0.00 | $0.00 | $479.84 |
| 2026 | 32069 | PORTPT - PORT DISTRICT | $120.11 | $120.11 | $0.00 | $0.00 | $0.00 | $240.22 |
| 2026 | 32069 | PUD1 - PUD #1 | $19.35 | $19.34 | $0.00 | $0.00 | $0.00 | $38.69 |
| 2026 | 32069 | LIB1 - LIBRARY DIST #1 | $92.83 | $92.82 | $0.00 | $0.00 | $0.00 | $185.65 |
| 2026 | 32069 | HD2 - HOSP DIST #2 | $17.35 | $17.34 | $0.00 | $0.00 | $0.00 | $34.69 |
| 2026 | 32069 | SD49 - SCHOOL DIST #49 | $409.49 | $409.47 | $0.00 | $0.00 | $0.00 | $818.96 |
| 2026 | 32069 | FD1 - FIRE DISTRICT #1 | $393.84 | $393.83 | $0.00 | $0.00 | $0.00 | $787.67 |
| 2026 | 32069 | EMS1 - FIRE DIST #1 EMS | $151.43 | $151.42 | $0.00 | $0.00 | $0.00 | $302.85 |
| 2026 | 32069 | FP - DNR Forest Fire Protection Assmt | $8.50 | $8.50 | $0.00 | $0.00 | $0.00 | $17.00 |
| 2026 | 32069 | FPLCA - DNR Landowner Contingency Assmt | $3.00 | $3.00 | $0.00 | $0.00 | $0.00 | $6.00 |
| 2026 | 32069 | JCCD - JC Conservation District | $3.00 | $3.00 | $0.00 | $0.00 | $0.00 | $6.00 |
| 2026 | 32069 | NWA - Noxious Weed Assessment | $5.00 | $5.00 | $0.00 | $0.00 | $0.00 | $10.00 |
| 2026 | 32069 | OSS - On Site Septic | $23.10 | $23.10 | $0.00 | $0.00 | $0.00 | $46.20 |
| 2026 | 32069 | WAT - Clean Water District | $13.00 | $13.00 | $0.00 | $0.00 | $0.00 | $26.00 |
| 2026 | 32069 | FP ADMIN - FP ADMIN | $0.50 | $0.00 | $0.00 | $0.00 | $0.00 | $0.50 |
| 2026 | 32069 | TOTAL: | $2550.64 | $2550.05 | $0.00 | $0.00 | $0.00 | $5100.69 |
|
| 2026 | 32069 | $2550.64 | $2550.05 | $0.00 | $0.00 | $0.00 | $5100.69 |
Statement Details |
| 2025 | 32142 | STATE - STATE LEVY (SCHOOL) | $741.77 | $741.75 | $0.00 | $0.00 | $1483.52 | $0.00 |
| 2025 | 32142 | COUNTY - COUNTY LEVIES (CE, DD, VET, MH) | $291.69 | $291.69 | $0.00 | $0.00 | $583.38 | $0.00 |
| 2025 | 32142 | CONSERVE - CONSERVATION FUTURES | $8.75 | $8.74 | $0.00 | $0.00 | $17.49 | $0.00 |
| 2025 | 32142 | COROADS - COUNTY ROADS (ROADS, DIV TO CE) | $233.70 | $233.68 | $0.00 | $0.00 | $467.38 | $0.00 |
| 2025 | 32142 | PORTPT - PORT DISTRICT | $119.03 | $119.02 | $0.00 | $0.00 | $238.05 | $0.00 |
| 2025 | 32142 | PUD1 - PUD #1 | $19.09 | $19.08 | $0.00 | $0.00 | $38.17 | $0.00 |
| 2025 | 32142 | LIB1 - LIBRARY DIST #1 | $90.42 | $90.41 | $0.00 | $0.00 | $180.83 | $0.00 |
| 2025 | 32142 | HD2 - HOSP DIST #2 | $17.02 | $17.02 | $0.00 | $0.00 | $34.04 | $0.00 |
| 2025 | 32142 | SD49 - SCHOOL DIST #49 | $397.54 | $397.54 | $0.00 | $0.00 | $795.08 | $0.00 |
| 2025 | 32142 | FD1 - FIRE DISTRICT #1 | $384.92 | $384.92 | $0.00 | $0.00 | $769.84 | $0.00 |
| 2025 | 32142 | EMS1 - FIRE DIST #1 EMS | $148.05 | $148.05 | $0.00 | $0.00 | $296.10 | $0.00 |
| 2025 | 32142 | FP - DNR Forest Fire Protection Assmt | $8.50 | $8.50 | $0.00 | $0.00 | $17.00 | $0.00 |
| 2025 | 32142 | FPLCA - DNR Landowner Contingency Assmt | $3.00 | $3.00 | $0.00 | $0.00 | $6.00 | $0.00 |
| 2025 | 32142 | JCCD - JC Conservation District | $3.00 | $3.00 | $0.00 | $0.00 | $6.00 | $0.00 |
| 2025 | 32142 | NWA - Noxious Weed Assessment | $3.50 | $3.50 | $0.00 | $0.00 | $7.00 | $0.00 |
| 2025 | 32142 | OSS - On Site Septic | $21.50 | $21.50 | $0.00 | $0.00 | $43.00 | $0.00 |
| 2025 | 32142 | WAT - Clean Water District | $13.00 | $13.00 | $0.00 | $0.00 | $26.00 | $0.00 |
| 2025 | 32142 | FP ADMIN - FP ADMIN | $0.50 | $0.00 | $0.00 | $0.00 | $0.50 | $0.00 |
| 2025 | 32142 | TOTAL: | $2504.98 | $2504.40 | $0.00 | $0.00 | $5009.38 | $0.00 |
|
| 2025 | 32142 | $2504.98 | $2504.40 | $0.00 | $0.00 | $5009.38 | $0.00 |
Statement Details |
| 2024 | 32201 | STATE - STATE LEVY (SCHOOL) | $674.32 | $674.31 | $0.00 | $0.00 | $1348.63 | $0.00 |
| 2024 | 32201 | COUNTY - COUNTY LEVIES (CE, DD, VET, MH) | $288.55 | $288.55 | $0.00 | $0.00 | $577.10 | $0.00 |
| 2024 | 32201 | CONSERVE - CONSERVATION FUTURES | $8.65 | $8.65 | $0.00 | $0.00 | $17.30 | $0.00 |
| 2024 | 32201 | COROADS - COUNTY ROADS (ROADS, DIV TO CE) | $232.19 | $232.18 | $0.00 | $0.00 | $464.37 | $0.00 |
| 2024 | 32201 | PORTPT - PORT DISTRICT | $119.19 | $119.18 | $0.00 | $0.00 | $238.37 | $0.00 |
| 2024 | 32201 | PUD1 - PUD #1 | $18.96 | $18.95 | $0.00 | $0.00 | $37.91 | $0.00 |
| 2024 | 32201 | LIB1 - LIBRARY DIST #1 | $89.83 | $89.83 | $0.00 | $0.00 | $179.66 | $0.00 |
| 2024 | 32201 | HD2 - HOSP DIST #2 | $16.84 | $16.83 | $0.00 | $0.00 | $33.67 | $0.00 |
| 2024 | 32201 | SD49 - SCHOOL DIST #49 | $301.12 | $301.12 | $0.00 | $0.00 | $602.24 | $0.00 |
| 2024 | 32201 | FD1 - FIRE DISTRICT #1 | $381.53 | $381.53 | $0.00 | $0.00 | $763.06 | $0.00 |
| 2024 | 32201 | EMS1 - FIRE DIST #1 EMS | $145.73 | $145.73 | $0.00 | $0.00 | $291.46 | $0.00 |
| 2024 | 32201 | FP - DNR Forest Fire Protection Assmt | $8.50 | $8.50 | $0.00 | $0.00 | $17.00 | $0.00 |
| 2024 | 32201 | FPLCA - DNR Landowner Contingency Assmt | $3.00 | $3.00 | $0.00 | $0.00 | $6.00 | $0.00 |
| 2024 | 32201 | JCCD - JC Conservation District | $3.00 | $3.00 | $0.00 | $0.00 | $6.00 | $0.00 |
| 2024 | 32201 | NWA - Noxious Weed Assessment | $3.50 | $3.50 | $0.00 | $0.00 | $7.00 | $0.00 |
| 2024 | 32201 | OSS - On Site Septic | $21.00 | $21.00 | $0.00 | $0.00 | $42.00 | $0.00 |
| 2024 | 32201 | WAT - Clean Water District | $12.50 | $12.50 | $0.00 | $0.00 | $25.00 | $0.00 |
| 2024 | 32201 | FP ADMIN - FP ADMIN | $0.50 | $0.00 | $0.00 | $0.00 | $0.50 | $0.00 |
| 2024 | 32201 | TOTAL: | $2328.91 | $2328.36 | $0.00 | $0.00 | $4657.27 | $0.00 |
|
| 2024 | 32201 | $2328.91 | $2328.36 | $0.00 | $0.00 | $4657.27 | $0.00 |
Statement Details |
| 2023 | 32243 | STATE - STATE LEVY (SCHOOL) | $617.49 | $617.48 | $0.00 | $0.00 | $1234.97 | $0.00 |
| 2023 | 32243 | COUNTY - COUNTY LEVIES (CE, DD, VET, MH) | $269.45 | $269.45 | $0.00 | $0.00 | $538.90 | $0.00 |
| 2023 | 32243 | CONSERVE - CONSERVATION FUTURES | $8.08 | $8.08 | $0.00 | $0.00 | $16.16 | $0.00 |
| 2023 | 32243 | COROADS - COUNTY ROADS (ROADS, DIV TO CE) | $218.01 | $218.00 | $0.00 | $0.00 | $436.01 | $0.00 |
| 2023 | 32243 | PORTPT - PORT DISTRICT | $113.51 | $113.50 | $0.00 | $0.00 | $227.01 | $0.00 |
| 2023 | 32243 | PUD1 - PUD #1 | $17.86 | $17.86 | $0.00 | $0.00 | $35.72 | $0.00 |
| 2023 | 32243 | LIB1 - LIBRARY DIST #1 | $84.35 | $84.34 | $0.00 | $0.00 | $168.69 | $0.00 |
| 2023 | 32243 | HD2 - HOSP DIST #2 | $15.73 | $15.72 | $0.00 | $0.00 | $31.45 | $0.00 |
| 2023 | 32243 | SD49 - SCHOOL DIST #49 | $288.64 | $288.64 | $0.00 | $0.00 | $577.28 | $0.00 |
| 2023 | 32243 | FD1 - FIRE DISTRICT #1 | $221.98 | $221.97 | $0.00 | $0.00 | $443.95 | $0.00 |
| 2023 | 32243 | EMS1 - FIRE DIST #1 EMS | $94.43 | $94.42 | $0.00 | $0.00 | $188.85 | $0.00 |
| 2023 | 32243 | FP - DNR Forest Fire Protection Assmt | $8.50 | $8.50 | $0.00 | $0.00 | $17.00 | $0.00 |
| 2023 | 32243 | FPLCA - DNR Landowner Contingency Assmt | $3.00 | $3.00 | $0.00 | $0.00 | $6.00 | $0.00 |
| 2023 | 32243 | JCCD - JC Conservation District | $3.00 | $3.00 | $0.00 | $0.00 | $6.00 | $0.00 |
| 2023 | 32243 | NWA - Noxious Weed Assessment | $3.50 | $3.50 | $0.00 | $0.00 | $7.00 | $0.00 |
| 2023 | 32243 | OSS - On Site Septic | $20.50 | $20.50 | $0.00 | $0.00 | $41.00 | $0.00 |
| 2023 | 32243 | WAT - Clean Water District | $12.00 | $12.00 | $0.00 | $0.00 | $24.00 | $0.00 |
| 2023 | 32243 | FP ADMIN - FP ADMIN | $0.50 | $0.00 | $0.00 | $0.00 | $0.50 | $0.00 |
| 2023 | 32243 | TOTAL: | $2000.53 | $1999.96 | $0.00 | $0.00 | $4000.49 | $0.00 |
|
| 2023 | 32243 | $2000.53 | $1999.96 | $0.00 | $0.00 | $4000.49 | $0.00 |
Values
| (+) Improvement Homesite Value: | + | $0 | |
| (+) Improvement Non-Homesite Value: | + | $475,791 | |
| (+) Land Homesite Value: | + | $0 | |
| (+) Land Non-Homesite Value: | + | $171,325 | |
| (+) Curr Use (HS): | + | $0 | $0 |
| (+) Curr Use (NHS): | + | $0 | $0 |
| | | -------------------------- | |
| (=) Market Value: | = | $647,116 | |
| (–) Productivity Loss: | – | $0 | |
| | | -------------------------- | |
| (=) Subtotal: | = | $647,116 | |
| (+) Senior Appraised Value: | + | $0 | |
| (+) Non-Senior Appraised Value: | + | $647,116 | |
| | | -------------------------- | |
| (=) Total Appraised Value: | = | $647,116 | |
| (–) Senior Exemption Loss: | – | $0 | |
| (–) Exemption Loss: | – | $0 | |
| | | -------------------------- | |
| (=) Taxable Value: | = | $647,116 | |
Taxing Jurisdiction
| Owner: | KEITH E RASMUSSEN | | |
| % Ownership: | 100.0000000000% | | |
| Total Value: | $647,116 | | |
| Tax Area: | 0211 - 1-49F1E1H2L1 |
| CE | COUNTY CURRENT EXPENSE | 0.9034619479 | $647,116 | $647,116 | $584.64 | | |
| CNTYDD | DEVELOPMENTAL DISABILITIES | 0.0052121823 | $647,116 | $647,116 | $3.37 | | |
| CNTYVET | VETERANS RELIEF | 0.0052777810 | $647,116 | $647,116 | $3.42 | | |
| MENTAL | MENTAL HEALTH | 0.0052121823 | $647,116 | $647,116 | $3.37 | | |
| ROADS | COUNTY ROADS | 0.7415066410 | $647,116 | $647,116 | $479.84 | | |
| ROADSCU | COUNTY ROADS TO CUR EXP | 0.0000000000 | $647,116 | $647,116 | $0.00 | | |
| HOSP2CASH | HOSP DIST #2 GENERAL | 0.0536075306 | $647,116 | $647,116 | $34.69 | | |
| SCH49CP | SCHOOL DIST #49 CAP PROJ | 0.6279093905 | $647,116 | $647,116 | $406.33 | | |
| SCH49MO | SCHOOL DIST #49 EP & O | 0.6376483602 | $647,116 | $647,116 | $412.63 | | |
| CONSERVE | CONSERVATION FUTURES | 0.0275621078 | $647,116 | $647,116 | $17.84 | | |
| EMS1 | FIRE DIST #1 EMS | 0.4679948282 | $647,116 | $647,116 | $302.85 | | |
| FD1 | FIRE DIST #1 GENERAL | 1.2171942929 | $647,116 | $647,116 | $787.67 | | |
| LIB1 | LIBRARY DIST #1 GENERAL | 0.2868827388 | $647,116 | $647,116 | $185.65 | | |
| PORTPT | PORT OF PT GENERAL | 0.1134941229 | $647,116 | $647,116 | $73.44 | | |
| PORTPTIDD | PORT OF PT IDD 2019 | 0.2577346692 | $647,116 | $647,116 | $166.78 | | |
| PUD1 | PUD #1 GENERAL | 0.0597888892 | $647,116 | $647,116 | $38.69 | | |
| STATE | STATE SCHOOL PART 1 | 1.4940692947 | $647,116 | $647,116 | $966.84 | | |
| STATE2 | STATE SCHOOL PART 2 | 0.8050170049 | $647,116 | $647,116 | $520.94 | | |
| | Total Tax Rate: | 7.7095739644 | | | | | |
| | | | | Taxes w/Current Exemptions: | $4,988.99 | | |
| | | | | Taxes w/o Exemptions: | $4,988.99 | | |
Improvement / Building
| Improvement #1: | Residential Bldg | State Code: | 11 | 2294.0 sqft | Value: | $475,791 |
| Bathrooms (#): | 2 (FULL) | Bedrooms (#): | 3 | | Exterior Wall: | LOG | Fireplace: | WD ST-GOOD | | Floor Construction: | FRAME | Foundation: | CONPR | | Heating/Cooling: | F/A | Roof Cover: | METAL |
|
| | Type | Description | Class CD | Sub Class CD | Year Built | Area |
| | MA | Main Area | 4- | 15SF | 1995 | 1344.0 |
| | MA2 | Second Floor Main Area | 4- | 15SF | 1995 | 950.0 |
| | HBAL | House Balcony | 4 | * | 1995 | 256.0 |
| | OTHER | Other | * | * | 1995 | 0.0 |
| | HRPO | House Roof Patio | 4 | * | 1995 | 600.0 |
| | GDET | Detached Garage | 2 | * | 1995 | 1400.0 |
| | CARPTN | Carport W/O Floor | 2 | * | 1995 | 450.0 |
Sketch
Property Image
Land
| 1 | 4320-1375S | | 1.0000 | 43560.00 | 0.00 | 0.00 | 1.00 | $104,500 | $0 |
| 2 | 1677A | | 9.0000 | 392040.00 | 0.00 | 0.00 | 0.00 | $66,825 | $0 |
Roll Value History
| 2026 | N/A | N/A | N/A | N/A | N/A |
| 2025 | $475,791 | $171,325 | $0 | $647,116 | $647,116 |
| 2024 | $455,104 | $163,538 | $0 | $618,642 | $618,642 |
| 2023 | $434,418 | $148,500 | $0 | $582,918 | $582,918 |
| 2022 | $390,589 | $134,000 | $0 | $524,589 | $524,589 |
Deed and Sales History
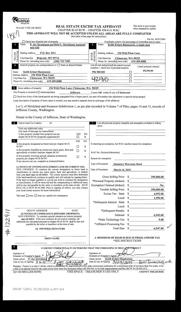
| 1 | 03/16/2015 | SWD | Statutory Warranty Deed | P JAY STRICKLAND | KEITH E RASMUSSEN | | | $390,000.00 | 122911 | |
| 2 | 08/01/1995 | QCD | Quit Claim Deed | SWANSON, STEPHEN G | STRICKLAND, P JAY/DEBI | 0 | 0 | $0.00 | 77657 | 0 |
Payout Agreement
| No payout information available.. |