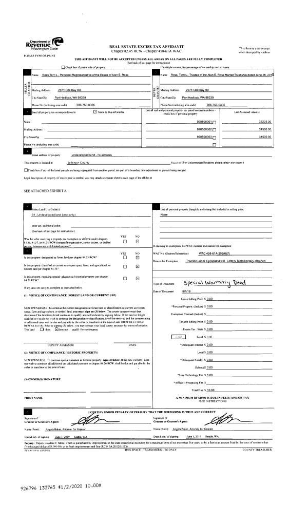
Property
Account |
| Property ID: | 42972 | Abbreviated Legal Description: | UMATILLA HILL BLK 1 LOT 5 SUBJ TO EASE OF RECORD |
| Parcel # / Geo ID: | 997501005 | Agent Code: | |
| Type: | Real | | |
| Tax Area: | 0110 - C-50F1E1H2 | Land Use Code | 11 |
| Open Space: | N | DFL | N |
| Historic Property: | N | Remodel Property: | N |
| Multi-Family Redevelopment: | N | | |
| Township: | 30N | Section: | 34 |
| Range: | 1W |
Location |
| Address: | 2965 JACKMAN ST PORT TOWNSEND, WA 98368 | Mapsco: | 144/005 |
| Neighborhood: | HASTINGS 3RD | Map ID: | |
| Neighborhood CD: | 6110 |
Owner |
| Name: | GLENN D HARTMANN | Owner ID: | 17653 |
| Mailing Address: | KATHLEEN P HARTMANN 2965 JACKMAN ST PORT TOWNSEND, WA 98368 | % Ownership: | 100.0000000000% |
| | | Exemptions: | |
Pay Tax Due
There is currently No Amount Due on this property.
Taxes and Assessment Details
Property Tax Information as of
03/10/2026
Click on "Statement Details" to expand or collapse a tax statement.
* Please enter a valid date ** Please enter a valid date *
Statement Details |
| 2026 | 32131 | STATE - STATE LEVY (SCHOOL) | $894.59 | $894.58 | $0.00 | $0.00 | $1789.17 | $0.00 |
| 2026 | 32131 | COUNTY - COUNTY LEVIES (CE, DD, VET, MH) | $357.66 | $357.65 | $0.00 | $0.00 | $715.31 | $0.00 |
| 2026 | 32131 | CONSERVE - CONSERVATION FUTURES | $10.73 | $10.72 | $0.00 | $0.00 | $21.45 | $0.00 |
| 2026 | 32131 | CITYPT - CITY OF PT | $507.66 | $507.65 | $0.00 | $0.00 | $1015.31 | $0.00 |
| 2026 | 32131 | PORTPT - PORT DISTRICT | $144.45 | $144.44 | $0.00 | $0.00 | $288.89 | $0.00 |
| 2026 | 32131 | PUD1 - PUD #1 | $23.27 | $23.26 | $0.00 | $0.00 | $46.53 | $0.00 |
| 2026 | 32131 | HD2 - HOSP DIST #2 | $20.86 | $20.86 | $0.00 | $0.00 | $41.72 | $0.00 |
| 2026 | 32131 | SD50 - SCHOOL DIST #50 | $708.71 | $708.70 | $0.00 | $0.00 | $1417.41 | $0.00 |
| 2026 | 32131 | FD1 - FIRE DISTRICT #1 | $473.62 | $473.61 | $0.00 | $0.00 | $947.23 | $0.00 |
| 2026 | 32131 | EMS1 - FIRE DIST #1 EMS | $182.10 | $182.10 | $0.00 | $0.00 | $364.20 | $0.00 |
| 2026 | 32131 | JCCD - JC Conservation District | $2.55 | $2.55 | $0.00 | $0.00 | $5.10 | $0.00 |
| 2026 | 32131 | NWA - Noxious Weed Assessment | $2.98 | $2.97 | $0.00 | $0.00 | $5.95 | $0.00 |
| 2026 | 32131 | TOTAL: | $3329.18 | $3329.09 | $0.00 | $0.00 | $6658.27 | $0.00 |
|
| 2026 | 32131 | $3329.18 | $3329.09 | $0.00 | $0.00 | $6658.27 | $0.00 |
Statement Details |
| 2025 | 32204 | STATE - STATE LEVY (SCHOOL) | $892.80 | $892.79 | $0.00 | $0.00 | $1785.59 | $0.00 |
| 2025 | 32204 | COUNTY - COUNTY LEVIES (CE, DD, VET, MH) | $351.09 | $351.07 | $0.00 | $0.00 | $702.16 | $0.00 |
| 2025 | 32204 | CONSERVE - CONSERVATION FUTURES | $10.53 | $10.53 | $0.00 | $0.00 | $21.06 | $0.00 |
| 2025 | 32204 | CITYPT - CITY OF PT | $506.31 | $506.30 | $0.00 | $0.00 | $1012.61 | $0.00 |
| 2025 | 32204 | PORTPT - PORT DISTRICT | $143.27 | $143.26 | $0.00 | $0.00 | $286.53 | $0.00 |
| 2025 | 32204 | PUD1 - PUD #1 | $22.98 | $22.97 | $0.00 | $0.00 | $45.95 | $0.00 |
| 2025 | 32204 | HD2 - HOSP DIST #2 | $20.49 | $20.48 | $0.00 | $0.00 | $40.97 | $0.00 |
| 2025 | 32204 | SD50 - SCHOOL DIST #50 | $652.49 | $652.48 | $0.00 | $0.00 | $1304.97 | $0.00 |
| 2025 | 32204 | FD1 - FIRE DISTRICT #1 | $463.30 | $463.29 | $0.00 | $0.00 | $926.59 | $0.00 |
| 2025 | 32204 | EMS1 - FIRE DIST #1 EMS | $178.20 | $178.19 | $0.00 | $0.00 | $356.39 | $0.00 |
| 2025 | 32204 | JCCD - JC Conservation District | $2.55 | $2.55 | $0.00 | $0.00 | $5.10 | $0.00 |
| 2025 | 32204 | NWA - Noxious Weed Assessment | $2.15 | $2.15 | $0.00 | $0.00 | $4.30 | $0.00 |
| 2025 | 32204 | TOTAL: | $3246.16 | $3246.06 | $0.00 | $0.00 | $6492.22 | $0.00 |
|
| 2025 | 32204 | $3246.16 | $3246.06 | $0.00 | $0.00 | $6492.22 | $0.00 |
Statement Details |
| 2024 | 32263 | STATE - STATE LEVY (SCHOOL) | $855.29 | $855.28 | $0.00 | $0.00 | $1710.57 | $0.00 |
| 2024 | 32263 | COUNTY - COUNTY LEVIES (CE, DD, VET, MH) | $365.99 | $365.97 | $0.00 | $0.00 | $731.96 | $0.00 |
| 2024 | 32263 | CONSERVE - CONSERVATION FUTURES | $10.98 | $10.97 | $0.00 | $0.00 | $21.95 | $0.00 |
| 2024 | 32263 | CITYPT - CITY OF PT | $522.96 | $522.93 | $0.00 | $0.00 | $1045.89 | $0.00 |
| 2024 | 32263 | PORTPT - PORT DISTRICT | $151.17 | $151.16 | $0.00 | $0.00 | $302.33 | $0.00 |
| 2024 | 32263 | PUD1 - PUD #1 | $24.04 | $24.04 | $0.00 | $0.00 | $48.08 | $0.00 |
| 2024 | 32263 | HD2 - HOSP DIST #2 | $21.36 | $21.35 | $0.00 | $0.00 | $42.71 | $0.00 |
| 2024 | 32263 | SD50 - SCHOOL DIST #50 | $691.97 | $691.96 | $0.00 | $0.00 | $1383.93 | $0.00 |
| 2024 | 32263 | FD1 - FIRE DISTRICT #1 | $483.92 | $483.92 | $0.00 | $0.00 | $967.84 | $0.00 |
| 2024 | 32263 | EMS1 - FIRE DIST #1 EMS | $184.84 | $184.84 | $0.00 | $0.00 | $369.68 | $0.00 |
| 2024 | 32263 | JCCD - JC Conservation District | $2.55 | $2.55 | $0.00 | $0.00 | $5.10 | $0.00 |
| 2024 | 32263 | NWA - Noxious Weed Assessment | $2.15 | $2.15 | $0.00 | $0.00 | $4.30 | $0.00 |
| 2024 | 32263 | TOTAL: | $3317.22 | $3317.12 | $0.00 | $0.00 | $6634.34 | $0.00 |
|
| 2024 | 32263 | $3317.22 | $3317.12 | $0.00 | $0.00 | $6634.34 | $0.00 |
Statement Details |
| 2023 | 32305 | STATE - STATE LEVY (SCHOOL) | $801.36 | $801.36 | $0.00 | $0.00 | $1602.72 | $0.00 |
| 2023 | 32305 | COUNTY - COUNTY LEVIES (CE, DD, VET, MH) | $349.70 | $349.68 | $0.00 | $0.00 | $699.38 | $0.00 |
| 2023 | 32305 | CONSERVE - CONSERVATION FUTURES | $10.49 | $10.48 | $0.00 | $0.00 | $20.97 | $0.00 |
| 2023 | 32305 | CITYPT - CITY OF PT | $494.24 | $494.22 | $0.00 | $0.00 | $988.46 | $0.00 |
| 2023 | 32305 | PORTPT - PORT DISTRICT | $147.31 | $147.31 | $0.00 | $0.00 | $294.62 | $0.00 |
| 2023 | 32305 | PUD1 - PUD #1 | $23.18 | $23.18 | $0.00 | $0.00 | $46.36 | $0.00 |
| 2023 | 32305 | HD2 - HOSP DIST #2 | $20.41 | $20.40 | $0.00 | $0.00 | $40.81 | $0.00 |
| 2023 | 32305 | SD50 - SCHOOL DIST #50 | $635.90 | $635.89 | $0.00 | $0.00 | $1271.79 | $0.00 |
| 2023 | 32305 | FD1 - FIRE DISTRICT #1 | $288.08 | $288.07 | $0.00 | $0.00 | $576.15 | $0.00 |
| 2023 | 32305 | EMS1 - FIRE DIST #1 EMS | $122.54 | $122.54 | $0.00 | $0.00 | $245.08 | $0.00 |
| 2023 | 32305 | JCCD - JC Conservation District | $2.55 | $2.55 | $0.00 | $0.00 | $5.10 | $0.00 |
| 2023 | 32305 | NWA - Noxious Weed Assessment | $2.15 | $2.15 | $0.00 | $0.00 | $4.30 | $0.00 |
| 2023 | 32305 | TOTAL: | $2897.91 | $2897.83 | $0.00 | $0.00 | $5795.74 | $0.00 |
|
| 2023 | 32305 | $2897.91 | $2897.83 | $0.00 | $0.00 | $5795.74 | $0.00 |
Values
| (+) Improvement Homesite Value: | + | $0 | |
| (+) Improvement Non-Homesite Value: | + | $548,207 | |
| (+) Land Homesite Value: | + | $0 | |
| (+) Land Non-Homesite Value: | + | $230,000 | |
| (+) Curr Use (HS): | + | $0 | $0 |
| (+) Curr Use (NHS): | + | $0 | $0 |
| | | -------------------------- | |
| (=) Market Value: | = | $778,207 | |
| (–) Productivity Loss: | – | $0 | |
| | | -------------------------- | |
| (=) Subtotal: | = | $778,207 | |
| (+) Senior Appraised Value: | + | $0 | |
| (+) Non-Senior Appraised Value: | + | $778,207 | |
| | | -------------------------- | |
| (=) Total Appraised Value: | = | $778,207 | |
| (–) Senior Exemption Loss: | – | $0 | |
| (–) Exemption Loss: | – | $0 | |
| | | -------------------------- | |
| (=) Taxable Value: | = | $778,207 | |
Taxing Jurisdiction
| Owner: | GLENN D HARTMANN | | |
| % Ownership: | 100.0000000000% | | |
| Total Value: | $778,207 | | |
| Tax Area: | 0110 - C-50F1E1H2 |
| CE | COUNTY CURRENT EXPENSE | 0.9034619479 | $778,207 | $778,207 | $703.08 | | |
| CNTYDD | DEVELOPMENTAL DISABILITIES | 0.0052121823 | $778,207 | $778,207 | $4.06 | | |
| CNTYVET | VETERANS RELIEF | 0.0052777810 | $778,207 | $778,207 | $4.11 | | |
| MENTAL | MENTAL HEALTH | 0.0052121823 | $778,207 | $778,207 | $4.06 | | |
| PTGEN | CITY OF PT GENERAL | 0.8551967795 | $778,207 | $778,207 | $665.52 | | |
| PTLLL | CITY OF PT - LIBRARY LID LIFT | 0.4010114288 | $778,207 | $778,207 | $312.07 | | |
| PTMVBOND | CITY OF PT MV BOND | 0.0484717981 | $778,207 | $778,207 | $37.72 | | |
| HOSP2CASH | HOSP DIST #2 GENERAL | 0.0536075306 | $778,207 | $778,207 | $41.72 | | |
| SCH50BOND | SCHOOL DIST #50 BOND 2016 | 0.5377451389 | $778,207 | $778,207 | $418.48 | | |
| SCH50CP | SCHOOL DIST #50 CAP PROJ | 0.4573475088 | $778,207 | $778,207 | $355.91 | | |
| SCH50MO | SCHOOL DIST #50 EP & O | 0.8262822886 | $778,207 | $778,207 | $643.02 | | |
| CONSERVE | CONSERVATION FUTURES | 0.0275621078 | $778,207 | $778,207 | $21.45 | | |
| EMS1 | FIRE DIST #1 EMS | 0.4679948282 | $778,207 | $778,207 | $364.20 | | |
| FD1 | FIRE DIST #1 GENERAL | 1.2171942929 | $778,207 | $778,207 | $947.23 | | |
| PORTPT | PORT OF PT GENERAL | 0.1134941229 | $778,207 | $778,207 | $88.32 | | |
| PORTPTIDD | PORT OF PT IDD 2019 | 0.2577346692 | $778,207 | $778,207 | $200.57 | | |
| PUD1 | PUD #1 GENERAL | 0.0597888892 | $778,207 | $778,207 | $46.53 | | |
| STATE | STATE SCHOOL PART 1 | 1.4940692947 | $778,207 | $778,207 | $1,162.70 | | |
| STATE2 | STATE SCHOOL PART 2 | 0.8050170049 | $778,207 | $778,207 | $626.47 | | |
| | Total Tax Rate: | 8.5416817766 | | | | | |
| | | | | Taxes w/Current Exemptions: | $6,647.22 | | |
| | | | | Taxes w/o Exemptions: | $6,647.22 | | |
Improvement / Building
| Improvement #1: | Residential Bldg | State Code: | 11 | 1768.0 sqft | Value: | $548,207 |
| Bathrooms (#): | 2 (FULL) | Bathrooms (#): | 1 (HALF) | | Bedrooms (#): | 2 | Exterior Wall: | SI/ST | | Foundation: | CONPR | Heating/Cooling: | ELBB | | Roof Cover: | COMP |   |   |
|
| | Type | Description | Class CD | Sub Class CD | Year Built | Area |
| | MA | Main Area | 5- | 2S | 2016 | 998.0 |
| | MA2 | Second Floor Main Area | 5- | 2S | 2016 | 770.0 |
| | HWPOR | House Wood Porch | 5 | * | 2016 | 134.5 |
| | PATIO | House Patio | 3 | * | 2016 | 473.8 |
| | GDET | Detached Garage | 5 | * | 2016 | 490.0 |
| | SOLAR | Solar Panel | 3 | * | 2016 | 0.0 |
Sketch
Property Image
Land
| 1 | 6110-1172L | | 0.0000 | 0.00 | 0.00 | 0.00 | 1.00 | $230,000 | $0 |
Roll Value History
| 2026 | N/A | N/A | N/A | N/A | N/A |
| 2025 | $548,207 | $230,000 | $0 | $778,207 | $778,207 |
| 2024 | $513,606 | $231,000 | $0 | $744,606 | $744,606 |
| 2023 | $513,606 | $225,750 | $0 | $739,356 | $739,356 |
| 2022 | $470,805 | $210,000 | $0 | $680,805 | $680,805 |
Deed and Sales History
| 1 | 03/24/2023 | TODD | TRANSFER ON DTH DEED | GLENN D HARTMANN | EMMA C & ABBY A HARTMAN | | | | 0 | 659539 |
| 2 | 10/21/2008 | SWD | Statutory Warranty Deed | CHACE, DANIELLA | HARTMANN, GLENN D/KATHLEEN P | 0 | 0 | $130,000.00 | 112109 | 0 |
| 3 | 07/20/2005 | SWD | Statutory Warranty Deed | GABLER, RODNEY B/PHYLLIS | CHACE, DANIELLA | | | $104,000.00 | 104298 | 0 |
| 4 | 03/23/2004 | SWD | Statutory Warranty Deed | KIMBALL & LANDIS LLC | GABLER, RODNEY B & PHYLLIS S | 0 | 0 | $58,500.00 | 99807 | 0 |
Payout Agreement
| No payout information available.. |