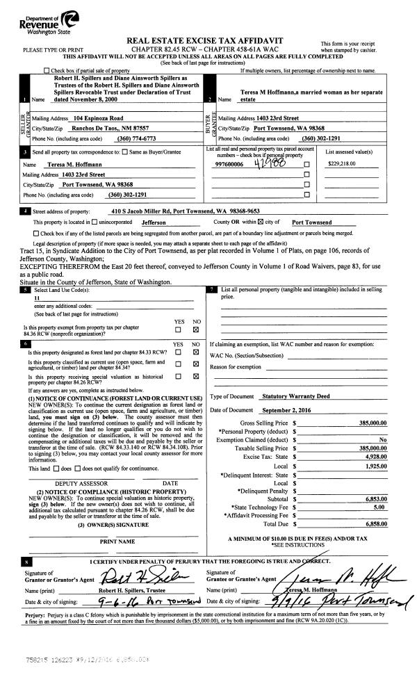
| 1 | 09/02/2016 | SWD | Statutory Warranty Deed | ROBERT SPILLERS TRSTE | TERESA M HOFFMANN | | | $385,000.00 | 126223 | |
| 2 | 11/08/2000 | QCD | Quit Claim Deed | SPILLERS, ROBERT/D. AINSW | SPILLERS/AINSWORTH REV TRUST | 0 | 0 | $0.00 | 91212 | 0 |
| 3 | 01/17/1997 | SWD | Statutory Warranty Deed | EBERTING, GEORGE R/TERESI | SPILLERS, ROBERT/DIANE A | 0 | 0 | $144,000.00 | 81234 | 0 |
| 4 | 11/05/1996 | SWD | Statutory Warranty Deed | NORTH SOUND BANK | EBERTING, GEORGE R/TERESITA L | 0 | 0 | $140,000.00 | 80747 | 0 |
|   | |
| 5 | 09/27/1996 | WD | Warranty Deed | MCKINNEY, JUDITH M | NORTH SOUND BANK | 0 | 0 | $0.00 | 80463 | 0 |
| 6 | 03/24/1995 | SWD | Statutory Warranty Deed | AREY, MELVIN E/DELAINE | EBERTING, GEORGE R/TERESITA L | 0 | 0 | $179,500.00 | 76564 | 0 |
|   | |
| 7 | 03/24/1995 | SWD | Statutory Warranty Deed | EBERTING, GEORGE R/TERESI | MCKINNEY, JUDITH M | 0 | 0 | $210,000.00 | 76575 | 0 |
|   | |