Property
Account |
| Property ID: | 43009 | Abbreviated Legal Description: | SWAN PARK BLK 4(E 1/2) LESS HOWARD ST R/W E#124110 & 131057 |
| Parcel # / Geo ID: | 997800401 | Agent Code: | |
| Type: | Real | | |
| Tax Area: | 0110 - C-50F1E1H2 | Land Use Code | 13 |
| Open Space: | N | DFL | N |
| Historic Property: | N | Remodel Property: | N |
| Multi-Family Redevelopment: | N | | |
| Township: | 30N | Section: | 9 |
| Range: | 1W |
Location |
| Address: | 2500 9TH ST PORT TOWNSEND, WA 98368 | Mapsco: | 133/029 |
| Neighborhood: | SIMS WAY BY RAINIER ST / PT BUSINESS PARK COMMERCIAL | Map ID: | |
| Neighborhood CD: | 6190C |
Owner |
| Name: | WEST HARBOR LLC | Owner ID: | 107734 |
| Mailing Address: | 12345 LAKE CITY WAY NE # 211 SEATTLE, WA 98125-5401 | % Ownership: | 100.0000000000% |
| | | Exemptions: | |
Pay Tax Due
Select the appropriate checkbox next to the year to be paid. Multiple years may be selected.
*Convenience Fee not included
Taxes and Assessment Details
Property Tax Information as of
03/11/2026
Click on "Statement Details" to expand or collapse a tax statement.
* Please enter a valid date ** Please enter a valid date *
Statement Details |
| 2026 | 32162 | STATE - STATE LEVY (SCHOOL) | $5813.57 | $5813.56 | $0.00 | $0.00 | $0.00 | $11627.13 |
| 2026 | 32162 | COUNTY - COUNTY LEVIES (CE, DD, VET, MH) | $2324.24 | $2324.23 | $0.00 | $0.00 | $0.00 | $4648.47 |
| 2026 | 32162 | CONSERVE - CONSERVATION FUTURES | $69.70 | $69.69 | $0.00 | $0.00 | $0.00 | $139.39 |
| 2026 | 32162 | CITYPT - CITY OF PT | $3299.08 | $3299.06 | $0.00 | $0.00 | $0.00 | $6598.14 |
| 2026 | 32162 | PORTPT - PORT DISTRICT | $938.71 | $938.70 | $0.00 | $0.00 | $0.00 | $1877.41 |
| 2026 | 32162 | PUD1 - PUD #1 | $151.19 | $151.18 | $0.00 | $0.00 | $0.00 | $302.37 |
| 2026 | 32162 | HD2 - HOSP DIST #2 | $135.56 | $135.55 | $0.00 | $0.00 | $0.00 | $271.11 |
| 2026 | 32162 | SD50 - SCHOOL DIST #50 | $4605.61 | $4605.60 | $0.00 | $0.00 | $0.00 | $9211.21 |
| 2026 | 32162 | FD1 - FIRE DISTRICT #1 | $3077.85 | $3077.84 | $0.00 | $0.00 | $0.00 | $6155.69 |
| 2026 | 32162 | EMS1 - FIRE DIST #1 EMS | $1183.39 | $1183.39 | $0.00 | $0.00 | $0.00 | $2366.78 |
| 2026 | 32162 | FP - DNR Forest Fire Protection Assmt | $8.50 | $8.50 | $0.00 | $0.00 | $0.00 | $17.00 |
| 2026 | 32162 | FPLCA - DNR Landowner Contingency Assmt | $3.00 | $3.00 | $0.00 | $0.00 | $0.00 | $6.00 |
| 2026 | 32162 | JCCD - JC Conservation District | $2.55 | $2.55 | $0.00 | $0.00 | $0.00 | $5.10 |
| 2026 | 32162 | NWA - Noxious Weed Assessment | $2.98 | $2.97 | $0.00 | $0.00 | $0.00 | $5.95 |
| 2026 | 32162 | FP ADMIN - FP ADMIN | $0.50 | $0.00 | $0.00 | $0.00 | $0.00 | $0.50 |
| 2026 | 32162 | TOTAL: | $21616.43 | $21615.82 | $0.00 | $0.00 | $0.00 | $43232.25 |
|
| 2026 | 32162 | $21616.43 | $21615.82 | $0.00 | $0.00 | $0.00 | $43232.25 |
Statement Details |
| 2025 | 32235 | STATE - STATE LEVY (SCHOOL) | $6064.80 | $6064.79 | $0.00 | $0.00 | $12129.59 | $0.00 |
| 2025 | 32235 | COUNTY - COUNTY LEVIES (CE, DD, VET, MH) | $2384.96 | $2384.93 | $0.00 | $0.00 | $4769.89 | $0.00 |
| 2025 | 32235 | CONSERVE - CONSERVATION FUTURES | $71.52 | $71.51 | $0.00 | $0.00 | $143.03 | $0.00 |
| 2025 | 32235 | CITYPT - CITY OF PT | $3439.35 | $3439.34 | $0.00 | $0.00 | $6878.69 | $0.00 |
| 2025 | 32235 | PORTPT - PORT DISTRICT | $973.19 | $973.19 | $0.00 | $0.00 | $1946.38 | $0.00 |
| 2025 | 32235 | PUD1 - PUD #1 | $156.06 | $156.05 | $0.00 | $0.00 | $312.11 | $0.00 |
| 2025 | 32235 | HD2 - HOSP DIST #2 | $139.15 | $139.14 | $0.00 | $0.00 | $278.29 | $0.00 |
| 2025 | 32235 | SD50 - SCHOOL DIST #50 | $4432.36 | $4432.35 | $0.00 | $0.00 | $8864.71 | $0.00 |
| 2025 | 32235 | FD1 - FIRE DISTRICT #1 | $3147.19 | $3147.19 | $0.00 | $0.00 | $6294.38 | $0.00 |
| 2025 | 32235 | EMS1 - FIRE DIST #1 EMS | $1210.50 | $1210.49 | $0.00 | $0.00 | $2420.99 | $0.00 |
| 2025 | 32235 | FP - DNR Forest Fire Protection Assmt | $8.50 | $8.50 | $0.00 | $0.00 | $17.00 | $0.00 |
| 2025 | 32235 | FPLCA - DNR Landowner Contingency Assmt | $3.00 | $3.00 | $0.00 | $0.00 | $6.00 | $0.00 |
| 2025 | 32235 | JCCD - JC Conservation District | $2.55 | $2.55 | $0.00 | $0.00 | $5.10 | $0.00 |
| 2025 | 32235 | NWA - Noxious Weed Assessment | $2.15 | $2.15 | $0.00 | $0.00 | $4.30 | $0.00 |
| 2025 | 32235 | FP ADMIN - FP ADMIN | $0.50 | $0.00 | $0.00 | $0.00 | $0.50 | $0.00 |
| 2025 | 32235 | TOTAL: | $22035.78 | $22035.18 | $0.00 | $0.00 | $44070.96 | $0.00 |
|
| 2025 | 32235 | $22035.78 | $22035.18 | $0.00 | $0.00 | $44070.96 | $0.00 |
Statement Details |
| 2024 | 32294 | STATE - STATE LEVY (SCHOOL) | $4285.37 | $4285.35 | $0.00 | $0.00 | $8570.72 | $0.00 |
| 2024 | 32294 | COUNTY - COUNTY LEVIES (CE, DD, VET, MH) | $1833.77 | $1833.73 | $0.00 | $0.00 | $3667.50 | $0.00 |
| 2024 | 32294 | CONSERVE - CONSERVATION FUTURES | $54.99 | $54.98 | $0.00 | $0.00 | $109.97 | $0.00 |
| 2024 | 32294 | CITYPT - CITY OF PT | $2620.16 | $2620.15 | $0.00 | $0.00 | $5240.31 | $0.00 |
| 2024 | 32294 | PORTPT - PORT DISTRICT | $757.41 | $757.41 | $0.00 | $0.00 | $1514.82 | $0.00 |
| 2024 | 32294 | PUD1 - PUD #1 | $120.45 | $120.45 | $0.00 | $0.00 | $240.90 | $0.00 |
| 2024 | 32294 | HD2 - HOSP DIST #2 | $107.00 | $106.99 | $0.00 | $0.00 | $213.99 | $0.00 |
| 2024 | 32294 | SD50 - SCHOOL DIST #50 | $3467.06 | $3467.06 | $0.00 | $0.00 | $6934.12 | $0.00 |
| 2024 | 32294 | FD1 - FIRE DISTRICT #1 | $2424.65 | $2424.64 | $0.00 | $0.00 | $4849.29 | $0.00 |
| 2024 | 32294 | EMS1 - FIRE DIST #1 EMS | $926.13 | $926.12 | $0.00 | $0.00 | $1852.25 | $0.00 |
| 2024 | 32294 | JCCD - JC Conservation District | $2.55 | $2.55 | $0.00 | $0.00 | $5.10 | $0.00 |
| 2024 | 32294 | NWA - Noxious Weed Assessment | $2.15 | $2.15 | $0.00 | $0.00 | $4.30 | $0.00 |
| 2024 | 32294 | TOTAL: | $16601.69 | $16601.58 | $0.00 | $0.00 | $33203.27 | $0.00 |
|
| 2024 | 32294 | $16601.69 | $16601.58 | $0.00 | $0.00 | $33203.27 | $0.00 |
Statement Details |
| 2023 | 32336 | STATE - STATE LEVY (SCHOOL) | $306.47 | $306.47 | $0.00 | $0.00 | $612.94 | $0.00 |
| 2023 | 32336 | COUNTY - COUNTY LEVIES (CE, DD, VET, MH) | $133.74 | $133.74 | $0.00 | $0.00 | $267.48 | $0.00 |
| 2023 | 32336 | CONSERVE - CONSERVATION FUTURES | $4.01 | $4.01 | $0.00 | $0.00 | $8.02 | $0.00 |
| 2023 | 32336 | CITYPT - CITY OF PT | $189.02 | $189.01 | $0.00 | $0.00 | $378.03 | $0.00 |
| 2023 | 32336 | PORTPT - PORT DISTRICT | $56.35 | $56.33 | $0.00 | $0.00 | $112.68 | $0.00 |
| 2023 | 32336 | PUD1 - PUD #1 | $8.87 | $8.86 | $0.00 | $0.00 | $17.73 | $0.00 |
| 2023 | 32336 | HD2 - HOSP DIST #2 | $7.80 | $7.80 | $0.00 | $0.00 | $15.60 | $0.00 |
| 2023 | 32336 | SD50 - SCHOOL DIST #50 | $243.21 | $243.18 | $0.00 | $0.00 | $486.39 | $0.00 |
| 2023 | 32336 | FD1 - FIRE DISTRICT #1 | $110.17 | $110.17 | $0.00 | $0.00 | $220.34 | $0.00 |
| 2023 | 32336 | EMS1 - FIRE DIST #1 EMS | $46.87 | $46.86 | $0.00 | $0.00 | $93.73 | $0.00 |
| 2023 | 32336 | JCCD - JC Conservation District | $2.53 | $2.53 | $0.00 | $0.00 | $5.06 | $0.00 |
| 2023 | 32336 | NWA - Noxious Weed Assessment | $2.15 | $2.15 | $0.00 | $0.00 | $4.30 | $0.00 |
| 2023 | 32336 | WAT - Clean Water District | $12.00 | $12.00 | $0.00 | $0.00 | $24.00 | $0.00 |
| 2023 | 32336 | TOTAL: | $1123.19 | $1123.11 | $0.00 | $0.00 | $2246.30 | $0.00 |
|
| 2023 | 32336 | $1123.19 | $1123.11 | $0.00 | $0.00 | $2246.30 | $0.00 |
Values
| (+) Improvement Homesite Value: | + | $0 | |
| (+) Improvement Non-Homesite Value: | + | $4,776,915 | |
| (+) Land Homesite Value: | + | $0 | |
| (+) Land Non-Homesite Value: | + | $280,367 | |
| (+) Curr Use (HS): | + | $0 | $0 |
| (+) Curr Use (NHS): | + | $0 | $0 |
| | | -------------------------- | |
| (=) Market Value: | = | $5,057,282 | |
| (–) Productivity Loss: | – | $0 | |
| | | -------------------------- | |
| (=) Subtotal: | = | $5,057,282 | |
| (+) Senior Appraised Value: | + | $0 | |
| (+) Non-Senior Appraised Value: | + | $5,057,282 | |
| | | -------------------------- | |
| (=) Total Appraised Value: | = | $5,057,282 | |
| (–) Senior Exemption Loss: | – | $0 | |
| (–) Exemption Loss: | – | $0 | |
| | | -------------------------- | |
| (=) Taxable Value: | = | $5,057,282 | |
Taxing Jurisdiction
| Owner: | WEST HARBOR LLC | | |
| % Ownership: | 100.0000000000% | | |
| Total Value: | $5,057,282 | | |
| Tax Area: | 0110 - C-50F1E1H2 |
| CE | COUNTY CURRENT EXPENSE | 0.9034619479 | $5,057,282 | $5,057,282 | $4,569.06 | | |
| CNTYDD | DEVELOPMENTAL DISABILITIES | 0.0052121823 | $5,057,282 | $5,057,282 | $26.36 | | |
| CNTYVET | VETERANS RELIEF | 0.0052777810 | $5,057,282 | $5,057,282 | $26.69 | | |
| MENTAL | MENTAL HEALTH | 0.0052121823 | $5,057,282 | $5,057,282 | $26.36 | | |
| PTGEN | CITY OF PT GENERAL | 0.8551967795 | $5,057,282 | $5,057,282 | $4,324.97 | | |
| PTLLL | CITY OF PT - LIBRARY LID LIFT | 0.4010114288 | $5,057,282 | $5,057,282 | $2,028.03 | | |
| PTMVBOND | CITY OF PT MV BOND | 0.0484717981 | $5,057,282 | $5,057,282 | $245.14 | | |
| HOSP2CASH | HOSP DIST #2 GENERAL | 0.0536075306 | $5,057,282 | $5,057,282 | $271.11 | | |
| SCH50BOND | SCHOOL DIST #50 BOND 2016 | 0.5377451389 | $5,057,282 | $5,057,282 | $2,719.53 | | |
| SCH50CP | SCHOOL DIST #50 CAP PROJ | 0.4573475088 | $5,057,282 | $5,057,282 | $2,312.94 | | |
| SCH50MO | SCHOOL DIST #50 EP & O | 0.8262822886 | $5,057,282 | $5,057,282 | $4,178.74 | | |
| CONSERVE | CONSERVATION FUTURES | 0.0275621078 | $5,057,282 | $5,057,282 | $139.39 | | |
| EMS1 | FIRE DIST #1 EMS | 0.4679948282 | $5,057,282 | $5,057,282 | $2,366.78 | | |
| FD1 | FIRE DIST #1 GENERAL | 1.2171942929 | $5,057,282 | $5,057,282 | $6,155.69 | | |
| PORTPT | PORT OF PT GENERAL | 0.1134941229 | $5,057,282 | $5,057,282 | $573.97 | | |
| PORTPTIDD | PORT OF PT IDD 2019 | 0.2577346692 | $5,057,282 | $5,057,282 | $1,303.44 | | |
| PUD1 | PUD #1 GENERAL | 0.0597888892 | $5,057,282 | $5,057,282 | $302.37 | | |
| STATE | STATE SCHOOL PART 1 | 1.4940692947 | $5,057,282 | $5,057,282 | $7,555.93 | | |
| STATE2 | STATE SCHOOL PART 2 | 0.8050170049 | $5,057,282 | $5,057,282 | $4,071.20 | | |
| | Total Tax Rate: | 8.5416817766 | | | | | |
| | | | | Taxes w/Current Exemptions: | $43,197.70 | | |
| | | | | Taxes w/o Exemptions: | $43,197.70 | | |
Improvement / Building
| Improvement #1: | Commercial/Industrial/Government Bldg | State Code: | 13 | 38520.0 sqft | Value: | $4,776,915 |
Sketch
| No sketches available for this property. |
Property Image
Land
| 1 | 6190-6274Q | | 0.8136 | 35441.00 | 0.00 | 0.00 | 0.00 | $280,367 | $0 |
Roll Value History
| 2026 | N/A | N/A | N/A | N/A | N/A |
| 2025 | $4,776,915 | $280,367 | $0 | $5,057,282 | $5,057,282 |
| 2024 | $4,777,788 | $280,367 | $0 | $5,058,155 | $5,058,155 |
| 2023 | $3,429,132 | $275,367 | $0 | $3,704,499 | $3,704,499 |
| 2022 | $0 | $260,367 | $0 | $260,367 | $260,367 |
Deed and Sales History
| 1 | 09/27/2022 | SWD | Statutory Warranty Deed | WILLIAM GUSTAVSON | WEST HARBOR LLC | | | | 139886 | |
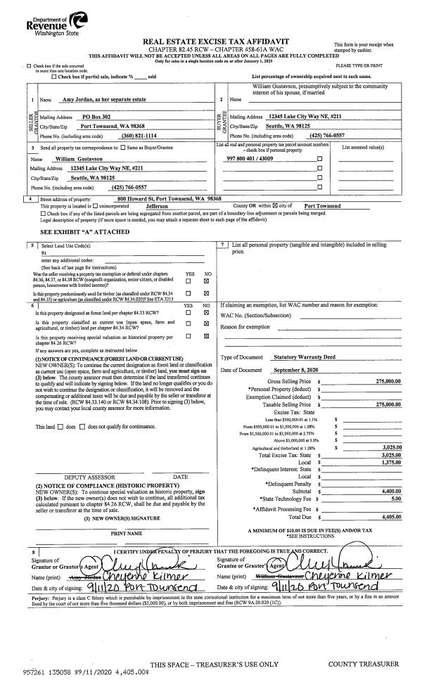
| 2 | 09/08/2020 | SWD | Statutory Warranty Deed | AMY M JORDAN | WILLIAM GUSTAVSON | | | $275,000.00 | 135058 | |
| 3 | 09/20/2018 | SWD | Statutory Warranty Deed | AMY M JORDAN | CITY OF PORT TOWNSEND | | | $2,000.00 | 131057 | |
| 4 | 08/28/2015 | SWD | Statutory Warranty Deed | | | | | | 124110 | |
| 5 | 12/26/2012 | QCD | Quit Claim Deed | CHARLES B ARTHUR TRUSTEE | AMY M JORDAN | | | | 119620 | |
| 6 | 09/01/2011 | SWD | Statutory Warranty Deed | RAAB, PETER/CANDACE | ARTHUR, CHARLES & AMY TRUSTEE | 0 | 0 | $62,500.00 | 116465 | 0 |
| 7 | 04/03/2006 | SWD | Statutory Warranty Deed | ENFIELD, WARREN G | RAAB, PETER & CANDACE/ARTHUR, | | | $200,000.00 | 106346 | 0 |
| 8 | 09/17/1998 | QCD | Quit Claim Deed | ENFIELD, CRYSTAL | ENFIELD, WARREN G | 0 | 0 | $0.00 | 91743 | 0 |
| 9 | 01/25/1996 | QCD | Quit Claim Deed | ENFIELD, KATHERINE L | ENFIELD, WARREN G | 0 | 0 | $0.00 | 78791 | 0 |
Payout Agreement
| No payout information available.. |