Property
Account |
| Property ID: | 43032 | Abbreviated Legal Description: | VILLAS BY THE SEA LOT 2 |
| Parcel # / Geo ID: | 997900002 | Agent Code: | |
| Type: | Real | | |
| Tax Area: | 0211 - 1-49F1E1H2L1 | Land Use Code | 11 |
| Open Space: | N | DFL | N |
| Historic Property: | N | Remodel Property: | N |
| Multi-Family Redevelopment: | N | | |
| Township: | 29N | Section: | 1 |
| Range: | 1W |
Location |
| Address: | 45 PORT TOWNSEND BAY PORT HADLOCK, WA 98339 | Mapsco: | 144/002 |
| Neighborhood: | VILLAS BY THE SEA | Map ID: | |
| Neighborhood CD: | 4201 |
Owner |
| Name: | PATRICIA Q WYMORE | Owner ID: | 98633 |
| Mailing Address: | JOBE WYMORE LIBBY WYMORE 45 PORT TOWNSEND BAY RD PORT HADLOCK, WA 98339-8704 | % Ownership: | 100.0000000000% |
| | | Exemptions: | |
Pay Tax Due
There is currently No Amount Due on this property.
Taxes and Assessment Details
Property Tax Information as of
03/11/2026
Click on "Statement Details" to expand or collapse a tax statement.
* Please enter a valid date ** Please enter a valid date *
Statement Details |
| | TOTAL: | $0.00 | $0.00 | $0.00 | $0.00 | $0.00 | $0.00 |
|
| | $0.00 | $0.00 | $0.00 | $0.00 | $0.00 | $0.00 |
Values
| (+) Improvement Homesite Value: | + | $0 | |
| (+) Improvement Non-Homesite Value: | + | $497,961 | |
| (+) Land Homesite Value: | + | $0 | |
| (+) Land Non-Homesite Value: | + | $112,475 | |
| (+) Curr Use (HS): | + | $0 | $0 |
| (+) Curr Use (NHS): | + | $0 | $0 |
| | | -------------------------- | |
| (=) Market Value: | = | $610,436 | |
| (–) Productivity Loss: | – | $0 | |
| | | -------------------------- | |
| (=) Subtotal: | = | $610,436 | |
| (+) Senior Appraised Value: | + | $0 | |
| (+) Non-Senior Appraised Value: | + | $610,436 | |
| | | -------------------------- | |
| (=) Total Appraised Value: | = | $610,436 | |
| (–) Senior Exemption Loss: | – | $0 | |
| (–) Exemption Loss: | – | $0 | |
| | | -------------------------- | |
| (=) Taxable Value: | = | $610,436 | |
Taxing Jurisdiction
| Owner: | PATRICIA Q WYMORE | | |
| % Ownership: | 100.0000000000% | | |
| Total Value: | $610,436 | | |
| Tax Area: | 0211 - 1-49F1E1H2L1 |
| CE | COUNTY CURRENT EXPENSE | 0.9034619479 | $610,436 | $610,436 | $551.51 | | |
| CNTYDD | DEVELOPMENTAL DISABILITIES | 0.0052121823 | $610,436 | $610,436 | $3.18 | | |
| CNTYVET | VETERANS RELIEF | 0.0052777810 | $610,436 | $610,436 | $3.22 | | |
| MENTAL | MENTAL HEALTH | 0.0052121823 | $610,436 | $610,436 | $3.18 | | |
| ROADS | COUNTY ROADS | 0.7415066410 | $610,436 | $610,436 | $452.64 | | |
| ROADSCU | COUNTY ROADS TO CUR EXP | 0.0000000000 | $610,436 | $610,436 | $0.00 | | |
| HOSP2CASH | HOSP DIST #2 GENERAL | 0.0536075306 | $610,436 | $610,436 | $32.72 | | |
| SCH49CP | SCHOOL DIST #49 CAP PROJ | 0.6279093905 | $610,436 | $610,436 | $383.30 | | |
| SCH49MO | SCHOOL DIST #49 EP & O | 0.6376483602 | $610,436 | $610,436 | $389.24 | | |
| CONSERVE | CONSERVATION FUTURES | 0.0275621078 | $610,436 | $610,436 | $16.82 | | |
| EMS1 | FIRE DIST #1 EMS | 0.4679948282 | $610,436 | $610,436 | $285.68 | | |
| FD1 | FIRE DIST #1 GENERAL | 1.2171942929 | $610,436 | $610,436 | $743.02 | | |
| LIB1 | LIBRARY DIST #1 GENERAL | 0.2868827388 | $610,436 | $610,436 | $175.12 | | |
| PORTPT | PORT OF PT GENERAL | 0.1134941229 | $610,436 | $610,436 | $69.28 | | |
| PORTPTIDD | PORT OF PT IDD 2019 | 0.2577346692 | $610,436 | $610,436 | $157.33 | | |
| PUD1 | PUD #1 GENERAL | 0.0597888892 | $610,436 | $610,436 | $36.50 | | |
| STATE | STATE SCHOOL PART 1 | 1.4940692947 | $610,436 | $610,436 | $912.03 | | |
| STATE2 | STATE SCHOOL PART 2 | 0.8050170049 | $610,436 | $610,436 | $491.41 | | |
| | Total Tax Rate: | 7.7095739644 | | | | | |
| | | | | Taxes w/Current Exemptions: | $4,706.18 | | |
| | | | | Taxes w/o Exemptions: | $4,706.18 | | |
Improvement / Building
| Improvement #1: | Residential Bldg | State Code: | 11 | 1386.0 sqft | Value: | $497,961 |
| Bathrooms (#): | 2 (FULL) | Bedrooms (#): | 2 | | Exterior Wall: | SI/ST | Fireplace: | SIN 1-GOOD | | Floor Construction: | FRAME | Foundation: | CONPR | | Heating/Cooling: | HPUMP | Roof Cover: | TILE |
|
| | Type | Description | Class CD | Sub Class CD | Year Built | Area |
| | MA | Main Area | 4 | 1S | 2005 | 1386.0 |
| | HCPOR | House Concrete Porch | 4 | 1S | 2005 | 24.0 |
| | HDECK | House Deck | 4 | 1S | 2005 | 120.0 |
| | GATT | House Attached Garage | 4 | 1S | 2005 | 508.0 |
| | BSMTF | House basement finished | 4 | 1S | 2005 | 1386.0 |
| | CONCD | Concrete Drive | 4 | 1S | 2005 | 400.0 |
Sketch
| No sketches available for this property. |
Property Image
Land
| 1 | 4201-1165L | Villas ByTheSea Back Lots Some View Potential | 0.0000 | 0.00 | 0.00 | 0.00 | 1.00 | $112,475 | $0 |
Roll Value History
| 2026 | N/A | N/A | N/A | N/A | N/A |
| 2025 | $497,961 | $112,475 | $0 | $610,436 | $610,436 |
| 2024 | $475,327 | $107,363 | $0 | $582,690 | $582,690 |
| 2023 | $452,692 | $97,250 | $0 | $549,942 | $549,942 |
| 2022 | $379,609 | $72,250 | $0 | $451,859 | $451,859 |
Deed and Sales History
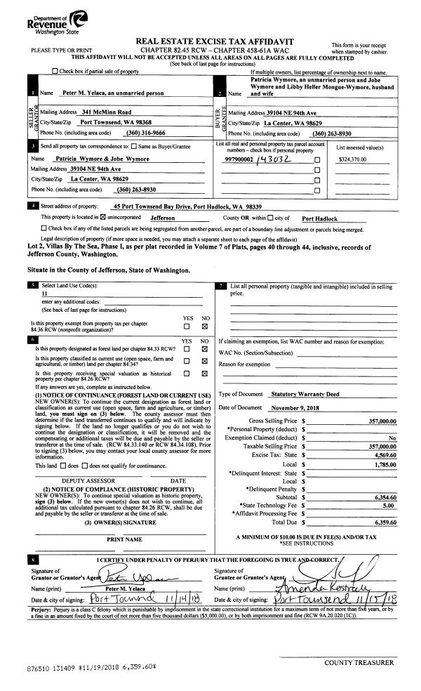
| 1 | 11/09/2018 | SWD | Statutory Warranty Deed | PETER M YELACA | PATRICIA Q WYMORE | | | $357,000.00 | 131409 | |
| 2 | 11/26/2004 | QCD | Quit Claim Deed | YELACA, JAMES T & MARLEEN | YELACA, PETER M | 0 | 0 | $0.00 | 102103 | 0 |
| 3 | 01/16/2003 | SWD | Statutory Warranty Deed | PORT HADLOCK KSC LLC | YELACA, JAMES T & MARLEEN M | 0 | 0 | $0.00 | 96423 | 0 |
Payout Agreement
| No payout information available.. |