Property
Account |
| Property ID: | 43068 | Abbreviated Legal Description: | TACOMA ADDITION BLK 4 LOTS 1, 2, 9, 10 |
| Parcel # / Geo ID: | 998000402 | Agent Code: | |
| Type: | Real | | |
| Tax Area: | 0110 - C-50F1E1H2 | Land Use Code | 91 |
| Open Space: | N | DFL | N |
| Historic Property: | N | Remodel Property: | N |
| Multi-Family Redevelopment: | N | | |
| Township: | 31N | Section: | 34 |
| Range: | 1W |
Location |
| Address: | 0 PORT TOWNSEND, WA 98368 | Mapsco: | 134/018 |
| Neighborhood: | TACOMA & BAKER ADDITIONS | Map ID: | |
| Neighborhood CD: | 6040 |
Owner |
| Name: | DAN & KELLY RICHARDS | Owner ID: | 104555 |
| Mailing Address: | 23322 8TH PL W BOTHELL, WA 98201-7313 | % Ownership: | 100.0000000000% |
| | | Exemptions: | |
Pay Tax Due
Select the appropriate checkbox next to the year to be paid. Multiple years may be selected.
*Convenience Fee not included
Taxes and Assessment Details
Property Tax Information as of
03/10/2026
Click on "Statement Details" to expand or collapse a tax statement.
* Please enter a valid date ** Please enter a valid date *
Statement Details |
| 2026 | 32220 | STATE - STATE LEVY (SCHOOL) | $36.79 | $36.78 | $0.00 | $0.00 | $0.00 | $73.57 |
| 2026 | 32220 | COUNTY - COUNTY LEVIES (CE, DD, VET, MH) | $14.73 | $14.69 | $0.00 | $0.00 | $0.00 | $29.42 |
| 2026 | 32220 | CONSERVE - CONSERVATION FUTURES | $0.44 | $0.44 | $0.00 | $0.00 | $0.00 | $0.88 |
| 2026 | 32220 | CITYPT - CITY OF PT | $20.89 | $20.86 | $0.00 | $0.00 | $0.00 | $41.75 |
| 2026 | 32220 | PORTPT - PORT DISTRICT | $5.95 | $5.93 | $0.00 | $0.00 | $0.00 | $11.88 |
| 2026 | 32220 | PUD1 - PUD #1 | $0.96 | $0.95 | $0.00 | $0.00 | $0.00 | $1.91 |
| 2026 | 32220 | HD2 - HOSP DIST #2 | $0.86 | $0.86 | $0.00 | $0.00 | $0.00 | $1.72 |
| 2026 | 32220 | SD50 - SCHOOL DIST #50 | $29.15 | $29.14 | $0.00 | $0.00 | $0.00 | $58.29 |
| 2026 | 32220 | FD1 - FIRE DISTRICT #1 | $19.48 | $19.47 | $0.00 | $0.00 | $0.00 | $38.95 |
| 2026 | 32220 | EMS1 - FIRE DIST #1 EMS | $7.49 | $7.49 | $0.00 | $0.00 | $0.00 | $14.98 |
| 2026 | 32220 | FP - DNR Forest Fire Protection Assmt | $8.50 | $8.50 | $0.00 | $0.00 | $0.00 | $17.00 |
| 2026 | 32220 | FPLCA - DNR Landowner Contingency Assmt | $3.00 | $3.00 | $0.00 | $0.00 | $0.00 | $6.00 |
| 2026 | 32220 | JCCD - JC Conservation District | $2.53 | $2.53 | $0.00 | $0.00 | $0.00 | $5.06 |
| 2026 | 32220 | NWA - Noxious Weed Assessment | $2.98 | $2.97 | $0.00 | $0.00 | $0.00 | $5.95 |
| 2026 | 32220 | WAT - Clean Water District | $13.00 | $13.00 | $0.00 | $0.00 | $0.00 | $26.00 |
| 2026 | 32220 | FP ADMIN - FP ADMIN | $0.50 | $0.00 | $0.00 | $0.00 | $0.00 | $0.50 |
| 2026 | 32220 | TOTAL: | $167.25 | $166.61 | $0.00 | $0.00 | $0.00 | $333.86 |
|
| 2026 | 32220 | $167.25 | $166.61 | $0.00 | $0.00 | $0.00 | $333.86 |
Statement Details |
| 2025 | 32293 | STATE - STATE LEVY (SCHOOL) | $38.38 | $38.36 | $0.00 | $0.00 | $76.74 | $0.00 |
| 2025 | 32293 | COUNTY - COUNTY LEVIES (CE, DD, VET, MH) | $15.10 | $15.07 | $0.00 | $0.00 | $30.17 | $0.00 |
| 2025 | 32293 | CONSERVE - CONSERVATION FUTURES | $0.45 | $0.45 | $0.00 | $0.00 | $0.90 | $0.00 |
| 2025 | 32293 | CITYPT - CITY OF PT | $21.77 | $21.74 | $0.00 | $0.00 | $43.51 | $0.00 |
| 2025 | 32293 | PORTPT - PORT DISTRICT | $6.17 | $6.15 | $0.00 | $0.00 | $12.32 | $0.00 |
| 2025 | 32293 | PUD1 - PUD #1 | $0.99 | $0.98 | $0.00 | $0.00 | $1.97 | $0.00 |
| 2025 | 32293 | HD2 - HOSP DIST #2 | $0.88 | $0.88 | $0.00 | $0.00 | $1.76 | $0.00 |
| 2025 | 32293 | SD50 - SCHOOL DIST #50 | $28.05 | $28.03 | $0.00 | $0.00 | $56.08 | $0.00 |
| 2025 | 32293 | FD1 - FIRE DISTRICT #1 | $19.91 | $19.91 | $0.00 | $0.00 | $39.82 | $0.00 |
| 2025 | 32293 | EMS1 - FIRE DIST #1 EMS | $7.66 | $7.66 | $0.00 | $0.00 | $15.32 | $0.00 |
| 2025 | 32293 | FP - DNR Forest Fire Protection Assmt | $8.50 | $8.50 | $0.00 | $0.00 | $17.00 | $0.00 |
| 2025 | 32293 | FPLCA - DNR Landowner Contingency Assmt | $3.00 | $3.00 | $0.00 | $0.00 | $6.00 | $0.00 |
| 2025 | 32293 | JCCD - JC Conservation District | $2.53 | $2.53 | $0.00 | $0.00 | $5.06 | $0.00 |
| 2025 | 32293 | NWA - Noxious Weed Assessment | $2.15 | $2.15 | $0.00 | $0.00 | $4.30 | $0.00 |
| 2025 | 32293 | WAT - Clean Water District | $13.00 | $13.00 | $0.00 | $0.00 | $26.00 | $0.00 |
| 2025 | 32293 | FP ADMIN - FP ADMIN | $0.50 | $0.00 | $0.00 | $0.00 | $0.50 | $0.00 |
| 2025 | 32293 | TOTAL: | $169.04 | $168.41 | $0.00 | $0.00 | $337.45 | $0.00 |
|
| 2025 | 32293 | $169.04 | $168.41 | $0.00 | $0.00 | $337.45 | $0.00 |
Statement Details |
| 2024 | 32352 | STATE - STATE LEVY (SCHOOL) | $37.03 | $37.01 | $0.00 | $0.00 | $74.04 | $0.00 |
| 2024 | 32352 | COUNTY - COUNTY LEVIES (CE, DD, VET, MH) | $15.84 | $15.84 | $0.00 | $0.00 | $31.68 | $0.00 |
| 2024 | 32352 | CONSERVE - CONSERVATION FUTURES | $0.48 | $0.47 | $0.00 | $0.00 | $0.95 | $0.00 |
| 2024 | 32352 | CITYPT - CITY OF PT | $22.64 | $22.63 | $0.00 | $0.00 | $45.27 | $0.00 |
| 2024 | 32352 | PORTPT - PORT DISTRICT | $6.55 | $6.53 | $0.00 | $0.00 | $13.08 | $0.00 |
| 2024 | 32352 | PUD1 - PUD #1 | $1.04 | $1.04 | $0.00 | $0.00 | $2.08 | $0.00 |
| 2024 | 32352 | HD2 - HOSP DIST #2 | $0.93 | $0.92 | $0.00 | $0.00 | $1.85 | $0.00 |
| 2024 | 32352 | SD50 - SCHOOL DIST #50 | $29.95 | $29.95 | $0.00 | $0.00 | $59.90 | $0.00 |
| 2024 | 32352 | FD1 - FIRE DISTRICT #1 | $20.95 | $20.94 | $0.00 | $0.00 | $41.89 | $0.00 |
| 2024 | 32352 | EMS1 - FIRE DIST #1 EMS | $8.00 | $8.00 | $0.00 | $0.00 | $16.00 | $0.00 |
| 2024 | 32352 | FP - DNR Forest Fire Protection Assmt | $8.50 | $8.50 | $0.00 | $0.00 | $17.00 | $0.00 |
| 2024 | 32352 | FPLCA - DNR Landowner Contingency Assmt | $3.00 | $3.00 | $0.00 | $0.00 | $6.00 | $0.00 |
| 2024 | 32352 | JCCD - JC Conservation District | $2.53 | $2.53 | $0.00 | $0.00 | $5.06 | $0.00 |
| 2024 | 32352 | NWA - Noxious Weed Assessment | $2.15 | $2.15 | $0.00 | $0.00 | $4.30 | $0.00 |
| 2024 | 32352 | WAT - Clean Water District | $12.50 | $12.50 | $0.00 | $0.00 | $25.00 | $0.00 |
| 2024 | 32352 | FP ADMIN - FP ADMIN | $0.50 | $0.00 | $0.00 | $0.00 | $0.50 | $0.00 |
| 2024 | 32352 | TOTAL: | $172.59 | $172.01 | $0.00 | $0.00 | $344.60 | $0.00 |
|
| 2024 | 32352 | $172.59 | $172.01 | $0.00 | $0.00 | $344.60 | $0.00 |
Statement Details |
| 2023 | 32394 | STATE - STATE LEVY (SCHOOL) | $37.67 | $37.66 | $0.00 | $0.00 | $75.33 | $0.00 |
| 2023 | 32394 | COUNTY - COUNTY LEVIES (CE, DD, VET, MH) | $16.46 | $16.42 | $0.00 | $0.00 | $32.88 | $0.00 |
| 2023 | 32394 | CONSERVE - CONSERVATION FUTURES | $0.50 | $0.49 | $0.00 | $0.00 | $0.99 | $0.00 |
| 2023 | 32394 | CITYPT - CITY OF PT | $23.24 | $23.22 | $0.00 | $0.00 | $46.46 | $0.00 |
| 2023 | 32394 | PORTPT - PORT DISTRICT | $6.93 | $6.92 | $0.00 | $0.00 | $13.85 | $0.00 |
| 2023 | 32394 | PUD1 - PUD #1 | $1.09 | $1.09 | $0.00 | $0.00 | $2.18 | $0.00 |
| 2023 | 32394 | HD2 - HOSP DIST #2 | $0.97 | $0.95 | $0.00 | $0.00 | $1.92 | $0.00 |
| 2023 | 32394 | SD50 - SCHOOL DIST #50 | $29.90 | $29.88 | $0.00 | $0.00 | $59.78 | $0.00 |
| 2023 | 32394 | FD1 - FIRE DISTRICT #1 | $13.54 | $13.54 | $0.00 | $0.00 | $27.08 | $0.00 |
| 2023 | 32394 | EMS1 - FIRE DIST #1 EMS | $5.76 | $5.76 | $0.00 | $0.00 | $11.52 | $0.00 |
| 2023 | 32394 | FP - DNR Forest Fire Protection Assmt | $8.50 | $8.50 | $0.00 | $0.00 | $17.00 | $0.00 |
| 2023 | 32394 | FPLCA - DNR Landowner Contingency Assmt | $3.00 | $3.00 | $0.00 | $0.00 | $6.00 | $0.00 |
| 2023 | 32394 | JCCD - JC Conservation District | $2.53 | $2.53 | $0.00 | $0.00 | $5.06 | $0.00 |
| 2023 | 32394 | NWA - Noxious Weed Assessment | $2.15 | $2.15 | $0.00 | $0.00 | $4.30 | $0.00 |
| 2023 | 32394 | WAT - Clean Water District | $12.00 | $12.00 | $0.00 | $0.00 | $24.00 | $0.00 |
| 2023 | 32394 | FP ADMIN - FP ADMIN | $0.50 | $0.00 | $0.00 | $0.00 | $0.50 | $0.00 |
| 2023 | 32394 | TOTAL: | $164.74 | $164.11 | $0.00 | $0.00 | $328.85 | $0.00 |
|
| 2023 | 32394 | $164.74 | $164.11 | $0.00 | $0.00 | $328.85 | $0.00 |
Values
| (+) Improvement Homesite Value: | + | $0 | |
| (+) Improvement Non-Homesite Value: | + | $0 | |
| (+) Land Homesite Value: | + | $0 | |
| (+) Land Non-Homesite Value: | + | $32,000 | |
| (+) Curr Use (HS): | + | $0 | $0 |
| (+) Curr Use (NHS): | + | $0 | $0 |
| | | -------------------------- | |
| (=) Market Value: | = | $32,000 | |
| (–) Productivity Loss: | – | $0 | |
| | | -------------------------- | |
| (=) Subtotal: | = | $32,000 | |
| (+) Senior Appraised Value: | + | $0 | |
| (+) Non-Senior Appraised Value: | + | $32,000 | |
| | | -------------------------- | |
| (=) Total Appraised Value: | = | $32,000 | |
| (–) Senior Exemption Loss: | – | $0 | |
| (–) Exemption Loss: | – | $0 | |
| | | -------------------------- | |
| (=) Taxable Value: | = | $32,000 | |
Taxing Jurisdiction
| Owner: | DAN & KELLY RICHARDS | | |
| % Ownership: | 100.0000000000% | | |
| Total Value: | $32,000 | | |
| Tax Area: | 0110 - C-50F1E1H2 |
| CE | COUNTY CURRENT EXPENSE | 0.9034619479 | $32,000 | $32,000 | $28.91 | | |
| CNTYDD | DEVELOPMENTAL DISABILITIES | 0.0052121823 | $32,000 | $32,000 | $0.17 | | |
| CNTYVET | VETERANS RELIEF | 0.0052777810 | $32,000 | $32,000 | $0.17 | | |
| MENTAL | MENTAL HEALTH | 0.0052121823 | $32,000 | $32,000 | $0.17 | | |
| PTGEN | CITY OF PT GENERAL | 0.8551967795 | $32,000 | $32,000 | $27.37 | | |
| PTLLL | CITY OF PT - LIBRARY LID LIFT | 0.4010114288 | $32,000 | $32,000 | $12.83 | | |
| PTMVBOND | CITY OF PT MV BOND | 0.0484717981 | $32,000 | $32,000 | $1.55 | | |
| HOSP2CASH | HOSP DIST #2 GENERAL | 0.0536075306 | $32,000 | $32,000 | $1.72 | | |
| SCH50BOND | SCHOOL DIST #50 BOND 2016 | 0.5377451389 | $32,000 | $32,000 | $17.21 | | |
| SCH50CP | SCHOOL DIST #50 CAP PROJ | 0.4573475088 | $32,000 | $32,000 | $14.64 | | |
| SCH50MO | SCHOOL DIST #50 EP & O | 0.8262822886 | $32,000 | $32,000 | $26.44 | | |
| CONSERVE | CONSERVATION FUTURES | 0.0275621078 | $32,000 | $32,000 | $0.88 | | |
| EMS1 | FIRE DIST #1 EMS | 0.4679948282 | $32,000 | $32,000 | $14.98 | | |
| FD1 | FIRE DIST #1 GENERAL | 1.2171942929 | $32,000 | $32,000 | $38.95 | | |
| PORTPT | PORT OF PT GENERAL | 0.1134941229 | $32,000 | $32,000 | $3.63 | | |
| PORTPTIDD | PORT OF PT IDD 2019 | 0.2577346692 | $32,000 | $32,000 | $8.25 | | |
| PUD1 | PUD #1 GENERAL | 0.0597888892 | $32,000 | $32,000 | $1.91 | | |
| STATE | STATE SCHOOL PART 1 | 1.4940692947 | $32,000 | $32,000 | $47.81 | | |
| STATE2 | STATE SCHOOL PART 2 | 0.8050170049 | $32,000 | $32,000 | $25.76 | | |
| | Total Tax Rate: | 8.5416817766 | | | | | |
| | | | | Taxes w/Current Exemptions: | $273.35 | | |
| | | | | Taxes w/o Exemptions: | $273.35 | | |
Improvement / Building
Sketch
| No sketches available for this property. |
Property Image
Land
| 1 | 6040-1177L | | 0.0000 | 0.00 | 0.00 | 0.00 | 2.00 | $16,000 | $0 |
| 2 | 6040-1177L | | 0.0000 | 0.00 | 0.00 | 0.00 | 2.00 | $16,000 | $0 |
Roll Value History
| 2026 | N/A | N/A | N/A | N/A | N/A |
| 2025 | $0 | $32,000 | $0 | $32,000 | $32,000 |
| 2024 | $0 | $32,000 | $0 | $32,000 | $32,000 |
| 2023 | $0 | $32,000 | $0 | $32,000 | $32,000 |
| 2022 | $0 | $32,000 | $0 | $32,000 | $32,000 |
Deed and Sales History
| 1 | 04/19/2022 | SWD | Statutory Warranty Deed | KIM S FINAN | DAN & KELLY RICHARDS | | | $32,000.00 | 138968 | |
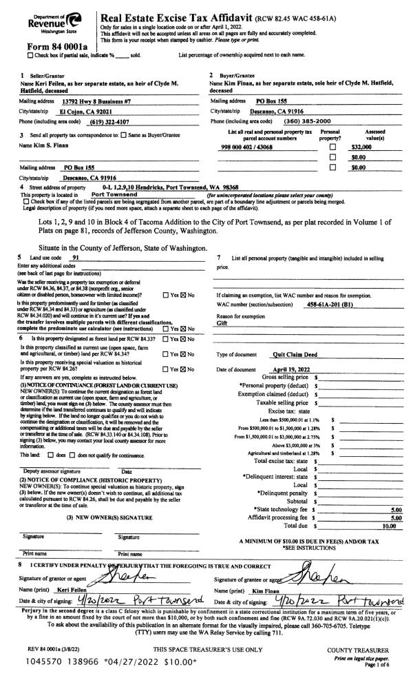
| 2 | 04/19/2022 | QCD | Quit Claim Deed | KERI FEILEN HEIR OF CLYDE HATFIELD | KIM S FINAN | | | | 138966 | |
| 3 | 04/19/2022 | SWD | Statutory Warranty Deed | KRISTY VELARDE HEIR OF CLYDE M HATFIELD | KIM S FINAN | | | | 138967 | |
| 4 | 08/07/2019 | LOP | Lack of Probate | CLYDE M HATFIELD | KIM S FINAN | | | | 133132 | |
Payout Agreement
| No payout information available.. |