Property
Account |
| Property ID: | 43102 | Abbreviated Legal Description: | TACOMA ADDITION BLK 16 LOTS 1 & 2 |
| Parcel # / Geo ID: | 998001603 | Agent Code: | |
| Type: | Real | | |
| Tax Area: | 0110 - C-50F1E1H2 | Land Use Code | 91 |
| Open Space: | N | DFL | N |
| Historic Property: | N | Remodel Property: | N |
| Multi-Family Redevelopment: | N | | |
| Township: | 31N | Section: | 34 |
| Range: | 1W |
Location |
| Address: | 0 PORT TOWNSEND, WA 98368 | Mapsco: | 134/085 |
| Neighborhood: | TACOMA & BAKER ADDITIONS | Map ID: | |
| Neighborhood CD: | 6040 |
Owner |
| Name: | CEDARROOT | Owner ID: | 102532 |
| Mailing Address: | DBA CEDARROOT FOLK SCHOOL PO BOX 253 NORDLAND, WA 98358-0253 | % Ownership: | 100.0000000000% |
| | | Exemptions: | |
Pay Tax Due
Select the appropriate checkbox next to the year to be paid. Multiple years may be selected.
*Convenience Fee not included
Taxes and Assessment Details
Property Tax Information as of
03/11/2026
Click on "Statement Details" to expand or collapse a tax statement.
* Please enter a valid date ** Please enter a valid date *
Statement Details |
| 2026 | 32254 | STATE - STATE LEVY (SCHOOL) | $9.20 | $9.19 | $0.00 | $0.00 | $9.20 | $9.19 |
| 2026 | 32254 | COUNTY - COUNTY LEVIES (CE, DD, VET, MH) | $3.68 | $3.67 | $0.00 | $0.00 | $3.68 | $3.67 |
| 2026 | 32254 | CONSERVE - CONSERVATION FUTURES | $0.11 | $0.11 | $0.00 | $0.00 | $0.11 | $0.11 |
| 2026 | 32254 | CITYPT - CITY OF PT | $5.23 | $5.21 | $0.00 | $0.00 | $5.23 | $5.21 |
| 2026 | 32254 | PORTPT - PORT DISTRICT | $1.49 | $1.48 | $0.00 | $0.00 | $1.49 | $1.48 |
| 2026 | 32254 | PUD1 - PUD #1 | $0.24 | $0.24 | $0.00 | $0.00 | $0.24 | $0.24 |
| 2026 | 32254 | HD2 - HOSP DIST #2 | $0.22 | $0.21 | $0.00 | $0.00 | $0.22 | $0.21 |
| 2026 | 32254 | SD50 - SCHOOL DIST #50 | $7.29 | $7.28 | $0.00 | $0.00 | $7.29 | $7.28 |
| 2026 | 32254 | FD1 - FIRE DISTRICT #1 | $4.87 | $4.87 | $0.00 | $0.00 | $4.87 | $4.87 |
| 2026 | 32254 | EMS1 - FIRE DIST #1 EMS | $1.87 | $1.87 | $0.00 | $0.00 | $1.87 | $1.87 |
| 2026 | 32254 | FPLCA - DNR Landowner Contingency Assmt | $3.00 | $3.00 | $0.00 | $0.00 | $3.00 | $3.00 |
| 2026 | 32254 | JCCD - JC Conservation District | $2.53 | $2.53 | $0.00 | $0.00 | $2.53 | $2.53 |
| 2026 | 32254 | NWA - Noxious Weed Assessment | $2.98 | $2.97 | $0.00 | $0.00 | $2.98 | $2.97 |
| 2026 | 32254 | WAT - Clean Water District | $13.00 | $13.00 | $0.00 | $0.00 | $13.00 | $13.00 |
| 2026 | 32254 | TOTAL: | $55.71 | $55.63 | $0.00 | $0.00 | $55.71 | $55.63 |
|
| 2026 | 32254 | $55.71 | $55.63 | $0.00 | $0.00 | $55.71 | $55.63 |
Statement Details |
| 2025 | 32327 | STATE - STATE LEVY (SCHOOL) | $9.60 | $9.58 | $0.00 | $0.00 | $19.18 | $0.00 |
| 2025 | 32327 | COUNTY - COUNTY LEVIES (CE, DD, VET, MH) | $3.77 | $3.77 | $0.00 | $0.00 | $7.54 | $0.00 |
| 2025 | 32327 | CONSERVE - CONSERVATION FUTURES | $0.12 | $0.11 | $0.00 | $0.00 | $0.23 | $0.00 |
| 2025 | 32327 | CITYPT - CITY OF PT | $5.45 | $5.43 | $0.00 | $0.00 | $10.88 | $0.00 |
| 2025 | 32327 | PORTPT - PORT DISTRICT | $1.55 | $1.53 | $0.00 | $0.00 | $3.08 | $0.00 |
| 2025 | 32327 | PUD1 - PUD #1 | $0.25 | $0.24 | $0.00 | $0.00 | $0.49 | $0.00 |
| 2025 | 32327 | HD2 - HOSP DIST #2 | $0.22 | $0.22 | $0.00 | $0.00 | $0.44 | $0.00 |
| 2025 | 32327 | SD50 - SCHOOL DIST #50 | $7.02 | $7.00 | $0.00 | $0.00 | $14.02 | $0.00 |
| 2025 | 32327 | FD1 - FIRE DISTRICT #1 | $4.98 | $4.98 | $0.00 | $0.00 | $9.96 | $0.00 |
| 2025 | 32327 | EMS1 - FIRE DIST #1 EMS | $1.92 | $1.91 | $0.00 | $0.00 | $3.83 | $0.00 |
| 2025 | 32327 | FPLCA - DNR Landowner Contingency Assmt | $3.00 | $3.00 | $0.00 | $0.00 | $6.00 | $0.00 |
| 2025 | 32327 | JCCD - JC Conservation District | $2.53 | $2.53 | $0.00 | $0.00 | $5.06 | $0.00 |
| 2025 | 32327 | NWA - Noxious Weed Assessment | $2.15 | $2.15 | $0.00 | $0.00 | $4.30 | $0.00 |
| 2025 | 32327 | WAT - Clean Water District | $13.00 | $13.00 | $0.00 | $0.00 | $26.00 | $0.00 |
| 2025 | 32327 | TOTAL: | $55.56 | $55.45 | $0.00 | $0.00 | $111.01 | $0.00 |
|
| 2025 | 32327 | $55.56 | $55.45 | $0.00 | $0.00 | $111.01 | $0.00 |
Statement Details |
| 2024 | 32386 | STATE - STATE LEVY (SCHOOL) | $9.26 | $9.25 | $0.00 | $0.00 | $18.51 | $0.00 |
| 2024 | 32386 | COUNTY - COUNTY LEVIES (CE, DD, VET, MH) | $3.97 | $3.95 | $0.00 | $0.00 | $7.92 | $0.00 |
| 2024 | 32386 | CONSERVE - CONSERVATION FUTURES | $0.12 | $0.12 | $0.00 | $0.00 | $0.24 | $0.00 |
| 2024 | 32386 | CITYPT - CITY OF PT | $5.67 | $5.64 | $0.00 | $0.00 | $11.31 | $0.00 |
| 2024 | 32386 | PORTPT - PORT DISTRICT | $1.64 | $1.63 | $0.00 | $0.00 | $3.27 | $0.00 |
| 2024 | 32386 | PUD1 - PUD #1 | $0.26 | $0.26 | $0.00 | $0.00 | $0.52 | $0.00 |
| 2024 | 32386 | HD2 - HOSP DIST #2 | $0.23 | $0.23 | $0.00 | $0.00 | $0.46 | $0.00 |
| 2024 | 32386 | SD50 - SCHOOL DIST #50 | $7.49 | $7.48 | $0.00 | $0.00 | $14.97 | $0.00 |
| 2024 | 32386 | FD1 - FIRE DISTRICT #1 | $5.24 | $5.23 | $0.00 | $0.00 | $10.47 | $0.00 |
| 2024 | 32386 | EMS1 - FIRE DIST #1 EMS | $2.00 | $2.00 | $0.00 | $0.00 | $4.00 | $0.00 |
| 2024 | 32386 | FPLCA - DNR Landowner Contingency Assmt | $3.00 | $3.00 | $0.00 | $0.00 | $6.00 | $0.00 |
| 2024 | 32386 | JCCD - JC Conservation District | $2.53 | $2.53 | $0.00 | $0.00 | $5.06 | $0.00 |
| 2024 | 32386 | NWA - Noxious Weed Assessment | $2.15 | $2.15 | $0.00 | $0.00 | $4.30 | $0.00 |
| 2024 | 32386 | WAT - Clean Water District | $12.50 | $12.50 | $0.00 | $0.00 | $25.00 | $0.00 |
| 2024 | 32386 | TOTAL: | $56.06 | $55.97 | $0.00 | $0.00 | $112.03 | $0.00 |
|
| 2024 | 32386 | $56.06 | $55.97 | $0.00 | $0.00 | $112.03 | $0.00 |
Statement Details |
| 2023 | 32428 | STATE - STATE LEVY (SCHOOL) | $9.42 | $9.41 | $0.00 | $0.00 | $18.83 | $0.00 |
| 2023 | 32428 | COUNTY - COUNTY LEVIES (CE, DD, VET, MH) | $4.13 | $4.10 | $0.00 | $0.00 | $8.23 | $0.00 |
| 2023 | 32428 | CONSERVE - CONSERVATION FUTURES | $0.13 | $0.12 | $0.00 | $0.00 | $0.25 | $0.00 |
| 2023 | 32428 | CITYPT - CITY OF PT | $5.81 | $5.80 | $0.00 | $0.00 | $11.61 | $0.00 |
| 2023 | 32428 | PORTPT - PORT DISTRICT | $1.74 | $1.72 | $0.00 | $0.00 | $3.46 | $0.00 |
| 2023 | 32428 | PUD1 - PUD #1 | $0.27 | $0.27 | $0.00 | $0.00 | $0.54 | $0.00 |
| 2023 | 32428 | HD2 - HOSP DIST #2 | $0.25 | $0.23 | $0.00 | $0.00 | $0.48 | $0.00 |
| 2023 | 32428 | SD50 - SCHOOL DIST #50 | $7.49 | $7.46 | $0.00 | $0.00 | $14.95 | $0.00 |
| 2023 | 32428 | FD1 - FIRE DISTRICT #1 | $3.39 | $3.38 | $0.00 | $0.00 | $6.77 | $0.00 |
| 2023 | 32428 | EMS1 - FIRE DIST #1 EMS | $1.44 | $1.44 | $0.00 | $0.00 | $2.88 | $0.00 |
| 2023 | 32428 | FPLCA - DNR Landowner Contingency Assmt | $3.00 | $3.00 | $0.00 | $0.00 | $6.00 | $0.00 |
| 2023 | 32428 | JCCD - JC Conservation District | $2.53 | $2.53 | $0.00 | $0.00 | $5.06 | $0.00 |
| 2023 | 32428 | NWA - Noxious Weed Assessment | $2.15 | $2.15 | $0.00 | $0.00 | $4.30 | $0.00 |
| 2023 | 32428 | WAT - Clean Water District | $12.00 | $12.00 | $0.00 | $0.00 | $24.00 | $0.00 |
| 2023 | 32428 | TOTAL: | $53.75 | $53.61 | $0.00 | $0.00 | $107.36 | $0.00 |
|
| 2023 | 32428 | $53.75 | $53.61 | $0.00 | $0.00 | $107.36 | $0.00 |
Values
| (+) Improvement Homesite Value: | + | $0 | |
| (+) Improvement Non-Homesite Value: | + | $0 | |
| (+) Land Homesite Value: | + | $0 | |
| (+) Land Non-Homesite Value: | + | $8,000 | |
| (+) Curr Use (HS): | + | $0 | $0 |
| (+) Curr Use (NHS): | + | $0 | $0 |
| | | -------------------------- | |
| (=) Market Value: | = | $8,000 | |
| (–) Productivity Loss: | – | $0 | |
| | | -------------------------- | |
| (=) Subtotal: | = | $8,000 | |
| (+) Senior Appraised Value: | + | $0 | |
| (+) Non-Senior Appraised Value: | + | $8,000 | |
| | | -------------------------- | |
| (=) Total Appraised Value: | = | $8,000 | |
| (–) Senior Exemption Loss: | – | $0 | |
| (–) Exemption Loss: | – | $0 | |
| | | -------------------------- | |
| (=) Taxable Value: | = | $8,000 | |
Taxing Jurisdiction
| Owner: | CEDARROOT | | |
| % Ownership: | 100.0000000000% | | |
| Total Value: | $8,000 | | |
| Tax Area: | 0110 - C-50F1E1H2 |
| CE | COUNTY CURRENT EXPENSE | 0.9034619479 | $8,000 | $8,000 | $7.23 | | |
| CNTYDD | DEVELOPMENTAL DISABILITIES | 0.0052121823 | $8,000 | $8,000 | $0.04 | | |
| CNTYVET | VETERANS RELIEF | 0.0052777810 | $8,000 | $8,000 | $0.04 | | |
| MENTAL | MENTAL HEALTH | 0.0052121823 | $8,000 | $8,000 | $0.04 | | |
| PTGEN | CITY OF PT GENERAL | 0.8551967795 | $8,000 | $8,000 | $6.84 | | |
| PTLLL | CITY OF PT - LIBRARY LID LIFT | 0.4010114288 | $8,000 | $8,000 | $3.21 | | |
| PTMVBOND | CITY OF PT MV BOND | 0.0484717981 | $8,000 | $8,000 | $0.39 | | |
| HOSP2CASH | HOSP DIST #2 GENERAL | 0.0536075306 | $8,000 | $8,000 | $0.43 | | |
| SCH50BOND | SCHOOL DIST #50 BOND 2016 | 0.5377451389 | $8,000 | $8,000 | $4.30 | | |
| SCH50CP | SCHOOL DIST #50 CAP PROJ | 0.4573475088 | $8,000 | $8,000 | $3.66 | | |
| SCH50MO | SCHOOL DIST #50 EP & O | 0.8262822886 | $8,000 | $8,000 | $6.61 | | |
| CONSERVE | CONSERVATION FUTURES | 0.0275621078 | $8,000 | $8,000 | $0.22 | | |
| EMS1 | FIRE DIST #1 EMS | 0.4679948282 | $8,000 | $8,000 | $3.74 | | |
| FD1 | FIRE DIST #1 GENERAL | 1.2171942929 | $8,000 | $8,000 | $9.74 | | |
| PORTPT | PORT OF PT GENERAL | 0.1134941229 | $8,000 | $8,000 | $0.91 | | |
| PORTPTIDD | PORT OF PT IDD 2019 | 0.2577346692 | $8,000 | $8,000 | $2.06 | | |
| PUD1 | PUD #1 GENERAL | 0.0597888892 | $8,000 | $8,000 | $0.48 | | |
| STATE | STATE SCHOOL PART 1 | 1.4940692947 | $8,000 | $8,000 | $11.95 | | |
| STATE2 | STATE SCHOOL PART 2 | 0.8050170049 | $8,000 | $8,000 | $6.44 | | |
| | Total Tax Rate: | 8.5416817766 | | | | | |
| | | | | Taxes w/Current Exemptions: | $68.33 | | |
| | | | | Taxes w/o Exemptions: | $68.33 | | |
Improvement / Building
Sketch
| No sketches available for this property. |
Property Image
Land
| 1 | 6040-1177L | | 0.0000 | 0.00 | 0.00 | 0.00 | 2.00 | $8,000 | $0 |
Roll Value History
| 2026 | N/A | N/A | N/A | N/A | N/A |
| 2025 | $0 | $8,000 | $0 | $8,000 | $8,000 |
| 2024 | $0 | $8,000 | $0 | $8,000 | $8,000 |
| 2023 | $0 | $8,000 | $0 | $8,000 | $8,000 |
| 2022 | $0 | $8,000 | $0 | $8,000 | $8,000 |
Deed and Sales History
| 1 | 04/01/2020 | SWD | Statutory Warranty Deed | OWEN FAIRBANK | CEDARROOT | | | | 134224 | |
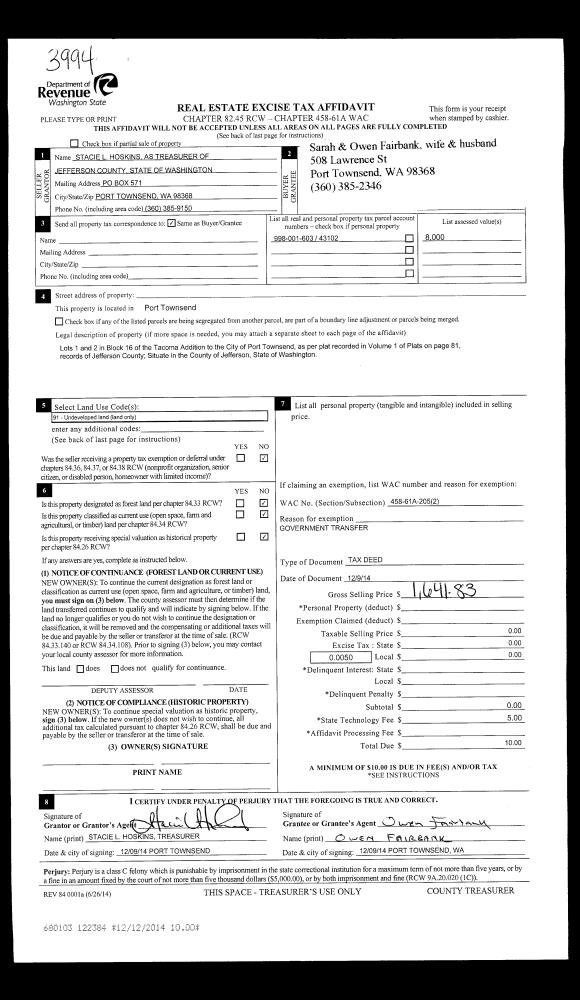
| 2 | 12/09/2014 | TXD | Tax Deed | JEFFERSON COUNTY | OWEN FAIRBANK | | | $1,642.00 | 122384 | |
Payout Agreement
| No payout information available.. |