Property
Account |
| Property ID: | 43211 | Abbreviated Legal Description: | TALA SHORES #3 30 |
| Parcel # / Geo ID: | 998200329 | Agent Code: | |
| Type: | Real | | |
| Tax Area: | 0213 - 1-49F1E1H2L1 | Land Use Code | 11 |
| Open Space: | N | DFL | N |
| Historic Property: | N | Remodel Property: | N |
| Multi-Family Redevelopment: | N | | |
| Township: | 28N | Section: | 15 |
| Range: | 1E |
Location |
| Address: | 770 TALA SHORE DR PORT LUDLOW, WA 98365 | Mapsco: | 131/030 |
| Neighborhood: | TALA SHORES DIV #1, #2, & #3 | Map ID: | |
| Neighborhood CD: | 3362 |
Owner |
| Name: | MICHAEL B & CYNTHIA C MYERS | Owner ID: | 99900 |
| Mailing Address: | 770 TALA SHORE DR PORT LUDLOW, WA 98365 | % Ownership: | 100.0000000000% |
| | | Exemptions: | |
Pay Tax Due
There is currently No Amount Due on this property.
Taxes and Assessment Details
Property Tax Information as of
03/12/2026
Click on "Statement Details" to expand or collapse a tax statement.
* Please enter a valid date ** Please enter a valid date *
Statement Details |
| | TOTAL: | $0.00 | $0.00 | $0.00 | $0.00 | $0.00 | $0.00 |
|
| | $0.00 | $0.00 | $0.00 | $0.00 | $0.00 | $0.00 |
Values
| (+) Improvement Homesite Value: | + | $0 | |
| (+) Improvement Non-Homesite Value: | + | $512,373 | |
| (+) Land Homesite Value: | + | $0 | |
| (+) Land Non-Homesite Value: | + | $285,863 | |
| (+) Curr Use (HS): | + | $0 | $0 |
| (+) Curr Use (NHS): | + | $0 | $0 |
| | | -------------------------- | |
| (=) Market Value: | = | $798,236 | |
| (–) Productivity Loss: | – | $0 | |
| | | -------------------------- | |
| (=) Subtotal: | = | $798,236 | |
| (+) Senior Appraised Value: | + | $0 | |
| (+) Non-Senior Appraised Value: | + | $798,236 | |
| | | -------------------------- | |
| (=) Total Appraised Value: | = | $798,236 | |
| (–) Senior Exemption Loss: | – | $0 | |
| (–) Exemption Loss: | – | $0 | |
| | | -------------------------- | |
| (=) Taxable Value: | = | $798,236 | |
Taxing Jurisdiction
| Owner: | MICHAEL B & CYNTHIA C MYERS | | |
| % Ownership: | 100.0000000000% | | |
| Total Value: | $798,236 | | |
| Tax Area: | 0213 - 1-49F1E1H2L1 |
| CE | COUNTY CURRENT EXPENSE | 0.9034619479 | $798,236 | $798,236 | $721.18 | | |
| CNTYDD | DEVELOPMENTAL DISABILITIES | 0.0052121823 | $798,236 | $798,236 | $4.16 | | |
| CNTYVET | VETERANS RELIEF | 0.0052777810 | $798,236 | $798,236 | $4.21 | | |
| MENTAL | MENTAL HEALTH | 0.0052121823 | $798,236 | $798,236 | $4.16 | | |
| ROADS | COUNTY ROADS | 0.7415066410 | $798,236 | $798,236 | $591.90 | | |
| ROADSCU | COUNTY ROADS TO CUR EXP | 0.0000000000 | $798,236 | $798,236 | $0.00 | | |
| HOSP2CASH | HOSP DIST #2 GENERAL | 0.0536075306 | $798,236 | $798,236 | $42.79 | | |
| SCH49CP | SCHOOL DIST #49 CAP PROJ | 0.6279093905 | $798,236 | $798,236 | $501.22 | | |
| SCH49MO | SCHOOL DIST #49 EP & O | 0.6376483602 | $798,236 | $798,236 | $508.99 | | |
| CONSERVE | CONSERVATION FUTURES | 0.0275621078 | $798,236 | $798,236 | $22.00 | | |
| EMS1 | FIRE DIST #1 EMS | 0.4679948282 | $798,236 | $798,236 | $373.57 | | |
| FD1 | FIRE DIST #1 GENERAL | 1.2171942929 | $798,236 | $798,236 | $971.61 | | |
| LIB1 | LIBRARY DIST #1 GENERAL | 0.2868827388 | $798,236 | $798,236 | $229.00 | | |
| PORTPT | PORT OF PT GENERAL | 0.1134941229 | $798,236 | $798,236 | $90.60 | | |
| PORTPTIDD | PORT OF PT IDD 2019 | 0.2577346692 | $798,236 | $798,236 | $205.73 | | |
| PUD1 | PUD #1 GENERAL | 0.0597888892 | $798,236 | $798,236 | $47.73 | | |
| STATE | STATE SCHOOL PART 1 | 1.4940692947 | $798,236 | $798,236 | $1,192.62 | | |
| STATE2 | STATE SCHOOL PART 2 | 0.8050170049 | $798,236 | $798,236 | $642.59 | | |
| | Total Tax Rate: | 7.7095739644 | | | | | |
| | | | | Taxes w/Current Exemptions: | $6,154.06 | | |
| | | | | Taxes w/o Exemptions: | $6,154.06 | | |
Improvement / Building
| Improvement #1: | Residential Bldg | State Code: | 11 | 1874.0 sqft | Value: | $512,373 |
| Bathrooms (#): | 2 (FULL) | Bathrooms (#): | 1 (HALF) | | Bedrooms (#): | 2 | Exterior Wall: | SI/ST | | Fireplace: | SIN 1-GOOD | Floor Construction: | FRAME | | Foundation: | CONPR | Heating/Cooling: | HPUMP | | Inside Verify: | YES | Roof Cover: | COMP |
|
| | Type | Description | Class CD | Sub Class CD | Year Built | Area |
| | MA | Main Area | 5- | 2S | 2006 | 966.0 |
| | MA2 | Second Floor Main Area | 5- | 2S | 2006 | 908.0 |
| | HWPOR | House Wood Porch | 4 | 2S | 2006 | 36.0 |
| | HBAL | House Balcony | 4 | 2S | 2006 | 252.0 |
| | HDECK | House Deck | 4 | 2S | 2006 | 483.0 |
| | GATT | House Attached Garage | 4 | 2S | 2006 | 504.0 |
| | OTHER | Other | 4 | 2S | 2006 | 0.0 |
Sketch
| No sketches available for this property. |
Property Image
Land
| 1 | 3362-1225F | Med to High Bank Wtrfrt Tala Shores | 0.0000 | 0.00 | 37.50 | 0.00 | 1.00 | $285,863 | $0 |
Roll Value History
| 2026 | N/A | N/A | N/A | N/A | N/A |
| 2025 | $512,373 | $285,863 | $0 | $798,236 | $798,236 |
| 2024 | $512,373 | $285,863 | $0 | $798,236 | $798,236 |
| 2023 | $489,084 | $267,250 | $0 | $756,334 | $756,334 |
| 2022 | $489,084 | $262,250 | $0 | $751,334 | $751,334 |
Deed and Sales History
| 1 | 09/17/2018 | SWD | Statutory Warranty Deed | STEVEN M ALLEN TRUST | MICHAEL B & CYNTHIA C MYERS | | | $612,500.00 | 131023 | |
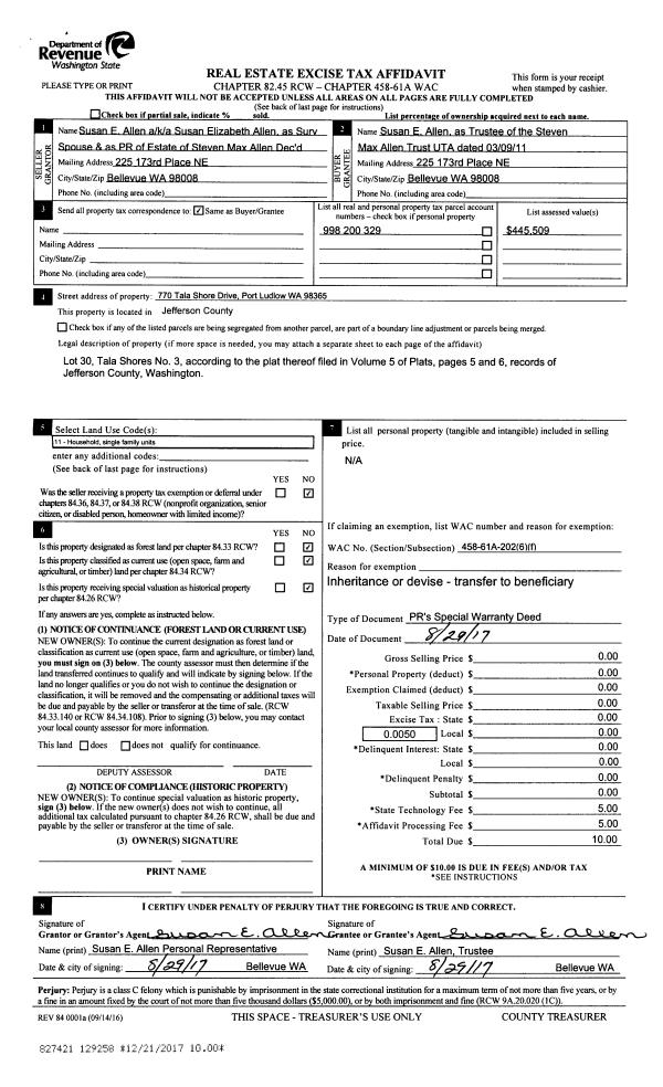
| 2 | 08/29/2017 | PRD | Personal Representatives Deed | STEVEN M ALLEN | STEVEN M ALLEN TRUST | | | | 129258 | |
| 3 | 08/21/2012 | SWD | Statutory Warranty Deed | KVINNESLAND, DOUGLAS M | ALLEN, STEVEN M/SUSAN E | 0 | 0 | $424,900.00 | 118012 | 0 |
| 4 | 06/03/2005 | SWD | Statutory Warranty Deed | ADAMS, GERALD W/JUDY L | KVINNESLAND, DOUGLAS | | | $169,000.00 | 103785 | 0 |
| 5 | 11/28/2000 | SWD | Statutory Warranty Deed | HARGRAVES, LOIS | ADAMS, GERALD/JUDY | 0 | 0 | $100,000.00 | 91136 | 0 |
Payout Agreement
| No payout information available.. |