Property
Account |
| Property ID: | 43216 | Abbreviated Legal Description: | TALA SHORES #3 35 |
| Parcel # / Geo ID: | 998200334 | Agent Code: | |
| Type: | Real | | |
| Tax Area: | 0213 - 1-49F1E1H2L1 | Land Use Code | 11 |
| Open Space: | N | DFL | N |
| Historic Property: | N | Remodel Property: | N |
| Multi-Family Redevelopment: | N | | |
| Township: | 28N | Section: | 15 |
| Range: | 1E |
Location |
| Address: | 753 TALA SHORE DR PORT LUDLOW, WA 98365 | Mapsco: | 131/035 |
| Neighborhood: | TALA SHORES DIV #1, #2, & #3 | Map ID: | |
| Neighborhood CD: | 3362 |
Owner |
| Name: | MICHAEL D & KELLY FORCE | Owner ID: | 15840 |
| Mailing Address: | 753 TALA SHORE DR PORT LUDLOW, WA 98365 | % Ownership: | 100.0000000000% |
| | | Exemptions: | SNR/DSBL |
Pay Tax Due
Select the appropriate checkbox next to the year to be paid. Multiple years may be selected.
*Convenience Fee not included
Taxes and Assessment Details
Property Tax Information as of
03/10/2026
Click on "Statement Details" to expand or collapse a tax statement.
* Please enter a valid date ** Please enter a valid date *
Statement Details |
| 2026 | 32366 | STATE - STATE LEVY (SCHOOL) | $462.79 | $462.78 | $0.00 | $0.00 | $0.00 | $925.57 |
| 2026 | 32366 | COUNTY - COUNTY LEVIES (CE, DD, VET, MH) | $284.73 | $284.69 | $0.00 | $0.00 | $0.00 | $569.42 |
| 2026 | 32366 | CONSERVE - CONSERVATION FUTURES | $8.54 | $8.53 | $0.00 | $0.00 | $0.00 | $17.07 |
| 2026 | 32366 | COROADS - COUNTY ROADS (ROADS, DIV TO CE) | $229.68 | $229.68 | $0.00 | $0.00 | $0.00 | $459.36 |
| 2026 | 32366 | PORTPT - PORT DISTRICT | $115.00 | $114.98 | $0.00 | $0.00 | $0.00 | $229.98 |
| 2026 | 32366 | PUD1 - PUD #1 | $18.52 | $18.52 | $0.00 | $0.00 | $0.00 | $37.04 |
| 2026 | 32366 | LIB1 - LIBRARY DIST #1 | $88.86 | $88.86 | $0.00 | $0.00 | $0.00 | $177.72 |
| 2026 | 32366 | HD2 - HOSP DIST #2 | $16.61 | $16.60 | $0.00 | $0.00 | $0.00 | $33.21 |
| 2026 | 32366 | SD49 - SCHOOL DIST #49 | $0.00 | $0.00 | $0.00 | $0.00 | $0.00 | $0.00 |
| 2026 | 32366 | FD1 - FIRE DISTRICT #1 | $377.03 | $377.02 | $0.00 | $0.00 | $0.00 | $754.05 |
| 2026 | 32366 | EMS1 - FIRE DIST #1 EMS | $144.96 | $144.96 | $0.00 | $0.00 | $0.00 | $289.92 |
| 2026 | 32366 | FPLCA - DNR Landowner Contingency Assmt | $3.00 | $3.00 | $0.00 | $0.00 | $0.00 | $6.00 |
| 2026 | 32366 | OSS - On Site Septic | $23.10 | $23.10 | $0.00 | $0.00 | $0.00 | $46.20 |
| 2026 | 32366 | TOTAL: | $1772.82 | $1772.72 | $0.00 | $0.00 | $0.00 | $3545.54 |
|
| 2026 | 32366 | $1772.82 | $1772.72 | $0.00 | $0.00 | $0.00 | $3545.54 |
Statement Details |
| 2025 | 32441 | STATE - STATE LEVY (SCHOOL) | $482.88 | $482.88 | $0.00 | $0.00 | $965.76 | $0.00 |
| 2025 | 32441 | COUNTY - COUNTY LEVIES (CE, DD, VET, MH) | $292.12 | $292.08 | $0.00 | $0.00 | $584.20 | $0.00 |
| 2025 | 32441 | CONSERVE - CONSERVATION FUTURES | $8.76 | $8.76 | $0.00 | $0.00 | $17.52 | $0.00 |
| 2025 | 32441 | COROADS - COUNTY ROADS (ROADS, DIV TO CE) | $234.02 | $234.01 | $0.00 | $0.00 | $468.03 | $0.00 |
| 2025 | 32441 | PORTPT - PORT DISTRICT | $119.20 | $119.18 | $0.00 | $0.00 | $238.38 | $0.00 |
| 2025 | 32441 | PUD1 - PUD #1 | $19.12 | $19.11 | $0.00 | $0.00 | $38.23 | $0.00 |
| 2025 | 32441 | LIB1 - LIBRARY DIST #1 | $90.54 | $90.54 | $0.00 | $0.00 | $181.08 | $0.00 |
| 2025 | 32441 | HD2 - HOSP DIST #2 | $17.04 | $17.04 | $0.00 | $0.00 | $34.08 | $0.00 |
| 2025 | 32441 | SD49 - SCHOOL DIST #49 | $0.00 | $0.00 | $0.00 | $0.00 | $0.00 | $0.00 |
| 2025 | 32441 | FD1 - FIRE DISTRICT #1 | $385.46 | $385.45 | $0.00 | $0.00 | $770.91 | $0.00 |
| 2025 | 32441 | EMS1 - FIRE DIST #1 EMS | $148.26 | $148.25 | $0.00 | $0.00 | $296.51 | $0.00 |
| 2025 | 32441 | FPLCA - DNR Landowner Contingency Assmt | $3.00 | $3.00 | $0.00 | $0.00 | $6.00 | $0.00 |
| 2025 | 32441 | JCCD - JC Conservation District | $2.55 | $2.55 | $0.00 | $0.00 | $5.10 | $0.00 |
| 2025 | 32441 | NWA - Noxious Weed Assessment | $2.15 | $2.15 | $0.00 | $0.00 | $4.30 | $0.00 |
| 2025 | 32441 | OSS - On Site Septic | $21.50 | $21.50 | $0.00 | $0.00 | $43.00 | $0.00 |
| 2025 | 32441 | WAT - Clean Water District | $13.00 | $13.00 | $0.00 | $0.00 | $26.00 | $0.00 |
| 2025 | 32441 | TOTAL: | $1839.60 | $1839.50 | $0.00 | $0.00 | $3679.10 | $0.00 |
|
| 2025 | 32441 | $1839.60 | $1839.50 | $0.00 | $0.00 | $3679.10 | $0.00 |
Statement Details |
| 2024 | 32500 | STATE - STATE LEVY (SCHOOL) | $755.26 | $755.25 | $0.00 | $0.00 | $1510.51 | $0.00 |
| 2024 | 32500 | COUNTY - COUNTY LEVIES (CE, DD, VET, MH) | $323.20 | $323.17 | $0.00 | $0.00 | $646.37 | $0.00 |
| 2024 | 32500 | CONSERVE - CONSERVATION FUTURES | $9.69 | $9.69 | $0.00 | $0.00 | $19.38 | $0.00 |
| 2024 | 32500 | COROADS - COUNTY ROADS (ROADS, DIV TO CE) | $260.06 | $260.05 | $0.00 | $0.00 | $520.11 | $0.00 |
| 2024 | 32500 | PORTPT - PORT DISTRICT | $133.50 | $133.48 | $0.00 | $0.00 | $266.98 | $0.00 |
| 2024 | 32500 | PUD1 - PUD #1 | $21.23 | $21.23 | $0.00 | $0.00 | $42.46 | $0.00 |
| 2024 | 32500 | LIB1 - LIBRARY DIST #1 | $100.62 | $100.61 | $0.00 | $0.00 | $201.23 | $0.00 |
| 2024 | 32500 | HD2 - HOSP DIST #2 | $18.86 | $18.85 | $0.00 | $0.00 | $37.71 | $0.00 |
| 2024 | 32500 | SD49 - SCHOOL DIST #49 | $337.27 | $337.25 | $0.00 | $0.00 | $674.52 | $0.00 |
| 2024 | 32500 | FD1 - FIRE DISTRICT #1 | $427.32 | $427.32 | $0.00 | $0.00 | $854.64 | $0.00 |
| 2024 | 32500 | EMS1 - FIRE DIST #1 EMS | $163.22 | $163.22 | $0.00 | $0.00 | $326.44 | $0.00 |
| 2024 | 32500 | FPLCA - DNR Landowner Contingency Assmt | $3.00 | $3.00 | $0.00 | $0.00 | $6.00 | $0.00 |
| 2024 | 32500 | JCCD - JC Conservation District | $2.55 | $2.55 | $0.00 | $0.00 | $5.10 | $0.00 |
| 2024 | 32500 | NWA - Noxious Weed Assessment | $2.15 | $2.15 | $0.00 | $0.00 | $4.30 | $0.00 |
| 2024 | 32500 | OSS - On Site Septic | $21.00 | $21.00 | $0.00 | $0.00 | $42.00 | $0.00 |
| 2024 | 32500 | WAT - Clean Water District | $12.50 | $12.50 | $0.00 | $0.00 | $25.00 | $0.00 |
| 2024 | 32500 | TOTAL: | $2591.43 | $2591.32 | $0.00 | $0.00 | $5182.75 | $0.00 |
|
| 2024 | 32500 | $2591.43 | $2591.32 | $0.00 | $0.00 | $5182.75 | $0.00 |
Statement Details |
| 2023 | 32542 | STATE - STATE LEVY (SCHOOL) | $762.62 | $762.61 | $0.00 | $0.00 | $1525.23 | $0.00 |
| 2023 | 32542 | COUNTY - COUNTY LEVIES (CE, DD, VET, MH) | $332.79 | $332.78 | $0.00 | $0.00 | $665.57 | $0.00 |
| 2023 | 32542 | CONSERVE - CONSERVATION FUTURES | $9.98 | $9.98 | $0.00 | $0.00 | $19.96 | $0.00 |
| 2023 | 32542 | COROADS - COUNTY ROADS (ROADS, DIV TO CE) | $269.25 | $269.23 | $0.00 | $0.00 | $538.48 | $0.00 |
| 2023 | 32542 | PORTPT - PORT DISTRICT | $140.19 | $140.18 | $0.00 | $0.00 | $280.37 | $0.00 |
| 2023 | 32542 | PUD1 - PUD #1 | $22.06 | $22.06 | $0.00 | $0.00 | $44.12 | $0.00 |
| 2023 | 32542 | LIB1 - LIBRARY DIST #1 | $104.17 | $104.17 | $0.00 | $0.00 | $208.34 | $0.00 |
| 2023 | 32542 | HD2 - HOSP DIST #2 | $19.42 | $19.42 | $0.00 | $0.00 | $38.84 | $0.00 |
| 2023 | 32542 | SD49 - SCHOOL DIST #49 | $356.48 | $356.48 | $0.00 | $0.00 | $712.96 | $0.00 |
| 2023 | 32542 | FD3 - FIRE DISTRICT #3 | $331.07 | $331.07 | $0.00 | $0.00 | $662.14 | $0.00 |
| 2023 | 32542 | EMS3 - FIRE DIST #3 EMS | $118.36 | $118.36 | $0.00 | $0.00 | $236.72 | $0.00 |
| 2023 | 32542 | FPLCA - DNR Landowner Contingency Assmt | $3.00 | $3.00 | $0.00 | $0.00 | $6.00 | $0.00 |
| 2023 | 32542 | JCCD - JC Conservation District | $2.55 | $2.55 | $0.00 | $0.00 | $5.10 | $0.00 |
| 2023 | 32542 | NWA - Noxious Weed Assessment | $2.15 | $2.15 | $0.00 | $0.00 | $4.30 | $0.00 |
| 2023 | 32542 | OSS - On Site Septic | $20.50 | $20.50 | $0.00 | $0.00 | $41.00 | $0.00 |
| 2023 | 32542 | WAT - Clean Water District | $12.00 | $12.00 | $0.00 | $0.00 | $24.00 | $0.00 |
| 2023 | 32542 | TOTAL: | $2506.59 | $2506.54 | $0.00 | $0.00 | $5013.13 | $0.00 |
|
| 2023 | 32542 | $2506.59 | $2506.54 | $0.00 | $0.00 | $5013.13 | $0.00 |
Values
| (+) Improvement Homesite Value: | + | $563,498 | |
| (+) Improvement Non-Homesite Value: | + | $0 | |
| (+) Land Homesite Value: | + | $126,000 | |
| (+) Land Non-Homesite Value: | + | $0 | |
| (+) Curr Use (HS): | + | $0 | $0 |
| (+) Curr Use (NHS): | + | $0 | $0 |
| | | -------------------------- | |
| (=) Market Value: | = | $689,498 | |
| (–) Productivity Loss: | – | $0 | |
| | | -------------------------- | |
| (=) Subtotal: | = | $689,498 | |
| (+) Senior Appraised Value: | + | $689,498 | |
| (+) Non-Senior Appraised Value: | + | $0 | |
| | | -------------------------- | |
| (=) Total Appraised Value: | = | $689,498 | |
| (–) Senior Exemption Loss: | – | $0 | |
| (–) Exemption Loss: | – | $0 | |
| | | -------------------------- | |
| (=) Taxable Value: | = | $689,498 | |
Taxing Jurisdiction
| Owner: | MICHAEL D & KELLY FORCE | | |
| % Ownership: | 100.0000000000% | | |
| Total Value: | $689,498 | | |
| Tax Area: | 0213 - 1-49F1E1H2L1 |
| CE | COUNTY CURRENT EXPENSE | 0.9034619479 | $689,498 | $689,498 | $622.94 | | |
| CNTYDD | DEVELOPMENTAL DISABILITIES | 0.0052121823 | $689,498 | $689,498 | $3.59 | | |
| CNTYVET | VETERANS RELIEF | 0.0052777810 | $689,498 | $689,498 | $3.64 | | |
| MENTAL | MENTAL HEALTH | 0.0052121823 | $689,498 | $689,498 | $3.59 | | |
| ROADS | COUNTY ROADS | 0.7415066410 | $689,498 | $689,498 | $511.27 | | |
| ROADSCU | COUNTY ROADS TO CUR EXP | 0.0000000000 | $689,498 | $689,498 | $0.00 | | |
| HOSP2CASH | HOSP DIST #2 GENERAL | 0.0536075306 | $689,498 | $689,498 | $36.96 | | |
| SCH49CP | SCHOOL DIST #49 CAP PROJ | 0.0000000000 | $689,498 | $0 | $0.00 | | |
| SCH49MO | SCHOOL DIST #49 EP & O | 0.0000000000 | $689,498 | $0 | $0.00 | | |
| CONSERVE | CONSERVATION FUTURES | 0.0275621078 | $689,498 | $689,498 | $19.00 | | |
| EMS1 | FIRE DIST #1 EMS | 0.4679948282 | $689,498 | $689,498 | $322.68 | | |
| FD1 | FIRE DIST #1 GENERAL | 1.2171942929 | $689,498 | $689,498 | $839.25 | | |
| LIB1 | LIBRARY DIST #1 GENERAL | 0.2868827388 | $689,498 | $689,498 | $197.81 | | |
| PORTPT | PORT OF PT GENERAL | 0.1134941229 | $689,498 | $689,498 | $78.25 | | |
| PORTPTIDD | PORT OF PT IDD 2019 | 0.2577346692 | $689,498 | $689,498 | $177.71 | | |
| PUD1 | PUD #1 GENERAL | 0.0597888892 | $689,498 | $689,498 | $41.22 | | |
| STATE | STATE SCHOOL PART 1 | 1.4940692947 | $689,498 | $689,498 | $1,030.16 | | |
| STATE2 | STATE SCHOOL PART 2 | 0.0000000000 | $689,498 | $0 | $0.00 | | |
| | Total Tax Rate: | 5.6389992088 | | | | | |
| | | | | Taxes w/Current Exemptions: | $3,888.07 | | |
| | | | | Taxes w/o Exemptions: | $5,315.73 | | |
Improvement / Building
| Improvement #1: | Residential Bldg | State Code: | 11 | 2084.0 sqft | Value: | $563,498 |
| Bathrooms (#): | 2 (FULL) | Bedrooms (#): | 2 | | Exterior Wall: | SI/ST | Foundation: | CONPR | | Heating/Cooling: | HPUMP | Roof Cover: | COMP |
|
| | Type | Description | Class CD | Sub Class CD | Year Built | Area |
| | MA | Main Area | 5 | 1S | 2018 | 2084.0 |
| | HDECK | House Deck | 5 | 1S | 2018 | 320.0 |
| | HCPOR | House Concrete Porch | 5 | 1S | 2018 | 104.0 |
| | SHED | Shed (Table Not Dep) | 5 | 1S | 2018 | 0.0 |
Sketch
Property Image
Land
| 1 | 3362-1255S | | 0.0000 | 0.00 | 0.00 | 0.00 | 1.00 | $126,000 | $0 |
Roll Value History
| 2026 | N/A | N/A | N/A | N/A | N/A |
| 2025 | $563,498 | $126,000 | $0 | $689,498 | $689,498 |
| 2024 | $563,498 | $126,000 | $0 | $689,498 | $619,498 |
| 2023 | $537,885 | $115,000 | $0 | $652,885 | $652,885 |
| 2022 | $537,885 | $110,000 | $0 | $647,885 | $647,885 |
Deed and Sales History
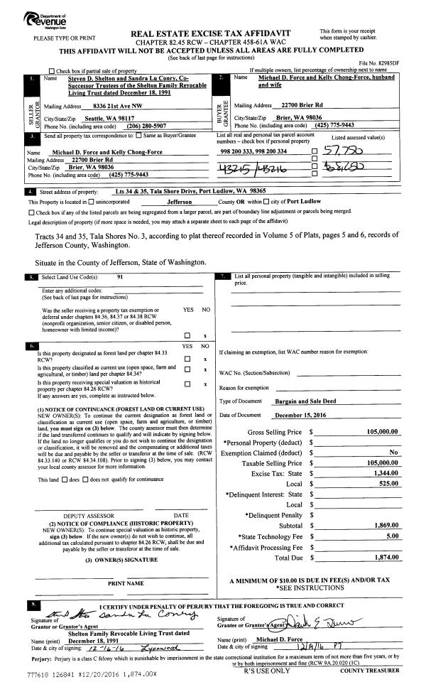
| 1 | 12/15/2016 | BSD | Bargain and Sale Deed | RICHARD D SHELTON TRUSTEE | MICHAEL D & KELLY FORCE | | | $105,000.00 | 126841 | |
|   | |
| 2 | 12/18/1991 | QCD | Quit Claim Deed | SHELTON, RICHARD D/DORIS | SHELTON, RICHARD D/DORIS V | 0 | 0 | $0.00 | 67532 | 0 |
Payout Agreement
| No payout information available.. |