Property
Account |
| Property ID: | 43233 | Abbreviated Legal Description: | TALA SHORES #3 LOT 56 |
| Parcel # / Geo ID: | 998200353 | Agent Code: | |
| Type: | Real | | |
| Tax Area: | 0213 - 1-49F1E1H2L1 | Land Use Code | 11 |
| Open Space: | N | DFL | N |
| Historic Property: | N | Remodel Property: | N |
| Multi-Family Redevelopment: | N | | |
| Township: | 28N | Section: | 15 |
| Range: | 1E |
Location |
| Address: | 301 TALA SHORE DR PORT LUDLOW, WA 98365 | Mapsco: | 131/056 |
| Neighborhood: | TALA SHORES DIV #1, #2, & #3 | Map ID: | |
| Neighborhood CD: | 3362 |
Owner |
| Name: | LEEANN J RODDY | Owner ID: | 101328 |
| Mailing Address: | 301 TALA SHORE DR PORT LUDLOW, WA 98365 | % Ownership: | 100.0000000000% |
| | | Exemptions: | |
Pay Tax Due
Select the appropriate checkbox next to the year to be paid. Multiple years may be selected.
*Convenience Fee not included
Taxes and Assessment Details
Property Tax Information as of
03/13/2026
Click on "Statement Details" to expand or collapse a tax statement.
* Please enter a valid date ** Please enter a valid date *
Statement Details |
| 2026 | 32383 | STATE - STATE LEVY (SCHOOL) | $847.62 | $847.61 | $0.00 | $0.00 | $0.00 | $1695.23 |
| 2026 | 32383 | COUNTY - COUNTY LEVIES (CE, DD, VET, MH) | $338.87 | $338.86 | $0.00 | $0.00 | $0.00 | $677.73 |
| 2026 | 32383 | CONSERVE - CONSERVATION FUTURES | $10.16 | $10.16 | $0.00 | $0.00 | $0.00 | $20.32 |
| 2026 | 32383 | COROADS - COUNTY ROADS (ROADS, DIV TO CE) | $273.38 | $273.37 | $0.00 | $0.00 | $0.00 | $546.75 |
| 2026 | 32383 | PORTPT - PORT DISTRICT | $136.86 | $136.86 | $0.00 | $0.00 | $0.00 | $273.72 |
| 2026 | 32383 | PUD1 - PUD #1 | $22.05 | $22.04 | $0.00 | $0.00 | $0.00 | $44.09 |
| 2026 | 32383 | LIB1 - LIBRARY DIST #1 | $105.77 | $105.76 | $0.00 | $0.00 | $0.00 | $211.53 |
| 2026 | 32383 | HD2 - HOSP DIST #2 | $19.77 | $19.76 | $0.00 | $0.00 | $0.00 | $39.53 |
| 2026 | 32383 | SD49 - SCHOOL DIST #49 | $466.59 | $466.57 | $0.00 | $0.00 | $0.00 | $933.16 |
| 2026 | 32383 | FD1 - FIRE DISTRICT #1 | $448.75 | $448.74 | $0.00 | $0.00 | $0.00 | $897.49 |
| 2026 | 32383 | EMS1 - FIRE DIST #1 EMS | $172.54 | $172.53 | $0.00 | $0.00 | $0.00 | $345.07 |
| 2026 | 32383 | FPLCA - DNR Landowner Contingency Assmt | $3.00 | $3.00 | $0.00 | $0.00 | $0.00 | $6.00 |
| 2026 | 32383 | JCCD - JC Conservation District | $2.55 | $2.55 | $0.00 | $0.00 | $0.00 | $5.10 |
| 2026 | 32383 | NWA - Noxious Weed Assessment | $2.98 | $2.97 | $0.00 | $0.00 | $0.00 | $5.95 |
| 2026 | 32383 | OSS - On Site Septic | $23.10 | $23.10 | $0.00 | $0.00 | $0.00 | $46.20 |
| 2026 | 32383 | WAT - Clean Water District | $13.00 | $13.00 | $0.00 | $0.00 | $0.00 | $26.00 |
| 2026 | 32383 | TOTAL: | $2886.99 | $2886.88 | $0.00 | $0.00 | $0.00 | $5773.87 |
|
| 2026 | 32383 | $2886.99 | $2886.88 | $0.00 | $0.00 | $0.00 | $5773.87 |
Statement Details |
| 2025 | 32458 | STATE - STATE LEVY (SCHOOL) | $884.09 | $884.09 | $0.00 | $0.00 | $1768.18 | $0.00 |
| 2025 | 32458 | COUNTY - COUNTY LEVIES (CE, DD, VET, MH) | $347.67 | $347.64 | $0.00 | $0.00 | $695.31 | $0.00 |
| 2025 | 32458 | CONSERVE - CONSERVATION FUTURES | $10.43 | $10.42 | $0.00 | $0.00 | $20.85 | $0.00 |
| 2025 | 32458 | COROADS - COUNTY ROADS (ROADS, DIV TO CE) | $278.54 | $278.53 | $0.00 | $0.00 | $557.07 | $0.00 |
| 2025 | 32458 | PORTPT - PORT DISTRICT | $141.87 | $141.87 | $0.00 | $0.00 | $283.74 | $0.00 |
| 2025 | 32458 | PUD1 - PUD #1 | $22.75 | $22.75 | $0.00 | $0.00 | $45.50 | $0.00 |
| 2025 | 32458 | LIB1 - LIBRARY DIST #1 | $107.76 | $107.76 | $0.00 | $0.00 | $215.52 | $0.00 |
| 2025 | 32458 | HD2 - HOSP DIST #2 | $20.29 | $20.28 | $0.00 | $0.00 | $40.57 | $0.00 |
| 2025 | 32458 | SD49 - SCHOOL DIST #49 | $473.82 | $473.81 | $0.00 | $0.00 | $947.63 | $0.00 |
| 2025 | 32458 | FD1 - FIRE DISTRICT #1 | $458.78 | $458.78 | $0.00 | $0.00 | $917.56 | $0.00 |
| 2025 | 32458 | EMS1 - FIRE DIST #1 EMS | $176.46 | $176.46 | $0.00 | $0.00 | $352.92 | $0.00 |
| 2025 | 32458 | FPLCA - DNR Landowner Contingency Assmt | $3.00 | $3.00 | $0.00 | $0.00 | $6.00 | $0.00 |
| 2025 | 32458 | JCCD - JC Conservation District | $2.55 | $2.55 | $0.00 | $0.00 | $5.10 | $0.00 |
| 2025 | 32458 | NWA - Noxious Weed Assessment | $2.15 | $2.15 | $0.00 | $0.00 | $4.30 | $0.00 |
| 2025 | 32458 | OSS - On Site Septic | $21.50 | $21.50 | $0.00 | $0.00 | $43.00 | $0.00 |
| 2025 | 32458 | WAT - Clean Water District | $13.00 | $13.00 | $0.00 | $0.00 | $26.00 | $0.00 |
| 2025 | 32458 | TOTAL: | $2964.66 | $2964.59 | $0.00 | $0.00 | $5929.25 | $0.00 |
|
| 2025 | 32458 | $2964.66 | $2964.59 | $0.00 | $0.00 | $5929.25 | $0.00 |
Statement Details |
| 2024 | 32517 | STATE - STATE LEVY (SCHOOL) | $808.04 | $808.04 | $0.00 | $0.00 | $1616.08 | $0.00 |
| 2024 | 32517 | COUNTY - COUNTY LEVIES (CE, DD, VET, MH) | $345.77 | $345.76 | $0.00 | $0.00 | $691.53 | $0.00 |
| 2024 | 32517 | CONSERVE - CONSERVATION FUTURES | $10.37 | $10.37 | $0.00 | $0.00 | $20.74 | $0.00 |
| 2024 | 32517 | COROADS - COUNTY ROADS (ROADS, DIV TO CE) | $278.23 | $278.22 | $0.00 | $0.00 | $556.45 | $0.00 |
| 2024 | 32517 | PORTPT - PORT DISTRICT | $142.83 | $142.81 | $0.00 | $0.00 | $285.64 | $0.00 |
| 2024 | 32517 | PUD1 - PUD #1 | $22.71 | $22.71 | $0.00 | $0.00 | $45.42 | $0.00 |
| 2024 | 32517 | LIB1 - LIBRARY DIST #1 | $107.65 | $107.64 | $0.00 | $0.00 | $215.29 | $0.00 |
| 2024 | 32517 | HD2 - HOSP DIST #2 | $20.18 | $20.17 | $0.00 | $0.00 | $40.35 | $0.00 |
| 2024 | 32517 | SD49 - SCHOOL DIST #49 | $360.84 | $360.82 | $0.00 | $0.00 | $721.66 | $0.00 |
| 2024 | 32517 | FD1 - FIRE DISTRICT #1 | $457.19 | $457.19 | $0.00 | $0.00 | $914.38 | $0.00 |
| 2024 | 32517 | EMS1 - FIRE DIST #1 EMS | $174.63 | $174.63 | $0.00 | $0.00 | $349.26 | $0.00 |
| 2024 | 32517 | JCCD - JC Conservation District | $2.55 | $2.55 | $0.00 | $0.00 | $5.10 | $0.00 |
| 2024 | 32517 | NWA - Noxious Weed Assessment | $2.15 | $2.15 | $0.00 | $0.00 | $4.30 | $0.00 |
| 2024 | 32517 | OSS - On Site Septic | $21.00 | $21.00 | $0.00 | $0.00 | $42.00 | $0.00 |
| 2024 | 32517 | WAT - Clean Water District | $12.50 | $12.50 | $0.00 | $0.00 | $25.00 | $0.00 |
| 2024 | 32517 | TOTAL: | $2766.64 | $2766.56 | $0.00 | $0.00 | $5533.20 | $0.00 |
|
| 2024 | 32517 | $2766.64 | $2766.56 | $0.00 | $0.00 | $5533.20 | $0.00 |
Statement Details |
| 2023 | 32559 | STATE - STATE LEVY (SCHOOL) | $816.33 | $816.32 | $0.00 | $0.00 | $1632.65 | $0.00 |
| 2023 | 32559 | COUNTY - COUNTY LEVIES (CE, DD, VET, MH) | $356.22 | $356.21 | $0.00 | $0.00 | $712.43 | $0.00 |
| 2023 | 32559 | CONSERVE - CONSERVATION FUTURES | $10.68 | $10.68 | $0.00 | $0.00 | $21.36 | $0.00 |
| 2023 | 32559 | COROADS - COUNTY ROADS (ROADS, DIV TO CE) | $288.21 | $288.20 | $0.00 | $0.00 | $576.41 | $0.00 |
| 2023 | 32559 | PORTPT - PORT DISTRICT | $150.07 | $150.05 | $0.00 | $0.00 | $300.12 | $0.00 |
| 2023 | 32559 | PUD1 - PUD #1 | $23.62 | $23.61 | $0.00 | $0.00 | $47.23 | $0.00 |
| 2023 | 32559 | LIB1 - LIBRARY DIST #1 | $111.51 | $111.50 | $0.00 | $0.00 | $223.01 | $0.00 |
| 2023 | 32559 | HD2 - HOSP DIST #2 | $20.79 | $20.78 | $0.00 | $0.00 | $41.57 | $0.00 |
| 2023 | 32559 | SD49 - SCHOOL DIST #49 | $381.59 | $381.58 | $0.00 | $0.00 | $763.17 | $0.00 |
| 2023 | 32559 | FD3 - FIRE DISTRICT #3 | $354.39 | $354.39 | $0.00 | $0.00 | $708.78 | $0.00 |
| 2023 | 32559 | EMS3 - FIRE DIST #3 EMS | $126.70 | $126.69 | $0.00 | $0.00 | $253.39 | $0.00 |
| 2023 | 32559 | JCCD - JC Conservation District | $2.55 | $2.55 | $0.00 | $0.00 | $5.10 | $0.00 |
| 2023 | 32559 | NWA - Noxious Weed Assessment | $2.15 | $2.15 | $0.00 | $0.00 | $4.30 | $0.00 |
| 2023 | 32559 | OSS - On Site Septic | $20.50 | $20.50 | $0.00 | $0.00 | $41.00 | $0.00 |
| 2023 | 32559 | WAT - Clean Water District | $12.00 | $12.00 | $0.00 | $0.00 | $24.00 | $0.00 |
| 2023 | 32559 | TOTAL: | $2677.31 | $2677.21 | $0.00 | $0.00 | $5354.52 | $0.00 |
|
| 2023 | 32559 | $2677.31 | $2677.21 | $0.00 | $0.00 | $5354.52 | $0.00 |
Values
| (+) Improvement Homesite Value: | + | $592,446 | |
| (+) Improvement Non-Homesite Value: | + | $0 | |
| (+) Land Homesite Value: | + | $144,900 | |
| (+) Land Non-Homesite Value: | + | $0 | |
| (+) Curr Use (HS): | + | $0 | $0 |
| (+) Curr Use (NHS): | + | $0 | $0 |
| | | -------------------------- | |
| (=) Market Value: | = | $737,346 | |
| (–) Productivity Loss: | – | $0 | |
| | | -------------------------- | |
| (=) Subtotal: | = | $737,346 | |
| (+) Senior Appraised Value: | + | $0 | |
| (+) Non-Senior Appraised Value: | + | $737,346 | |
| | | -------------------------- | |
| (=) Total Appraised Value: | = | $737,346 | |
| (–) Senior Exemption Loss: | – | $0 | |
| (–) Exemption Loss: | – | $0 | |
| | | -------------------------- | |
| (=) Taxable Value: | = | $737,346 | |
Taxing Jurisdiction
| Owner: | LEEANN J RODDY | | |
| % Ownership: | 100.0000000000% | | |
| Total Value: | $737,346 | | |
| Tax Area: | 0213 - 1-49F1E1H2L1 |
| CE | COUNTY CURRENT EXPENSE | 0.9034619479 | $737,346 | $737,346 | $666.16 | | |
| CNTYDD | DEVELOPMENTAL DISABILITIES | 0.0052121823 | $737,346 | $737,346 | $3.84 | | |
| CNTYVET | VETERANS RELIEF | 0.0052777810 | $737,346 | $737,346 | $3.89 | | |
| MENTAL | MENTAL HEALTH | 0.0052121823 | $737,346 | $737,346 | $3.84 | | |
| ROADS | COUNTY ROADS | 0.7415066410 | $737,346 | $737,346 | $546.75 | | |
| ROADSCU | COUNTY ROADS TO CUR EXP | 0.0000000000 | $737,346 | $737,346 | $0.00 | | |
| HOSP2CASH | HOSP DIST #2 GENERAL | 0.0536075306 | $737,346 | $737,346 | $39.53 | | |
| SCH49CP | SCHOOL DIST #49 CAP PROJ | 0.6279093905 | $737,346 | $737,346 | $462.99 | | |
| SCH49MO | SCHOOL DIST #49 EP & O | 0.6376483602 | $737,346 | $737,346 | $470.17 | | |
| CONSERVE | CONSERVATION FUTURES | 0.0275621078 | $737,346 | $737,346 | $20.32 | | |
| EMS1 | FIRE DIST #1 EMS | 0.4679948282 | $737,346 | $737,346 | $345.07 | | |
| FD1 | FIRE DIST #1 GENERAL | 1.2171942929 | $737,346 | $737,346 | $897.49 | | |
| LIB1 | LIBRARY DIST #1 GENERAL | 0.2868827388 | $737,346 | $737,346 | $211.53 | | |
| PORTPT | PORT OF PT GENERAL | 0.1134941229 | $737,346 | $737,346 | $83.68 | | |
| PORTPTIDD | PORT OF PT IDD 2019 | 0.2577346692 | $737,346 | $737,346 | $190.04 | | |
| PUD1 | PUD #1 GENERAL | 0.0597888892 | $737,346 | $737,346 | $44.09 | | |
| STATE | STATE SCHOOL PART 1 | 1.4940692947 | $737,346 | $737,346 | $1,101.65 | | |
| STATE2 | STATE SCHOOL PART 2 | 0.8050170049 | $737,346 | $737,346 | $593.58 | | |
| | Total Tax Rate: | 7.7095739644 | | | | | |
| | | | | Taxes w/Current Exemptions: | $5,684.62 | | |
| | | | | Taxes w/o Exemptions: | $5,684.62 | | |
Improvement / Building
| Improvement #1: | Residential Bldg | State Code: | 11 | 1440.0 sqft | Value: | $592,446 |
| Bathrooms (#): | 3 (FULL) | Bedrooms (#): | 3 | | Exterior Wall: | PL/T1 | Fireplace: | DBL 2-GOOD | | Floor Construction: | FRAME | Foundation: | CONPR | | Heating/Cooling: | HPUMP | Roof Cover: | METAL |
|
| | Type | Description | Class CD | Sub Class CD | Year Built | Area |
| | MA | Main Area | 4+ | 1S | 1973 | 1440.0 |
| | HDECK | House Deck | 4 | 1S | 1973 | 728.0 |
| | GDET | Detached Garage | 4 | 1S | 1973 | 1024.0 |
| | GDET | Detached Garage | 4 | 1S | 1973 | 300.0 |
| | SHED | Shed (Table Not Dep) | 4 | 1S | 1973 | 240.0 |
| | BSMTF | House basement finished | 4 | 1S | 1973 | 1440.0 |
| | HWPOR | House Wood Porch | 4 | 1S | 1973 | 200.0 |
| | CONCD | Concrete Drive | 4 | 1S | 1973 | 2770.0 |
Sketch
| No sketches available for this property. |
Property Image
Land
| 1 | 3362-1255S | | 0.0000 | 0.00 | 0.00 | 0.00 | 1.00 | $144,900 | $0 |
Roll Value History
| 2026 | N/A | N/A | N/A | N/A | N/A |
| 2025 | $592,446 | $144,900 | $0 | $737,346 | $737,346 |
| 2024 | $592,446 | $144,900 | $0 | $737,346 | $737,346 |
| 2023 | $565,516 | $133,000 | $0 | $698,516 | $698,516 |
| 2022 | $565,516 | $128,000 | $0 | $693,516 | $693,516 |
Deed and Sales History
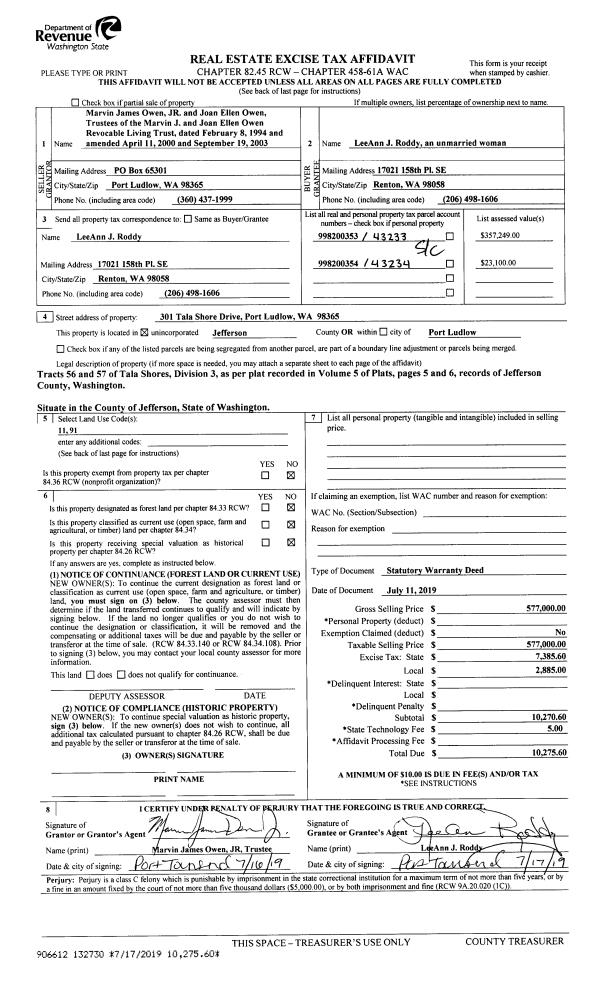
| 1 | 07/11/2019 | SWD | Statutory Warranty Deed | MARVIN J OWEN JR TRSTEE | LEEANN J RODDY | | | $577,000.00 | 132730 | |
|   | |
| 2 | 05/13/2005 | SWD | Statutory Warranty Deed | DE HAWKHURST, JANE M & JE | OWEN JR, MARVIN & JOAN/TRUST | | | $408,000.00 | 103770 | 0 |
| 3 | 06/04/2003 | SWD | Statutory Warranty Deed | SMITH, RONALD A/JUDITH | DEHAWKHURST, JAN/ | 0 | 0 | $258,500.00 | 97475 | 0 |
|   | |
| 4 | 01/28/1992 | SWD | Statutory Warranty Deed | BRYANT, VIRGINIA V | SMITH, RONALD A/JUDITH H | 0 | 0 | $120,000.00 | 67644 | 0 |
|   | |
Payout Agreement
| No payout information available.. |