Property
Account |
| Property ID: | 43234 | Abbreviated Legal Description: | TALA SHORES #3 57 |
| Parcel # / Geo ID: | 998200354 | Agent Code: | |
| Type: | Real | | |
| Tax Area: | 0213 - 1-49F1E1H2L1 | Land Use Code | 91 |
| Open Space: | N | DFL | N |
| Historic Property: | N | Remodel Property: | N |
| Multi-Family Redevelopment: | N | | |
| Township: | 28N | Section: | 22 |
| Range: | 1E |
Location |
| Address: | 301 TALA SHORE DR PORT LUDLOW, WA 98365 | Mapsco: | 131/057 |
| Neighborhood: | TALA SHORES DIV #1, #2, & #3 | Map ID: | |
| Neighborhood CD: | 3362 |
Owner |
| Name: | LEEANN J RODDY | Owner ID: | 101328 |
| Mailing Address: | 301 TALA SHORE DR PORT LUDLOW, WA 98365 | % Ownership: | 100.0000000000% |
| | | Exemptions: | |
Pay Tax Due
Select the appropriate checkbox next to the year to be paid. Multiple years may be selected.
*Convenience Fee not included
Taxes and Assessment Details
Property Tax Information as of
03/13/2026
Click on "Statement Details" to expand or collapse a tax statement.
* Please enter a valid date ** Please enter a valid date *
Statement Details |
| 2026 | 32384 | STATE - STATE LEVY (SCHOOL) | $43.46 | $43.45 | $0.00 | $0.00 | $0.00 | $86.91 |
| 2026 | 32384 | COUNTY - COUNTY LEVIES (CE, DD, VET, MH) | $17.38 | $17.37 | $0.00 | $0.00 | $0.00 | $34.75 |
| 2026 | 32384 | CONSERVE - CONSERVATION FUTURES | $0.52 | $0.52 | $0.00 | $0.00 | $0.00 | $1.04 |
| 2026 | 32384 | COROADS - COUNTY ROADS (ROADS, DIV TO CE) | $14.02 | $14.01 | $0.00 | $0.00 | $0.00 | $28.03 |
| 2026 | 32384 | PORTPT - PORT DISTRICT | $7.02 | $7.01 | $0.00 | $0.00 | $0.00 | $14.03 |
| 2026 | 32384 | PUD1 - PUD #1 | $1.13 | $1.13 | $0.00 | $0.00 | $0.00 | $2.26 |
| 2026 | 32384 | LIB1 - LIBRARY DIST #1 | $5.42 | $5.42 | $0.00 | $0.00 | $0.00 | $10.84 |
| 2026 | 32384 | HD2 - HOSP DIST #2 | $1.02 | $1.01 | $0.00 | $0.00 | $0.00 | $2.03 |
| 2026 | 32384 | SD49 - SCHOOL DIST #49 | $23.92 | $23.91 | $0.00 | $0.00 | $0.00 | $47.83 |
| 2026 | 32384 | FD1 - FIRE DISTRICT #1 | $23.01 | $23.00 | $0.00 | $0.00 | $0.00 | $46.01 |
| 2026 | 32384 | EMS1 - FIRE DIST #1 EMS | $8.85 | $8.84 | $0.00 | $0.00 | $0.00 | $17.69 |
| 2026 | 32384 | FP - DNR Forest Fire Protection Assmt | $8.50 | $8.50 | $0.00 | $0.00 | $0.00 | $17.00 |
| 2026 | 32384 | FPLCA - DNR Landowner Contingency Assmt | $3.00 | $3.00 | $0.00 | $0.00 | $0.00 | $6.00 |
| 2026 | 32384 | JCCD - JC Conservation District | $2.53 | $2.53 | $0.00 | $0.00 | $0.00 | $5.06 |
| 2026 | 32384 | NWA - Noxious Weed Assessment | $2.98 | $2.97 | $0.00 | $0.00 | $0.00 | $5.95 |
| 2026 | 32384 | WAT - Clean Water District | $13.00 | $13.00 | $0.00 | $0.00 | $0.00 | $26.00 |
| 2026 | 32384 | FP ADMIN - FP ADMIN | $0.50 | $0.00 | $0.00 | $0.00 | $0.00 | $0.50 |
| 2026 | 32384 | TOTAL: | $176.26 | $175.67 | $0.00 | $0.00 | $0.00 | $351.93 |
|
| 2026 | 32384 | $176.26 | $175.67 | $0.00 | $0.00 | $0.00 | $351.93 |
Statement Details |
| 2025 | 32459 | STATE - STATE LEVY (SCHOOL) | $45.33 | $45.32 | $0.00 | $0.00 | $90.65 | $0.00 |
| 2025 | 32459 | COUNTY - COUNTY LEVIES (CE, DD, VET, MH) | $17.82 | $17.82 | $0.00 | $0.00 | $35.64 | $0.00 |
| 2025 | 32459 | CONSERVE - CONSERVATION FUTURES | $0.54 | $0.53 | $0.00 | $0.00 | $1.07 | $0.00 |
| 2025 | 32459 | COROADS - COUNTY ROADS (ROADS, DIV TO CE) | $14.28 | $14.28 | $0.00 | $0.00 | $28.56 | $0.00 |
| 2025 | 32459 | PORTPT - PORT DISTRICT | $7.27 | $7.27 | $0.00 | $0.00 | $14.54 | $0.00 |
| 2025 | 32459 | PUD1 - PUD #1 | $1.17 | $1.16 | $0.00 | $0.00 | $2.33 | $0.00 |
| 2025 | 32459 | LIB1 - LIBRARY DIST #1 | $5.53 | $5.52 | $0.00 | $0.00 | $11.05 | $0.00 |
| 2025 | 32459 | HD2 - HOSP DIST #2 | $1.04 | $1.04 | $0.00 | $0.00 | $2.08 | $0.00 |
| 2025 | 32459 | SD49 - SCHOOL DIST #49 | $24.30 | $24.28 | $0.00 | $0.00 | $48.58 | $0.00 |
| 2025 | 32459 | FD1 - FIRE DISTRICT #1 | $23.52 | $23.52 | $0.00 | $0.00 | $47.04 | $0.00 |
| 2025 | 32459 | EMS1 - FIRE DIST #1 EMS | $9.05 | $9.04 | $0.00 | $0.00 | $18.09 | $0.00 |
| 2025 | 32459 | FP - DNR Forest Fire Protection Assmt | $8.50 | $8.50 | $0.00 | $0.00 | $17.00 | $0.00 |
| 2025 | 32459 | FPLCA - DNR Landowner Contingency Assmt | $3.00 | $3.00 | $0.00 | $0.00 | $6.00 | $0.00 |
| 2025 | 32459 | JCCD - JC Conservation District | $2.53 | $2.53 | $0.00 | $0.00 | $5.06 | $0.00 |
| 2025 | 32459 | NWA - Noxious Weed Assessment | $2.15 | $2.15 | $0.00 | $0.00 | $4.30 | $0.00 |
| 2025 | 32459 | WAT - Clean Water District | $13.00 | $13.00 | $0.00 | $0.00 | $26.00 | $0.00 |
| 2025 | 32459 | FP ADMIN - FP ADMIN | $0.50 | $0.00 | $0.00 | $0.00 | $0.50 | $0.00 |
| 2025 | 32459 | TOTAL: | $179.53 | $178.96 | $0.00 | $0.00 | $358.49 | $0.00 |
|
| 2025 | 32459 | $179.53 | $178.96 | $0.00 | $0.00 | $358.49 | $0.00 |
Statement Details |
| 2024 | 32518 | STATE - STATE LEVY (SCHOOL) | $41.65 | $41.64 | $0.00 | $0.00 | $83.29 | $0.00 |
| 2024 | 32518 | COUNTY - COUNTY LEVIES (CE, DD, VET, MH) | $17.82 | $17.81 | $0.00 | $0.00 | $35.63 | $0.00 |
| 2024 | 32518 | CONSERVE - CONSERVATION FUTURES | $0.54 | $0.53 | $0.00 | $0.00 | $1.07 | $0.00 |
| 2024 | 32518 | COROADS - COUNTY ROADS (ROADS, DIV TO CE) | $14.34 | $14.34 | $0.00 | $0.00 | $28.68 | $0.00 |
| 2024 | 32518 | PORTPT - PORT DISTRICT | $7.36 | $7.36 | $0.00 | $0.00 | $14.72 | $0.00 |
| 2024 | 32518 | PUD1 - PUD #1 | $1.17 | $1.17 | $0.00 | $0.00 | $2.34 | $0.00 |
| 2024 | 32518 | LIB1 - LIBRARY DIST #1 | $5.55 | $5.55 | $0.00 | $0.00 | $11.10 | $0.00 |
| 2024 | 32518 | HD2 - HOSP DIST #2 | $1.04 | $1.04 | $0.00 | $0.00 | $2.08 | $0.00 |
| 2024 | 32518 | SD49 - SCHOOL DIST #49 | $18.60 | $18.59 | $0.00 | $0.00 | $37.19 | $0.00 |
| 2024 | 32518 | FD1 - FIRE DISTRICT #1 | $23.57 | $23.56 | $0.00 | $0.00 | $47.13 | $0.00 |
| 2024 | 32518 | EMS1 - FIRE DIST #1 EMS | $9.00 | $9.00 | $0.00 | $0.00 | $18.00 | $0.00 |
| 2024 | 32518 | FP - DNR Forest Fire Protection Assmt | $8.50 | $8.50 | $0.00 | $0.00 | $17.00 | $0.00 |
| 2024 | 32518 | FPLCA - DNR Landowner Contingency Assmt | $3.00 | $3.00 | $0.00 | $0.00 | $6.00 | $0.00 |
| 2024 | 32518 | JCCD - JC Conservation District | $2.53 | $2.53 | $0.00 | $0.00 | $5.06 | $0.00 |
| 2024 | 32518 | NWA - Noxious Weed Assessment | $2.15 | $2.15 | $0.00 | $0.00 | $4.30 | $0.00 |
| 2024 | 32518 | WAT - Clean Water District | $12.50 | $12.50 | $0.00 | $0.00 | $25.00 | $0.00 |
| 2024 | 32518 | FP ADMIN - FP ADMIN | $0.50 | $0.00 | $0.00 | $0.00 | $0.50 | $0.00 |
| 2024 | 32518 | TOTAL: | $169.82 | $169.27 | $0.00 | $0.00 | $339.09 | $0.00 |
|
| 2024 | 32518 | $169.82 | $169.27 | $0.00 | $0.00 | $339.09 | $0.00 |
Statement Details |
| 2023 | 32560 | STATE - STATE LEVY (SCHOOL) | $42.38 | $42.37 | $0.00 | $0.00 | $84.75 | $0.00 |
| 2023 | 32560 | COUNTY - COUNTY LEVIES (CE, DD, VET, MH) | $18.51 | $18.47 | $0.00 | $0.00 | $36.98 | $0.00 |
| 2023 | 32560 | CONSERVE - CONSERVATION FUTURES | $0.56 | $0.55 | $0.00 | $0.00 | $1.11 | $0.00 |
| 2023 | 32560 | COROADS - COUNTY ROADS (ROADS, DIV TO CE) | $14.97 | $14.95 | $0.00 | $0.00 | $29.92 | $0.00 |
| 2023 | 32560 | PORTPT - PORT DISTRICT | $7.80 | $7.78 | $0.00 | $0.00 | $15.58 | $0.00 |
| 2023 | 32560 | PUD1 - PUD #1 | $1.23 | $1.22 | $0.00 | $0.00 | $2.45 | $0.00 |
| 2023 | 32560 | LIB1 - LIBRARY DIST #1 | $5.79 | $5.79 | $0.00 | $0.00 | $11.58 | $0.00 |
| 2023 | 32560 | HD2 - HOSP DIST #2 | $1.09 | $1.07 | $0.00 | $0.00 | $2.16 | $0.00 |
| 2023 | 32560 | SD49 - SCHOOL DIST #49 | $19.81 | $19.81 | $0.00 | $0.00 | $39.62 | $0.00 |
| 2023 | 32560 | FD3 - FIRE DISTRICT #3 | $18.40 | $18.39 | $0.00 | $0.00 | $36.79 | $0.00 |
| 2023 | 32560 | EMS3 - FIRE DIST #3 EMS | $6.58 | $6.57 | $0.00 | $0.00 | $13.15 | $0.00 |
| 2023 | 32560 | FP - DNR Forest Fire Protection Assmt | $8.50 | $8.50 | $0.00 | $0.00 | $17.00 | $0.00 |
| 2023 | 32560 | FPLCA - DNR Landowner Contingency Assmt | $3.00 | $3.00 | $0.00 | $0.00 | $6.00 | $0.00 |
| 2023 | 32560 | JCCD - JC Conservation District | $2.53 | $2.53 | $0.00 | $0.00 | $5.06 | $0.00 |
| 2023 | 32560 | NWA - Noxious Weed Assessment | $2.15 | $2.15 | $0.00 | $0.00 | $4.30 | $0.00 |
| 2023 | 32560 | WAT - Clean Water District | $12.00 | $12.00 | $0.00 | $0.00 | $24.00 | $0.00 |
| 2023 | 32560 | FP ADMIN - FP ADMIN | $0.50 | $0.00 | $0.00 | $0.00 | $0.50 | $0.00 |
| 2023 | 32560 | TOTAL: | $165.80 | $165.15 | $0.00 | $0.00 | $330.95 | $0.00 |
|
| 2023 | 32560 | $165.80 | $165.15 | $0.00 | $0.00 | $330.95 | $0.00 |
Values
| (+) Improvement Homesite Value: | + | $0 | |
| (+) Improvement Non-Homesite Value: | + | $0 | |
| (+) Land Homesite Value: | + | $0 | |
| (+) Land Non-Homesite Value: | + | $37,800 | |
| (+) Curr Use (HS): | + | $0 | $0 |
| (+) Curr Use (NHS): | + | $0 | $0 |
| | | -------------------------- | |
| (=) Market Value: | = | $37,800 | |
| (–) Productivity Loss: | – | $0 | |
| | | -------------------------- | |
| (=) Subtotal: | = | $37,800 | |
| (+) Senior Appraised Value: | + | $0 | |
| (+) Non-Senior Appraised Value: | + | $37,800 | |
| | | -------------------------- | |
| (=) Total Appraised Value: | = | $37,800 | |
| (–) Senior Exemption Loss: | – | $0 | |
| (–) Exemption Loss: | – | $0 | |
| | | -------------------------- | |
| (=) Taxable Value: | = | $37,800 | |
Taxing Jurisdiction
| Owner: | LEEANN J RODDY | | |
| % Ownership: | 100.0000000000% | | |
| Total Value: | N/A | | |
| Tax Area: | 0213 - 1-49F1E1H2L1 |
| CE | COUNTY CURRENT EXPENSE | N/A | N/A | N/A | N/A | | |
| CNTYDD | DEVELOPMENTAL DISABILITIES | N/A | N/A | N/A | N/A | | |
| CNTYVET | VETERANS RELIEF | N/A | N/A | N/A | N/A | | |
| MENTAL | MENTAL HEALTH | N/A | N/A | N/A | N/A | | |
| ROADS | COUNTY ROADS | N/A | N/A | N/A | N/A | | |
| HOSP2CASH | HOSP DIST #2 GENERAL | N/A | N/A | N/A | N/A | | |
| SCH49CP | SCHOOL DIST #49 CAP PROJ | N/A | N/A | N/A | N/A | | |
| SCH49MO | SCHOOL DIST #49 EP & O | N/A | N/A | N/A | N/A | | |
| CONSERVE | CONSERVATION FUTURES | N/A | N/A | N/A | N/A | | |
| EMS1 | FIRE DIST #1 EMS | N/A | N/A | N/A | N/A | | |
| FD1 | FIRE DIST #1 GENERAL | N/A | N/A | N/A | N/A | | |
| LIB1 | LIBRARY DIST #1 GENERAL | N/A | N/A | N/A | N/A | | |
| PORTPT | PORT OF PT GENERAL | N/A | N/A | N/A | N/A | | |
| PORTPTIDD | PORT OF PT IDD 2019 | N/A | N/A | N/A | N/A | | |
| PUD1 | PUD #1 GENERAL | N/A | N/A | N/A | N/A | | |
| STATE | STATE SCHOOL PART 1 | N/A | N/A | N/A | N/A | | |
| STATE2 | STATE SCHOOL PART 2 | N/A | N/A | N/A | N/A | | |
| | Total Tax Rate: | N/A | | | | | |
| | | | | Taxes w/Current Exemptions: | N/A | | |
| | | | | Taxes w/o Exemptions: | N/A | | |
Improvement / Building
Sketch
| No sketches available for this property. |
Property Image
Land
| 1 | 3362-1255S | | 0.0000 | 0.00 | 0.00 | 0.00 | 1.00 | $37,800 | $0 |
Roll Value History
| 2026 | N/A | N/A | N/A | N/A | N/A |
| 2025 | $0 | $37,800 | $0 | $37,800 | $37,800 |
| 2024 | $0 | $37,800 | $0 | $37,800 | $37,800 |
| 2023 | $0 | $36,000 | $0 | $36,000 | $36,000 |
| 2022 | $0 | $36,000 | $0 | $36,000 | $36,000 |
Deed and Sales History
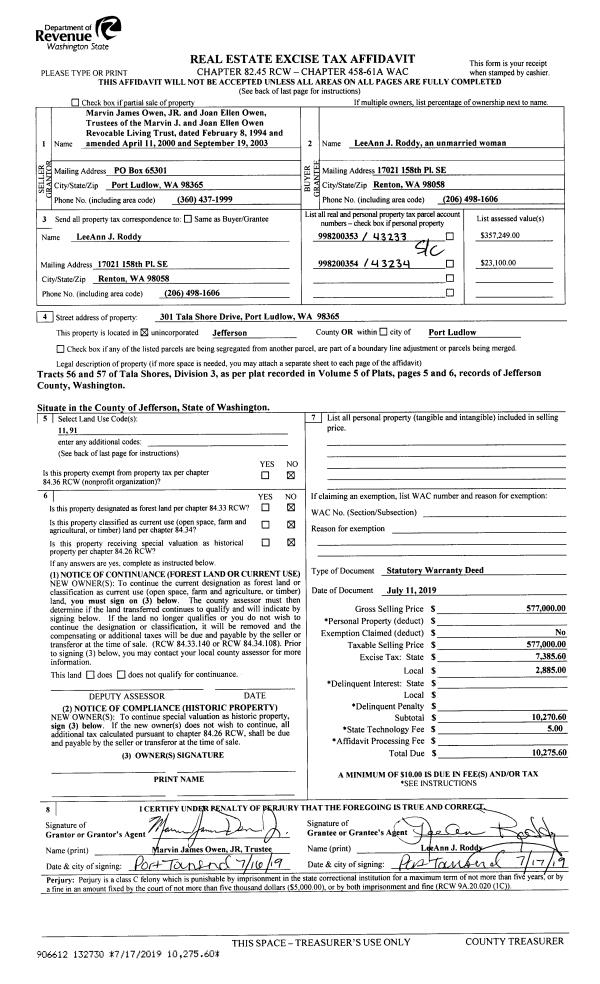
| 1 | 07/11/2019 | SWD | Statutory Warranty Deed | MARVIN J OWEN JR TRSTEE | LEEANN J RODDY | | | $577,000.00 | 132730 | |
|   | |
| 2 | 05/13/2005 | SWD | Statutory Warranty Deed | DE HAWKHURST, JANE M & JE | OWEN JR, MARVIN & JOAN/TRUST | | | $408,000.00 | 103770 | 0 |
| 3 | 06/04/2003 | SWD | Statutory Warranty Deed | SMITH, RONALD A/JUDITH | DEHAWKHURST, JAN/ | 0 | 0 | $258,500.00 | 97475 | 0 |
|   | |
| 4 | 01/28/1992 | SWD | Statutory Warranty Deed | BRYANT, VIRGINIA V | SMITH, RONALD A/JUDITH H | 0 | 0 | $120,000.00 | 67644 | 0 |
|   | |
Payout Agreement
| No payout information available.. |