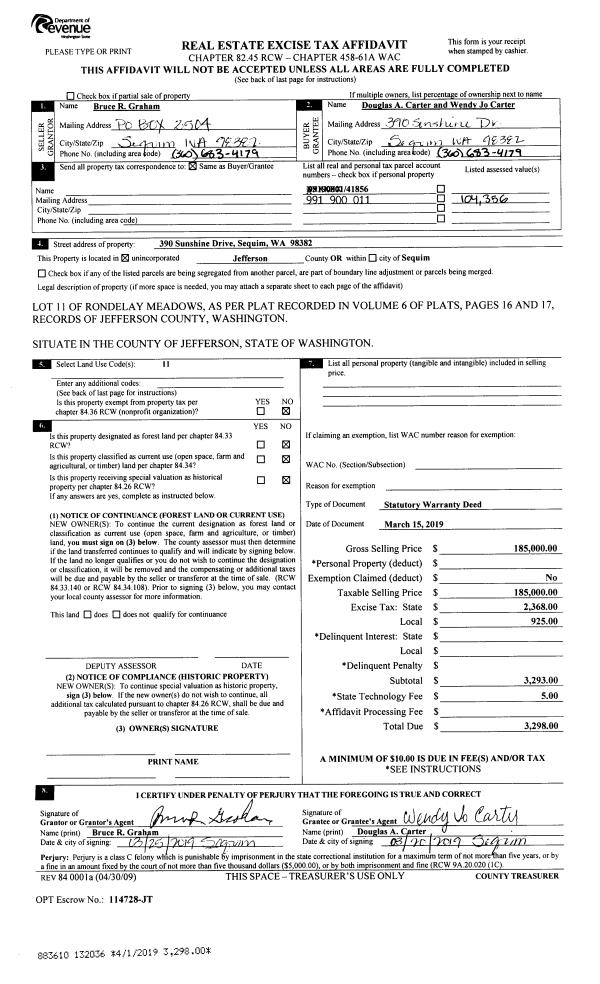
Property
Account |
| Property ID: | 43252 | Abbreviated Legal Description: | TAMARACK VILLAGE LOT 15 |
| Parcel # / Geo ID: | 998300015 | Agent Code: | |
| Type: | Real | | |
| Tax Area: | 0211 - 1-49F1E1H2L1 | Land Use Code | 11 |
| Open Space: | N | DFL | N |
| Historic Property: | N | Remodel Property: | N |
| Multi-Family Redevelopment: | N | | |
| Township: | 29N | Section: | 2 |
| Range: | 1W |
Location |
| Address: | 22 EVERGREEN LN PORT HADLOCK, WA 98339 | Mapsco: | 132/015 |
| Neighborhood: | BISHOP ACRES; TAMARACK VILLAGE; WOODLAND ACRES | Map ID: | |
| Neighborhood CD: | 4214 |
Owner |
| Name: | REINA M GARCIA | Owner ID: | 101441 |
| Mailing Address: | JUDITH A GARCIA 22 EVERGREEN LN PORT HADLOCK, WA 98339-9591 | % Ownership: | 100.0000000000% |
| | | Exemptions: | |
Pay Tax Due
Select the appropriate checkbox next to the year to be paid. Multiple years may be selected.
*Convenience Fee not included
Taxes and Assessment Details
Property Tax Information as of
03/10/2026
Click on "Statement Details" to expand or collapse a tax statement.
* Please enter a valid date ** Please enter a valid date *
Statement Details |
| 2026 | 32402 | STATE - STATE LEVY (SCHOOL) | $363.73 | $363.71 | $0.00 | $0.00 | $0.00 | $727.44 |
| 2026 | 32402 | COUNTY - COUNTY LEVIES (CE, DD, VET, MH) | $145.43 | $145.40 | $0.00 | $0.00 | $0.00 | $290.83 |
| 2026 | 32402 | CONSERVE - CONSERVATION FUTURES | $4.36 | $4.36 | $0.00 | $0.00 | $0.00 | $8.72 |
| 2026 | 32402 | COROADS - COUNTY ROADS (ROADS, DIV TO CE) | $117.31 | $117.31 | $0.00 | $0.00 | $0.00 | $234.62 |
| 2026 | 32402 | PORTPT - PORT DISTRICT | $58.74 | $58.72 | $0.00 | $0.00 | $0.00 | $117.46 |
| 2026 | 32402 | PUD1 - PUD #1 | $9.46 | $9.46 | $0.00 | $0.00 | $0.00 | $18.92 |
| 2026 | 32402 | LIB1 - LIBRARY DIST #1 | $45.39 | $45.38 | $0.00 | $0.00 | $0.00 | $90.77 |
| 2026 | 32402 | HD2 - HOSP DIST #2 | $8.48 | $8.48 | $0.00 | $0.00 | $0.00 | $16.96 |
| 2026 | 32402 | SD49 - SCHOOL DIST #49 | $200.22 | $200.21 | $0.00 | $0.00 | $0.00 | $400.43 |
| 2026 | 32402 | FD1 - FIRE DISTRICT #1 | $192.57 | $192.56 | $0.00 | $0.00 | $0.00 | $385.13 |
| 2026 | 32402 | EMS1 - FIRE DIST #1 EMS | $74.04 | $74.04 | $0.00 | $0.00 | $0.00 | $148.08 |
| 2026 | 32402 | JCCD - JC Conservation District | $2.55 | $2.55 | $0.00 | $0.00 | $0.00 | $5.10 |
| 2026 | 32402 | NWA - Noxious Weed Assessment | $2.98 | $2.97 | $0.00 | $0.00 | $0.00 | $5.95 |
| 2026 | 32402 | OSS - On Site Septic | $23.10 | $23.10 | $0.00 | $0.00 | $0.00 | $46.20 |
| 2026 | 32402 | WAT - Clean Water District | $13.00 | $13.00 | $0.00 | $0.00 | $0.00 | $26.00 |
| 2026 | 32402 | TOTAL: | $1261.36 | $1261.25 | $0.00 | $0.00 | $0.00 | $2522.61 |
|
| 2026 | 32402 | $1261.36 | $1261.25 | $0.00 | $0.00 | $0.00 | $2522.61 |
Statement Details |
| 2025 | 32477 | STATE - STATE LEVY (SCHOOL) | $362.64 | $362.63 | $0.00 | $0.00 | $725.27 | $0.00 |
| 2025 | 32477 | COUNTY - COUNTY LEVIES (CE, DD, VET, MH) | $142.61 | $142.58 | $0.00 | $0.00 | $285.19 | $0.00 |
| 2025 | 32477 | CONSERVE - CONSERVATION FUTURES | $4.28 | $4.27 | $0.00 | $0.00 | $8.55 | $0.00 |
| 2025 | 32477 | COROADS - COUNTY ROADS (ROADS, DIV TO CE) | $114.25 | $114.24 | $0.00 | $0.00 | $228.49 | $0.00 |
| 2025 | 32477 | PORTPT - PORT DISTRICT | $58.19 | $58.19 | $0.00 | $0.00 | $116.38 | $0.00 |
| 2025 | 32477 | PUD1 - PUD #1 | $9.33 | $9.33 | $0.00 | $0.00 | $18.66 | $0.00 |
| 2025 | 32477 | LIB1 - LIBRARY DIST #1 | $44.20 | $44.20 | $0.00 | $0.00 | $88.40 | $0.00 |
| 2025 | 32477 | HD2 - HOSP DIST #2 | $8.32 | $8.32 | $0.00 | $0.00 | $16.64 | $0.00 |
| 2025 | 32477 | SD49 - SCHOOL DIST #49 | $194.35 | $194.34 | $0.00 | $0.00 | $388.69 | $0.00 |
| 2025 | 32477 | FD1 - FIRE DISTRICT #1 | $188.18 | $188.18 | $0.00 | $0.00 | $376.36 | $0.00 |
| 2025 | 32477 | EMS1 - FIRE DIST #1 EMS | $72.38 | $72.38 | $0.00 | $0.00 | $144.76 | $0.00 |
| 2025 | 32477 | JCCD - JC Conservation District | $2.55 | $2.55 | $0.00 | $0.00 | $5.10 | $0.00 |
| 2025 | 32477 | NWA - Noxious Weed Assessment | $2.15 | $2.15 | $0.00 | $0.00 | $4.30 | $0.00 |
| 2025 | 32477 | OSS - On Site Septic | $21.50 | $21.50 | $0.00 | $0.00 | $43.00 | $0.00 |
| 2025 | 32477 | WAT - Clean Water District | $13.00 | $13.00 | $0.00 | $0.00 | $26.00 | $0.00 |
| 2025 | 32477 | TOTAL: | $1237.93 | $1237.86 | $0.00 | $0.00 | $2475.79 | $0.00 |
|
| 2025 | 32477 | $1237.93 | $1237.86 | $0.00 | $0.00 | $2475.79 | $0.00 |
Statement Details |
| 2024 | 32536 | STATE - STATE LEVY (SCHOOL) | $327.94 | $327.92 | $0.00 | $0.00 | $655.86 | $0.00 |
| 2024 | 32536 | COUNTY - COUNTY LEVIES (CE, DD, VET, MH) | $140.32 | $140.31 | $0.00 | $0.00 | $280.63 | $0.00 |
| 2024 | 32536 | CONSERVE - CONSERVATION FUTURES | $4.21 | $4.21 | $0.00 | $0.00 | $8.42 | $0.00 |
| 2024 | 32536 | COROADS - COUNTY ROADS (ROADS, DIV TO CE) | $112.92 | $112.91 | $0.00 | $0.00 | $225.83 | $0.00 |
| 2024 | 32536 | PORTPT - PORT DISTRICT | $57.97 | $57.95 | $0.00 | $0.00 | $115.92 | $0.00 |
| 2024 | 32536 | PUD1 - PUD #1 | $9.22 | $9.21 | $0.00 | $0.00 | $18.43 | $0.00 |
| 2024 | 32536 | LIB1 - LIBRARY DIST #1 | $43.69 | $43.68 | $0.00 | $0.00 | $87.37 | $0.00 |
| 2024 | 32536 | HD2 - HOSP DIST #2 | $8.19 | $8.19 | $0.00 | $0.00 | $16.38 | $0.00 |
| 2024 | 32536 | SD49 - SCHOOL DIST #49 | $146.44 | $146.43 | $0.00 | $0.00 | $292.87 | $0.00 |
| 2024 | 32536 | FD1 - FIRE DISTRICT #1 | $185.54 | $185.54 | $0.00 | $0.00 | $371.08 | $0.00 |
| 2024 | 32536 | EMS1 - FIRE DIST #1 EMS | $70.87 | $70.87 | $0.00 | $0.00 | $141.74 | $0.00 |
| 2024 | 32536 | JCCD - JC Conservation District | $2.55 | $2.55 | $0.00 | $0.00 | $5.10 | $0.00 |
| 2024 | 32536 | NWA - Noxious Weed Assessment | $2.15 | $2.15 | $0.00 | $0.00 | $4.30 | $0.00 |
| 2024 | 32536 | OSS - On Site Septic | $21.00 | $21.00 | $0.00 | $0.00 | $42.00 | $0.00 |
| 2024 | 32536 | WAT - Clean Water District | $12.50 | $12.50 | $0.00 | $0.00 | $25.00 | $0.00 |
| 2024 | 32536 | TOTAL: | $1145.51 | $1145.42 | $0.00 | $0.00 | $2290.93 | $0.00 |
|
| 2024 | 32536 | $1145.51 | $1145.42 | $0.00 | $0.00 | $2290.93 | $0.00 |
Statement Details |
| 2023 | 32578 | STATE - STATE LEVY (SCHOOL) | $295.73 | $295.72 | $0.00 | $0.00 | $591.45 | $0.00 |
| 2023 | 32578 | COUNTY - COUNTY LEVIES (CE, DD, VET, MH) | $129.06 | $129.04 | $0.00 | $0.00 | $258.10 | $0.00 |
| 2023 | 32578 | CONSERVE - CONSERVATION FUTURES | $3.87 | $3.87 | $0.00 | $0.00 | $7.74 | $0.00 |
| 2023 | 32578 | COROADS - COUNTY ROADS (ROADS, DIV TO CE) | $104.41 | $104.41 | $0.00 | $0.00 | $208.82 | $0.00 |
| 2023 | 32578 | PORTPT - PORT DISTRICT | $54.37 | $54.35 | $0.00 | $0.00 | $108.72 | $0.00 |
| 2023 | 32578 | PUD1 - PUD #1 | $8.56 | $8.55 | $0.00 | $0.00 | $17.11 | $0.00 |
| 2023 | 32578 | LIB1 - LIBRARY DIST #1 | $40.40 | $40.39 | $0.00 | $0.00 | $80.79 | $0.00 |
| 2023 | 32578 | HD2 - HOSP DIST #2 | $7.54 | $7.52 | $0.00 | $0.00 | $15.06 | $0.00 |
| 2023 | 32578 | SD49 - SCHOOL DIST #49 | $138.24 | $138.23 | $0.00 | $0.00 | $276.47 | $0.00 |
| 2023 | 32578 | FD1 - FIRE DISTRICT #1 | $106.31 | $106.31 | $0.00 | $0.00 | $212.62 | $0.00 |
| 2023 | 32578 | EMS1 - FIRE DIST #1 EMS | $45.22 | $45.22 | $0.00 | $0.00 | $90.44 | $0.00 |
| 2023 | 32578 | JCCD - JC Conservation District | $2.55 | $2.55 | $0.00 | $0.00 | $5.10 | $0.00 |
| 2023 | 32578 | NWA - Noxious Weed Assessment | $2.15 | $2.15 | $0.00 | $0.00 | $4.30 | $0.00 |
| 2023 | 32578 | OSS - On Site Septic | $20.50 | $20.50 | $0.00 | $0.00 | $41.00 | $0.00 |
| 2023 | 32578 | WAT - Clean Water District | $12.00 | $12.00 | $0.00 | $0.00 | $24.00 | $0.00 |
| 2023 | 32578 | TOTAL: | $970.91 | $970.81 | $0.00 | $0.00 | $1941.72 | $0.00 |
|
| 2023 | 32578 | $970.91 | $970.81 | $0.00 | $0.00 | $1941.72 | $0.00 |
Values
| (+) Improvement Homesite Value: | + | $0 | |
| (+) Improvement Non-Homesite Value: | + | $211,905 | |
| (+) Land Homesite Value: | + | $0 | |
| (+) Land Non-Homesite Value: | + | $104,500 | |
| (+) Curr Use (HS): | + | $0 | $0 |
| (+) Curr Use (NHS): | + | $0 | $0 |
| | | -------------------------- | |
| (=) Market Value: | = | $316,405 | |
| (–) Productivity Loss: | – | $0 | |
| | | -------------------------- | |
| (=) Subtotal: | = | $316,405 | |
| (+) Senior Appraised Value: | + | $0 | |
| (+) Non-Senior Appraised Value: | + | $316,405 | |
| | | -------------------------- | |
| (=) Total Appraised Value: | = | $316,405 | |
| (–) Senior Exemption Loss: | – | $0 | |
| (–) Exemption Loss: | – | $0 | |
| | | -------------------------- | |
| (=) Taxable Value: | = | $316,405 | |
Taxing Jurisdiction
| Owner: | REINA M GARCIA | | |
| % Ownership: | 100.0000000000% | | |
| Total Value: | $316,405 | | |
| Tax Area: | 0211 - 1-49F1E1H2L1 |
| CE | COUNTY CURRENT EXPENSE | 0.9034619479 | $316,405 | $316,405 | $285.86 | | |
| CNTYDD | DEVELOPMENTAL DISABILITIES | 0.0052121823 | $316,405 | $316,405 | $1.65 | | |
| CNTYVET | VETERANS RELIEF | 0.0052777810 | $316,405 | $316,405 | $1.67 | | |
| MENTAL | MENTAL HEALTH | 0.0052121823 | $316,405 | $316,405 | $1.65 | | |
| ROADS | COUNTY ROADS | 0.7415066410 | $316,405 | $316,405 | $234.62 | | |
| ROADSCU | COUNTY ROADS TO CUR EXP | 0.0000000000 | $316,405 | $316,405 | $0.00 | | |
| HOSP2CASH | HOSP DIST #2 GENERAL | 0.0536075306 | $316,405 | $316,405 | $16.96 | | |
| SCH49CP | SCHOOL DIST #49 CAP PROJ | 0.6279093905 | $316,405 | $316,405 | $198.67 | | |
| SCH49MO | SCHOOL DIST #49 EP & O | 0.6376483602 | $316,405 | $316,405 | $201.76 | | |
| CONSERVE | CONSERVATION FUTURES | 0.0275621078 | $316,405 | $316,405 | $8.72 | | |
| EMS1 | FIRE DIST #1 EMS | 0.4679948282 | $316,405 | $316,405 | $148.08 | | |
| FD1 | FIRE DIST #1 GENERAL | 1.2171942929 | $316,405 | $316,405 | $385.13 | | |
| LIB1 | LIBRARY DIST #1 GENERAL | 0.2868827388 | $316,405 | $316,405 | $90.77 | | |
| PORTPT | PORT OF PT GENERAL | 0.1134941229 | $316,405 | $316,405 | $35.91 | | |
| PORTPTIDD | PORT OF PT IDD 2019 | 0.2577346692 | $316,405 | $316,405 | $81.55 | | |
| PUD1 | PUD #1 GENERAL | 0.0597888892 | $316,405 | $316,405 | $18.92 | | |
| STATE | STATE SCHOOL PART 1 | 1.4940692947 | $316,405 | $316,405 | $472.73 | | |
| STATE2 | STATE SCHOOL PART 2 | 0.8050170049 | $316,405 | $316,405 | $254.71 | | |
| | Total Tax Rate: | 7.7095739644 | | | | | |
| | | | | Taxes w/Current Exemptions: | $2,439.36 | | |
| | | | | Taxes w/o Exemptions: | $2,439.36 | | |
Improvement / Building
| Improvement #1: | Manufactured Home | State Code: | 11 | 1456.0 sqft | Value: | $211,905 |
| Bathrooms (#): | 2 (FULL) | Bedrooms (#): | 3 | | Exterior Wall: | PL/T1 | Floor Construction: | FRAME | | Foundation: | CONBL | Heating/Cooling: | HPUMP | | Inside Verify: | YES-FIX | Roof Cover: | COMP |
|
| | Type | Description | Class CD | Sub Class CD | Year Built | Area |
| | MA | Main Area | 4 | MFH | 1991 | 1456.0 |
| | CARPTF | Carport W/Floor | 4 | * | 1991 | 400.0 |
| | GARAG | Garage (Table Not Dep) | 4 | * | 1991 | 280.0 |
| | MCPOR | MH Concrete Porch | 4 | * | 1991 | 108.0 |
Sketch
| No sketches available for this property. |
Property Image
Land
| 1 | 4214-1285S | | 0.0000 | 0.00 | 0.00 | 0.00 | 1.00 | $104,500 | $0 |
Roll Value History
| 2026 | N/A | N/A | N/A | N/A | N/A |
| 2025 | $211,905 | $104,500 | $0 | $316,405 | $316,405 |
| 2024 | $202,692 | $99,750 | $0 | $302,442 | $302,442 |
| 2023 | $193,478 | $90,000 | $0 | $283,478 | $283,478 |
| 2022 | $166,238 | $85,000 | $0 | $251,238 | $251,238 |
Deed and Sales History
| 1 | 07/25/2019 | QCD | Quit Claim Deed | | | | | | 132846 | |
| 2 | 07/25/2019 | SWD | Statutory Warranty Deed | THE FORD FAMILY TRUST | REINA M GARCIA | | | $264,000.00 | 132845 | |
| 3 | 02/02/2018 | SWD | Statutory Warranty Deed | BARRY C FORD | THE FORD FAMILY TRUST | | | | 129545 | |
| 4 | 05/16/2000 | MH | Mobile Home | RASMUSSEN, ERNST | RASMUSSEN, ERNST/VALBORG V | 0 | 0 | $0.00 | 89584 | 0 |
| 5 | 05/15/2000 | SWD | Statutory Warranty Deed | RASMUSSEN, ERNST W/VALBOR | FORD, BARRY C | 0 | 0 | $107,500.00 | 89692 | 0 |
Payout Agreement
| No payout information available.. |