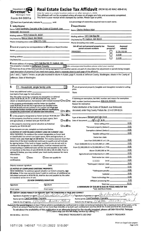
Property
Account |
| Property ID: | 43289 | Abbreviated Legal Description: | TAYLOR'S TERRACE 1 & 2 |
| Parcel # / Geo ID: | 998400001 | Agent Code: | |
| Type: | Real | | |
| Tax Area: | 0211 - 1-49F1E1H2L1 | Land Use Code | 11 |
| Open Space: | N | DFL | N |
| Historic Property: | N | Remodel Property: | N |
| Multi-Family Redevelopment: | N | | |
| Township: | 29N | Section: | 7 |
| Range: | 1E |
Location |
| Address: | 1471 OAK BAY RD PORT HADLOCK, WA 98339 | Mapsco: | 133/001 |
| Neighborhood: | HILLER'S WATERFRONT TRACTS & TAYLOR'S TERRACE | Map ID: | |
| Neighborhood CD: | 4645 |
Owner |
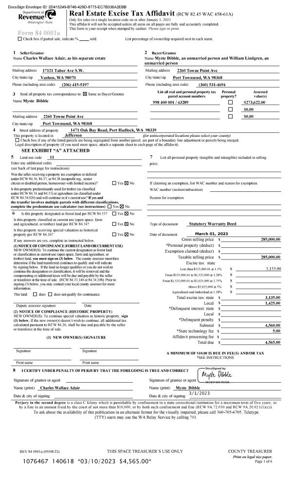
| Name: | MYSTE DIBBLE | Owner ID: | 108471 |
| Mailing Address: | WILLIAM LINDREN 2260 TOWNE POINT AVE PORT TOWNSEND, WA 98368-7313 | % Ownership: | 100.0000000000% |
| | | Exemptions: | |
Pay Tax Due
Select the appropriate checkbox next to the year to be paid. Multiple years may be selected.
*Convenience Fee not included
Taxes and Assessment Details
Property Tax Information as of
03/10/2026
Click on "Statement Details" to expand or collapse a tax statement.
* Please enter a valid date ** Please enter a valid date *
Statement Details |
| 2026 | 32439 | STATE - STATE LEVY (SCHOOL) | $323.84 | $323.84 | $0.00 | $0.00 | $0.00 | $647.68 |
| 2026 | 32439 | COUNTY - COUNTY LEVIES (CE, DD, VET, MH) | $129.49 | $129.46 | $0.00 | $0.00 | $0.00 | $258.95 |
| 2026 | 32439 | CONSERVE - CONSERVATION FUTURES | $3.88 | $3.88 | $0.00 | $0.00 | $0.00 | $7.76 |
| 2026 | 32439 | COROADS - COUNTY ROADS (ROADS, DIV TO CE) | $104.45 | $104.44 | $0.00 | $0.00 | $0.00 | $208.89 |
| 2026 | 32439 | PORTPT - PORT DISTRICT | $52.30 | $52.28 | $0.00 | $0.00 | $0.00 | $104.58 |
| 2026 | 32439 | PUD1 - PUD #1 | $8.42 | $8.42 | $0.00 | $0.00 | $0.00 | $16.84 |
| 2026 | 32439 | LIB1 - LIBRARY DIST #1 | $40.41 | $40.41 | $0.00 | $0.00 | $0.00 | $80.82 |
| 2026 | 32439 | HD2 - HOSP DIST #2 | $7.55 | $7.55 | $0.00 | $0.00 | $0.00 | $15.10 |
| 2026 | 32439 | SD49 - SCHOOL DIST #49 | $178.27 | $178.25 | $0.00 | $0.00 | $0.00 | $356.52 |
| 2026 | 32439 | FD1 - FIRE DISTRICT #1 | $171.45 | $171.45 | $0.00 | $0.00 | $0.00 | $342.90 |
| 2026 | 32439 | EMS1 - FIRE DIST #1 EMS | $65.92 | $65.92 | $0.00 | $0.00 | $0.00 | $131.84 |
| 2026 | 32439 | JCCD - JC Conservation District | $2.55 | $2.55 | $0.00 | $0.00 | $0.00 | $5.10 |
| 2026 | 32439 | NWA - Noxious Weed Assessment | $2.98 | $2.97 | $0.00 | $0.00 | $0.00 | $5.95 |
| 2026 | 32439 | OSS - On Site Septic | $23.10 | $23.10 | $0.00 | $0.00 | $0.00 | $46.20 |
| 2026 | 32439 | WAT - Clean Water District | $13.00 | $13.00 | $0.00 | $0.00 | $0.00 | $26.00 |
| 2026 | 32439 | TOTAL: | $1127.61 | $1127.52 | $0.00 | $0.00 | $0.00 | $2255.13 |
|
| 2026 | 32439 | $1127.61 | $1127.52 | $0.00 | $0.00 | $0.00 | $2255.13 |
Statement Details |
| 2025 | 32514 | STATE - STATE LEVY (SCHOOL) | $337.78 | $337.77 | $0.00 | $0.00 | $675.55 | $0.00 |
| 2025 | 32514 | COUNTY - COUNTY LEVIES (CE, DD, VET, MH) | $132.83 | $132.82 | $0.00 | $0.00 | $265.65 | $0.00 |
| 2025 | 32514 | CONSERVE - CONSERVATION FUTURES | $3.99 | $3.98 | $0.00 | $0.00 | $7.97 | $0.00 |
| 2025 | 32514 | COROADS - COUNTY ROADS (ROADS, DIV TO CE) | $106.42 | $106.41 | $0.00 | $0.00 | $212.83 | $0.00 |
| 2025 | 32514 | PORTPT - PORT DISTRICT | $54.20 | $54.20 | $0.00 | $0.00 | $108.40 | $0.00 |
| 2025 | 32514 | PUD1 - PUD #1 | $8.69 | $8.69 | $0.00 | $0.00 | $17.38 | $0.00 |
| 2025 | 32514 | LIB1 - LIBRARY DIST #1 | $41.17 | $41.17 | $0.00 | $0.00 | $82.34 | $0.00 |
| 2025 | 32514 | HD2 - HOSP DIST #2 | $7.75 | $7.75 | $0.00 | $0.00 | $15.50 | $0.00 |
| 2025 | 32514 | SD49 - SCHOOL DIST #49 | $181.04 | $181.02 | $0.00 | $0.00 | $362.06 | $0.00 |
| 2025 | 32514 | FD1 - FIRE DISTRICT #1 | $175.28 | $175.28 | $0.00 | $0.00 | $350.56 | $0.00 |
| 2025 | 32514 | EMS1 - FIRE DIST #1 EMS | $67.42 | $67.42 | $0.00 | $0.00 | $134.84 | $0.00 |
| 2025 | 32514 | JCCD - JC Conservation District | $2.55 | $2.55 | $0.00 | $0.00 | $5.10 | $0.00 |
| 2025 | 32514 | NWA - Noxious Weed Assessment | $2.15 | $2.15 | $0.00 | $0.00 | $4.30 | $0.00 |
| 2025 | 32514 | OSS - On Site Septic | $21.50 | $21.50 | $0.00 | $0.00 | $43.00 | $0.00 |
| 2025 | 32514 | WAT - Clean Water District | $13.00 | $13.00 | $0.00 | $0.00 | $26.00 | $0.00 |
| 2025 | 32514 | TOTAL: | $1155.77 | $1155.71 | $0.00 | $0.00 | $2311.48 | $0.00 |
|
| 2025 | 32514 | $1155.77 | $1155.71 | $0.00 | $0.00 | $2311.48 | $0.00 |
Statement Details |
| 2024 | 32573 | STATE - STATE LEVY (SCHOOL) | $330.67 | $330.66 | $0.00 | $0.00 | $661.33 | $0.00 |
| 2024 | 32573 | COUNTY - COUNTY LEVIES (CE, DD, VET, MH) | $141.50 | $141.49 | $0.00 | $0.00 | $282.99 | $0.00 |
| 2024 | 32573 | CONSERVE - CONSERVATION FUTURES | $4.25 | $4.24 | $0.00 | $0.00 | $8.49 | $0.00 |
| 2024 | 32573 | COROADS - COUNTY ROADS (ROADS, DIV TO CE) | $113.86 | $113.85 | $0.00 | $0.00 | $227.71 | $0.00 |
| 2024 | 32573 | PORTPT - PORT DISTRICT | $58.44 | $58.44 | $0.00 | $0.00 | $116.88 | $0.00 |
| 2024 | 32573 | PUD1 - PUD #1 | $9.30 | $9.29 | $0.00 | $0.00 | $18.59 | $0.00 |
| 2024 | 32573 | LIB1 - LIBRARY DIST #1 | $44.05 | $44.05 | $0.00 | $0.00 | $88.10 | $0.00 |
| 2024 | 32573 | HD2 - HOSP DIST #2 | $8.26 | $8.25 | $0.00 | $0.00 | $16.51 | $0.00 |
| 2024 | 32573 | SD49 - SCHOOL DIST #49 | $147.66 | $147.65 | $0.00 | $0.00 | $295.31 | $0.00 |
| 2024 | 32573 | FD1 - FIRE DISTRICT #1 | $187.09 | $187.09 | $0.00 | $0.00 | $374.18 | $0.00 |
| 2024 | 32573 | EMS1 - FIRE DIST #1 EMS | $71.46 | $71.46 | $0.00 | $0.00 | $142.92 | $0.00 |
| 2024 | 32573 | JCCD - JC Conservation District | $2.55 | $2.55 | $0.00 | $0.00 | $5.10 | $0.00 |
| 2024 | 32573 | NWA - Noxious Weed Assessment | $2.15 | $2.15 | $0.00 | $0.00 | $4.30 | $0.00 |
| 2024 | 32573 | OSS - On Site Septic | $21.00 | $21.00 | $0.00 | $0.00 | $42.00 | $0.00 |
| 2024 | 32573 | WAT - Clean Water District | $12.50 | $12.50 | $0.00 | $0.00 | $25.00 | $0.00 |
| 2024 | 32573 | TOTAL: | $1154.74 | $1154.67 | $0.00 | $0.00 | $2309.41 | $0.00 |
|
| 2024 | 32573 | $1154.74 | $1154.67 | $0.00 | $0.00 | $2309.41 | $0.00 |
Statement Details |
| 2023 | 32615 | STATE - STATE LEVY (SCHOOL) | $322.08 | $322.07 | $0.00 | $0.00 | $644.15 | $0.00 |
| 2023 | 32615 | COUNTY - COUNTY LEVIES (CE, DD, VET, MH) | $140.55 | $140.55 | $0.00 | $0.00 | $281.10 | $0.00 |
| 2023 | 32615 | CONSERVE - CONSERVATION FUTURES | $4.22 | $4.21 | $0.00 | $0.00 | $8.43 | $0.00 |
| 2023 | 32615 | COROADS - COUNTY ROADS (ROADS, DIV TO CE) | $113.72 | $113.70 | $0.00 | $0.00 | $227.42 | $0.00 |
| 2023 | 32615 | PORTPT - PORT DISTRICT | $59.21 | $59.20 | $0.00 | $0.00 | $118.41 | $0.00 |
| 2023 | 32615 | PUD1 - PUD #1 | $9.32 | $9.31 | $0.00 | $0.00 | $18.63 | $0.00 |
| 2023 | 32615 | LIB1 - LIBRARY DIST #1 | $44.00 | $43.99 | $0.00 | $0.00 | $87.99 | $0.00 |
| 2023 | 32615 | HD2 - HOSP DIST #2 | $8.21 | $8.20 | $0.00 | $0.00 | $16.41 | $0.00 |
| 2023 | 32615 | SD49 - SCHOOL DIST #49 | $150.55 | $150.55 | $0.00 | $0.00 | $301.10 | $0.00 |
| 2023 | 32615 | FD1 - FIRE DISTRICT #1 | $115.78 | $115.78 | $0.00 | $0.00 | $231.56 | $0.00 |
| 2023 | 32615 | EMS1 - FIRE DIST #1 EMS | $49.25 | $49.25 | $0.00 | $0.00 | $98.50 | $0.00 |
| 2023 | 32615 | JCCD - JC Conservation District | $2.55 | $2.55 | $0.00 | $0.00 | $5.10 | $0.00 |
| 2023 | 32615 | NWA - Noxious Weed Assessment | $2.15 | $2.15 | $0.00 | $0.00 | $4.30 | $0.00 |
| 2023 | 32615 | OSS - On Site Septic | $20.50 | $20.50 | $0.00 | $0.00 | $41.00 | $0.00 |
| 2023 | 32615 | WAT - Clean Water District | $12.00 | $12.00 | $0.00 | $0.00 | $24.00 | $0.00 |
| 2023 | 32615 | TOTAL: | $1054.09 | $1054.01 | $0.00 | $0.00 | $2108.10 | $0.00 |
|
| 2023 | 32615 | $1054.09 | $1054.01 | $0.00 | $0.00 | $2108.10 | $0.00 |
Values
| (+) Improvement Homesite Value: | + | $0 | |
| (+) Improvement Non-Homesite Value: | + | $171,463 | |
| (+) Land Homesite Value: | + | $0 | |
| (+) Land Non-Homesite Value: | + | $110,250 | |
| (+) Curr Use (HS): | + | $0 | $0 |
| (+) Curr Use (NHS): | + | $0 | $0 |
| | | -------------------------- | |
| (=) Market Value: | = | $281,713 | |
| (–) Productivity Loss: | – | $0 | |
| | | -------------------------- | |
| (=) Subtotal: | = | $281,713 | |
| (+) Senior Appraised Value: | + | $0 | |
| (+) Non-Senior Appraised Value: | + | $281,713 | |
| | | -------------------------- | |
| (=) Total Appraised Value: | = | $281,713 | |
| (–) Senior Exemption Loss: | – | $0 | |
| (–) Exemption Loss: | – | $0 | |
| | | -------------------------- | |
| (=) Taxable Value: | = | $281,713 | |
Taxing Jurisdiction
| Owner: | MYSTE DIBBLE | | |
| % Ownership: | 100.0000000000% | | |
| Total Value: | $281,713 | | |
| Tax Area: | 0211 - 1-49F1E1H2L1 |
| CE | COUNTY CURRENT EXPENSE | 0.9034619479 | $281,713 | $281,713 | $254.52 | | |
| CNTYDD | DEVELOPMENTAL DISABILITIES | 0.0052121823 | $281,713 | $281,713 | $1.47 | | |
| CNTYVET | VETERANS RELIEF | 0.0052777810 | $281,713 | $281,713 | $1.49 | | |
| MENTAL | MENTAL HEALTH | 0.0052121823 | $281,713 | $281,713 | $1.47 | | |
| ROADS | COUNTY ROADS | 0.7415066410 | $281,713 | $281,713 | $208.89 | | |
| ROADSCU | COUNTY ROADS TO CUR EXP | 0.0000000000 | $281,713 | $281,713 | $0.00 | | |
| HOSP2CASH | HOSP DIST #2 GENERAL | 0.0536075306 | $281,713 | $281,713 | $15.10 | | |
| SCH49CP | SCHOOL DIST #49 CAP PROJ | 0.6279093905 | $281,713 | $281,713 | $176.89 | | |
| SCH49MO | SCHOOL DIST #49 EP & O | 0.6376483602 | $281,713 | $281,713 | $179.63 | | |
| CONSERVE | CONSERVATION FUTURES | 0.0275621078 | $281,713 | $281,713 | $7.76 | | |
| EMS1 | FIRE DIST #1 EMS | 0.4679948282 | $281,713 | $281,713 | $131.84 | | |
| FD1 | FIRE DIST #1 GENERAL | 1.2171942929 | $281,713 | $281,713 | $342.90 | | |
| LIB1 | LIBRARY DIST #1 GENERAL | 0.2868827388 | $281,713 | $281,713 | $80.82 | | |
| PORTPT | PORT OF PT GENERAL | 0.1134941229 | $281,713 | $281,713 | $31.97 | | |
| PORTPTIDD | PORT OF PT IDD 2019 | 0.2577346692 | $281,713 | $281,713 | $72.61 | | |
| PUD1 | PUD #1 GENERAL | 0.0597888892 | $281,713 | $281,713 | $16.84 | | |
| STATE | STATE SCHOOL PART 1 | 1.4940692947 | $281,713 | $281,713 | $420.90 | | |
| STATE2 | STATE SCHOOL PART 2 | 0.8050170049 | $281,713 | $281,713 | $226.78 | | |
| | Total Tax Rate: | 7.7095739644 | | | | | |
| | | | | Taxes w/Current Exemptions: | $2,171.88 | | |
| | | | | Taxes w/o Exemptions: | $2,171.88 | | |
Improvement / Building
| Improvement #1: | Residential Bldg | State Code: | 11 | 1830.0 sqft | Value: | $171,463 |
| Bathrooms (#): | 2 (FULL) | Bedrooms (#): | 3 | | Exterior Wall: | SI/ST | Fireplace: | WD ST-GOOD | | Floor Construction: | FRAME | Foundation: | CONBL | | Heating/Cooling: | ELBB | Inside Verify: | YES-FIX | | Roof Cover: | SHAKE |   |   |
|
| | Type | Description | Class CD | Sub Class CD | Year Built | Area |
| | MA | Main Area | 3 | 15SF | 1964 | 1188.0 |
| | MA2 | Second Floor Main Area | 3 | 15SF | 1964 | 642.0 |
| | HDECK | House Deck | 3 | 15SF | 1964 | 700.0 |
| | GBLTIN | Builtin Garage | 3 | 15SF | 1964 | 494.0 |
| | ASPHD | Asphalt Drive | 3 | 15SF | 1964 | 750.0 |
Sketch
| No sketches available for this property. |
Property Image
Land
| 1 | 4645-1165S | | 0.0000 | 0.00 | 0.00 | 0.00 | 1.00 | $110,250 | $0 |
Roll Value History
| 2026 | N/A | N/A | N/A | N/A | N/A |
| 2025 | $171,463 | $110,250 | $0 | $281,713 | $281,713 |
| 2024 | $171,463 | $110,250 | $0 | $281,713 | $281,713 |
| 2023 | $185,843 | $100,000 | $0 | $285,843 | $285,843 |
| 2022 | $178,622 | $95,000 | $0 | $273,622 | $273,622 |
Deed and Sales History
| 1 | 03/01/2023 | SWD | Statutory Warranty Deed | CHARLES W ADAIR | MYSTE DIBBLE | | | $285,000.00 | 140618 | |
| 2 | 11/15/2022 | BSD | Bargain and Sale Deed | ELIZABETH BEKKEVOLD | CHARLES W ADAIR | | | | 140167 | |
| 3 | 06/19/2007 | SWD | Statutory Warranty Deed | TAYLOR, REBECCA | BEKKEVOLD, ELIZABETH | | | $230,000.00 | 109465 | 0 |
| 4 | 05/08/2002 | QCD | Quit Claim Deed | RICHARD H FRIEDMAN | REBECCA L TAYLOR | 0 | 0 | $0.00 | 94628 | 0 |
| 5 | 01/04/2001 | QCD | Quit Claim Deed | TAYLOR, REBECCA L | FRIEDMAN, RICHARD H | 0 | 0 | $0.00 | 91377 | 0 |
| 6 | 10/27/2000 | SWD | Statutory Warranty Deed | THOMAS, GEORGE L/KATHERIN | FRIEDMAN, RICHARD H | 0 | 0 | $176,000.00 | 91376 | 0 |
| 7 | 10/25/1996 | QCD | Quit Claim Deed | THOMAS, GEORGE L | THOMAS, GEORGE L/KATHERINE B | 0 | 0 | $0.00 | 80664 | 0 |
Payout Agreement
| No payout information available.. |