Property
Account |
| Property ID: | 43307 | Abbreviated Legal Description: | TIMBERTON VILLAGE PHASE I LOT 4 SUBJ/EASE |
| Parcel # / Geo ID: | 998500004 | Agent Code: | |
| Type: | Real | | |
| Tax Area: | 0213 - 1-49F1E1H2L1 | Land Use Code | 11 |
| Open Space: | N | DFL | N |
| Historic Property: | N | Remodel Property: | N |
| Multi-Family Redevelopment: | N | | |
| Township: | 28N | Section: | 17 |
| Range: | 1E |
Location |
| Address: | 43 MCKENZIE LN PORT LUDLOW, WA 98365 | Mapsco: | 136/004 |
| Neighborhood: | S17T28R1E IN MPR; LUDLOW PT#2-4 & TIMBERTON VIL;RV PK;OSPREY | Map ID: | |
| Neighborhood CD: | 3340 |
Owner |
| Name: | PATRICIA L ZUKAS | Owner ID: | 97113 |
| Mailing Address: | 43 MCKENZIE LN PORT LUDLOW, WA 98365-9233 | % Ownership: | 100.0000000000% |
| | | Exemptions: | |
Pay Tax Due
Select the appropriate checkbox next to the year to be paid. Multiple years may be selected.
*Convenience Fee not included
Taxes and Assessment Details
Property Tax Information as of
03/11/2026
Click on "Statement Details" to expand or collapse a tax statement.
* Please enter a valid date ** Please enter a valid date *
Statement Details |
| 2026 | 32457 | STATE - STATE LEVY (SCHOOL) | $547.50 | $547.49 | $0.00 | $0.00 | $0.00 | $1094.99 |
| 2026 | 32457 | COUNTY - COUNTY LEVIES (CE, DD, VET, MH) | $218.89 | $218.87 | $0.00 | $0.00 | $0.00 | $437.76 |
| 2026 | 32457 | CONSERVE - CONSERVATION FUTURES | $6.57 | $6.56 | $0.00 | $0.00 | $0.00 | $13.13 |
| 2026 | 32457 | COROADS - COUNTY ROADS (ROADS, DIV TO CE) | $176.58 | $176.58 | $0.00 | $0.00 | $0.00 | $353.16 |
| 2026 | 32457 | PORTPT - PORT DISTRICT | $88.41 | $88.39 | $0.00 | $0.00 | $0.00 | $176.80 |
| 2026 | 32457 | PUD1 - PUD #1 | $14.24 | $14.24 | $0.00 | $0.00 | $0.00 | $28.48 |
| 2026 | 32457 | LIB1 - LIBRARY DIST #1 | $68.32 | $68.31 | $0.00 | $0.00 | $0.00 | $136.63 |
| 2026 | 32457 | HD2 - HOSP DIST #2 | $12.77 | $12.76 | $0.00 | $0.00 | $0.00 | $25.53 |
| 2026 | 32457 | SD49 - SCHOOL DIST #49 | $301.38 | $301.36 | $0.00 | $0.00 | $0.00 | $602.74 |
| 2026 | 32457 | FD1 - FIRE DISTRICT #1 | $289.86 | $289.85 | $0.00 | $0.00 | $0.00 | $579.71 |
| 2026 | 32457 | EMS1 - FIRE DIST #1 EMS | $111.45 | $111.44 | $0.00 | $0.00 | $0.00 | $222.89 |
| 2026 | 32457 | JCCD - JC Conservation District | $2.55 | $2.55 | $0.00 | $0.00 | $0.00 | $5.10 |
| 2026 | 32457 | NWA - Noxious Weed Assessment | $2.98 | $2.97 | $0.00 | $0.00 | $0.00 | $5.95 |
| 2026 | 32457 | TOTAL: | $1841.50 | $1841.37 | $0.00 | $0.00 | $0.00 | $3682.87 |
|
| 2026 | 32457 | $1841.50 | $1841.37 | $0.00 | $0.00 | $0.00 | $3682.87 |
Statement Details |
| 2025 | 32532 | STATE - STATE LEVY (SCHOOL) | $571.06 | $571.05 | $0.00 | $0.00 | $1142.11 | $0.00 |
| 2025 | 32532 | COUNTY - COUNTY LEVIES (CE, DD, VET, MH) | $224.57 | $224.55 | $0.00 | $0.00 | $449.12 | $0.00 |
| 2025 | 32532 | CONSERVE - CONSERVATION FUTURES | $6.74 | $6.73 | $0.00 | $0.00 | $13.47 | $0.00 |
| 2025 | 32532 | COROADS - COUNTY ROADS (ROADS, DIV TO CE) | $179.92 | $179.91 | $0.00 | $0.00 | $359.83 | $0.00 |
| 2025 | 32532 | PORTPT - PORT DISTRICT | $91.64 | $91.63 | $0.00 | $0.00 | $183.27 | $0.00 |
| 2025 | 32532 | PUD1 - PUD #1 | $14.70 | $14.69 | $0.00 | $0.00 | $29.39 | $0.00 |
| 2025 | 32532 | LIB1 - LIBRARY DIST #1 | $69.61 | $69.60 | $0.00 | $0.00 | $139.21 | $0.00 |
| 2025 | 32532 | HD2 - HOSP DIST #2 | $13.10 | $13.10 | $0.00 | $0.00 | $26.20 | $0.00 |
| 2025 | 32532 | SD49 - SCHOOL DIST #49 | $306.05 | $306.05 | $0.00 | $0.00 | $612.10 | $0.00 |
| 2025 | 32532 | FD1 - FIRE DISTRICT #1 | $296.34 | $296.33 | $0.00 | $0.00 | $592.67 | $0.00 |
| 2025 | 32532 | EMS1 - FIRE DIST #1 EMS | $113.98 | $113.98 | $0.00 | $0.00 | $227.96 | $0.00 |
| 2025 | 32532 | JCCD - JC Conservation District | $2.55 | $2.55 | $0.00 | $0.00 | $5.10 | $0.00 |
| 2025 | 32532 | NWA - Noxious Weed Assessment | $2.15 | $2.15 | $0.00 | $0.00 | $4.30 | $0.00 |
| 2025 | 32532 | TOTAL: | $1892.41 | $1892.32 | $0.00 | $0.00 | $3784.73 | $0.00 |
|
| 2025 | 32532 | $1892.41 | $1892.32 | $0.00 | $0.00 | $3784.73 | $0.00 |
Statement Details |
| 2024 | 32591 | STATE - STATE LEVY (SCHOOL) | $545.17 | $545.16 | $0.00 | $0.00 | $1090.33 | $0.00 |
| 2024 | 32591 | COUNTY - COUNTY LEVIES (CE, DD, VET, MH) | $233.30 | $233.26 | $0.00 | $0.00 | $466.56 | $0.00 |
| 2024 | 32591 | CONSERVE - CONSERVATION FUTURES | $7.00 | $6.99 | $0.00 | $0.00 | $13.99 | $0.00 |
| 2024 | 32591 | COROADS - COUNTY ROADS (ROADS, DIV TO CE) | $187.72 | $187.71 | $0.00 | $0.00 | $375.43 | $0.00 |
| 2024 | 32591 | PORTPT - PORT DISTRICT | $96.36 | $96.35 | $0.00 | $0.00 | $192.71 | $0.00 |
| 2024 | 32591 | PUD1 - PUD #1 | $15.33 | $15.32 | $0.00 | $0.00 | $30.65 | $0.00 |
| 2024 | 32591 | LIB1 - LIBRARY DIST #1 | $72.63 | $72.62 | $0.00 | $0.00 | $145.25 | $0.00 |
| 2024 | 32591 | HD2 - HOSP DIST #2 | $13.61 | $13.61 | $0.00 | $0.00 | $27.22 | $0.00 |
| 2024 | 32591 | SD49 - SCHOOL DIST #49 | $243.45 | $243.44 | $0.00 | $0.00 | $486.89 | $0.00 |
| 2024 | 32591 | FD1 - FIRE DISTRICT #1 | $308.46 | $308.45 | $0.00 | $0.00 | $616.91 | $0.00 |
| 2024 | 32591 | EMS1 - FIRE DIST #1 EMS | $117.82 | $117.82 | $0.00 | $0.00 | $235.64 | $0.00 |
| 2024 | 32591 | JCCD - JC Conservation District | $2.55 | $2.55 | $0.00 | $0.00 | $5.10 | $0.00 |
| 2024 | 32591 | NWA - Noxious Weed Assessment | $2.15 | $2.15 | $0.00 | $0.00 | $4.30 | $0.00 |
| 2024 | 32591 | TOTAL: | $1845.55 | $1845.43 | $0.00 | $0.00 | $3690.98 | $0.00 |
|
| 2024 | 32591 | $1845.55 | $1845.43 | $0.00 | $0.00 | $3690.98 | $0.00 |
Statement Details |
| 2023 | 32633 | STATE - STATE LEVY (SCHOOL) | $495.21 | $495.20 | $0.00 | $0.00 | $990.41 | $0.00 |
| 2023 | 32633 | COUNTY - COUNTY LEVIES (CE, DD, VET, MH) | $216.10 | $216.07 | $0.00 | $0.00 | $432.17 | $0.00 |
| 2023 | 32633 | CONSERVE - CONSERVATION FUTURES | $6.48 | $6.48 | $0.00 | $0.00 | $12.96 | $0.00 |
| 2023 | 32633 | COROADS - COUNTY ROADS (ROADS, DIV TO CE) | $174.84 | $174.83 | $0.00 | $0.00 | $349.67 | $0.00 |
| 2023 | 32633 | PORTPT - PORT DISTRICT | $91.03 | $91.03 | $0.00 | $0.00 | $182.06 | $0.00 |
| 2023 | 32633 | PUD1 - PUD #1 | $14.33 | $14.32 | $0.00 | $0.00 | $28.65 | $0.00 |
| 2023 | 32633 | LIB1 - LIBRARY DIST #1 | $67.64 | $67.64 | $0.00 | $0.00 | $135.28 | $0.00 |
| 2023 | 32633 | HD2 - HOSP DIST #2 | $12.61 | $12.61 | $0.00 | $0.00 | $25.22 | $0.00 |
| 2023 | 32633 | SD49 - SCHOOL DIST #49 | $231.49 | $231.48 | $0.00 | $0.00 | $462.97 | $0.00 |
| 2023 | 32633 | FD3 - FIRE DISTRICT #3 | $214.98 | $214.98 | $0.00 | $0.00 | $429.96 | $0.00 |
| 2023 | 32633 | EMS3 - FIRE DIST #3 EMS | $76.86 | $76.85 | $0.00 | $0.00 | $153.71 | $0.00 |
| 2023 | 32633 | JCCD - JC Conservation District | $2.55 | $2.55 | $0.00 | $0.00 | $5.10 | $0.00 |
| 2023 | 32633 | NWA - Noxious Weed Assessment | $2.15 | $2.15 | $0.00 | $0.00 | $4.30 | $0.00 |
| 2023 | 32633 | TOTAL: | $1606.27 | $1606.19 | $0.00 | $0.00 | $3212.46 | $0.00 |
|
| 2023 | 32633 | $1606.27 | $1606.19 | $0.00 | $0.00 | $3212.46 | $0.00 |
Values
| (+) Improvement Homesite Value: | + | $391,270 | |
| (+) Improvement Non-Homesite Value: | + | $0 | |
| (+) Land Homesite Value: | + | $85,000 | |
| (+) Land Non-Homesite Value: | + | $0 | |
| (+) Curr Use (HS): | + | $0 | $0 |
| (+) Curr Use (NHS): | + | $0 | $0 |
| | | -------------------------- | |
| (=) Market Value: | = | $476,270 | |
| (–) Productivity Loss: | – | $0 | |
| | | -------------------------- | |
| (=) Subtotal: | = | $476,270 | |
| (+) Senior Appraised Value: | + | $0 | |
| (+) Non-Senior Appraised Value: | + | $476,270 | |
| | | -------------------------- | |
| (=) Total Appraised Value: | = | $476,270 | |
| (–) Senior Exemption Loss: | – | $0 | |
| (–) Exemption Loss: | – | $0 | |
| | | -------------------------- | |
| (=) Taxable Value: | = | $476,270 | |
Taxing Jurisdiction
| Owner: | PATRICIA L ZUKAS | | |
| % Ownership: | 100.0000000000% | | |
| Total Value: | $476,270 | | |
| Tax Area: | 0213 - 1-49F1E1H2L1 |
| CE | COUNTY CURRENT EXPENSE | 0.9034619479 | $476,270 | $476,270 | $430.29 | | |
| CNTYDD | DEVELOPMENTAL DISABILITIES | 0.0052121823 | $476,270 | $476,270 | $2.48 | | |
| CNTYVET | VETERANS RELIEF | 0.0052777810 | $476,270 | $476,270 | $2.51 | | |
| MENTAL | MENTAL HEALTH | 0.0052121823 | $476,270 | $476,270 | $2.48 | | |
| ROADS | COUNTY ROADS | 0.7415066410 | $476,270 | $476,270 | $353.16 | | |
| ROADSCU | COUNTY ROADS TO CUR EXP | 0.0000000000 | $476,270 | $476,270 | $0.00 | | |
| HOSP2CASH | HOSP DIST #2 GENERAL | 0.0536075306 | $476,270 | $476,270 | $25.53 | | |
| SCH49CP | SCHOOL DIST #49 CAP PROJ | 0.6279093905 | $476,270 | $476,270 | $299.05 | | |
| SCH49MO | SCHOOL DIST #49 EP & O | 0.6376483602 | $476,270 | $476,270 | $303.69 | | |
| CONSERVE | CONSERVATION FUTURES | 0.0275621078 | $476,270 | $476,270 | $13.13 | | |
| EMS1 | FIRE DIST #1 EMS | 0.4679948282 | $476,270 | $476,270 | $222.89 | | |
| FD1 | FIRE DIST #1 GENERAL | 1.2171942929 | $476,270 | $476,270 | $579.71 | | |
| LIB1 | LIBRARY DIST #1 GENERAL | 0.2868827388 | $476,270 | $476,270 | $136.63 | | |
| PORTPT | PORT OF PT GENERAL | 0.1134941229 | $476,270 | $476,270 | $54.05 | | |
| PORTPTIDD | PORT OF PT IDD 2019 | 0.2577346692 | $476,270 | $476,270 | $122.75 | | |
| PUD1 | PUD #1 GENERAL | 0.0597888892 | $476,270 | $476,270 | $28.48 | | |
| STATE | STATE SCHOOL PART 1 | 1.4940692947 | $476,270 | $476,270 | $711.58 | | |
| STATE2 | STATE SCHOOL PART 2 | 0.8050170049 | $476,270 | $476,270 | $383.41 | | |
| | Total Tax Rate: | 7.7095739644 | | | | | |
| | | | | Taxes w/Current Exemptions: | $3,671.82 | | |
| | | | | Taxes w/o Exemptions: | $3,671.82 | | |
Improvement / Building
| Improvement #1: | Residential Bldg | State Code: | 11 | 1520.0 sqft | Value: | $391,270 |
| Bathrooms (#): | 2 (FULL) | Bathrooms (#): | 1 (HALF) | | Bedrooms (#): | 2 | Exterior Wall: | SI/ST | | Fireplace: | SIN 1-GOOD | Floor Construction: | FRAME | | Foundation: | CONPR | Heating/Cooling: | HPUMP | | Inside Verify: | YES | Roof Cover: | COMP |
|
| | Type | Description | Class CD | Sub Class CD | Year Built | Area |
| | MA | Main Area | 4+ | 1S | 1996 | 1520.0 |
| | PATIO | House Patio | 4 | 1S | 1996 | 400.0 |
| | HCPOR | House Concrete Porch | 4 | 1S | 1996 | 114.0 |
| | GATT | House Attached Garage | 4 | 1S | 1996 | 540.0 |
| | CONCD | Concrete Drive | 4 | 1S | 1996 | 1520.0 |
Sketch
Property Image
Land
| 1 | 3340-1187L | | 0.0000 | 0.00 | 0.00 | 0.00 | 1.00 | $85,000 | $0 |
Roll Value History
| 2026 | N/A | N/A | N/A | N/A | N/A |
| 2025 | $391,270 | $85,000 | $0 | $476,270 | $476,270 |
| 2024 | $391,270 | $85,000 | $0 | $476,270 | $476,270 |
| 2023 | $391,270 | $80,000 | $0 | $471,270 | $471,270 |
| 2022 | $345,708 | $75,000 | $0 | $420,708 | $420,708 |
Deed and Sales History
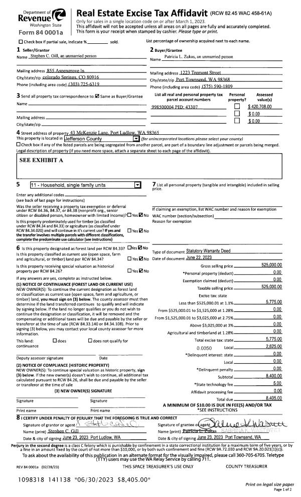
| 1 | 06/22/2023 | SWD | Statutory Warranty Deed | STEPHEN C GILL | PATRICIA L ZUKAS | | | $525,000.00 | 141138 | |
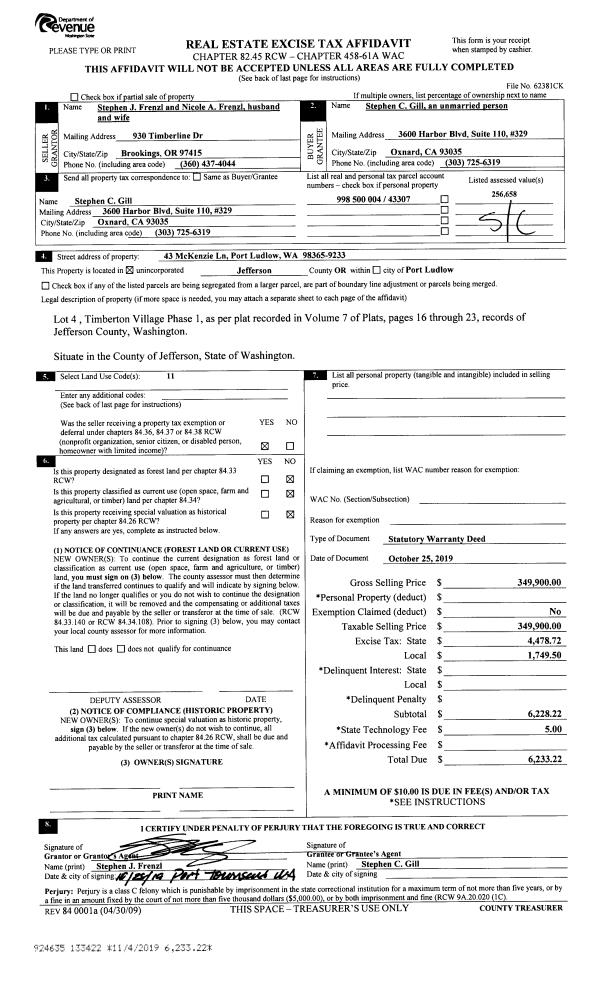
| 2 | 10/25/2019 | SWD | Statutory Warranty Deed | STEPHEN J & NICOLE A FRENZL | STEPHEN C GILL | | | $349,900.00 | 133422 | |
| 3 | 11/13/2013 | SWD | Statutory Warranty Deed | JOHN M GRAHAM | STEPHEN J & NICOLE A FRENZL | | | $222,000.00 | 120403 | |
| 4 | 09/14/2001 | SWD | Statutory Warranty Deed | HEBERLEIN, DENNIS A | GRAHAM, MARY ELIZABETH A/JOHN | 0 | 0 | $172,000.00 | 93088 | 0 |
| 5 | 08/23/1999 | SWD | Statutory Warranty Deed | FORELL, M JACK/KUCERA FAM | HEBERLEIN, DENNIS | 0 | 0 | $140,000.00 | 87724 | 0 |
| 6 | 08/28/1997 | QCD | Quit Claim Deed | BENSON, DEBRA J | BENSON, DAVID E | 0 | 0 | $0.00 | 82684 | 0 |
| 7 | 08/20/1997 | QCD | Quit Claim Deed | FORELL, DONNA | FORELL, M JACK | 0 | 0 | $0.00 | 82683 | 0 |
| 8 | 08/07/1997 | WD | Warranty Deed | RAK DEVELOPMENT | KUCERA FAMILY TRUST | 0 | 0 | $0.00 | 82540 | 0 |
Payout Agreement
| No payout information available.. |