Property
Account |
| Property ID: | 43394 | Abbreviated Legal Description: | TERMINATION POINT 4(ALL) & 3(LESS N47.12') BND BY BLA #97054 |
| Parcel # / Geo ID: | 998600003 | Agent Code: | |
| Type: | Real | | |
| Tax Area: | 0213 - 1-49F1E1H2L1 | Land Use Code | 11 |
| Open Space: | N | DFL | N |
| Historic Property: | N | Remodel Property: | N |
| Multi-Family Redevelopment: | N | | |
| Township: | 27N | Section: | 3 |
| Range: | 1E |
Location |
| Address: | 66 HARBOR VIEW PL PORT LUDLOW, WA 98365 | Mapsco: | 133/046 |
| Neighborhood: | KILLAPIE BEACH & TERMINATION POINT | Map ID: | |
| Neighborhood CD: | 3405 |
Owner |
| Name: | BELTRAMO FAMILY TRUST | Owner ID: | 113711 |
| Mailing Address: | DONALD H & MARY E BELTRAMO TRUSTEE 66 HARBOR VIEW PL PORT LUDLOW, WA 98365-8263 | % Ownership: | 100.0000000000% |
| | | Exemptions: | |
Pay Tax Due
Select the appropriate checkbox next to the year to be paid. Multiple years may be selected.
*Convenience Fee not included
Taxes and Assessment Details
Property Tax Information as of
03/10/2026
Click on "Statement Details" to expand or collapse a tax statement.
* Please enter a valid date ** Please enter a valid date *
Statement Details |
| 2026 | 32544 | STATE - STATE LEVY (SCHOOL) | $454.58 | $454.57 | $0.00 | $0.00 | $0.00 | $909.15 |
| 2026 | 32544 | COUNTY - COUNTY LEVIES (CE, DD, VET, MH) | $181.74 | $181.73 | $0.00 | $0.00 | $0.00 | $363.47 |
| 2026 | 32544 | CONSERVE - CONSERVATION FUTURES | $5.45 | $5.45 | $0.00 | $0.00 | $0.00 | $10.90 |
| 2026 | 32544 | COROADS - COUNTY ROADS (ROADS, DIV TO CE) | $146.61 | $146.61 | $0.00 | $0.00 | $0.00 | $293.22 |
| 2026 | 32544 | PORTPT - PORT DISTRICT | $73.40 | $73.40 | $0.00 | $0.00 | $0.00 | $146.80 |
| 2026 | 32544 | PUD1 - PUD #1 | $11.82 | $11.82 | $0.00 | $0.00 | $0.00 | $23.64 |
| 2026 | 32544 | LIB1 - LIBRARY DIST #1 | $56.72 | $56.72 | $0.00 | $0.00 | $0.00 | $113.44 |
| 2026 | 32544 | HD2 - HOSP DIST #2 | $10.60 | $10.60 | $0.00 | $0.00 | $0.00 | $21.20 |
| 2026 | 32544 | SD49 - SCHOOL DIST #49 | $250.23 | $250.22 | $0.00 | $0.00 | $0.00 | $500.45 |
| 2026 | 32544 | FD1 - FIRE DISTRICT #1 | $240.67 | $240.66 | $0.00 | $0.00 | $0.00 | $481.33 |
| 2026 | 32544 | EMS1 - FIRE DIST #1 EMS | $92.53 | $92.53 | $0.00 | $0.00 | $0.00 | $185.06 |
| 2026 | 32544 | FP - DNR Forest Fire Protection Assmt | $8.50 | $8.50 | $0.00 | $0.00 | $0.00 | $17.00 |
| 2026 | 32544 | FPLCA - DNR Landowner Contingency Assmt | $3.00 | $3.00 | $0.00 | $0.00 | $0.00 | $6.00 |
| 2026 | 32544 | JCCD - JC Conservation District | $2.55 | $2.55 | $0.00 | $0.00 | $0.00 | $5.10 |
| 2026 | 32544 | NWA - Noxious Weed Assessment | $2.98 | $2.97 | $0.00 | $0.00 | $0.00 | $5.95 |
| 2026 | 32544 | OSS - On Site Septic | $23.10 | $23.10 | $0.00 | $0.00 | $0.00 | $46.20 |
| 2026 | 32544 | WAT - Clean Water District | $13.00 | $13.00 | $0.00 | $0.00 | $0.00 | $26.00 |
| 2026 | 32544 | FP ADMIN - FP ADMIN | $0.50 | $0.00 | $0.00 | $0.00 | $0.00 | $0.50 |
| 2026 | 32544 | TOTAL: | $1577.98 | $1577.43 | $0.00 | $0.00 | $0.00 | $3155.41 |
|
| 2026 | 32544 | $1577.98 | $1577.43 | $0.00 | $0.00 | $0.00 | $3155.41 |
Statement Details |
| 2025 | 32619 | STATE - STATE LEVY (SCHOOL) | $452.83 | $452.81 | $0.00 | $0.00 | $905.64 | $0.00 |
| 2025 | 32619 | COUNTY - COUNTY LEVIES (CE, DD, VET, MH) | $178.08 | $178.05 | $0.00 | $0.00 | $356.13 | $0.00 |
| 2025 | 32619 | CONSERVE - CONSERVATION FUTURES | $5.34 | $5.34 | $0.00 | $0.00 | $10.68 | $0.00 |
| 2025 | 32619 | COROADS - COUNTY ROADS (ROADS, DIV TO CE) | $142.67 | $142.65 | $0.00 | $0.00 | $285.32 | $0.00 |
| 2025 | 32619 | PORTPT - PORT DISTRICT | $72.67 | $72.65 | $0.00 | $0.00 | $145.32 | $0.00 |
| 2025 | 32619 | PUD1 - PUD #1 | $11.65 | $11.65 | $0.00 | $0.00 | $23.30 | $0.00 |
| 2025 | 32619 | LIB1 - LIBRARY DIST #1 | $55.20 | $55.19 | $0.00 | $0.00 | $110.39 | $0.00 |
| 2025 | 32619 | HD2 - HOSP DIST #2 | $10.39 | $10.39 | $0.00 | $0.00 | $20.78 | $0.00 |
| 2025 | 32619 | SD49 - SCHOOL DIST #49 | $242.69 | $242.68 | $0.00 | $0.00 | $485.37 | $0.00 |
| 2025 | 32619 | FD1 - FIRE DISTRICT #1 | $234.98 | $234.98 | $0.00 | $0.00 | $469.96 | $0.00 |
| 2025 | 32619 | EMS1 - FIRE DIST #1 EMS | $90.38 | $90.38 | $0.00 | $0.00 | $180.76 | $0.00 |
| 2025 | 32619 | FP - DNR Forest Fire Protection Assmt | $8.50 | $8.50 | $0.00 | $0.00 | $17.00 | $0.00 |
| 2025 | 32619 | FPLCA - DNR Landowner Contingency Assmt | $3.00 | $3.00 | $0.00 | $0.00 | $6.00 | $0.00 |
| 2025 | 32619 | JCCD - JC Conservation District | $2.55 | $2.55 | $0.00 | $0.00 | $5.10 | $0.00 |
| 2025 | 32619 | NWA - Noxious Weed Assessment | $2.15 | $2.15 | $0.00 | $0.00 | $4.30 | $0.00 |
| 2025 | 32619 | OSS - On Site Septic | $21.50 | $21.50 | $0.00 | $0.00 | $43.00 | $0.00 |
| 2025 | 32619 | WAT - Clean Water District | $13.00 | $13.00 | $0.00 | $0.00 | $26.00 | $0.00 |
| 2025 | 32619 | FP ADMIN - FP ADMIN | $0.50 | $0.00 | $0.00 | $0.00 | $0.50 | $0.00 |
| 2025 | 32619 | TOTAL: | $1548.08 | $1547.47 | $0.00 | $0.00 | $3095.55 | $0.00 |
|
| 2025 | 32619 | $1548.08 | $1547.47 | $0.00 | $0.00 | $3095.55 | $0.00 |
Statement Details |
| 2024 | 32678 | STATE - STATE LEVY (SCHOOL) | $431.09 | $431.09 | $0.00 | $0.00 | $862.18 | $0.00 |
| 2024 | 32678 | COUNTY - COUNTY LEVIES (CE, DD, VET, MH) | $184.47 | $184.46 | $0.00 | $0.00 | $368.93 | $0.00 |
| 2024 | 32678 | CONSERVE - CONSERVATION FUTURES | $5.53 | $5.53 | $0.00 | $0.00 | $11.06 | $0.00 |
| 2024 | 32678 | COROADS - COUNTY ROADS (ROADS, DIV TO CE) | $148.44 | $148.43 | $0.00 | $0.00 | $296.87 | $0.00 |
| 2024 | 32678 | PORTPT - PORT DISTRICT | $76.20 | $76.18 | $0.00 | $0.00 | $152.38 | $0.00 |
| 2024 | 32678 | PUD1 - PUD #1 | $12.12 | $12.11 | $0.00 | $0.00 | $24.23 | $0.00 |
| 2024 | 32678 | LIB1 - LIBRARY DIST #1 | $57.43 | $57.43 | $0.00 | $0.00 | $114.86 | $0.00 |
| 2024 | 32678 | HD2 - HOSP DIST #2 | $10.77 | $10.76 | $0.00 | $0.00 | $21.53 | $0.00 |
| 2024 | 32678 | SD49 - SCHOOL DIST #49 | $192.51 | $192.49 | $0.00 | $0.00 | $385.00 | $0.00 |
| 2024 | 32678 | FD1 - FIRE DISTRICT #1 | $243.91 | $243.91 | $0.00 | $0.00 | $487.82 | $0.00 |
| 2024 | 32678 | EMS1 - FIRE DIST #1 EMS | $93.17 | $93.16 | $0.00 | $0.00 | $186.33 | $0.00 |
| 2024 | 32678 | FP - DNR Forest Fire Protection Assmt | $8.50 | $8.50 | $0.00 | $0.00 | $17.00 | $0.00 |
| 2024 | 32678 | FPLCA - DNR Landowner Contingency Assmt | $3.00 | $3.00 | $0.00 | $0.00 | $6.00 | $0.00 |
| 2024 | 32678 | JCCD - JC Conservation District | $2.55 | $2.55 | $0.00 | $0.00 | $5.10 | $0.00 |
| 2024 | 32678 | NWA - Noxious Weed Assessment | $2.15 | $2.15 | $0.00 | $0.00 | $4.30 | $0.00 |
| 2024 | 32678 | OSS - On Site Septic | $21.00 | $21.00 | $0.00 | $0.00 | $42.00 | $0.00 |
| 2024 | 32678 | WAT - Clean Water District | $12.50 | $12.50 | $0.00 | $0.00 | $25.00 | $0.00 |
| 2024 | 32678 | FP ADMIN - FP ADMIN | $0.50 | $0.00 | $0.00 | $0.00 | $0.50 | $0.00 |
| 2024 | 32678 | TOTAL: | $1505.84 | $1505.25 | $0.00 | $0.00 | $3011.09 | $0.00 |
|
| 2024 | 32678 | $1505.84 | $1505.25 | $0.00 | $0.00 | $3011.09 | $0.00 |
Statement Details |
| 2023 | 32720 | STATE - STATE LEVY (SCHOOL) | $432.77 | $432.76 | $0.00 | $0.00 | $865.53 | $0.00 |
| 2023 | 32720 | COUNTY - COUNTY LEVIES (CE, DD, VET, MH) | $188.85 | $188.83 | $0.00 | $0.00 | $377.68 | $0.00 |
| 2023 | 32720 | CONSERVE - CONSERVATION FUTURES | $5.67 | $5.66 | $0.00 | $0.00 | $11.33 | $0.00 |
| 2023 | 32720 | COROADS - COUNTY ROADS (ROADS, DIV TO CE) | $152.79 | $152.79 | $0.00 | $0.00 | $305.58 | $0.00 |
| 2023 | 32720 | PORTPT - PORT DISTRICT | $79.56 | $79.55 | $0.00 | $0.00 | $159.11 | $0.00 |
| 2023 | 32720 | PUD1 - PUD #1 | $12.52 | $12.52 | $0.00 | $0.00 | $25.04 | $0.00 |
| 2023 | 32720 | LIB1 - LIBRARY DIST #1 | $59.12 | $59.11 | $0.00 | $0.00 | $118.23 | $0.00 |
| 2023 | 32720 | HD2 - HOSP DIST #2 | $11.02 | $11.02 | $0.00 | $0.00 | $22.04 | $0.00 |
| 2023 | 32720 | SD49 - SCHOOL DIST #49 | $202.30 | $202.29 | $0.00 | $0.00 | $404.59 | $0.00 |
| 2023 | 32720 | FD3 - FIRE DISTRICT #3 | $187.88 | $187.87 | $0.00 | $0.00 | $375.75 | $0.00 |
| 2023 | 32720 | EMS3 - FIRE DIST #3 EMS | $67.17 | $67.16 | $0.00 | $0.00 | $134.33 | $0.00 |
| 2023 | 32720 | FP - DNR Forest Fire Protection Assmt | $8.50 | $8.50 | $0.00 | $0.00 | $17.00 | $0.00 |
| 2023 | 32720 | FPLCA - DNR Landowner Contingency Assmt | $3.00 | $3.00 | $0.00 | $0.00 | $6.00 | $0.00 |
| 2023 | 32720 | JCCD - JC Conservation District | $2.55 | $2.55 | $0.00 | $0.00 | $5.10 | $0.00 |
| 2023 | 32720 | NWA - Noxious Weed Assessment | $2.15 | $2.15 | $0.00 | $0.00 | $4.30 | $0.00 |
| 2023 | 32720 | OSS - On Site Septic | $20.50 | $20.50 | $0.00 | $0.00 | $41.00 | $0.00 |
| 2023 | 32720 | WAT - Clean Water District | $12.00 | $12.00 | $0.00 | $0.00 | $24.00 | $0.00 |
| 2023 | 32720 | FP ADMIN - FP ADMIN | $0.50 | $0.00 | $0.00 | $0.00 | $0.50 | $0.00 |
| 2023 | 32720 | TOTAL: | $1448.85 | $1448.26 | $0.00 | $0.00 | $2897.11 | $0.00 |
|
| 2023 | 32720 | $1448.85 | $1448.26 | $0.00 | $0.00 | $2897.11 | $0.00 |
Values
| (+) Improvement Homesite Value: | + | $0 | |
| (+) Improvement Non-Homesite Value: | + | $253,690 | |
| (+) Land Homesite Value: | + | $0 | |
| (+) Land Non-Homesite Value: | + | $141,750 | |
| (+) Curr Use (HS): | + | $0 | $0 |
| (+) Curr Use (NHS): | + | $0 | $0 |
| | | -------------------------- | |
| (=) Market Value: | = | $395,440 | |
| (–) Productivity Loss: | – | $0 | |
| | | -------------------------- | |
| (=) Subtotal: | = | $395,440 | |
| (+) Senior Appraised Value: | + | $0 | |
| (+) Non-Senior Appraised Value: | + | $395,440 | |
| | | -------------------------- | |
| (=) Total Appraised Value: | = | $395,440 | |
| (–) Senior Exemption Loss: | – | $0 | |
| (–) Exemption Loss: | – | $0 | |
| | | -------------------------- | |
| (=) Taxable Value: | = | $395,440 | |
Taxing Jurisdiction
| Owner: | BELTRAMO FAMILY TRUST | | |
| % Ownership: | 100.0000000000% | | |
| Total Value: | $395,440 | | |
| Tax Area: | 0213 - 1-49F1E1H2L1 |
| CE | COUNTY CURRENT EXPENSE | 0.9034619479 | $395,440 | $395,440 | $357.26 | | |
| CNTYDD | DEVELOPMENTAL DISABILITIES | 0.0052121823 | $395,440 | $395,440 | $2.06 | | |
| CNTYVET | VETERANS RELIEF | 0.0052777810 | $395,440 | $395,440 | $2.09 | | |
| MENTAL | MENTAL HEALTH | 0.0052121823 | $395,440 | $395,440 | $2.06 | | |
| ROADS | COUNTY ROADS | 0.7415066410 | $395,440 | $395,440 | $293.22 | | |
| ROADSCU | COUNTY ROADS TO CUR EXP | 0.0000000000 | $395,440 | $395,440 | $0.00 | | |
| HOSP2CASH | HOSP DIST #2 GENERAL | 0.0536075306 | $395,440 | $395,440 | $21.20 | | |
| SCH49CP | SCHOOL DIST #49 CAP PROJ | 0.6279093905 | $395,440 | $395,440 | $248.30 | | |
| SCH49MO | SCHOOL DIST #49 EP & O | 0.6376483602 | $395,440 | $395,440 | $252.15 | | |
| CONSERVE | CONSERVATION FUTURES | 0.0275621078 | $395,440 | $395,440 | $10.90 | | |
| EMS1 | FIRE DIST #1 EMS | 0.4679948282 | $395,440 | $395,440 | $185.06 | | |
| FD1 | FIRE DIST #1 GENERAL | 1.2171942929 | $395,440 | $395,440 | $481.33 | | |
| LIB1 | LIBRARY DIST #1 GENERAL | 0.2868827388 | $395,440 | $395,440 | $113.44 | | |
| PORTPT | PORT OF PT GENERAL | 0.1134941229 | $395,440 | $395,440 | $44.88 | | |
| PORTPTIDD | PORT OF PT IDD 2019 | 0.2577346692 | $395,440 | $395,440 | $101.92 | | |
| PUD1 | PUD #1 GENERAL | 0.0597888892 | $395,440 | $395,440 | $23.64 | | |
| STATE | STATE SCHOOL PART 1 | 1.4940692947 | $395,440 | $395,440 | $590.81 | | |
| STATE2 | STATE SCHOOL PART 2 | 0.8050170049 | $395,440 | $395,440 | $318.34 | | |
| | Total Tax Rate: | 7.7095739644 | | | | | |
| | | | | Taxes w/Current Exemptions: | $3,048.66 | | |
| | | | | Taxes w/o Exemptions: | $3,048.66 | | |
Improvement / Building
| Improvement #1: | Manufactured Home | State Code: | 11M | 1836.0 sqft | Value: | $182,081 |
| Bathrooms (#): | 2 (FULL) | Bedrooms (#): | 3 | | Exterior Wall: | SI/ST | Foundation: | 01BASE | | Heating/Cooling: | F/A | Roof Cover: | COMP |
|
| | Type | Description | Class CD | Sub Class CD | Year Built | Area |
| | MA | Main Area | 4 | MDBL | 2015 | 1836.0 |
| | MRPO | MH Roof Porch | 4 | * | 2015 | 240.0 |
| Improvement #2: | Residential Bldg | State Code: | 18 | 0.0 sqft | Value: | $71,609 |
Sketch
Property Image
Land
| 1 | 3405-1145L | | 0.0000 | 0.00 | 0.00 | 0.00 | 1.00 | $141,750 | $0 |
Roll Value History
| 2026 | N/A | N/A | N/A | N/A | N/A |
| 2025 | $253,690 | $141,750 | $0 | $395,440 | $395,440 |
| 2024 | $242,660 | $135,000 | $0 | $377,660 | $377,660 |
| 2023 | $242,660 | $130,000 | $0 | $372,660 | $372,660 |
| 2022 | $242,660 | $125,000 | $0 | $367,660 | $367,660 |
Deed and Sales History
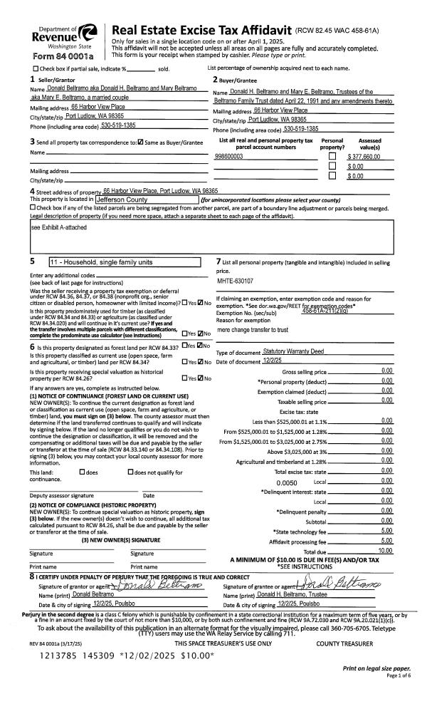
| 1 | 12/02/2025 | SWD | Statutory Warranty Deed | DONALD & MARY BELTRAMO | BELTRAMO FAMILY TRUST | | | | 145309 | |
| 2 | 05/23/2018 | SWD | Statutory Warranty Deed | BRUCE JENSEN | DONALD & MARY BELTRAMO | | | $96,500.00 | 130378 | |
| 3 | 04/04/2006 | SWD | Statutory Warranty Deed | TRASK, RUSSELL J TRUST | JENSEN, BRUCE/TERI L | | | $105,000.00 | 106325 | 0 |
| 4 | 01/14/2003 | BLA | Boundary Line Adjustment | RJ TRASK LIVING TRUST | RJ TRASK LIVING TRUST | 0 | 0 | $0.00 | 97054 | 0 |
Payout Agreement
| No payout information available.. |