Property
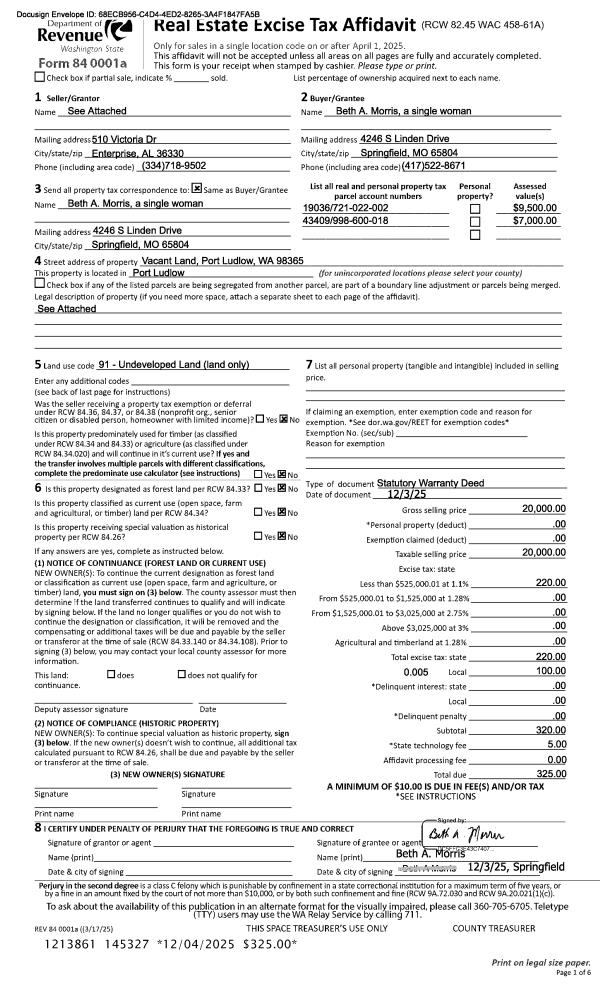
Account |
| Property ID: | 43409 | Abbreviated Legal Description: | TERMINATION POINT 57 |
| Parcel # / Geo ID: | 998600018 | Agent Code: | |
| Type: | Real | | |
| Tax Area: | 0213 - 1-49F1E1H2L1 | Land Use Code | 91 |
| Open Space: | N | DFL | N |
| Historic Property: | N | Remodel Property: | N |
| Multi-Family Redevelopment: | N | | |
| Township: | 27N | Section: | 2 |
| Range: | 1E |
Location |
| Address: | | Mapsco: | 133/076 |
| Neighborhood: | KILLAPIE BEACH & TERMINATION POINT | Map ID: | |
| Neighborhood CD: | 3405 |
Owner |
| Name: | BETH A MORRIS | Owner ID: | 113739 |
| Mailing Address: | 4246 S LINDEN DR SPRINGFIELD, MO 65804-6691 | % Ownership: | 100.0000000000% |
| | | Exemptions: | |
Pay Tax Due
There is currently No Amount Due on this property.
Taxes and Assessment Details
Property Tax Information as of
03/10/2026
Click on "Statement Details" to expand or collapse a tax statement.
* Please enter a valid date ** Please enter a valid date *
Statement Details |
| | TOTAL: | $0.00 | $0.00 | $0.00 | $0.00 | $0.00 | $0.00 |
|
| | $0.00 | $0.00 | $0.00 | $0.00 | $0.00 | $0.00 |
Values
| (+) Improvement Homesite Value: | + | $0 | |
| (+) Improvement Non-Homesite Value: | + | $0 | |
| (+) Land Homesite Value: | + | $0 | |
| (+) Land Non-Homesite Value: | + | $7,350 | |
| (+) Curr Use (HS): | + | $0 | $0 |
| (+) Curr Use (NHS): | + | $0 | $0 |
| | | -------------------------- | |
| (=) Market Value: | = | $7,350 | |
| (–) Productivity Loss: | – | $0 | |
| | | -------------------------- | |
| (=) Subtotal: | = | $7,350 | |
| (+) Senior Appraised Value: | + | $0 | |
| (+) Non-Senior Appraised Value: | + | $7,350 | |
| | | -------------------------- | |
| (=) Total Appraised Value: | = | $7,350 | |
| (–) Senior Exemption Loss: | – | $0 | |
| (–) Exemption Loss: | – | $0 | |
| | | -------------------------- | |
| (=) Taxable Value: | = | $7,350 | |
Taxing Jurisdiction
| Owner: | BETH A MORRIS | | |
| % Ownership: | 100.0000000000% | | |
| Total Value: | $7,350 | | |
| Tax Area: | 0213 - 1-49F1E1H2L1 |
| CE | COUNTY CURRENT EXPENSE | 0.9034619479 | $7,350 | $7,350 | $6.64 | | |
| CNTYDD | DEVELOPMENTAL DISABILITIES | 0.0052121823 | $7,350 | $7,350 | $0.04 | | |
| CNTYVET | VETERANS RELIEF | 0.0052777810 | $7,350 | $7,350 | $0.04 | | |
| MENTAL | MENTAL HEALTH | 0.0052121823 | $7,350 | $7,350 | $0.04 | | |
| ROADS | COUNTY ROADS | 0.7415066410 | $7,350 | $7,350 | $5.45 | | |
| ROADSCU | COUNTY ROADS TO CUR EXP | 0.0000000000 | $7,350 | $7,350 | $0.00 | | |
| HOSP2CASH | HOSP DIST #2 GENERAL | 0.0536075306 | $7,350 | $7,350 | $0.39 | | |
| SCH49CP | SCHOOL DIST #49 CAP PROJ | 0.6279093905 | $7,350 | $7,350 | $4.62 | | |
| SCH49MO | SCHOOL DIST #49 EP & O | 0.6376483602 | $7,350 | $7,350 | $4.69 | | |
| CONSERVE | CONSERVATION FUTURES | 0.0275621078 | $7,350 | $7,350 | $0.20 | | |
| EMS1 | FIRE DIST #1 EMS | 0.4679948282 | $7,350 | $7,350 | $3.44 | | |
| FD1 | FIRE DIST #1 GENERAL | 1.2171942929 | $7,350 | $7,350 | $8.95 | | |
| LIB1 | LIBRARY DIST #1 GENERAL | 0.2868827388 | $7,350 | $7,350 | $2.11 | | |
| PORTPT | PORT OF PT GENERAL | 0.1134941229 | $7,350 | $7,350 | $0.83 | | |
| PORTPTIDD | PORT OF PT IDD 2019 | 0.2577346692 | $7,350 | $7,350 | $1.89 | | |
| PUD1 | PUD #1 GENERAL | 0.0597888892 | $7,350 | $7,350 | $0.44 | | |
| STATE | STATE SCHOOL PART 1 | 1.4940692947 | $7,350 | $7,350 | $10.98 | | |
| STATE2 | STATE SCHOOL PART 2 | 0.8050170049 | $7,350 | $7,350 | $5.92 | | |
| | Total Tax Rate: | 7.7095739644 | | | | | |
| | | | | Taxes w/Current Exemptions: | $56.67 | | |
| | | | | Taxes w/o Exemptions: | $56.67 | | |
Improvement / Building
Sketch
| No sketches available for this property. |
Property Image
Land
| 1 | 3405-1165L | Fair View Lots in Termination Point | 0.0000 | 0.00 | 0.00 | 0.00 | 1.00 | $7,350 | $0 |
Roll Value History
| 2026 | N/A | N/A | N/A | N/A | N/A |
| 2025 | $0 | $7,350 | $0 | $7,350 | $7,350 |
| 2024 | $0 | $7,000 | $0 | $7,000 | $7,000 |
| 2023 | $0 | $7,000 | $0 | $7,000 | $7,000 |
| 2022 | $0 | $7,000 | $0 | $7,000 | $7,000 |
Deed and Sales History
| 1 | 12/03/2025 | SWD | Statutory Warranty Deed | FRANCINE S LONG | BETH A MORRIS | | | $20,000.00 | 145327 | |
|   | |
| 2 | 12/06/2016 | MISC | MISC | | | | | | 127544 | |
| 3 | 03/10/2017 | LOP | Lack of Probate | BARBARA F COOPER | BARBARA F COOPER | | | | 127404 | |
| 4 | 06/21/2007 | QCD | Quit Claim Deed | COOPER, BARBARA F | COOPER, BARBARA F, LONG, FRANC | | | $0.00 | 109524 | 0 |
Payout Agreement
| No payout information available.. |