Property
Account |
| Property ID: | 43448 | Abbreviated Legal Description: | TEAL LAKE VILLAGE LOT 23 |
| Parcel # / Geo ID: | 998700023 | Agent Code: | |
| Type: | Real | | |
| Tax Area: | 0213 - 1-49F1E1H2L1 | Land Use Code | 11 |
| Open Space: | N | DFL | N |
| Historic Property: | N | Remodel Property: | N |
| Multi-Family Redevelopment: | N | | |
| Township: | 28N | Section: | 21 |
| Range: | 1E |
Location |
| Address: | 43 SEA BREEZE LN PORT LUDLOW, WA 98365 | Mapsco: | 134/022 |
| Neighborhood: | TEAL LAKE VILLAGE & FAIRWOOD VILLAGE | Map ID: | |
| Neighborhood CD: | 3351 |
Owner |
| Name: | JAMES W TIPTON | Owner ID: | 83310 |
| Mailing Address: | DAVID W H TIPTON JTWROS 43 SEA BREEZE LN PORT LUDLOW, WA 98365-9585 | % Ownership: | 100.0000000000% |
| | | Exemptions: | SNR/DSBL |
Pay Tax Due
Select the appropriate checkbox next to the year to be paid. Multiple years may be selected.
*Convenience Fee not included
Taxes and Assessment Details
Property Tax Information as of
03/10/2026
Click on "Statement Details" to expand or collapse a tax statement.
* Please enter a valid date ** Please enter a valid date *
Statement Details |
| 2026 | 32598 | STATE - STATE LEVY (SCHOOL) | $130.90 | $130.89 | $0.00 | $0.00 | $0.00 | $261.79 |
| 2026 | 32598 | COUNTY - COUNTY LEVIES (CE, DD, VET, MH) | $80.53 | $80.51 | $0.00 | $0.00 | $0.00 | $161.04 |
| 2026 | 32598 | CONSERVE - CONSERVATION FUTURES | $2.42 | $2.41 | $0.00 | $0.00 | $0.00 | $4.83 |
| 2026 | 32598 | COROADS - COUNTY ROADS (ROADS, DIV TO CE) | $64.97 | $64.96 | $0.00 | $0.00 | $0.00 | $129.93 |
| 2026 | 32598 | PORTPT - PORT DISTRICT | $32.53 | $32.52 | $0.00 | $0.00 | $0.00 | $65.05 |
| 2026 | 32598 | PUD1 - PUD #1 | $5.24 | $5.24 | $0.00 | $0.00 | $0.00 | $10.48 |
| 2026 | 32598 | LIB1 - LIBRARY DIST #1 | $25.14 | $25.13 | $0.00 | $0.00 | $0.00 | $50.27 |
| 2026 | 32598 | HD2 - HOSP DIST #2 | $4.70 | $4.69 | $0.00 | $0.00 | $0.00 | $9.39 |
| 2026 | 32598 | SD49 - SCHOOL DIST #49 | $0.00 | $0.00 | $0.00 | $0.00 | $0.00 | $0.00 |
| 2026 | 32598 | FD1 - FIRE DISTRICT #1 | $106.64 | $106.64 | $0.00 | $0.00 | $0.00 | $213.28 |
| 2026 | 32598 | EMS1 - FIRE DIST #1 EMS | $41.00 | $41.00 | $0.00 | $0.00 | $0.00 | $82.00 |
| 2026 | 32598 | TOTAL: | $494.07 | $493.99 | $0.00 | $0.00 | $0.00 | $988.06 |
|
| 2026 | 32598 | $494.07 | $493.99 | $0.00 | $0.00 | $0.00 | $988.06 |
Statement Details |
| 2025 | 32673 | STATE - STATE LEVY (SCHOOL) | $136.58 | $136.58 | $0.00 | $0.00 | $273.16 | $0.00 |
| 2025 | 32673 | COUNTY - COUNTY LEVIES (CE, DD, VET, MH) | $82.63 | $82.60 | $0.00 | $0.00 | $165.23 | $0.00 |
| 2025 | 32673 | CONSERVE - CONSERVATION FUTURES | $2.48 | $2.47 | $0.00 | $0.00 | $4.95 | $0.00 |
| 2025 | 32673 | COROADS - COUNTY ROADS (ROADS, DIV TO CE) | $66.20 | $66.18 | $0.00 | $0.00 | $132.38 | $0.00 |
| 2025 | 32673 | PORTPT - PORT DISTRICT | $33.71 | $33.71 | $0.00 | $0.00 | $67.42 | $0.00 |
| 2025 | 32673 | PUD1 - PUD #1 | $5.41 | $5.40 | $0.00 | $0.00 | $10.81 | $0.00 |
| 2025 | 32673 | LIB1 - LIBRARY DIST #1 | $25.61 | $25.61 | $0.00 | $0.00 | $51.22 | $0.00 |
| 2025 | 32673 | HD2 - HOSP DIST #2 | $4.82 | $4.82 | $0.00 | $0.00 | $9.64 | $0.00 |
| 2025 | 32673 | SD49 - SCHOOL DIST #49 | $0.00 | $0.00 | $0.00 | $0.00 | $0.00 | $0.00 |
| 2025 | 32673 | FD1 - FIRE DISTRICT #1 | $109.02 | $109.02 | $0.00 | $0.00 | $218.04 | $0.00 |
| 2025 | 32673 | EMS1 - FIRE DIST #1 EMS | $41.94 | $41.93 | $0.00 | $0.00 | $83.87 | $0.00 |
| 2025 | 32673 | TOTAL: | $508.40 | $508.32 | $0.00 | $0.00 | $1016.72 | $0.00 |
|
| 2025 | 32673 | $508.40 | $508.32 | $0.00 | $0.00 | $1016.72 | $0.00 |
Statement Details |
| 2024 | 32732 | STATE - STATE LEVY (SCHOOL) | $131.93 | $131.92 | $0.00 | $0.00 | $263.85 | $0.00 |
| 2024 | 32732 | COUNTY - COUNTY LEVIES (CE, DD, VET, MH) | $86.74 | $86.73 | $0.00 | $0.00 | $173.47 | $0.00 |
| 2024 | 32732 | CONSERVE - CONSERVATION FUTURES | $2.60 | $2.60 | $0.00 | $0.00 | $5.20 | $0.00 |
| 2024 | 32732 | COROADS - COUNTY ROADS (ROADS, DIV TO CE) | $69.79 | $69.79 | $0.00 | $0.00 | $139.58 | $0.00 |
| 2024 | 32732 | PORTPT - PORT DISTRICT | $35.83 | $35.82 | $0.00 | $0.00 | $71.65 | $0.00 |
| 2024 | 32732 | PUD1 - PUD #1 | $5.70 | $5.69 | $0.00 | $0.00 | $11.39 | $0.00 |
| 2024 | 32732 | LIB1 - LIBRARY DIST #1 | $27.00 | $27.00 | $0.00 | $0.00 | $54.00 | $0.00 |
| 2024 | 32732 | HD2 - HOSP DIST #2 | $5.06 | $5.06 | $0.00 | $0.00 | $10.12 | $0.00 |
| 2024 | 32732 | SD49 - SCHOOL DIST #49 | $0.00 | $0.00 | $0.00 | $0.00 | $0.00 | $0.00 |
| 2024 | 32732 | FD1 - FIRE DISTRICT #1 | $114.69 | $114.68 | $0.00 | $0.00 | $229.37 | $0.00 |
| 2024 | 32732 | EMS1 - FIRE DIST #1 EMS | $43.81 | $43.80 | $0.00 | $0.00 | $87.61 | $0.00 |
| 2024 | 32732 | TOTAL: | $523.15 | $523.09 | $0.00 | $0.00 | $1046.24 | $0.00 |
|
| 2024 | 32732 | $523.15 | $523.09 | $0.00 | $0.00 | $1046.24 | $0.00 |
Statement Details |
| 2023 | 32774 | STATE - STATE LEVY (SCHOOL) | $134.38 | $134.37 | $0.00 | $0.00 | $268.75 | $0.00 |
| 2023 | 32774 | COUNTY - COUNTY LEVIES (CE, DD, VET, MH) | $90.00 | $89.99 | $0.00 | $0.00 | $179.99 | $0.00 |
| 2023 | 32774 | CONSERVE - CONSERVATION FUTURES | $2.70 | $2.70 | $0.00 | $0.00 | $5.40 | $0.00 |
| 2023 | 32774 | COROADS - COUNTY ROADS (ROADS, DIV TO CE) | $72.82 | $72.81 | $0.00 | $0.00 | $145.63 | $0.00 |
| 2023 | 32774 | PORTPT - PORT DISTRICT | $37.92 | $37.91 | $0.00 | $0.00 | $75.83 | $0.00 |
| 2023 | 32774 | PUD1 - PUD #1 | $5.97 | $5.96 | $0.00 | $0.00 | $11.93 | $0.00 |
| 2023 | 32774 | LIB1 - LIBRARY DIST #1 | $28.17 | $28.17 | $0.00 | $0.00 | $56.34 | $0.00 |
| 2023 | 32774 | HD2 - HOSP DIST #2 | $5.26 | $5.25 | $0.00 | $0.00 | $10.51 | $0.00 |
| 2023 | 32774 | SD49 - SCHOOL DIST #49 | $0.00 | $0.00 | $0.00 | $0.00 | $0.00 | $0.00 |
| 2023 | 32774 | FD3 - FIRE DISTRICT #3 | $89.54 | $89.54 | $0.00 | $0.00 | $179.08 | $0.00 |
| 2023 | 32774 | EMS3 - FIRE DIST #3 EMS | $32.01 | $32.01 | $0.00 | $0.00 | $64.02 | $0.00 |
| 2023 | 32774 | TOTAL: | $498.77 | $498.71 | $0.00 | $0.00 | $997.48 | $0.00 |
|
| 2023 | 32774 | $498.77 | $498.71 | $0.00 | $0.00 | $997.48 | $0.00 |
Values
| (+) Improvement Homesite Value: | + | $490,323 | |
| (+) Improvement Non-Homesite Value: | + | $0 | |
| (+) Land Homesite Value: | + | $152,250 | |
| (+) Land Non-Homesite Value: | + | $0 | |
| (+) Curr Use (HS): | + | $0 | $0 |
| (+) Curr Use (NHS): | + | $0 | $0 |
| | | -------------------------- | |
| (=) Market Value: | = | $642,573 | |
| (–) Productivity Loss: | – | $0 | |
| | | -------------------------- | |
| (=) Subtotal: | = | $642,573 | |
| (+) Senior Appraised Value: | + | $438,049 | |
| (+) Non-Senior Appraised Value: | + | $0 | |
| | | -------------------------- | |
| (=) Total Appraised Value: | = | $438,049 | |
| (–) Senior Exemption Loss: | – | $262,829 | |
| (–) Exemption Loss: | – | $0 | |
| | | -------------------------- | |
| (=) Taxable Value: | = | $175,220 | |
Taxing Jurisdiction
| Owner: | JAMES W TIPTON | | |
| % Ownership: | 100.0000000000% | | |
| Total Value: | $642,573 | | |
| Tax Area: | 0213 - 1-49F1E1H2L1 |
| CE | COUNTY CURRENT EXPENSE | 0.9034619479 | $642,573 | $175,220 | $158.30 | | |
| CNTYDD | DEVELOPMENTAL DISABILITIES | 0.0052121823 | $642,573 | $175,220 | $0.91 | | |
| CNTYVET | VETERANS RELIEF | 0.0052777810 | $642,573 | $175,220 | $0.92 | | |
| MENTAL | MENTAL HEALTH | 0.0052121823 | $642,573 | $175,220 | $0.91 | | |
| ROADS | COUNTY ROADS | 0.7415066410 | $642,573 | $175,220 | $129.93 | | |
| ROADSCU | COUNTY ROADS TO CUR EXP | 0.0000000000 | $642,573 | $175,220 | $0.00 | | |
| HOSP2CASH | HOSP DIST #2 GENERAL | 0.0536075306 | $642,573 | $175,220 | $9.39 | | |
| SCH49CP | SCHOOL DIST #49 CAP PROJ | 0.0000000000 | $642,573 | $0 | $0.00 | | |
| SCH49MO | SCHOOL DIST #49 EP & O | 0.0000000000 | $642,573 | $0 | $0.00 | | |
| CONSERVE | CONSERVATION FUTURES | 0.0275621078 | $642,573 | $175,220 | $4.83 | | |
| EMS1 | FIRE DIST #1 EMS | 0.4679948282 | $642,573 | $175,220 | $82.00 | | |
| FD1 | FIRE DIST #1 GENERAL | 1.2171942929 | $642,573 | $175,220 | $213.28 | | |
| LIB1 | LIBRARY DIST #1 GENERAL | 0.2868827388 | $642,573 | $175,220 | $50.27 | | |
| PORTPT | PORT OF PT GENERAL | 0.1134941229 | $642,573 | $175,220 | $19.89 | | |
| PORTPTIDD | PORT OF PT IDD 2019 | 0.2577346692 | $642,573 | $175,220 | $45.16 | | |
| PUD1 | PUD #1 GENERAL | 0.0597888892 | $642,573 | $175,220 | $10.48 | | |
| STATE | STATE SCHOOL PART 1 | 1.4940692947 | $642,573 | $175,220 | $261.79 | | |
| STATE2 | STATE SCHOOL PART 2 | 0.0000000000 | $642,573 | $0 | $0.00 | | |
| | Total Tax Rate: | 5.6389992088 | | | | | |
| | | | | Taxes w/Current Exemptions: | $988.06 | | |
| | | | | Taxes w/o Exemptions: | $4,953.97 | | |
Improvement / Building
| Improvement #1: | Residential Bldg | State Code: | 11 | 2035.0 sqft | Value: | $490,323 |
| Bathrooms (#): | 2 (FULL) | Bathrooms (#): | 1 (HALF) | | Bedrooms (#): | 2 | Exterior Wall: | SI/ST | | Fireplace: | SIN 1-GOOD | Floor Construction: | FRAME | | Foundation: | CONPR | Heating/Cooling: | HPUMP | | Inside Verify: | YES-FIX | Roof Cover: | SHAKE |
|
| | Type | Description | Class CD | Sub Class CD | Year Built | Area |
| | MA | Main Area | 4+ | 1S | 1992 | 2035.0 |
| | PATIO | House Patio | 4 | 1S | 1992 | 280.0 |
| | HCPOR | House Concrete Porch | 4 | 1S | 1992 | 64.0 |
| | GATT | House Attached Garage | 4 | 1S | 1992 | 580.0 |
| | CONCD | Concrete Drive | 4 | 1S | 1992 | 540.0 |
Sketch
| No sketches available for this property. |
Property Image
Land
| 1 | 3351-1155L | | 0.0000 | 0.00 | 0.00 | 0.00 | 1.00 | $152,250 | $0 |
Roll Value History
| 2026 | N/A | N/A | N/A | N/A | N/A |
| 2025 | $490,323 | $152,250 | $0 | $642,573 | $175,220 |
| 2024 | $490,323 | $152,250 | $0 | $642,573 | $175,220 |
| 2023 | $469,005 | $140,000 | $0 | $609,005 | $175,220 |
| 2022 | $469,005 | $135,000 | $0 | $604,005 | $175,220 |
Deed and Sales History
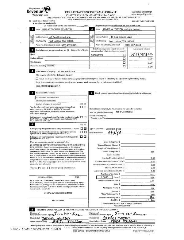
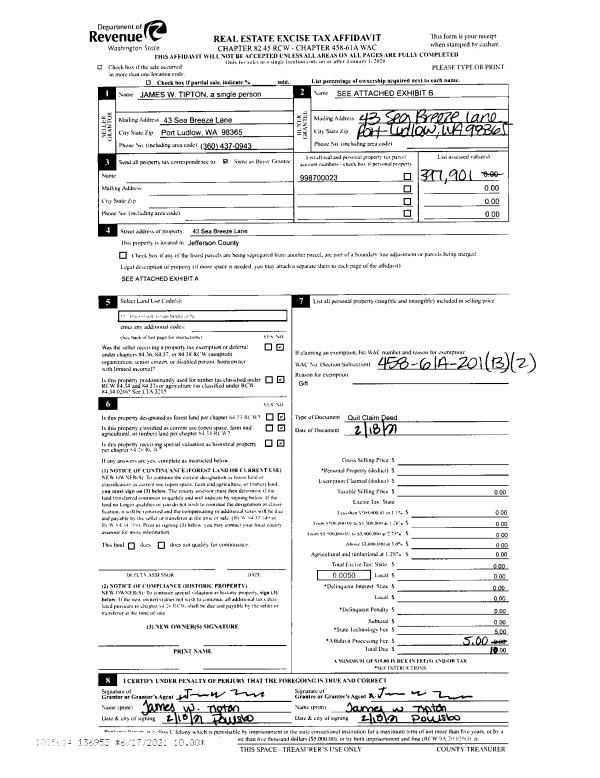
| 1 | 02/18/2021 | QCD | Quit Claim Deed | JAMES W TIPTON | JAMES W TIPTON | | | | 136953 | |
| 2 | 02/18/2021 | QCD | Quit Claim Deed | JAMES W TIPTON TRUSTEE | JAMES W TIPTON | | | | 136157 | |
| 3 | 08/18/2005 | TRED | Trustee Deed | TIPTON, JAMES W | TIPTON, JAMES W/TRUSTEE | 0 | 0 | $0.00 | 104521 | 0 |
| 4 | 05/13/2003 | QCD | Quit Claim Deed | FRANCHIK, CAROL/TRUST | TIPTON, JAMES W | 0 | 0 | $0.00 | 97683 | 0 |
| 5 | 05/13/2003 | QCD | Quit Claim Deed | FRANCHIK, CAROL/TRUST | TIPTON, JAMES W | 0 | 0 | $0.00 | 97692 | 0 |
| 6 | 11/05/1993 | QCD | Quit Claim Deed | TIPTON, CAROL FRANCHIK | FRANCHIK, CAROL/TRUST | 0 | 0 | $0.00 | 73066 | 0 |
| 7 | 11/24/1992 | SWD | Statutory Warranty Deed | POPE RESOURCES | VILLAGE HOMES INC | 0 | 0 | $7,812.00 | 70301 | 0 |
|   | |
Payout Agreement
| No payout information available.. |