Property
Account |
| Property ID: | 43449 | Abbreviated Legal Description: | TEAL LAKE VILLAGE LOT 24 (ENLG BY TAX 6) |
| Parcel # / Geo ID: | 998700024 | Agent Code: | |
| Type: | Real | | |
| Tax Area: | 0213 - 1-49F1E1H2L1 | Land Use Code | 11 |
| Open Space: | N | DFL | N |
| Historic Property: | N | Remodel Property: | N |
| Multi-Family Redevelopment: | N | | |
| Township: | 28N | Section: | 21 |
| Range: | 1E |
Location |
| Address: | 55 SEA BREEZE LN PORT LUDLOW, WA 98365 | Mapsco: | 134/023 |
| Neighborhood: | TEAL LAKE VILLAGE & FAIRWOOD VILLAGE | Map ID: | |
| Neighborhood CD: | 3351 |
Owner |
| Name: | BOZANICH TRUST AGREEMENT | Owner ID: | 11920 |
| Mailing Address: | RICHARD N BOZANICH TRUSTEE DEBORAH S BOZANICH TRUSTEE 55 SEA BREEZE LN PORT LUDLOW, WA 98365-9585 | % Ownership: | 100.0000000000% |
| | | Exemptions: | |
Pay Tax Due
Select the appropriate checkbox next to the year to be paid. Multiple years may be selected.
*Convenience Fee not included
Taxes and Assessment Details
Property Tax Information as of
03/10/2026
Click on "Statement Details" to expand or collapse a tax statement.
* Please enter a valid date ** Please enter a valid date *
Statement Details |
| 2026 | 32599 | STATE - STATE LEVY (SCHOOL) | $697.39 | $697.39 | $0.00 | $0.00 | $0.00 | $1394.78 |
| 2026 | 32599 | COUNTY - COUNTY LEVIES (CE, DD, VET, MH) | $278.81 | $278.81 | $0.00 | $0.00 | $0.00 | $557.62 |
| 2026 | 32599 | CONSERVE - CONSERVATION FUTURES | $8.36 | $8.36 | $0.00 | $0.00 | $0.00 | $16.72 |
| 2026 | 32599 | COROADS - COUNTY ROADS (ROADS, DIV TO CE) | $224.93 | $224.92 | $0.00 | $0.00 | $0.00 | $449.85 |
| 2026 | 32599 | PORTPT - PORT DISTRICT | $112.61 | $112.60 | $0.00 | $0.00 | $0.00 | $225.21 |
| 2026 | 32599 | PUD1 - PUD #1 | $18.14 | $18.13 | $0.00 | $0.00 | $0.00 | $36.27 |
| 2026 | 32599 | LIB1 - LIBRARY DIST #1 | $87.02 | $87.02 | $0.00 | $0.00 | $0.00 | $174.04 |
| 2026 | 32599 | HD2 - HOSP DIST #2 | $16.26 | $16.26 | $0.00 | $0.00 | $0.00 | $32.52 |
| 2026 | 32599 | SD49 - SCHOOL DIST #49 | $383.89 | $383.88 | $0.00 | $0.00 | $0.00 | $767.77 |
| 2026 | 32599 | FD1 - FIRE DISTRICT #1 | $369.22 | $369.21 | $0.00 | $0.00 | $0.00 | $738.43 |
| 2026 | 32599 | EMS1 - FIRE DIST #1 EMS | $141.96 | $141.96 | $0.00 | $0.00 | $0.00 | $283.92 |
| 2026 | 32599 | JCCD - JC Conservation District | $2.55 | $2.55 | $0.00 | $0.00 | $0.00 | $5.10 |
| 2026 | 32599 | NWA - Noxious Weed Assessment | $2.98 | $2.97 | $0.00 | $0.00 | $0.00 | $5.95 |
| 2026 | 32599 | TOTAL: | $2344.12 | $2344.06 | $0.00 | $0.00 | $0.00 | $4688.18 |
|
| 2026 | 32599 | $2344.12 | $2344.06 | $0.00 | $0.00 | $0.00 | $4688.18 |
Statement Details |
| 2025 | 32674 | STATE - STATE LEVY (SCHOOL) | $727.41 | $727.40 | $0.00 | $0.00 | $1454.81 | $0.00 |
| 2025 | 32674 | COUNTY - COUNTY LEVIES (CE, DD, VET, MH) | $286.05 | $286.05 | $0.00 | $0.00 | $572.10 | $0.00 |
| 2025 | 32674 | CONSERVE - CONSERVATION FUTURES | $8.58 | $8.57 | $0.00 | $0.00 | $17.15 | $0.00 |
| 2025 | 32674 | COROADS - COUNTY ROADS (ROADS, DIV TO CE) | $229.17 | $229.17 | $0.00 | $0.00 | $458.34 | $0.00 |
| 2025 | 32674 | PORTPT - PORT DISTRICT | $116.73 | $116.72 | $0.00 | $0.00 | $233.45 | $0.00 |
| 2025 | 32674 | PUD1 - PUD #1 | $18.72 | $18.71 | $0.00 | $0.00 | $37.43 | $0.00 |
| 2025 | 32674 | LIB1 - LIBRARY DIST #1 | $88.67 | $88.66 | $0.00 | $0.00 | $177.33 | $0.00 |
| 2025 | 32674 | HD2 - HOSP DIST #2 | $16.69 | $16.69 | $0.00 | $0.00 | $33.38 | $0.00 |
| 2025 | 32674 | SD49 - SCHOOL DIST #49 | $389.85 | $389.84 | $0.00 | $0.00 | $779.69 | $0.00 |
| 2025 | 32674 | FD1 - FIRE DISTRICT #1 | $377.47 | $377.47 | $0.00 | $0.00 | $754.94 | $0.00 |
| 2025 | 32674 | EMS1 - FIRE DIST #1 EMS | $145.19 | $145.18 | $0.00 | $0.00 | $290.37 | $0.00 |
| 2025 | 32674 | JCCD - JC Conservation District | $2.55 | $2.55 | $0.00 | $0.00 | $5.10 | $0.00 |
| 2025 | 32674 | NWA - Noxious Weed Assessment | $2.15 | $2.15 | $0.00 | $0.00 | $4.30 | $0.00 |
| 2025 | 32674 | TOTAL: | $2409.23 | $2409.16 | $0.00 | $0.00 | $4818.39 | $0.00 |
|
| 2025 | 32674 | $2409.23 | $2409.16 | $0.00 | $0.00 | $4818.39 | $0.00 |
Statement Details |
| 2024 | 32733 | STATE - STATE LEVY (SCHOOL) | $664.77 | $664.76 | $0.00 | $0.00 | $1329.53 | $0.00 |
| 2024 | 32733 | COUNTY - COUNTY LEVIES (CE, DD, VET, MH) | $284.47 | $284.44 | $0.00 | $0.00 | $568.91 | $0.00 |
| 2024 | 32733 | CONSERVE - CONSERVATION FUTURES | $8.53 | $8.53 | $0.00 | $0.00 | $17.06 | $0.00 |
| 2024 | 32733 | COROADS - COUNTY ROADS (ROADS, DIV TO CE) | $228.90 | $228.89 | $0.00 | $0.00 | $457.79 | $0.00 |
| 2024 | 32733 | PORTPT - PORT DISTRICT | $117.50 | $117.49 | $0.00 | $0.00 | $234.99 | $0.00 |
| 2024 | 32733 | PUD1 - PUD #1 | $18.69 | $18.68 | $0.00 | $0.00 | $37.37 | $0.00 |
| 2024 | 32733 | LIB1 - LIBRARY DIST #1 | $88.56 | $88.56 | $0.00 | $0.00 | $177.12 | $0.00 |
| 2024 | 32733 | HD2 - HOSP DIST #2 | $16.60 | $16.60 | $0.00 | $0.00 | $33.20 | $0.00 |
| 2024 | 32733 | SD49 - SCHOOL DIST #49 | $296.86 | $296.84 | $0.00 | $0.00 | $593.70 | $0.00 |
| 2024 | 32733 | FD1 - FIRE DISTRICT #1 | $376.13 | $376.12 | $0.00 | $0.00 | $752.25 | $0.00 |
| 2024 | 32733 | EMS1 - FIRE DIST #1 EMS | $143.67 | $143.66 | $0.00 | $0.00 | $287.33 | $0.00 |
| 2024 | 32733 | JCCD - JC Conservation District | $2.55 | $2.55 | $0.00 | $0.00 | $5.10 | $0.00 |
| 2024 | 32733 | NWA - Noxious Weed Assessment | $2.15 | $2.15 | $0.00 | $0.00 | $4.30 | $0.00 |
| 2024 | 32733 | TOTAL: | $2249.38 | $2249.27 | $0.00 | $0.00 | $4498.65 | $0.00 |
|
| 2024 | 32733 | $2249.38 | $2249.27 | $0.00 | $0.00 | $4498.65 | $0.00 |
Statement Details |
| 2023 | 32775 | STATE - STATE LEVY (SCHOOL) | $670.54 | $670.53 | $0.00 | $0.00 | $1341.07 | $0.00 |
| 2023 | 32775 | COUNTY - COUNTY LEVIES (CE, DD, VET, MH) | $292.60 | $292.59 | $0.00 | $0.00 | $585.19 | $0.00 |
| 2023 | 32775 | CONSERVE - CONSERVATION FUTURES | $8.78 | $8.77 | $0.00 | $0.00 | $17.55 | $0.00 |
| 2023 | 32775 | COROADS - COUNTY ROADS (ROADS, DIV TO CE) | $236.74 | $236.73 | $0.00 | $0.00 | $473.47 | $0.00 |
| 2023 | 32775 | PORTPT - PORT DISTRICT | $123.26 | $123.26 | $0.00 | $0.00 | $246.52 | $0.00 |
| 2023 | 32775 | PUD1 - PUD #1 | $19.40 | $19.39 | $0.00 | $0.00 | $38.79 | $0.00 |
| 2023 | 32775 | LIB1 - LIBRARY DIST #1 | $91.59 | $91.59 | $0.00 | $0.00 | $183.18 | $0.00 |
| 2023 | 32775 | HD2 - HOSP DIST #2 | $17.08 | $17.07 | $0.00 | $0.00 | $34.15 | $0.00 |
| 2023 | 32775 | SD49 - SCHOOL DIST #49 | $313.44 | $313.43 | $0.00 | $0.00 | $626.87 | $0.00 |
| 2023 | 32775 | FD3 - FIRE DISTRICT #3 | $291.10 | $291.09 | $0.00 | $0.00 | $582.19 | $0.00 |
| 2023 | 32775 | EMS3 - FIRE DIST #3 EMS | $104.07 | $104.07 | $0.00 | $0.00 | $208.14 | $0.00 |
| 2023 | 32775 | JCCD - JC Conservation District | $2.55 | $2.55 | $0.00 | $0.00 | $5.10 | $0.00 |
| 2023 | 32775 | NWA - Noxious Weed Assessment | $2.15 | $2.15 | $0.00 | $0.00 | $4.30 | $0.00 |
| 2023 | 32775 | TOTAL: | $2173.30 | $2173.22 | $0.00 | $0.00 | $4346.52 | $0.00 |
|
| 2023 | 32775 | $2173.30 | $2173.22 | $0.00 | $0.00 | $4346.52 | $0.00 |
Values
| (+) Improvement Homesite Value: | + | $0 | |
| (+) Improvement Non-Homesite Value: | + | $454,417 | |
| (+) Land Homesite Value: | + | $0 | |
| (+) Land Non-Homesite Value: | + | $152,250 | |
| (+) Curr Use (HS): | + | $0 | $0 |
| (+) Curr Use (NHS): | + | $0 | $0 |
| | | -------------------------- | |
| (=) Market Value: | = | $606,667 | |
| (–) Productivity Loss: | – | $0 | |
| | | -------------------------- | |
| (=) Subtotal: | = | $606,667 | |
| (+) Senior Appraised Value: | + | $0 | |
| (+) Non-Senior Appraised Value: | + | $606,667 | |
| | | -------------------------- | |
| (=) Total Appraised Value: | = | $606,667 | |
| (–) Senior Exemption Loss: | – | $0 | |
| (–) Exemption Loss: | – | $0 | |
| | | -------------------------- | |
| (=) Taxable Value: | = | $606,667 | |
Taxing Jurisdiction
| Owner: | BOZANICH TRUST AGREEMENT | | |
| % Ownership: | 100.0000000000% | | |
| Total Value: | $606,667 | | |
| Tax Area: | 0213 - 1-49F1E1H2L1 |
| CE | COUNTY CURRENT EXPENSE | 0.9034619479 | $606,667 | $606,667 | $548.10 | | |
| CNTYDD | DEVELOPMENTAL DISABILITIES | 0.0052121823 | $606,667 | $606,667 | $3.16 | | |
| CNTYVET | VETERANS RELIEF | 0.0052777810 | $606,667 | $606,667 | $3.20 | | |
| MENTAL | MENTAL HEALTH | 0.0052121823 | $606,667 | $606,667 | $3.16 | | |
| ROADS | COUNTY ROADS | 0.7415066410 | $606,667 | $606,667 | $449.85 | | |
| ROADSCU | COUNTY ROADS TO CUR EXP | 0.0000000000 | $606,667 | $606,667 | $0.00 | | |
| HOSP2CASH | HOSP DIST #2 GENERAL | 0.0536075306 | $606,667 | $606,667 | $32.52 | | |
| SCH49CP | SCHOOL DIST #49 CAP PROJ | 0.6279093905 | $606,667 | $606,667 | $380.93 | | |
| SCH49MO | SCHOOL DIST #49 EP & O | 0.6376483602 | $606,667 | $606,667 | $386.84 | | |
| CONSERVE | CONSERVATION FUTURES | 0.0275621078 | $606,667 | $606,667 | $16.72 | | |
| EMS1 | FIRE DIST #1 EMS | 0.4679948282 | $606,667 | $606,667 | $283.92 | | |
| FD1 | FIRE DIST #1 GENERAL | 1.2171942929 | $606,667 | $606,667 | $738.43 | | |
| LIB1 | LIBRARY DIST #1 GENERAL | 0.2868827388 | $606,667 | $606,667 | $174.04 | | |
| PORTPT | PORT OF PT GENERAL | 0.1134941229 | $606,667 | $606,667 | $68.85 | | |
| PORTPTIDD | PORT OF PT IDD 2019 | 0.2577346692 | $606,667 | $606,667 | $156.36 | | |
| PUD1 | PUD #1 GENERAL | 0.0597888892 | $606,667 | $606,667 | $36.27 | | |
| STATE | STATE SCHOOL PART 1 | 1.4940692947 | $606,667 | $606,667 | $906.40 | | |
| STATE2 | STATE SCHOOL PART 2 | 0.8050170049 | $606,667 | $606,667 | $488.38 | | |
| | Total Tax Rate: | 7.7095739644 | | | | | |
| | | | | Taxes w/Current Exemptions: | $4,677.13 | | |
| | | | | Taxes w/o Exemptions: | $4,677.13 | | |
Improvement / Building
| Improvement #1: | Residential Bldg | State Code: | 11 | 1842.0 sqft | Value: | $454,417 |
| Bathrooms (#): | 2 (FULL) | Bathrooms (#): | 1 (HALF) | | Bedrooms (#): | 2 | Exterior Wall: | SI/ST | | Fireplace: | SIN 1-GOOD | Floor Construction: | FRAME | | Foundation: | CONPR | Heating/Cooling: | HPUMP | | Inside Verify: | YES-FIX | Roof Cover: | SHAKE |
|
| | Type | Description | Class CD | Sub Class CD | Year Built | Area |
| | MA | Main Area | 4+ | 1S | 1992 | 1842.0 |
| | HCPOR | House Concrete Porch | 4 | 1S | 1992 | 64.0 |
| | HDECK | House Deck | 4 | 1S | 1992 | 595.0 |
| | GATT | House Attached Garage | 4 | 1S | 1992 | 569.0 |
| | CONCD | Concrete Drive | 4 | 1S | 1992 | 1330.0 |
Sketch
| No sketches available for this property. |
Property Image
Land
| 1 | 3351-1155L | | 0.0000 | 0.00 | 0.00 | 0.00 | 1.00 | $152,250 | $0 |
Roll Value History
| 2026 | N/A | N/A | N/A | N/A | N/A |
| 2025 | $454,417 | $152,250 | $0 | $606,667 | $606,667 |
| 2024 | $454,417 | $152,250 | $0 | $606,667 | $606,667 |
| 2023 | $434,660 | $140,000 | $0 | $574,660 | $574,660 |
| 2022 | $434,660 | $135,000 | $0 | $569,660 | $569,660 |
Deed and Sales History
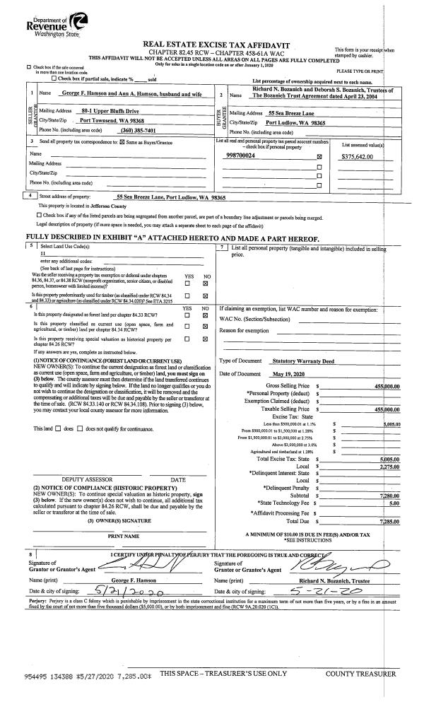
| 1 | 05/19/2020 | SWD | Statutory Warranty Deed | GEORGE F HAMSON | BOZANICH TRUST AGREEMENT | | | $455,000.00 | 134388 | |
| 2 | 05/19/2020 | SWD | Statutory Warranty Deed | | | | | | 134497 | |
| 3 | 10/21/2003 | SWD | Statutory Warranty Deed | PEINE, ROBERT H, SWENSON, | HAMSON, GEORGE F/ANN A | 0 | 0 | $278,500.00 | 98678 | 0 |
| 4 | 11/16/1999 | QCD | Quit Claim Deed | PEINE, ROBERT H & SWENSON | PEINE, ROBERT H & SWENSEON, KA | 0 | 0 | $0.00 | 88345 | 0 |
| 5 | 06/10/1993 | SWD | Statutory Warranty Deed | POPE RESOURCES | VILLAGE HOMES, INC | 0 | 0 | $4,048.00 | 71452 | 0 |
| 6 | 06/10/1993 | SWD | Statutory Warranty Deed | VILLAGE HOMES, INC | PEINIE, R/SWENSEN, K | 0 | 0 | $264,995.00 | 71431 | 0 |
| 7 | 11/24/1992 | SWD | Statutory Warranty Deed | POPE RESOURCES | VILLAGE HOMES INC | 0 | 0 | $7,812.00 | 70301 | 0 |
|   | |
Payout Agreement
| No payout information available.. |