| 1 | 09/01/2021 | TRED | Trustee Deed | ROBERT V CARLSON REV TRUST | REGINA ANDREASSON LIVING TRUST | | | | 137764 | |
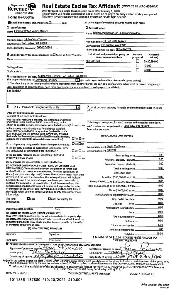
| 2 | 08/25/2021 | DTH CERT | Death Certificate | ROBERT VERNON CARLSON | | | | | 137880 | |
| 3 | 06/23/2005 | SWD | Statutory Warranty Deed | SABER, GERALD W/CAROL HIG | CARLSON, ROBERT/TRUST | | | $522,500.00 | 104053 | 0 |
| 4 | 05/16/2003 | TRED | Trustee Deed | SABER, GERALD W/HIGLEY, C | SABER REV TRUST, GERALD W | 0 | 0 | $0.00 | 97313 | 0 |
| 5 | 05/16/2003 | TRED | Trustee Deed | SABER, GERALD W/CAROL HIG | SABER REV TRUST, CAROL HIGLEY | 0 | 0 | $0.00 | 97314 | 0 |
| 6 | 04/14/1994 | SWD | Statutory Warranty Deed | VILLAGE HOMES INC | SABER, GERALD W/CAROL HIGLEY | 0 | 0 | $317,990.00 | 73842 | 0 |
| 7 | 08/09/1993 | SWD | Statutory Warranty Deed | POPE RESOURCES | VILLAGE HOMES, INC | 0 | 0 | $64,500.00 | 71854 | 0 |
| 8 | 08/09/1993 | SWD | Statutory Warranty Deed | POPE RESOURCES | VILLAGE HOMES INC | 0 | 0 | $18,357.00 | 73840 | 0 |