Property
Account |
| Property ID: | 43482 | Abbreviated Legal Description: | TEAL LAKE VILLAGE LOT 57 |
| Parcel # / Geo ID: | 998700057 | Agent Code: | |
| Type: | Real | | |
| Tax Area: | 0213 - 1-49F1E1H2L1 | Land Use Code | 11 |
| Open Space: | N | DFL | N |
| Historic Property: | N | Remodel Property: | N |
| Multi-Family Redevelopment: | N | | |
| Township: | 28N | Section: | 21 |
| Range: | 1E |
Location |
| Address: | 23 SEAWAY PL PORT LUDLOW, WA 98365 | Mapsco: | 135/007 |
| Neighborhood: | TEAL LAKE VILLAGE & FAIRWOOD VILLAGE | Map ID: | |
| Neighborhood CD: | 3351 |
Owner |
| Name: | BRENDA A HAJEC TRUST | Owner ID: | 113676 |
| Mailing Address: | BRENDA A HAJEC TRUSTEE 23 SEAWAY PL PORT LUDLOW, WA 98365-8751 | % Ownership: | 100.0000000000% |
| | | Exemptions: | |
Pay Tax Due
Select the appropriate checkbox next to the year to be paid. Multiple years may be selected.
*Convenience Fee not included
Taxes and Assessment Details
Property Tax Information as of
03/11/2026
Click on "Statement Details" to expand or collapse a tax statement.
* Please enter a valid date ** Please enter a valid date *
Statement Details |
| 2026 | 32632 | STATE - STATE LEVY (SCHOOL) | $662.44 | $662.44 | $0.00 | $0.00 | $0.00 | $1324.88 |
| 2026 | 32632 | COUNTY - COUNTY LEVIES (CE, DD, VET, MH) | $264.84 | $264.83 | $0.00 | $0.00 | $0.00 | $529.67 |
| 2026 | 32632 | CONSERVE - CONSERVATION FUTURES | $7.94 | $7.94 | $0.00 | $0.00 | $0.00 | $15.88 |
| 2026 | 32632 | COROADS - COUNTY ROADS (ROADS, DIV TO CE) | $213.65 | $213.65 | $0.00 | $0.00 | $0.00 | $427.30 |
| 2026 | 32632 | PORTPT - PORT DISTRICT | $106.96 | $106.96 | $0.00 | $0.00 | $0.00 | $213.92 |
| 2026 | 32632 | PUD1 - PUD #1 | $17.23 | $17.22 | $0.00 | $0.00 | $0.00 | $34.45 |
| 2026 | 32632 | LIB1 - LIBRARY DIST #1 | $82.66 | $82.66 | $0.00 | $0.00 | $0.00 | $165.32 |
| 2026 | 32632 | HD2 - HOSP DIST #2 | $15.45 | $15.44 | $0.00 | $0.00 | $0.00 | $30.89 |
| 2026 | 32632 | SD49 - SCHOOL DIST #49 | $364.65 | $364.64 | $0.00 | $0.00 | $0.00 | $729.29 |
| 2026 | 32632 | FD1 - FIRE DISTRICT #1 | $350.71 | $350.71 | $0.00 | $0.00 | $0.00 | $701.42 |
| 2026 | 32632 | EMS1 - FIRE DIST #1 EMS | $134.85 | $134.84 | $0.00 | $0.00 | $0.00 | $269.69 |
| 2026 | 32632 | JCCD - JC Conservation District | $2.55 | $2.55 | $0.00 | $0.00 | $0.00 | $5.10 |
| 2026 | 32632 | NWA - Noxious Weed Assessment | $2.98 | $2.97 | $0.00 | $0.00 | $0.00 | $5.95 |
| 2026 | 32632 | TOTAL: | $2226.91 | $2226.85 | $0.00 | $0.00 | $0.00 | $4453.76 |
|
| 2026 | 32632 | $2226.91 | $2226.85 | $0.00 | $0.00 | $0.00 | $4453.76 |
Statement Details |
| 2025 | 32707 | STATE - STATE LEVY (SCHOOL) | $690.95 | $690.94 | $0.00 | $0.00 | $1381.89 | $0.00 |
| 2025 | 32707 | COUNTY - COUNTY LEVIES (CE, DD, VET, MH) | $271.72 | $271.69 | $0.00 | $0.00 | $543.41 | $0.00 |
| 2025 | 32707 | CONSERVE - CONSERVATION FUTURES | $8.15 | $8.15 | $0.00 | $0.00 | $16.30 | $0.00 |
| 2025 | 32707 | COROADS - COUNTY ROADS (ROADS, DIV TO CE) | $217.68 | $217.68 | $0.00 | $0.00 | $435.36 | $0.00 |
| 2025 | 32707 | PORTPT - PORT DISTRICT | $110.88 | $110.87 | $0.00 | $0.00 | $221.75 | $0.00 |
| 2025 | 32707 | PUD1 - PUD #1 | $17.78 | $17.78 | $0.00 | $0.00 | $35.56 | $0.00 |
| 2025 | 32707 | LIB1 - LIBRARY DIST #1 | $84.22 | $84.22 | $0.00 | $0.00 | $168.44 | $0.00 |
| 2025 | 32707 | HD2 - HOSP DIST #2 | $15.85 | $15.85 | $0.00 | $0.00 | $31.70 | $0.00 |
| 2025 | 32707 | SD49 - SCHOOL DIST #49 | $370.31 | $370.30 | $0.00 | $0.00 | $740.61 | $0.00 |
| 2025 | 32707 | FD1 - FIRE DISTRICT #1 | $358.55 | $358.55 | $0.00 | $0.00 | $717.10 | $0.00 |
| 2025 | 32707 | EMS1 - FIRE DIST #1 EMS | $137.91 | $137.91 | $0.00 | $0.00 | $275.82 | $0.00 |
| 2025 | 32707 | JCCD - JC Conservation District | $2.55 | $2.55 | $0.00 | $0.00 | $5.10 | $0.00 |
| 2025 | 32707 | NWA - Noxious Weed Assessment | $2.15 | $2.15 | $0.00 | $0.00 | $4.30 | $0.00 |
| 2025 | 32707 | TOTAL: | $2288.70 | $2288.64 | $0.00 | $0.00 | $4577.34 | $0.00 |
|
| 2025 | 32707 | $2288.70 | $2288.64 | $0.00 | $0.00 | $4577.34 | $0.00 |
Statement Details |
| 2024 | 32766 | STATE - STATE LEVY (SCHOOL) | $631.28 | $631.27 | $0.00 | $0.00 | $1262.55 | $0.00 |
| 2024 | 32766 | COUNTY - COUNTY LEVIES (CE, DD, VET, MH) | $270.15 | $270.11 | $0.00 | $0.00 | $540.26 | $0.00 |
| 2024 | 32766 | CONSERVE - CONSERVATION FUTURES | $8.10 | $8.10 | $0.00 | $0.00 | $16.20 | $0.00 |
| 2024 | 32766 | COROADS - COUNTY ROADS (ROADS, DIV TO CE) | $217.37 | $217.36 | $0.00 | $0.00 | $434.73 | $0.00 |
| 2024 | 32766 | PORTPT - PORT DISTRICT | $111.58 | $111.57 | $0.00 | $0.00 | $223.15 | $0.00 |
| 2024 | 32766 | PUD1 - PUD #1 | $17.75 | $17.74 | $0.00 | $0.00 | $35.49 | $0.00 |
| 2024 | 32766 | LIB1 - LIBRARY DIST #1 | $84.10 | $84.09 | $0.00 | $0.00 | $168.19 | $0.00 |
| 2024 | 32766 | HD2 - HOSP DIST #2 | $15.76 | $15.76 | $0.00 | $0.00 | $31.52 | $0.00 |
| 2024 | 32766 | SD49 - SCHOOL DIST #49 | $281.90 | $281.89 | $0.00 | $0.00 | $563.79 | $0.00 |
| 2024 | 32766 | FD1 - FIRE DISTRICT #1 | $357.18 | $357.17 | $0.00 | $0.00 | $714.35 | $0.00 |
| 2024 | 32766 | EMS1 - FIRE DIST #1 EMS | $136.43 | $136.42 | $0.00 | $0.00 | $272.85 | $0.00 |
| 2024 | 32766 | JCCD - JC Conservation District | $2.55 | $2.55 | $0.00 | $0.00 | $5.10 | $0.00 |
| 2024 | 32766 | NWA - Noxious Weed Assessment | $2.15 | $2.15 | $0.00 | $0.00 | $4.30 | $0.00 |
| 2024 | 32766 | TOTAL: | $2136.30 | $2136.18 | $0.00 | $0.00 | $4272.48 | $0.00 |
|
| 2024 | 32766 | $2136.30 | $2136.18 | $0.00 | $0.00 | $4272.48 | $0.00 |
Statement Details |
| 2023 | 32808 | STATE - STATE LEVY (SCHOOL) | $636.46 | $636.45 | $0.00 | $0.00 | $1272.91 | $0.00 |
| 2023 | 32808 | COUNTY - COUNTY LEVIES (CE, DD, VET, MH) | $277.74 | $277.71 | $0.00 | $0.00 | $555.45 | $0.00 |
| 2023 | 32808 | CONSERVE - CONSERVATION FUTURES | $8.33 | $8.33 | $0.00 | $0.00 | $16.66 | $0.00 |
| 2023 | 32808 | COROADS - COUNTY ROADS (ROADS, DIV TO CE) | $224.71 | $224.69 | $0.00 | $0.00 | $449.40 | $0.00 |
| 2023 | 32808 | PORTPT - PORT DISTRICT | $117.00 | $116.99 | $0.00 | $0.00 | $233.99 | $0.00 |
| 2023 | 32808 | PUD1 - PUD #1 | $18.41 | $18.41 | $0.00 | $0.00 | $36.82 | $0.00 |
| 2023 | 32808 | LIB1 - LIBRARY DIST #1 | $86.94 | $86.93 | $0.00 | $0.00 | $173.87 | $0.00 |
| 2023 | 32808 | HD2 - HOSP DIST #2 | $16.21 | $16.20 | $0.00 | $0.00 | $32.41 | $0.00 |
| 2023 | 32808 | SD49 - SCHOOL DIST #49 | $297.52 | $297.50 | $0.00 | $0.00 | $595.02 | $0.00 |
| 2023 | 32808 | FD3 - FIRE DISTRICT #3 | $276.30 | $276.30 | $0.00 | $0.00 | $552.60 | $0.00 |
| 2023 | 32808 | EMS3 - FIRE DIST #3 EMS | $98.78 | $98.78 | $0.00 | $0.00 | $197.56 | $0.00 |
| 2023 | 32808 | JCCD - JC Conservation District | $2.55 | $2.55 | $0.00 | $0.00 | $5.10 | $0.00 |
| 2023 | 32808 | NWA - Noxious Weed Assessment | $2.15 | $2.15 | $0.00 | $0.00 | $4.30 | $0.00 |
| 2023 | 32808 | TOTAL: | $2063.10 | $2062.99 | $0.00 | $0.00 | $4126.09 | $0.00 |
|
| 2023 | 32808 | $2063.10 | $2062.99 | $0.00 | $0.00 | $4126.09 | $0.00 |
Values
| (+) Improvement Homesite Value: | + | $0 | |
| (+) Improvement Non-Homesite Value: | + | $455,512 | |
| (+) Land Homesite Value: | + | $0 | |
| (+) Land Non-Homesite Value: | + | $120,750 | |
| (+) Curr Use (HS): | + | $0 | $0 |
| (+) Curr Use (NHS): | + | $0 | $0 |
| | | -------------------------- | |
| (=) Market Value: | = | $576,262 | |
| (–) Productivity Loss: | – | $0 | |
| | | -------------------------- | |
| (=) Subtotal: | = | $576,262 | |
| (+) Senior Appraised Value: | + | $0 | |
| (+) Non-Senior Appraised Value: | + | $576,262 | |
| | | -------------------------- | |
| (=) Total Appraised Value: | = | $576,262 | |
| (–) Senior Exemption Loss: | – | $0 | |
| (–) Exemption Loss: | – | $0 | |
| | | -------------------------- | |
| (=) Taxable Value: | = | $576,262 | |
Taxing Jurisdiction
| Owner: | BRENDA A HAJEC TRUST | | |
| % Ownership: | 100.0000000000% | | |
| Total Value: | $576,262 | | |
| Tax Area: | 0213 - 1-49F1E1H2L1 |
| CE | COUNTY CURRENT EXPENSE | 0.9034619479 | $576,262 | $576,262 | $520.63 | | |
| CNTYDD | DEVELOPMENTAL DISABILITIES | 0.0052121823 | $576,262 | $576,262 | $3.00 | | |
| CNTYVET | VETERANS RELIEF | 0.0052777810 | $576,262 | $576,262 | $3.04 | | |
| MENTAL | MENTAL HEALTH | 0.0052121823 | $576,262 | $576,262 | $3.00 | | |
| ROADS | COUNTY ROADS | 0.7415066410 | $576,262 | $576,262 | $427.30 | | |
| ROADSCU | COUNTY ROADS TO CUR EXP | 0.0000000000 | $576,262 | $576,262 | $0.00 | | |
| HOSP2CASH | HOSP DIST #2 GENERAL | 0.0536075306 | $576,262 | $576,262 | $30.89 | | |
| SCH49CP | SCHOOL DIST #49 CAP PROJ | 0.6279093905 | $576,262 | $576,262 | $361.84 | | |
| SCH49MO | SCHOOL DIST #49 EP & O | 0.6376483602 | $576,262 | $576,262 | $367.45 | | |
| CONSERVE | CONSERVATION FUTURES | 0.0275621078 | $576,262 | $576,262 | $15.88 | | |
| EMS1 | FIRE DIST #1 EMS | 0.4679948282 | $576,262 | $576,262 | $269.69 | | |
| FD1 | FIRE DIST #1 GENERAL | 1.2171942929 | $576,262 | $576,262 | $701.42 | | |
| LIB1 | LIBRARY DIST #1 GENERAL | 0.2868827388 | $576,262 | $576,262 | $165.32 | | |
| PORTPT | PORT OF PT GENERAL | 0.1134941229 | $576,262 | $576,262 | $65.40 | | |
| PORTPTIDD | PORT OF PT IDD 2019 | 0.2577346692 | $576,262 | $576,262 | $148.52 | | |
| PUD1 | PUD #1 GENERAL | 0.0597888892 | $576,262 | $576,262 | $34.45 | | |
| STATE | STATE SCHOOL PART 1 | 1.4940692947 | $576,262 | $576,262 | $860.98 | | |
| STATE2 | STATE SCHOOL PART 2 | 0.8050170049 | $576,262 | $576,262 | $463.90 | | |
| | Total Tax Rate: | 7.7095739644 | | | | | |
| | | | | Taxes w/Current Exemptions: | $4,442.71 | | |
| | | | | Taxes w/o Exemptions: | $4,442.71 | | |
Improvement / Building
| Improvement #1: | Residential Bldg | State Code: | 11 | 1872.0 sqft | Value: | $455,512 |
| Bathrooms (#): | 2 (FULL) | Bedrooms (#): | 2 | | Exterior Wall: | SI/ST | Fireplace: | SIN 1-GOOD | | Floor Construction: | FRAME | Foundation: | CONPR | | Heating/Cooling: | HPUMP | Inside Verify: | YES | | Roof Cover: | COMP |   |   |
|
| | Type | Description | Class CD | Sub Class CD | Year Built | Area |
| | MA | Main Area | 4+ | 1S | 1996 | 1872.0 |
| | HCPOR | House Concrete Porch | 4 | 1S | 1996 | 104.0 |
| | HDECK | House Deck | 4 | 1S | 1996 | 450.0 |
| | GATT | House Attached Garage | 4 | 1S | 1996 | 441.0 |
| | CONCD | Concrete Drive | 4 | 1S | 1996 | 400.0 |
Sketch
| No sketches available for this property. |
Property Image
Land
| 1 | 3351-1165L | | 0.0000 | 0.00 | 0.00 | 0.00 | 1.00 | $120,750 | $0 |
Roll Value History
| 2026 | N/A | N/A | N/A | N/A | N/A |
| 2025 | $455,512 | $120,750 | $0 | $576,262 | $576,262 |
| 2024 | $455,512 | $120,750 | $0 | $576,262 | $576,262 |
| 2023 | $435,707 | $110,000 | $0 | $545,707 | $545,707 |
| 2022 | $435,707 | $105,000 | $0 | $540,707 | $540,707 |
Deed and Sales History
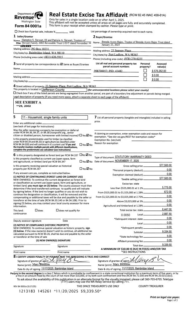
| 1 | 11/17/2025 | SWD | Statutory Warranty Deed | STEWART FAMILY 2002 REVOCABLE TRUST | BRENDA A HAJEC TRUST | | | $577,500.00 | 145261 | |
| 2 | 07/11/2023 | SWD | Statutory Warranty Deed | STEVEN H & LOIS J HAMMOND | STEWART FAMILY 2002 REVOCABLE TRUST | | | $610,000.00 | 141249 | |
| 3 | 07/20/2015 | SWD | Statutory Warranty Deed | DONALD C OLSEN | STEVEN H & LOIS J HAMMOND | | | $275,000.00 | 123616 | |
| 4 | 07/09/1998 | SWD | Statutory Warranty Deed | POPE RESOURCES | OLSEN, DONALD C/GLADYCE M | 0 | 0 | $210,000.00 | 84886 | 0 |
Payout Agreement
| No payout information available.. |