Property
Account |
| Property ID: | 43523 | Abbreviated Legal Description: | TEAL LAKE VILLAGE LOT 98 |
| Parcel # / Geo ID: | 998700098 | Agent Code: | |
| Type: | Real | | |
| Tax Area: | 0213 - 1-49F1E1H2L1 | Land Use Code | 11 |
| Open Space: | N | DFL | N |
| Historic Property: | N | Remodel Property: | N |
| Multi-Family Redevelopment: | N | | |
| Township: | 28N | Section: | 21 |
| Range: | 1E |
Location |
| Address: | 113 OUTLOOK LN PORT LUDLOW, WA 98365 | Mapsco: | 135/048 |
| Neighborhood: | TEAL LAKE VILLAGE & FAIRWOOD VILLAGE | Map ID: | |
| Neighborhood CD: | 3351 |
Owner |
| Name: | TIFFANY D & DAVID A KRAMER | Owner ID: | 108936 |
| Mailing Address: | 113 OUTLOOK LN PORT LUDLOW, WA 98365-8004 | % Ownership: | 100.0000000000% |
| | | Exemptions: | |
Pay Tax Due
Select the appropriate checkbox next to the year to be paid. Multiple years may be selected.
*Convenience Fee not included
Taxes and Assessment Details
Property Tax Information as of
03/10/2026
Click on "Statement Details" to expand or collapse a tax statement.
* Please enter a valid date ** Please enter a valid date *
Statement Details |
| 2026 | 32673 | STATE - STATE LEVY (SCHOOL) | $849.46 | $849.45 | $0.00 | $0.00 | $0.00 | $1698.91 |
| 2026 | 32673 | COUNTY - COUNTY LEVIES (CE, DD, VET, MH) | $339.62 | $339.59 | $0.00 | $0.00 | $0.00 | $679.21 |
| 2026 | 32673 | CONSERVE - CONSERVATION FUTURES | $10.19 | $10.18 | $0.00 | $0.00 | $0.00 | $20.37 |
| 2026 | 32673 | COROADS - COUNTY ROADS (ROADS, DIV TO CE) | $273.97 | $273.97 | $0.00 | $0.00 | $0.00 | $547.94 |
| 2026 | 32673 | PORTPT - PORT DISTRICT | $137.17 | $137.15 | $0.00 | $0.00 | $0.00 | $274.32 |
| 2026 | 32673 | PUD1 - PUD #1 | $22.09 | $22.09 | $0.00 | $0.00 | $0.00 | $44.18 |
| 2026 | 32673 | LIB1 - LIBRARY DIST #1 | $106.00 | $105.99 | $0.00 | $0.00 | $0.00 | $211.99 |
| 2026 | 32673 | HD2 - HOSP DIST #2 | $19.81 | $19.80 | $0.00 | $0.00 | $0.00 | $39.61 |
| 2026 | 32673 | SD49 - SCHOOL DIST #49 | $467.60 | $467.58 | $0.00 | $0.00 | $0.00 | $935.18 |
| 2026 | 32673 | FD1 - FIRE DISTRICT #1 | $449.73 | $449.72 | $0.00 | $0.00 | $0.00 | $899.45 |
| 2026 | 32673 | EMS1 - FIRE DIST #1 EMS | $172.92 | $172.91 | $0.00 | $0.00 | $0.00 | $345.83 |
| 2026 | 32673 | JCCD - JC Conservation District | $2.55 | $2.55 | $0.00 | $0.00 | $0.00 | $5.10 |
| 2026 | 32673 | NWA - Noxious Weed Assessment | $2.98 | $2.97 | $0.00 | $0.00 | $0.00 | $5.95 |
| 2026 | 32673 | TOTAL: | $2854.09 | $2853.95 | $0.00 | $0.00 | $0.00 | $5708.04 |
|
| 2026 | 32673 | $2854.09 | $2853.95 | $0.00 | $0.00 | $0.00 | $5708.04 |
Statement Details |
| 2025 | 32748 | STATE - STATE LEVY (SCHOOL) | $886.01 | $886.01 | $0.00 | $0.00 | $1772.02 | $0.00 |
| 2025 | 32748 | COUNTY - COUNTY LEVIES (CE, DD, VET, MH) | $348.42 | $348.41 | $0.00 | $0.00 | $696.83 | $0.00 |
| 2025 | 32748 | CONSERVE - CONSERVATION FUTURES | $10.45 | $10.45 | $0.00 | $0.00 | $20.90 | $0.00 |
| 2025 | 32748 | COROADS - COUNTY ROADS (ROADS, DIV TO CE) | $279.14 | $279.14 | $0.00 | $0.00 | $558.28 | $0.00 |
| 2025 | 32748 | PORTPT - PORT DISTRICT | $142.18 | $142.17 | $0.00 | $0.00 | $284.35 | $0.00 |
| 2025 | 32748 | PUD1 - PUD #1 | $22.80 | $22.80 | $0.00 | $0.00 | $45.60 | $0.00 |
| 2025 | 32748 | LIB1 - LIBRARY DIST #1 | $108.00 | $107.99 | $0.00 | $0.00 | $215.99 | $0.00 |
| 2025 | 32748 | HD2 - HOSP DIST #2 | $20.33 | $20.33 | $0.00 | $0.00 | $40.66 | $0.00 |
| 2025 | 32748 | SD49 - SCHOOL DIST #49 | $474.85 | $474.85 | $0.00 | $0.00 | $949.70 | $0.00 |
| 2025 | 32748 | FD1 - FIRE DISTRICT #1 | $459.78 | $459.77 | $0.00 | $0.00 | $919.55 | $0.00 |
| 2025 | 32748 | EMS1 - FIRE DIST #1 EMS | $176.84 | $176.84 | $0.00 | $0.00 | $353.68 | $0.00 |
| 2025 | 32748 | JCCD - JC Conservation District | $2.55 | $2.55 | $0.00 | $0.00 | $5.10 | $0.00 |
| 2025 | 32748 | NWA - Noxious Weed Assessment | $2.15 | $2.15 | $0.00 | $0.00 | $4.30 | $0.00 |
| 2025 | 32748 | TOTAL: | $2933.50 | $2933.46 | $0.00 | $0.00 | $5866.96 | $0.00 |
|
| 2025 | 32748 | $2933.50 | $2933.46 | $0.00 | $0.00 | $5866.96 | $0.00 |
Statement Details |
| 2024 | 32807 | STATE - STATE LEVY (SCHOOL) | $831.41 | $831.41 | $0.00 | $0.00 | $1662.82 | $0.00 |
| 2024 | 32807 | COUNTY - COUNTY LEVIES (CE, DD, VET, MH) | $355.78 | $355.76 | $0.00 | $0.00 | $711.54 | $0.00 |
| 2024 | 32807 | CONSERVE - CONSERVATION FUTURES | $10.67 | $10.67 | $0.00 | $0.00 | $21.34 | $0.00 |
| 2024 | 32807 | COROADS - COUNTY ROADS (ROADS, DIV TO CE) | $286.28 | $286.27 | $0.00 | $0.00 | $572.55 | $0.00 |
| 2024 | 32807 | PORTPT - PORT DISTRICT | $146.95 | $146.95 | $0.00 | $0.00 | $293.90 | $0.00 |
| 2024 | 32807 | PUD1 - PUD #1 | $23.37 | $23.37 | $0.00 | $0.00 | $46.74 | $0.00 |
| 2024 | 32807 | LIB1 - LIBRARY DIST #1 | $110.76 | $110.75 | $0.00 | $0.00 | $221.51 | $0.00 |
| 2024 | 32807 | HD2 - HOSP DIST #2 | $20.76 | $20.76 | $0.00 | $0.00 | $41.52 | $0.00 |
| 2024 | 32807 | SD49 - SCHOOL DIST #49 | $371.27 | $371.26 | $0.00 | $0.00 | $742.53 | $0.00 |
| 2024 | 32807 | FD1 - FIRE DISTRICT #1 | $470.41 | $470.41 | $0.00 | $0.00 | $940.82 | $0.00 |
| 2024 | 32807 | EMS1 - FIRE DIST #1 EMS | $179.68 | $179.68 | $0.00 | $0.00 | $359.36 | $0.00 |
| 2024 | 32807 | JCCD - JC Conservation District | $2.55 | $2.55 | $0.00 | $0.00 | $5.10 | $0.00 |
| 2024 | 32807 | NWA - Noxious Weed Assessment | $2.15 | $2.15 | $0.00 | $0.00 | $4.30 | $0.00 |
| 2024 | 32807 | TOTAL: | $2812.04 | $2811.99 | $0.00 | $0.00 | $5624.03 | $0.00 |
|
| 2024 | 32807 | $2812.04 | $2811.99 | $0.00 | $0.00 | $5624.03 | $0.00 |
Statement Details |
| 2023 | 32849 | STATE - STATE LEVY (SCHOOL) | $814.69 | $814.68 | $0.00 | $0.00 | $1629.37 | $0.00 |
| 2023 | 32849 | COUNTY - COUNTY LEVIES (CE, DD, VET, MH) | $355.52 | $355.50 | $0.00 | $0.00 | $711.02 | $0.00 |
| 2023 | 32849 | CONSERVE - CONSERVATION FUTURES | $10.66 | $10.66 | $0.00 | $0.00 | $21.32 | $0.00 |
| 2023 | 32849 | COROADS - COUNTY ROADS (ROADS, DIV TO CE) | $287.63 | $287.63 | $0.00 | $0.00 | $575.26 | $0.00 |
| 2023 | 32849 | PORTPT - PORT DISTRICT | $149.76 | $149.75 | $0.00 | $0.00 | $299.51 | $0.00 |
| 2023 | 32849 | PUD1 - PUD #1 | $23.57 | $23.56 | $0.00 | $0.00 | $47.13 | $0.00 |
| 2023 | 32849 | LIB1 - LIBRARY DIST #1 | $111.28 | $111.28 | $0.00 | $0.00 | $222.56 | $0.00 |
| 2023 | 32849 | HD2 - HOSP DIST #2 | $20.75 | $20.74 | $0.00 | $0.00 | $41.49 | $0.00 |
| 2023 | 32849 | SD49 - SCHOOL DIST #49 | $380.83 | $380.81 | $0.00 | $0.00 | $761.64 | $0.00 |
| 2023 | 32849 | FD3 - FIRE DISTRICT #3 | $353.68 | $353.67 | $0.00 | $0.00 | $707.35 | $0.00 |
| 2023 | 32849 | EMS3 - FIRE DIST #3 EMS | $126.44 | $126.44 | $0.00 | $0.00 | $252.88 | $0.00 |
| 2023 | 32849 | JCCD - JC Conservation District | $2.55 | $2.55 | $0.00 | $0.00 | $5.10 | $0.00 |
| 2023 | 32849 | NWA - Noxious Weed Assessment | $2.15 | $2.15 | $0.00 | $0.00 | $4.30 | $0.00 |
| 2023 | 32849 | TOTAL: | $2639.51 | $2639.42 | $0.00 | $0.00 | $5278.93 | $0.00 |
|
| 2023 | 32849 | $2639.51 | $2639.42 | $0.00 | $0.00 | $5278.93 | $0.00 |
Values
| (+) Improvement Homesite Value: | + | $0 | |
| (+) Improvement Non-Homesite Value: | + | $580,926 | |
| (+) Land Homesite Value: | + | $0 | |
| (+) Land Non-Homesite Value: | + | $158,025 | |
| (+) Curr Use (HS): | + | $0 | $0 |
| (+) Curr Use (NHS): | + | $0 | $0 |
| | | -------------------------- | |
| (=) Market Value: | = | $738,951 | |
| (–) Productivity Loss: | – | $0 | |
| | | -------------------------- | |
| (=) Subtotal: | = | $738,951 | |
| (+) Senior Appraised Value: | + | $0 | |
| (+) Non-Senior Appraised Value: | + | $738,951 | |
| | | -------------------------- | |
| (=) Total Appraised Value: | = | $738,951 | |
| (–) Senior Exemption Loss: | – | $0 | |
| (–) Exemption Loss: | – | $0 | |
| | | -------------------------- | |
| (=) Taxable Value: | = | $738,951 | |
Taxing Jurisdiction
| Owner: | TIFFANY D & DAVID A KRAMER | | |
| % Ownership: | 100.0000000000% | | |
| Total Value: | $738,951 | | |
| Tax Area: | 0213 - 1-49F1E1H2L1 |
| CE | COUNTY CURRENT EXPENSE | 0.9034619479 | $738,951 | $738,951 | $667.61 | | |
| CNTYDD | DEVELOPMENTAL DISABILITIES | 0.0052121823 | $738,951 | $738,951 | $3.85 | | |
| CNTYVET | VETERANS RELIEF | 0.0052777810 | $738,951 | $738,951 | $3.90 | | |
| MENTAL | MENTAL HEALTH | 0.0052121823 | $738,951 | $738,951 | $3.85 | | |
| ROADS | COUNTY ROADS | 0.7415066410 | $738,951 | $738,951 | $547.94 | | |
| ROADSCU | COUNTY ROADS TO CUR EXP | 0.0000000000 | $738,951 | $738,951 | $0.00 | | |
| HOSP2CASH | HOSP DIST #2 GENERAL | 0.0536075306 | $738,951 | $738,951 | $39.61 | | |
| SCH49CP | SCHOOL DIST #49 CAP PROJ | 0.6279093905 | $738,951 | $738,951 | $463.99 | | |
| SCH49MO | SCHOOL DIST #49 EP & O | 0.6376483602 | $738,951 | $738,951 | $471.19 | | |
| CONSERVE | CONSERVATION FUTURES | 0.0275621078 | $738,951 | $738,951 | $20.37 | | |
| EMS1 | FIRE DIST #1 EMS | 0.4679948282 | $738,951 | $738,951 | $345.83 | | |
| FD1 | FIRE DIST #1 GENERAL | 1.2171942929 | $738,951 | $738,951 | $899.45 | | |
| LIB1 | LIBRARY DIST #1 GENERAL | 0.2868827388 | $738,951 | $738,951 | $211.99 | | |
| PORTPT | PORT OF PT GENERAL | 0.1134941229 | $738,951 | $738,951 | $83.87 | | |
| PORTPTIDD | PORT OF PT IDD 2019 | 0.2577346692 | $738,951 | $738,951 | $190.45 | | |
| PUD1 | PUD #1 GENERAL | 0.0597888892 | $738,951 | $738,951 | $44.18 | | |
| STATE | STATE SCHOOL PART 1 | 1.4940692947 | $738,951 | $738,951 | $1,104.04 | | |
| STATE2 | STATE SCHOOL PART 2 | 0.8050170049 | $738,951 | $738,951 | $594.87 | | |
| | Total Tax Rate: | 7.7095739644 | | | | | |
| | | | | Taxes w/Current Exemptions: | $5,696.99 | | |
| | | | | Taxes w/o Exemptions: | $5,696.99 | | |
Improvement / Building
| Improvement #1: | Residential Bldg | State Code: | 11 | 2537.0 sqft | Value: | $580,926 |
| Bathrooms (#): | 2 (FULL) | Bathrooms (#): | 1 (HALF) | | Bedrooms (#): | 2 | Exterior Wall: | SI/ST | | Fireplace: | SIN 2-GOOD | Floor Construction: | FRAME | | Foundation: | CONPR | Heating/Cooling: | HPUMP | | Inside Verify: | YES | Roof Cover: | COMP |
|
| | Type | Description | Class CD | Sub Class CD | Year Built | Area |
| | MA | Main Area | 4+ | 15SF | 2001 | 1818.0 |
| | MA2 | Second Floor Main Area | 4+ | 15SF | 2001 | 719.0 |
| | HCPOR | House Concrete Porch | 4 | 15SF | 2001 | 180.0 |
| | HDECK | House Deck | 4 | 15SF | 2001 | 541.0 |
| | GATT | House Attached Garage | 4 | 15SF | 2001 | 572.0 |
| | CONCD | Concrete Drive | 4 | 15SF | 2001 | 399.0 |
Sketch
| No sketches available for this property. |
Property Image
Land
| 1 | 3351-1155L | | 0.0000 | 0.00 | 0.00 | 0.00 | 1.00 | $158,025 | $0 |
Roll Value History
| 2026 | N/A | N/A | N/A | N/A | N/A |
| 2025 | $580,926 | $158,025 | $0 | $738,951 | $738,951 |
| 2024 | $580,926 | $158,025 | $0 | $738,951 | $738,951 |
| 2023 | $573,213 | $145,500 | $0 | $718,713 | $718,713 |
| 2022 | $557,125 | $135,000 | $0 | $692,125 | $692,125 |
Deed and Sales History
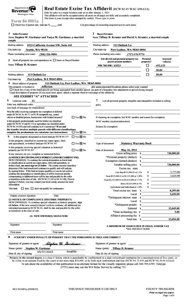
| 1 | 05/16/2023 | SWD | Statutory Warranty Deed | STEPHEN W & TANYA M GARDANAR | TIFFANY D & DAVID A KRAMER | | | $730,000.00 | 140953 | |
| 2 | 08/27/2020 | SWD | Statutory Warranty Deed | JAMES M KRALL & JANINE D HAGEL KRALL | STEPHEN W & TANYA M GARDANAR | | | $632,500.00 | 135029 | |
| 3 | 06/29/2017 | SWD | Statutory Warranty Deed | WILLIAM G BROWNE TRUSTEE | JAMES M KRALL & JANINE D HAGEL KRALL | | | $470,000.00 | 128066 | |
| 4 | 03/20/2001 | SWD | Statutory Warranty Deed | OLYMPIC REAL ESTATE DEVEL | BROWNE, WILLIAM G/BEVERLY A TR | 0 | 0 | $330,600.00 | 91889 | 0 |
Payout Agreement
| No payout information available.. |