Property
Account |
| Property ID: | 43543 | Abbreviated Legal Description: | TIBBALS 1ST ADDITION BLK 5 LOTS 2,3,4(LS S66.20'OF EA) LTS 5,6,7(LS N66.20'OF EA) BND TGTH THRU LLA AFN525057 SUBJ/ |
| Parcel # / Geo ID: | 998800504 | Agent Code: | |
| Type: | Real | | |
| Tax Area: | 0110 - C-50F1E1H2 | Land Use Code | 11 |
| Open Space: | N | DFL | N |
| Historic Property: | N | Remodel Property: | N |
| Multi-Family Redevelopment: | N | | |
| Township: | 31N | Section: | 34 |
| Range: | 1W |
Location |
| Address: | 4345 GRANT ST PORT TOWNSEND, WA 98368 | Mapsco: | 135/031 |
| Neighborhood: | HL TIBBALS 1ST, RILEYS ADD AND DUNCAN HILLTOP | Map ID: | |
| Neighborhood CD: | 6045 |
Owner |
| Name: | JEFFREY A TAYLOR & LINDA S LENZ | Owner ID: | 101279 |
| Mailing Address: | 4345 GRANT ST PORT TOWNSEND, WA 98368-2022 | % Ownership: | 100.0000000000% |
| | | Exemptions: | |
Pay Tax Due
Select the appropriate checkbox next to the year to be paid. Multiple years may be selected.
*Convenience Fee not included
Taxes and Assessment Details
Property Tax Information as of
03/10/2026
Click on "Statement Details" to expand or collapse a tax statement.
* Please enter a valid date ** Please enter a valid date *
Statement Details |
| 2026 | 32692 | STATE - STATE LEVY (SCHOOL) | $813.31 | $813.29 | $0.00 | $0.00 | $0.00 | $1626.60 |
| 2026 | 32692 | COUNTY - COUNTY LEVIES (CE, DD, VET, MH) | $325.17 | $325.14 | $0.00 | $0.00 | $0.00 | $650.31 |
| 2026 | 32692 | CONSERVE - CONSERVATION FUTURES | $9.75 | $9.75 | $0.00 | $0.00 | $0.00 | $19.50 |
| 2026 | 32692 | CITYPT - CITY OF PT | $461.54 | $461.52 | $0.00 | $0.00 | $0.00 | $923.06 |
| 2026 | 32692 | PORTPT - PORT DISTRICT | $131.33 | $131.32 | $0.00 | $0.00 | $0.00 | $262.65 |
| 2026 | 32692 | PUD1 - PUD #1 | $21.15 | $21.15 | $0.00 | $0.00 | $0.00 | $42.30 |
| 2026 | 32692 | HD2 - HOSP DIST #2 | $18.97 | $18.96 | $0.00 | $0.00 | $0.00 | $37.93 |
| 2026 | 32692 | SD50 - SCHOOL DIST #50 | $644.32 | $644.29 | $0.00 | $0.00 | $0.00 | $1288.61 |
| 2026 | 32692 | FD1 - FIRE DISTRICT #1 | $430.58 | $430.58 | $0.00 | $0.00 | $0.00 | $861.16 |
| 2026 | 32692 | EMS1 - FIRE DIST #1 EMS | $165.56 | $165.55 | $0.00 | $0.00 | $0.00 | $331.11 |
| 2026 | 32692 | JCCD - JC Conservation District | $2.55 | $2.55 | $0.00 | $0.00 | $0.00 | $5.10 |
| 2026 | 32692 | NWA - Noxious Weed Assessment | $2.98 | $2.97 | $0.00 | $0.00 | $0.00 | $5.95 |
| 2026 | 32692 | TOTAL: | $3027.21 | $3027.07 | $0.00 | $0.00 | $0.00 | $6054.28 |
|
| 2026 | 32692 | $3027.21 | $3027.07 | $0.00 | $0.00 | $0.00 | $6054.28 |
Statement Details |
| 2025 | 32767 | STATE - STATE LEVY (SCHOOL) | $822.93 | $822.91 | $0.00 | $0.00 | $1645.84 | $0.00 |
| 2025 | 32767 | COUNTY - COUNTY LEVIES (CE, DD, VET, MH) | $323.61 | $323.60 | $0.00 | $0.00 | $647.21 | $0.00 |
| 2025 | 32767 | CONSERVE - CONSERVATION FUTURES | $9.71 | $9.70 | $0.00 | $0.00 | $19.41 | $0.00 |
| 2025 | 32767 | CITYPT - CITY OF PT | $466.69 | $466.67 | $0.00 | $0.00 | $933.36 | $0.00 |
| 2025 | 32767 | PORTPT - PORT DISTRICT | $132.06 | $132.05 | $0.00 | $0.00 | $264.11 | $0.00 |
| 2025 | 32767 | PUD1 - PUD #1 | $21.18 | $21.17 | $0.00 | $0.00 | $42.35 | $0.00 |
| 2025 | 32767 | HD2 - HOSP DIST #2 | $18.88 | $18.88 | $0.00 | $0.00 | $37.76 | $0.00 |
| 2025 | 32767 | SD50 - SCHOOL DIST #50 | $601.43 | $601.41 | $0.00 | $0.00 | $1202.84 | $0.00 |
| 2025 | 32767 | FD1 - FIRE DISTRICT #1 | $427.04 | $427.03 | $0.00 | $0.00 | $854.07 | $0.00 |
| 2025 | 32767 | EMS1 - FIRE DIST #1 EMS | $164.25 | $164.25 | $0.00 | $0.00 | $328.50 | $0.00 |
| 2025 | 32767 | JCCD - JC Conservation District | $2.55 | $2.55 | $0.00 | $0.00 | $5.10 | $0.00 |
| 2025 | 32767 | NWA - Noxious Weed Assessment | $2.15 | $2.15 | $0.00 | $0.00 | $4.30 | $0.00 |
| 2025 | 32767 | TOTAL: | $2992.48 | $2992.37 | $0.00 | $0.00 | $5984.85 | $0.00 |
|
| 2025 | 32767 | $2992.48 | $2992.37 | $0.00 | $0.00 | $5984.85 | $0.00 |
Statement Details |
| 2024 | 32826 | STATE - STATE LEVY (SCHOOL) | $779.49 | $779.48 | $0.00 | $0.00 | $1558.97 | $0.00 |
| 2024 | 32826 | COUNTY - COUNTY LEVIES (CE, DD, VET, MH) | $333.57 | $333.53 | $0.00 | $0.00 | $667.10 | $0.00 |
| 2024 | 32826 | CONSERVE - CONSERVATION FUTURES | $10.00 | $10.00 | $0.00 | $0.00 | $20.00 | $0.00 |
| 2024 | 32826 | CITYPT - CITY OF PT | $476.61 | $476.58 | $0.00 | $0.00 | $953.19 | $0.00 |
| 2024 | 32826 | PORTPT - PORT DISTRICT | $137.78 | $137.76 | $0.00 | $0.00 | $275.54 | $0.00 |
| 2024 | 32826 | PUD1 - PUD #1 | $21.91 | $21.91 | $0.00 | $0.00 | $43.82 | $0.00 |
| 2024 | 32826 | HD2 - HOSP DIST #2 | $19.46 | $19.46 | $0.00 | $0.00 | $38.92 | $0.00 |
| 2024 | 32826 | SD50 - SCHOOL DIST #50 | $630.66 | $630.63 | $0.00 | $0.00 | $1261.29 | $0.00 |
| 2024 | 32826 | FD1 - FIRE DISTRICT #1 | $441.03 | $441.03 | $0.00 | $0.00 | $882.06 | $0.00 |
| 2024 | 32826 | EMS1 - FIRE DIST #1 EMS | $168.46 | $168.46 | $0.00 | $0.00 | $336.92 | $0.00 |
| 2024 | 32826 | JCCD - JC Conservation District | $2.55 | $2.55 | $0.00 | $0.00 | $5.10 | $0.00 |
| 2024 | 32826 | NWA - Noxious Weed Assessment | $2.15 | $2.15 | $0.00 | $0.00 | $4.30 | $0.00 |
| 2024 | 32826 | TOTAL: | $3023.67 | $3023.54 | $0.00 | $0.00 | $6047.21 | $0.00 |
|
| 2024 | 32826 | $3023.67 | $3023.54 | $0.00 | $0.00 | $6047.21 | $0.00 |
Statement Details |
| 2023 | 32868 | STATE - STATE LEVY (SCHOOL) | $787.27 | $787.26 | $0.00 | $0.00 | $1574.53 | $0.00 |
| 2023 | 32868 | COUNTY - COUNTY LEVIES (CE, DD, VET, MH) | $343.55 | $343.53 | $0.00 | $0.00 | $687.08 | $0.00 |
| 2023 | 32868 | CONSERVE - CONSERVATION FUTURES | $10.30 | $10.30 | $0.00 | $0.00 | $20.60 | $0.00 |
| 2023 | 32868 | CITYPT - CITY OF PT | $485.54 | $485.53 | $0.00 | $0.00 | $971.07 | $0.00 |
| 2023 | 32868 | PORTPT - PORT DISTRICT | $144.72 | $144.72 | $0.00 | $0.00 | $289.44 | $0.00 |
| 2023 | 32868 | PUD1 - PUD #1 | $22.77 | $22.77 | $0.00 | $0.00 | $45.54 | $0.00 |
| 2023 | 32868 | HD2 - HOSP DIST #2 | $20.05 | $20.04 | $0.00 | $0.00 | $40.09 | $0.00 |
| 2023 | 32868 | SD50 - SCHOOL DIST #50 | $624.72 | $624.70 | $0.00 | $0.00 | $1249.42 | $0.00 |
| 2023 | 32868 | FD1 - FIRE DISTRICT #1 | $283.01 | $283.01 | $0.00 | $0.00 | $566.02 | $0.00 |
| 2023 | 32868 | EMS1 - FIRE DIST #1 EMS | $120.39 | $120.38 | $0.00 | $0.00 | $240.77 | $0.00 |
| 2023 | 32868 | JCCD - JC Conservation District | $2.55 | $2.55 | $0.00 | $0.00 | $5.10 | $0.00 |
| 2023 | 32868 | NWA - Noxious Weed Assessment | $2.15 | $2.15 | $0.00 | $0.00 | $4.30 | $0.00 |
| 2023 | 32868 | TOTAL: | $2847.02 | $2846.94 | $0.00 | $0.00 | $5693.96 | $0.00 |
|
| 2023 | 32868 | $2847.02 | $2846.94 | $0.00 | $0.00 | $5693.96 | $0.00 |
Values
| (+) Improvement Homesite Value: | + | $0 | |
| (+) Improvement Non-Homesite Value: | + | $557,500 | |
| (+) Land Homesite Value: | + | $0 | |
| (+) Land Non-Homesite Value: | + | $150,000 | |
| (+) Curr Use (HS): | + | $0 | $0 |
| (+) Curr Use (NHS): | + | $0 | $0 |
| | | -------------------------- | |
| (=) Market Value: | = | $707,500 | |
| (–) Productivity Loss: | – | $0 | |
| | | -------------------------- | |
| (=) Subtotal: | = | $707,500 | |
| (+) Senior Appraised Value: | + | $0 | |
| (+) Non-Senior Appraised Value: | + | $707,500 | |
| | | -------------------------- | |
| (=) Total Appraised Value: | = | $707,500 | |
| (–) Senior Exemption Loss: | – | $0 | |
| (–) Exemption Loss: | – | $0 | |
| | | -------------------------- | |
| (=) Taxable Value: | = | $707,500 | |
Taxing Jurisdiction
| Owner: | JEFFREY A TAYLOR & LINDA S LENZ | | |
| % Ownership: | 100.0000000000% | | |
| Total Value: | N/A | | |
| Tax Area: | 0110 - C-50F1E1H2 |
| CE | COUNTY CURRENT EXPENSE | N/A | N/A | N/A | N/A | | |
| CNTYDD | DEVELOPMENTAL DISABILITIES | N/A | N/A | N/A | N/A | | |
| CNTYVET | VETERANS RELIEF | N/A | N/A | N/A | N/A | | |
| MENTAL | MENTAL HEALTH | N/A | N/A | N/A | N/A | | |
| PTGEN | CITY OF PT GENERAL | N/A | N/A | N/A | N/A | | |
| PTLLL | CITY OF PT - LIBRARY LID LIFT | N/A | N/A | N/A | N/A | | |
| PTMVBOND | CITY OF PT MV BOND | N/A | N/A | N/A | N/A | | |
| HOSP2CASH | HOSP DIST #2 GENERAL | N/A | N/A | N/A | N/A | | |
| SCH50BOND | SCHOOL DIST #50 BOND 2016 | N/A | N/A | N/A | N/A | | |
| SCH50CP | SCHOOL DIST #50 CAP PROJ | N/A | N/A | N/A | N/A | | |
| SCH50MO | SCHOOL DIST #50 EP & O | N/A | N/A | N/A | N/A | | |
| CONSERVE | CONSERVATION FUTURES | N/A | N/A | N/A | N/A | | |
| EMS1 | FIRE DIST #1 EMS | N/A | N/A | N/A | N/A | | |
| FD1 | FIRE DIST #1 GENERAL | N/A | N/A | N/A | N/A | | |
| PORTPT | PORT OF PT GENERAL | N/A | N/A | N/A | N/A | | |
| PORTPTIDD | PORT OF PT IDD 2019 | N/A | N/A | N/A | N/A | | |
| PUD1 | PUD #1 GENERAL | N/A | N/A | N/A | N/A | | |
| STATE | STATE SCHOOL PART 1 | N/A | N/A | N/A | N/A | | |
| STATE2 | STATE SCHOOL PART 2 | N/A | N/A | N/A | N/A | | |
| | Total Tax Rate: | N/A | | | | | |
| | | | | Taxes w/Current Exemptions: | N/A | | |
| | | | | Taxes w/o Exemptions: | N/A | | |
Improvement / Building
| Improvement #1: | Residential Bldg | State Code: | 11 | 1739.0 sqft | Value: | $557,500 |
| Bathrooms (#): | 2 (FULL) | Bedrooms (#): | 3 | | Exterior Wall: | SI/ST | Fireplace: | PROPS-GOOD | | Floor Construction: | FRAME | Foundation: | CONPR | | Heating/Cooling: | HPUMP | Roof Cover: | COMP |
|
| | Type | Description | Class CD | Sub Class CD | Year Built | Area |
| | MA | Main Area | 5+ | 2S | 2016 | 907.0 |
| | MA2 | Second Floor Main Area | 5+ | 2S | 2016 | 832.0 |
| | GDET | Detached Garage | 5 | * | 2016 | 328.0 |
| | HCPOR | House Concrete Porch | 5 | * | 2016 | 148.0 |
| | ASPHD | Asphalt Drive | 5 | * | 2016 | 1200.0 |
| | HWPOR | House Wood Porch | 5 | * | 2016 | 32.0 |
Sketch
Property Image
Land
| 1 | 6045-1275S | | 0.0000 | 0.00 | 0.00 | 0.00 | 1.00 | $150,000 | $0 |
Roll Value History
| 2026 | N/A | N/A | N/A | N/A | N/A |
| 2025 | $557,500 | $150,000 | $0 | $707,500 | $707,500 |
| 2024 | $528,831 | $157,500 | $0 | $686,331 | $686,331 |
| 2023 | $528,831 | $145,000 | $0 | $673,831 | $673,831 |
| 2022 | $528,830 | $140,000 | $0 | $668,830 | $668,830 |
Deed and Sales History
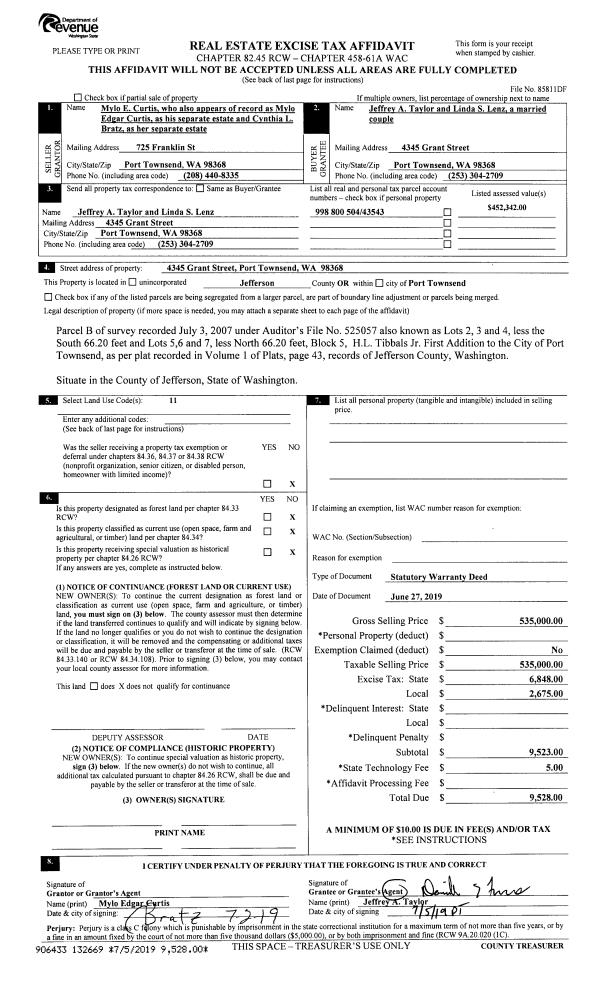
| 1 | 06/27/2019 | SWD | Statutory Warranty Deed | MYLO E CURTIS | JEFFREY A TAYLOR & LINDA S LENZ | | | $535,000.00 | 132669 | |
| 2 | 01/22/2019 | SWD | Statutory Warranty Deed | | | | | | 131744 | |
| 3 | 03/29/2018 | SWD | Statutory Warranty Deed | DARREN R MUIR | MYLO E CURTIS | | | $535,000.00 | 129856 | |
| 4 | 01/06/2009 | SWD | Statutory Warranty Deed | BRADY CONSTRUCTION INC, A | MUIR, DARREN/LEE | 0 | 0 | $412,500.00 | 112465 | 0 |
|   | |
| 5 | 12/04/2006 | QCD | Quit Claim Deed | NEWTON, HEATH/ANDREA | BRADY CONSTRUCTION INC | 0 | 0 | $1,500.00 | 108190 | 0 |
| 6 | 02/18/1999 | SWD | Statutory Warranty Deed | GRAY, LESLIE T & HELVIE/E | NEWTON, HEATH/ANDREA | 0 | 0 | $1,000.00 | 86684 | 0 |
Payout Agreement
| No payout information available.. |