Property
Account |
| Property ID: | 43614 | Abbreviated Legal Description: | TIBBALS 1ST ADDITION BLK 38 LOTS 1 & 2 |
| Parcel # / Geo ID: | 998803802 | Agent Code: | |
| Type: | Real | | |
| Tax Area: | 0110 - C-50F1E1H2 | Land Use Code | 91 |
| Open Space: | N | DFL | N |
| Historic Property: | N | Remodel Property: | N |
| Multi-Family Redevelopment: | N | | |
| Township: | 31N | Section: | 34 |
| Range: | 1W |
Location |
| Address: | 0 PORT TOWNSEND, WA 98368 | Mapsco: | 136/029 |
| Neighborhood: | HL TIBBALS 1ST, RILEYS ADD AND DUNCAN HILLTOP | Map ID: | |
| Neighborhood CD: | 6045 |
Owner |
| Name: | GREGORY L & MARIANELA T PETERSON | Owner ID: | 109254 |
| Mailing Address: | 6533 E RIVERDALE ST MESA, AZ 85215-0722 | % Ownership: | 100.0000000000% |
| | | Exemptions: | |
Pay Tax Due
Select the appropriate checkbox next to the year to be paid. Multiple years may be selected.
*Convenience Fee not included
Taxes and Assessment Details
Property Tax Information as of
03/10/2026
Click on "Statement Details" to expand or collapse a tax statement.
* Please enter a valid date ** Please enter a valid date *
Statement Details |
| 2026 | 32762 | STATE - STATE LEVY (SCHOOL) | $45.27 | $45.26 | $0.00 | $0.00 | $0.00 | $90.53 |
| 2026 | 32762 | COUNTY - COUNTY LEVIES (CE, DD, VET, MH) | $18.12 | $18.08 | $0.00 | $0.00 | $0.00 | $36.20 |
| 2026 | 32762 | CONSERVE - CONSERVATION FUTURES | $0.55 | $0.54 | $0.00 | $0.00 | $0.00 | $1.09 |
| 2026 | 32762 | CITYPT - CITY OF PT | $25.70 | $25.67 | $0.00 | $0.00 | $0.00 | $51.37 |
| 2026 | 32762 | PORTPT - PORT DISTRICT | $7.32 | $7.30 | $0.00 | $0.00 | $0.00 | $14.62 |
| 2026 | 32762 | PUD1 - PUD #1 | $1.18 | $1.17 | $0.00 | $0.00 | $0.00 | $2.35 |
| 2026 | 32762 | HD2 - HOSP DIST #2 | $1.06 | $1.05 | $0.00 | $0.00 | $0.00 | $2.11 |
| 2026 | 32762 | SD50 - SCHOOL DIST #50 | $35.87 | $35.84 | $0.00 | $0.00 | $0.00 | $71.71 |
| 2026 | 32762 | FD1 - FIRE DISTRICT #1 | $23.97 | $23.96 | $0.00 | $0.00 | $0.00 | $47.93 |
| 2026 | 32762 | EMS1 - FIRE DIST #1 EMS | $9.22 | $9.21 | $0.00 | $0.00 | $0.00 | $18.43 |
| 2026 | 32762 | FPLCA - DNR Landowner Contingency Assmt | $3.00 | $3.00 | $0.00 | $0.00 | $0.00 | $6.00 |
| 2026 | 32762 | JCCD - JC Conservation District | $2.53 | $2.53 | $0.00 | $0.00 | $0.00 | $5.06 |
| 2026 | 32762 | NWA - Noxious Weed Assessment | $2.98 | $2.97 | $0.00 | $0.00 | $0.00 | $5.95 |
| 2026 | 32762 | WAT - Clean Water District | $13.00 | $13.00 | $0.00 | $0.00 | $0.00 | $26.00 |
| 2026 | 32762 | TOTAL: | $189.77 | $189.58 | $0.00 | $0.00 | $0.00 | $379.35 |
|
| 2026 | 32762 | $189.77 | $189.58 | $0.00 | $0.00 | $0.00 | $379.35 |
Statement Details |
| 2025 | 32837 | STATE - STATE LEVY (SCHOOL) | $20.15 | $20.14 | $0.00 | $0.00 | $40.29 | $0.00 |
| 2025 | 32837 | COUNTY - COUNTY LEVIES (CE, DD, VET, MH) | $7.94 | $7.90 | $0.00 | $0.00 | $15.84 | $0.00 |
| 2025 | 32837 | CONSERVE - CONSERVATION FUTURES | $0.24 | $0.24 | $0.00 | $0.00 | $0.48 | $0.00 |
| 2025 | 32837 | CITYPT - CITY OF PT | $11.43 | $11.42 | $0.00 | $0.00 | $22.85 | $0.00 |
| 2025 | 32837 | PORTPT - PORT DISTRICT | $3.24 | $3.23 | $0.00 | $0.00 | $6.47 | $0.00 |
| 2025 | 32837 | PUD1 - PUD #1 | $0.52 | $0.52 | $0.00 | $0.00 | $1.04 | $0.00 |
| 2025 | 32837 | HD2 - HOSP DIST #2 | $0.46 | $0.46 | $0.00 | $0.00 | $0.92 | $0.00 |
| 2025 | 32837 | SD50 - SCHOOL DIST #50 | $14.73 | $14.71 | $0.00 | $0.00 | $29.44 | $0.00 |
| 2025 | 32837 | FD1 - FIRE DISTRICT #1 | $10.46 | $10.45 | $0.00 | $0.00 | $20.91 | $0.00 |
| 2025 | 32837 | EMS1 - FIRE DIST #1 EMS | $4.02 | $4.02 | $0.00 | $0.00 | $8.04 | $0.00 |
| 2025 | 32837 | FP - DNR Forest Fire Protection Assmt | $8.50 | $8.50 | $0.00 | $0.00 | $17.00 | $0.00 |
| 2025 | 32837 | FPLCA - DNR Landowner Contingency Assmt | $3.00 | $3.00 | $0.00 | $0.00 | $6.00 | $0.00 |
| 2025 | 32837 | JCCD - JC Conservation District | $2.53 | $2.53 | $0.00 | $0.00 | $5.06 | $0.00 |
| 2025 | 32837 | NWA - Noxious Weed Assessment | $2.15 | $2.15 | $0.00 | $0.00 | $4.30 | $0.00 |
| 2025 | 32837 | WAT - Clean Water District | $13.00 | $13.00 | $0.00 | $0.00 | $26.00 | $0.00 |
| 2025 | 32837 | FP ADMIN - FP ADMIN | $0.50 | $0.00 | $0.00 | $0.00 | $0.50 | $0.00 |
| 2025 | 32837 | TOTAL: | $102.87 | $102.27 | $0.00 | $0.00 | $205.14 | $0.00 |
|
| 2025 | 32837 | $102.87 | $102.27 | $0.00 | $0.00 | $205.14 | $0.00 |
Statement Details |
| 2024 | 32896 | STATE - STATE LEVY (SCHOOL) | $18.51 | $18.50 | $0.00 | $0.00 | $37.01 | $0.00 |
| 2024 | 32896 | COUNTY - COUNTY LEVIES (CE, DD, VET, MH) | $7.94 | $7.90 | $0.00 | $0.00 | $15.84 | $0.00 |
| 2024 | 32896 | CONSERVE - CONSERVATION FUTURES | $0.24 | $0.23 | $0.00 | $0.00 | $0.47 | $0.00 |
| 2024 | 32896 | CITYPT - CITY OF PT | $11.33 | $11.31 | $0.00 | $0.00 | $22.64 | $0.00 |
| 2024 | 32896 | PORTPT - PORT DISTRICT | $3.28 | $3.27 | $0.00 | $0.00 | $6.55 | $0.00 |
| 2024 | 32896 | PUD1 - PUD #1 | $0.52 | $0.52 | $0.00 | $0.00 | $1.04 | $0.00 |
| 2024 | 32896 | HD2 - HOSP DIST #2 | $0.46 | $0.46 | $0.00 | $0.00 | $0.92 | $0.00 |
| 2024 | 32896 | SD50 - SCHOOL DIST #50 | $14.98 | $14.97 | $0.00 | $0.00 | $29.95 | $0.00 |
| 2024 | 32896 | FD1 - FIRE DISTRICT #1 | $10.47 | $10.47 | $0.00 | $0.00 | $20.94 | $0.00 |
| 2024 | 32896 | EMS1 - FIRE DIST #1 EMS | $4.00 | $4.00 | $0.00 | $0.00 | $8.00 | $0.00 |
| 2024 | 32896 | FP - DNR Forest Fire Protection Assmt | $8.50 | $8.50 | $0.00 | $0.00 | $17.00 | $0.00 |
| 2024 | 32896 | FPLCA - DNR Landowner Contingency Assmt | $3.00 | $3.00 | $0.00 | $0.00 | $6.00 | $0.00 |
| 2024 | 32896 | JCCD - JC Conservation District | $2.53 | $2.53 | $0.00 | $0.00 | $5.06 | $0.00 |
| 2024 | 32896 | NWA - Noxious Weed Assessment | $2.15 | $2.15 | $0.00 | $0.00 | $4.30 | $0.00 |
| 2024 | 32896 | WAT - Clean Water District | $12.50 | $12.50 | $0.00 | $0.00 | $25.00 | $0.00 |
| 2024 | 32896 | FP ADMIN - FP ADMIN | $0.50 | $0.00 | $0.00 | $0.00 | $0.50 | $0.00 |
| 2024 | 32896 | TOTAL: | $100.91 | $100.31 | $0.00 | $0.00 | $201.22 | $0.00 |
|
| 2024 | 32896 | $100.91 | $100.31 | $0.00 | $0.00 | $201.22 | $0.00 |
Statement Details |
| 2023 | 32939 | STATE - STATE LEVY (SCHOOL) | $18.84 | $18.83 | $0.00 | $0.00 | $37.67 | $0.00 |
| 2023 | 32939 | COUNTY - COUNTY LEVIES (CE, DD, VET, MH) | $8.23 | $8.20 | $0.00 | $0.00 | $16.43 | $0.00 |
| 2023 | 32939 | CONSERVE - CONSERVATION FUTURES | $0.25 | $0.24 | $0.00 | $0.00 | $0.49 | $0.00 |
| 2023 | 32939 | CITYPT - CITY OF PT | $11.63 | $11.61 | $0.00 | $0.00 | $23.24 | $0.00 |
| 2023 | 32939 | PORTPT - PORT DISTRICT | $3.47 | $3.45 | $0.00 | $0.00 | $6.92 | $0.00 |
| 2023 | 32939 | PUD1 - PUD #1 | $0.55 | $0.54 | $0.00 | $0.00 | $1.09 | $0.00 |
| 2023 | 32939 | HD2 - HOSP DIST #2 | $0.48 | $0.47 | $0.00 | $0.00 | $0.95 | $0.00 |
| 2023 | 32939 | SD50 - SCHOOL DIST #50 | $14.95 | $14.94 | $0.00 | $0.00 | $29.89 | $0.00 |
| 2023 | 32939 | FD1 - FIRE DISTRICT #1 | $6.77 | $6.77 | $0.00 | $0.00 | $13.54 | $0.00 |
| 2023 | 32939 | EMS1 - FIRE DIST #1 EMS | $2.88 | $2.88 | $0.00 | $0.00 | $5.76 | $0.00 |
| 2023 | 32939 | FP - DNR Forest Fire Protection Assmt | $8.50 | $8.50 | $0.00 | $0.00 | $17.00 | $0.00 |
| 2023 | 32939 | FPLCA - DNR Landowner Contingency Assmt | $3.00 | $3.00 | $0.00 | $0.00 | $6.00 | $0.00 |
| 2023 | 32939 | JCCD - JC Conservation District | $2.53 | $2.53 | $0.00 | $0.00 | $5.06 | $0.00 |
| 2023 | 32939 | NWA - Noxious Weed Assessment | $2.15 | $2.15 | $0.00 | $0.00 | $4.30 | $0.00 |
| 2023 | 32939 | WAT - Clean Water District | $12.00 | $12.00 | $0.00 | $0.00 | $24.00 | $0.00 |
| 2023 | 32939 | FP ADMIN - FP ADMIN | $0.50 | $0.00 | $0.00 | $0.00 | $0.50 | $0.00 |
| 2023 | 32939 | TOTAL: | $96.73 | $96.11 | $0.00 | $0.00 | $192.84 | $0.00 |
|
| 2023 | 32939 | $96.73 | $96.11 | $0.00 | $0.00 | $192.84 | $0.00 |
Values
| (+) Improvement Homesite Value: | + | $0 | |
| (+) Improvement Non-Homesite Value: | + | $0 | |
| (+) Land Homesite Value: | + | $0 | |
| (+) Land Non-Homesite Value: | + | $39,375 | |
| (+) Curr Use (HS): | + | $0 | $0 |
| (+) Curr Use (NHS): | + | $0 | $0 |
| | | -------------------------- | |
| (=) Market Value: | = | $39,375 | |
| (–) Productivity Loss: | – | $0 | |
| | | -------------------------- | |
| (=) Subtotal: | = | $39,375 | |
| (+) Senior Appraised Value: | + | $0 | |
| (+) Non-Senior Appraised Value: | + | $39,375 | |
| | | -------------------------- | |
| (=) Total Appraised Value: | = | $39,375 | |
| (–) Senior Exemption Loss: | – | $0 | |
| (–) Exemption Loss: | – | $0 | |
| | | -------------------------- | |
| (=) Taxable Value: | = | $39,375 | |
Taxing Jurisdiction
| Owner: | GREGORY L & MARIANELA T PETERSON | | |
| % Ownership: | 100.0000000000% | | |
| Total Value: | $39,375 | | |
| Tax Area: | 0110 - C-50F1E1H2 |
| CE | COUNTY CURRENT EXPENSE | 0.9034619479 | $39,375 | $39,375 | $35.57 | | |
| CNTYDD | DEVELOPMENTAL DISABILITIES | 0.0052121823 | $39,375 | $39,375 | $0.21 | | |
| CNTYVET | VETERANS RELIEF | 0.0052777810 | $39,375 | $39,375 | $0.21 | | |
| MENTAL | MENTAL HEALTH | 0.0052121823 | $39,375 | $39,375 | $0.21 | | |
| PTGEN | CITY OF PT GENERAL | 0.8551967795 | $39,375 | $39,375 | $33.67 | | |
| PTLLL | CITY OF PT - LIBRARY LID LIFT | 0.4010114288 | $39,375 | $39,375 | $15.79 | | |
| PTMVBOND | CITY OF PT MV BOND | 0.0484717981 | $39,375 | $39,375 | $1.91 | | |
| HOSP2CASH | HOSP DIST #2 GENERAL | 0.0536075306 | $39,375 | $39,375 | $2.11 | | |
| SCH50BOND | SCHOOL DIST #50 BOND 2016 | 0.5377451389 | $39,375 | $39,375 | $21.17 | | |
| SCH50CP | SCHOOL DIST #50 CAP PROJ | 0.4573475088 | $39,375 | $39,375 | $18.01 | | |
| SCH50MO | SCHOOL DIST #50 EP & O | 0.8262822886 | $39,375 | $39,375 | $32.53 | | |
| CONSERVE | CONSERVATION FUTURES | 0.0275621078 | $39,375 | $39,375 | $1.09 | | |
| EMS1 | FIRE DIST #1 EMS | 0.4679948282 | $39,375 | $39,375 | $18.43 | | |
| FD1 | FIRE DIST #1 GENERAL | 1.2171942929 | $39,375 | $39,375 | $47.93 | | |
| PORTPT | PORT OF PT GENERAL | 0.1134941229 | $39,375 | $39,375 | $4.47 | | |
| PORTPTIDD | PORT OF PT IDD 2019 | 0.2577346692 | $39,375 | $39,375 | $10.15 | | |
| PUD1 | PUD #1 GENERAL | 0.0597888892 | $39,375 | $39,375 | $2.35 | | |
| STATE | STATE SCHOOL PART 1 | 1.4940692947 | $39,375 | $39,375 | $58.83 | | |
| STATE2 | STATE SCHOOL PART 2 | 0.8050170049 | $39,375 | $39,375 | $31.70 | | |
| | Total Tax Rate: | 8.5416817766 | | | | | |
| | | | | Taxes w/Current Exemptions: | $336.34 | | |
| | | | | Taxes w/o Exemptions: | $336.34 | | |
Improvement / Building
Sketch
| No sketches available for this property. |
Property Image
Land
| 1 | 6045-1179L | | 0.0000 | 0.00 | 0.00 | 0.00 | 2.00 | $39,375 | $0 |
Roll Value History
| 2026 | N/A | N/A | N/A | N/A | N/A |
| 2025 | $0 | $39,375 | $0 | $39,375 | $39,375 |
| 2024 | $0 | $16,800 | $0 | $16,800 | $16,800 |
| 2023 | $0 | $16,000 | $0 | $16,000 | $16,000 |
| 2022 | $0 | $16,000 | $0 | $16,000 | $16,000 |
Deed and Sales History
| 1 | 12/26/2024 | SWD | Statutory Warranty Deed | QUAIL RUN WASHINGTON INVESTMENTS LLC | GREGORY L & MARIANELA T PETERSON | | | $40,000.00 | 143698 | |
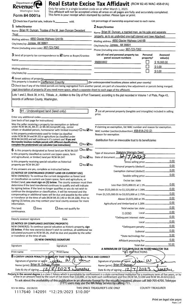
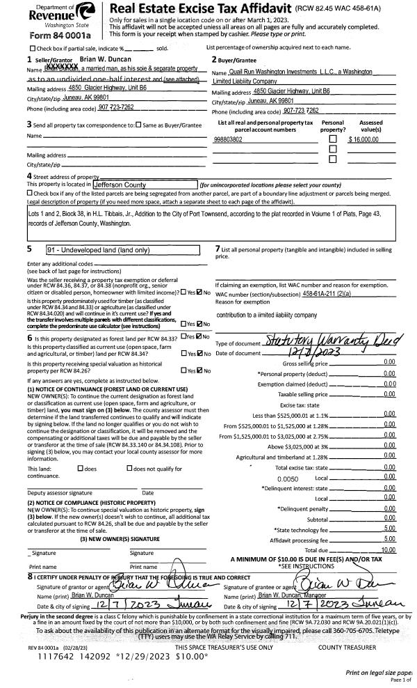
| 2 | 12/07/2023 | SWD | Statutory Warranty Deed | BRIAN W DUNCAN | QUAIL RUN WASHINGTON INVESTMENTS LLC | | | | 142092 | |
| 3 | 12/07/2023 | SWD | Statutory Warranty Deed | M JEAN DUNCAN DECEDENT TRUST | BRIAN W DUNCAN | | | | 142091 | |
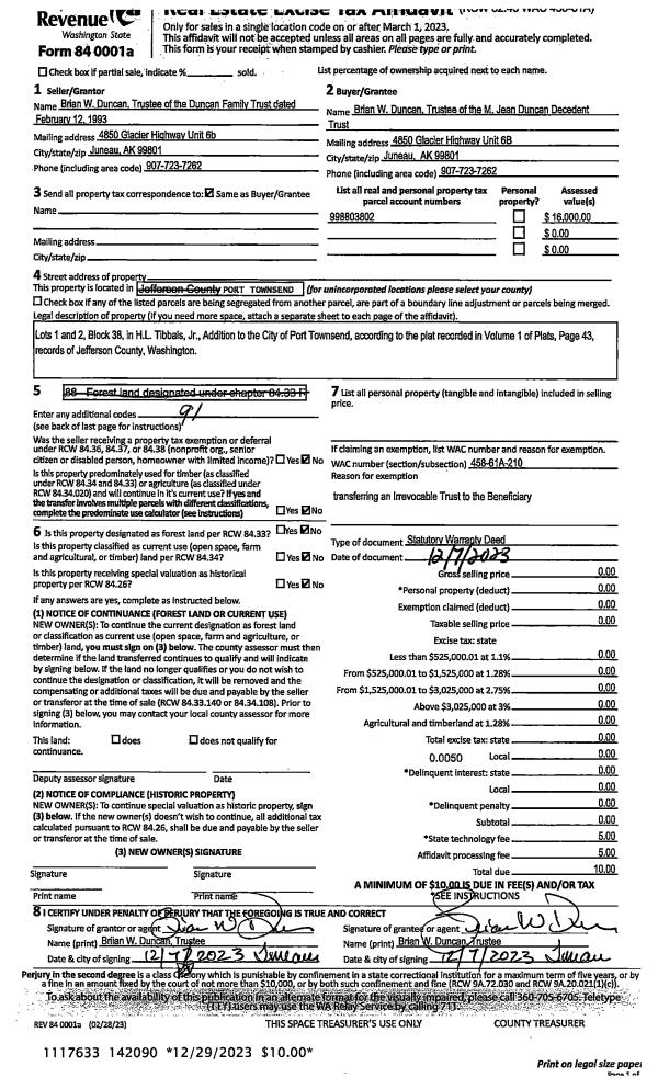
| 4 | 12/07/2023 | SWD | Statutory Warranty Deed | JAMES S DUNCAN TRUSTEE | M JEAN DUNCAN DECEDENT TRUST | | | | 142090 | |
| 5 | 01/06/1994 | QCD | Quit Claim Deed | PITTENGER, ROBERT | DUNCAN FAMILY TRUST | 0 | 0 | $3,500.00 | 73076 | 0 |
| 6 | 12/17/1993 | TXD | Tax Deed | JEFFERSON COUNTY | PITTENGER, ROBERT | 0 | 0 | $0.00 | 72925 | 0 |
Payout Agreement
| No payout information available.. |