Property
Account |
| Property ID: | 43661 | Abbreviated Legal Description: | TIBBALS LAKE PARK BLK 16 LOTS 1 THRU 10 TGTH W/VAC ALLEY, E1/2 FERN,S1/2 BELLE AND N1/2 JENSEN AND W1/2 CEDAR STS ABUTTING BLK 16 QTA#20-2-00079-16 -SINGLE PARCEL PER SDR2023-00094 |
| Parcel # / Geo ID: | 999001601 | Agent Code: | |
| Type: | Real | | |
| Tax Area: | 0111 - 1-50F1E1H2L1 | Land Use Code | 91 |
| Open Space: | N | DFL | N |
| Historic Property: | N | Remodel Property: | N |
| Multi-Family Redevelopment: | N | | |
| Township: | 30N | Section: | 5 |
| Range: | 1W |
Location |
| Address: | 172 FLICKER RD PORT TOWNSEND, WA 98368 | Mapsco: | 066/040 |
| Neighborhood: | TIBBALS PARK | Map ID: | |
| Neighborhood CD: | 5320 |
Owner |
| Name: | REVOCABLE LIVING TRUST OF ALEXANDRA C BRADLEY | Owner ID: | 108357 |
| Mailing Address: | REVOCABLE LIVING TRUST OF PJ BRADLEY WILLIAM A JOHNSON 1385 CALEDONIA CIR LOUISVILLE, CO 80027-1610 | % Ownership: | 100.0000000000% |
| | | Exemptions: | |
Pay Tax Due
Select the appropriate checkbox next to the year to be paid. Multiple years may be selected.
*Convenience Fee not included
Taxes and Assessment Details
Property Tax Information as of
03/10/2026
Click on "Statement Details" to expand or collapse a tax statement.
* Please enter a valid date ** Please enter a valid date *
Statement Details |
| 2026 | 32809 | STATE - STATE LEVY (SCHOOL) | $305.64 | $305.63 | $0.00 | $0.00 | $0.00 | $611.27 |
| 2026 | 32809 | COUNTY - COUNTY LEVIES (CE, DD, VET, MH) | $122.21 | $122.18 | $0.00 | $0.00 | $0.00 | $244.39 |
| 2026 | 32809 | CONSERVE - CONSERVATION FUTURES | $3.67 | $3.66 | $0.00 | $0.00 | $0.00 | $7.33 |
| 2026 | 32809 | COROADS - COUNTY ROADS (ROADS, DIV TO CE) | $98.58 | $98.57 | $0.00 | $0.00 | $0.00 | $197.15 |
| 2026 | 32809 | PORTPT - PORT DISTRICT | $49.36 | $49.35 | $0.00 | $0.00 | $0.00 | $98.71 |
| 2026 | 32809 | PUD1 - PUD #1 | $7.95 | $7.95 | $0.00 | $0.00 | $0.00 | $15.90 |
| 2026 | 32809 | LIB1 - LIBRARY DIST #1 | $38.14 | $38.13 | $0.00 | $0.00 | $0.00 | $76.27 |
| 2026 | 32809 | HD2 - HOSP DIST #2 | $7.13 | $7.12 | $0.00 | $0.00 | $0.00 | $14.25 |
| 2026 | 32809 | SD50 - SCHOOL DIST #50 | $242.14 | $242.12 | $0.00 | $0.00 | $0.00 | $484.26 |
| 2026 | 32809 | FD1 - FIRE DISTRICT #1 | $161.81 | $161.81 | $0.00 | $0.00 | $0.00 | $323.62 |
| 2026 | 32809 | EMS1 - FIRE DIST #1 EMS | $62.22 | $62.21 | $0.00 | $0.00 | $0.00 | $124.43 |
| 2026 | 32809 | FP - DNR Forest Fire Protection Assmt | $8.50 | $8.50 | $0.00 | $0.00 | $0.00 | $17.00 |
| 2026 | 32809 | FPLCA - DNR Landowner Contingency Assmt | $3.00 | $3.00 | $0.00 | $0.00 | $0.00 | $6.00 |
| 2026 | 32809 | JCCD - JC Conservation District | $2.57 | $2.57 | $0.00 | $0.00 | $0.00 | $5.14 |
| 2026 | 32809 | NWA - Noxious Weed Assessment | $3.20 | $3.20 | $0.00 | $0.00 | $0.00 | $6.40 |
| 2026 | 32809 | WAT - Clean Water District | $13.00 | $13.00 | $0.00 | $0.00 | $0.00 | $26.00 |
| 2026 | 32809 | FP ADMIN - FP ADMIN | $0.50 | $0.00 | $0.00 | $0.00 | $0.00 | $0.50 |
| 2026 | 32809 | TOTAL: | $1129.62 | $1129.00 | $0.00 | $0.00 | $0.00 | $2258.62 |
|
| 2026 | 32809 | $1129.62 | $1129.00 | $0.00 | $0.00 | $0.00 | $2258.62 |
Statement Details |
| 2025 | 32884 | STATE - STATE LEVY (SCHOOL) | $318.79 | $318.78 | $0.00 | $0.00 | $637.57 | $0.00 |
| 2025 | 32884 | COUNTY - COUNTY LEVIES (CE, DD, VET, MH) | $125.37 | $125.36 | $0.00 | $0.00 | $250.73 | $0.00 |
| 2025 | 32884 | CONSERVE - CONSERVATION FUTURES | $3.76 | $3.76 | $0.00 | $0.00 | $7.52 | $0.00 |
| 2025 | 32884 | COROADS - COUNTY ROADS (ROADS, DIV TO CE) | $100.44 | $100.43 | $0.00 | $0.00 | $200.87 | $0.00 |
| 2025 | 32884 | PORTPT - PORT DISTRICT | $51.16 | $51.15 | $0.00 | $0.00 | $102.31 | $0.00 |
| 2025 | 32884 | PUD1 - PUD #1 | $8.21 | $8.20 | $0.00 | $0.00 | $16.41 | $0.00 |
| 2025 | 32884 | LIB1 - LIBRARY DIST #1 | $38.86 | $38.85 | $0.00 | $0.00 | $77.71 | $0.00 |
| 2025 | 32884 | HD2 - HOSP DIST #2 | $7.32 | $7.31 | $0.00 | $0.00 | $14.63 | $0.00 |
| 2025 | 32884 | SD50 - SCHOOL DIST #50 | $232.99 | $232.97 | $0.00 | $0.00 | $465.96 | $0.00 |
| 2025 | 32884 | FD1 - FIRE DISTRICT #1 | $165.43 | $165.43 | $0.00 | $0.00 | $330.86 | $0.00 |
| 2025 | 32884 | EMS1 - FIRE DIST #1 EMS | $63.63 | $63.63 | $0.00 | $0.00 | $127.26 | $0.00 |
| 2025 | 32884 | FP - DNR Forest Fire Protection Assmt | $8.50 | $8.50 | $0.00 | $0.00 | $17.00 | $0.00 |
| 2025 | 32884 | FPLCA - DNR Landowner Contingency Assmt | $3.00 | $3.00 | $0.00 | $0.00 | $6.00 | $0.00 |
| 2025 | 32884 | JCCD - JC Conservation District | $2.57 | $2.57 | $0.00 | $0.00 | $5.14 | $0.00 |
| 2025 | 32884 | NWA - Noxious Weed Assessment | $2.30 | $2.30 | $0.00 | $0.00 | $4.60 | $0.00 |
| 2025 | 32884 | WAT - Clean Water District | $13.00 | $13.00 | $0.00 | $0.00 | $26.00 | $0.00 |
| 2025 | 32884 | FP ADMIN - FP ADMIN | $0.50 | $0.00 | $0.00 | $0.00 | $0.50 | $0.00 |
| 2025 | 32884 | TOTAL: | $1145.83 | $1145.24 | $0.00 | $0.00 | $2291.07 | $0.00 |
|
| 2025 | 32884 | $1145.83 | $1145.24 | $0.00 | $0.00 | $2291.07 | $0.00 |
Statement Details |
| 2024 | 32943 | STATE - STATE LEVY (SCHOOL) | $287.87 | $287.86 | $0.00 | $0.00 | $575.73 | $0.00 |
| 2024 | 32943 | COUNTY - COUNTY LEVIES (CE, DD, VET, MH) | $123.20 | $123.16 | $0.00 | $0.00 | $246.36 | $0.00 |
| 2024 | 32943 | CONSERVE - CONSERVATION FUTURES | $3.70 | $3.69 | $0.00 | $0.00 | $7.39 | $0.00 |
| 2024 | 32943 | COROADS - COUNTY ROADS (ROADS, DIV TO CE) | $99.13 | $99.11 | $0.00 | $0.00 | $198.24 | $0.00 |
| 2024 | 32943 | PORTPT - PORT DISTRICT | $50.88 | $50.88 | $0.00 | $0.00 | $101.76 | $0.00 |
| 2024 | 32943 | PUD1 - PUD #1 | $8.09 | $8.09 | $0.00 | $0.00 | $16.18 | $0.00 |
| 2024 | 32943 | LIB1 - LIBRARY DIST #1 | $38.35 | $38.35 | $0.00 | $0.00 | $76.70 | $0.00 |
| 2024 | 32943 | HD2 - HOSP DIST #2 | $7.19 | $7.18 | $0.00 | $0.00 | $14.37 | $0.00 |
| 2024 | 32943 | SD50 - SCHOOL DIST #50 | $232.90 | $232.90 | $0.00 | $0.00 | $465.80 | $0.00 |
| 2024 | 32943 | FD1 - FIRE DISTRICT #1 | $162.88 | $162.87 | $0.00 | $0.00 | $325.75 | $0.00 |
| 2024 | 32943 | EMS1 - FIRE DIST #1 EMS | $62.22 | $62.21 | $0.00 | $0.00 | $124.43 | $0.00 |
| 2024 | 32943 | FP - DNR Forest Fire Protection Assmt | $8.50 | $8.50 | $0.00 | $0.00 | $17.00 | $0.00 |
| 2024 | 32943 | FPLCA - DNR Landowner Contingency Assmt | $3.00 | $3.00 | $0.00 | $0.00 | $6.00 | $0.00 |
| 2024 | 32943 | JCCD - JC Conservation District | $2.57 | $2.57 | $0.00 | $0.00 | $5.14 | $0.00 |
| 2024 | 32943 | NWA - Noxious Weed Assessment | $2.30 | $2.30 | $0.00 | $0.00 | $4.60 | $0.00 |
| 2024 | 32943 | WAT - Clean Water District | $12.50 | $12.50 | $0.00 | $0.00 | $25.00 | $0.00 |
| 2024 | 32943 | FP ADMIN - FP ADMIN | $0.50 | $0.00 | $0.00 | $0.00 | $0.50 | $0.00 |
| 2024 | 32943 | TOTAL: | $1105.78 | $1105.17 | $0.00 | $0.00 | $2210.95 | $0.00 |
|
| 2024 | 32943 | $1105.78 | $1105.17 | $0.00 | $0.00 | $2210.95 | $0.00 |
Statement Details |
| 2023 | 32986 | STATE - STATE LEVY (SCHOOL) | $170.10 | $170.08 | $0.00 | $0.00 | $340.18 | $0.00 |
| 2023 | 32986 | COUNTY - COUNTY LEVIES (CE, DD, VET, MH) | $74.22 | $74.21 | $0.00 | $0.00 | $148.43 | $0.00 |
| 2023 | 32986 | CONSERVE - CONSERVATION FUTURES | $2.23 | $2.22 | $0.00 | $0.00 | $4.45 | $0.00 |
| 2023 | 32986 | COROADS - COUNTY ROADS (ROADS, DIV TO CE) | $60.05 | $60.05 | $0.00 | $0.00 | $120.10 | $0.00 |
| 2023 | 32986 | PORTPT - PORT DISTRICT | $31.27 | $31.26 | $0.00 | $0.00 | $62.53 | $0.00 |
| 2023 | 32986 | PUD1 - PUD #1 | $4.92 | $4.92 | $0.00 | $0.00 | $9.84 | $0.00 |
| 2023 | 32986 | LIB1 - LIBRARY DIST #1 | $23.24 | $23.23 | $0.00 | $0.00 | $46.47 | $0.00 |
| 2023 | 32986 | HD2 - HOSP DIST #2 | $4.33 | $4.33 | $0.00 | $0.00 | $8.66 | $0.00 |
| 2023 | 32986 | SD50 - SCHOOL DIST #50 | $134.97 | $134.96 | $0.00 | $0.00 | $269.93 | $0.00 |
| 2023 | 32986 | FD1 - FIRE DISTRICT #1 | $61.15 | $61.14 | $0.00 | $0.00 | $122.29 | $0.00 |
| 2023 | 32986 | EMS1 - FIRE DIST #1 EMS | $26.01 | $26.01 | $0.00 | $0.00 | $52.02 | $0.00 |
| 2023 | 32986 | FP - DNR Forest Fire Protection Assmt | $8.50 | $8.50 | $0.00 | $0.00 | $17.00 | $0.00 |
| 2023 | 32986 | FPLCA - DNR Landowner Contingency Assmt | $3.00 | $3.00 | $0.00 | $0.00 | $6.00 | $0.00 |
| 2023 | 32986 | JCCD - JC Conservation District | $2.57 | $2.57 | $0.00 | $0.00 | $5.14 | $0.00 |
| 2023 | 32986 | NWA - Noxious Weed Assessment | $2.30 | $2.30 | $0.00 | $0.00 | $4.60 | $0.00 |
| 2023 | 32986 | WAT - Clean Water District | $12.00 | $12.00 | $0.00 | $0.00 | $24.00 | $0.00 |
| 2023 | 32986 | FP ADMIN - FP ADMIN | $0.50 | $0.00 | $0.00 | $0.00 | $0.50 | $0.00 |
| 2023 | 32986 | TOTAL: | $621.36 | $620.78 | $0.00 | $0.00 | $1242.14 | $0.00 |
|
| 2023 | 32986 | $621.36 | $620.78 | $0.00 | $0.00 | $1242.14 | $0.00 |
Values
| (+) Improvement Homesite Value: | + | $0 | |
| (+) Improvement Non-Homesite Value: | + | $5,175 | |
| (+) Land Homesite Value: | + | $0 | |
| (+) Land Non-Homesite Value: | + | $260,700 | |
| (+) Curr Use (HS): | + | $0 | $0 |
| (+) Curr Use (NHS): | + | $0 | $0 |
| | | -------------------------- | |
| (=) Market Value: | = | $265,875 | |
| (–) Productivity Loss: | – | $0 | |
| | | -------------------------- | |
| (=) Subtotal: | = | $265,875 | |
| (+) Senior Appraised Value: | + | $0 | |
| (+) Non-Senior Appraised Value: | + | $265,875 | |
| | | -------------------------- | |
| (=) Total Appraised Value: | = | $265,875 | |
| (–) Senior Exemption Loss: | – | $0 | |
| (–) Exemption Loss: | – | $0 | |
| | | -------------------------- | |
| (=) Taxable Value: | = | $265,875 | |
Taxing Jurisdiction
| Owner: | REVOCABLE LIVING TRUST OF ALEXANDRA C BRADLEY | | |
| % Ownership: | 100.0000000000% | | |
| Total Value: | N/A | | |
| Tax Area: | 0111 - 1-50F1E1H2L1 |
| CE | COUNTY CURRENT EXPENSE | N/A | N/A | N/A | N/A | | |
| CNTYDD | DEVELOPMENTAL DISABILITIES | N/A | N/A | N/A | N/A | | |
| CNTYVET | VETERANS RELIEF | N/A | N/A | N/A | N/A | | |
| MENTAL | MENTAL HEALTH | N/A | N/A | N/A | N/A | | |
| ROADS | COUNTY ROADS | N/A | N/A | N/A | N/A | | |
| HOSP2CASH | HOSP DIST #2 GENERAL | N/A | N/A | N/A | N/A | | |
| SCH50BOND | SCHOOL DIST #50 BOND 2016 | N/A | N/A | N/A | N/A | | |
| SCH50CP | SCHOOL DIST #50 CAP PROJ | N/A | N/A | N/A | N/A | | |
| SCH50MO | SCHOOL DIST #50 EP & O | N/A | N/A | N/A | N/A | | |
| CONSERVE | CONSERVATION FUTURES | N/A | N/A | N/A | N/A | | |
| EMS1 | FIRE DIST #1 EMS | N/A | N/A | N/A | N/A | | |
| FD1 | FIRE DIST #1 GENERAL | N/A | N/A | N/A | N/A | | |
| LIB1 | LIBRARY DIST #1 GENERAL | N/A | N/A | N/A | N/A | | |
| PORTPT | PORT OF PT GENERAL | N/A | N/A | N/A | N/A | | |
| PORTPTIDD | PORT OF PT IDD 2019 | N/A | N/A | N/A | N/A | | |
| PUD1 | PUD #1 GENERAL | N/A | N/A | N/A | N/A | | |
| STATE | STATE SCHOOL PART 1 | N/A | N/A | N/A | N/A | | |
| STATE2 | STATE SCHOOL PART 2 | N/A | N/A | N/A | N/A | | |
| | Total Tax Rate: | N/A | | | | | |
| | | | | Taxes w/Current Exemptions: | N/A | | |
| | | | | Taxes w/o Exemptions: | N/A | | |
Improvement / Building
| Improvement #1: | Residential Bldg | State Code: | 10 | 0.0 sqft | Value: | $5,175 |
Sketch
| No sketches available for this property. |
Property Image
Land
| 1 | 5320-1183L | | 0.0000 | 0.00 | 0.00 | 0.00 | 4.00 | $79,200 | $0 |
| 2 | 5320-1285S | | 1.0000 | 43560.00 | 0.00 | 0.00 | 3.00 | $181,500 | $0 |
Roll Value History
| 2026 | N/A | N/A | N/A | N/A | N/A |
| 2025 | $5,175 | $260,700 | $0 | $265,875 | $265,875 |
| 2024 | $5,175 | $260,700 | $0 | $265,875 | $265,875 |
| 2023 | $0 | $248,850 | $0 | $248,850 | $248,850 |
| 2022 | $0 | $144,500 | $0 | $144,500 | $144,500 |
Deed and Sales History
| 1 | 02/08/2023 | SWD | Statutory Warranty Deed | DEANA F HART | REVOCABLE LIVING TRUST OF ALEXANDRA C BRADLEY | | | $307,000.00 | 140508 | |
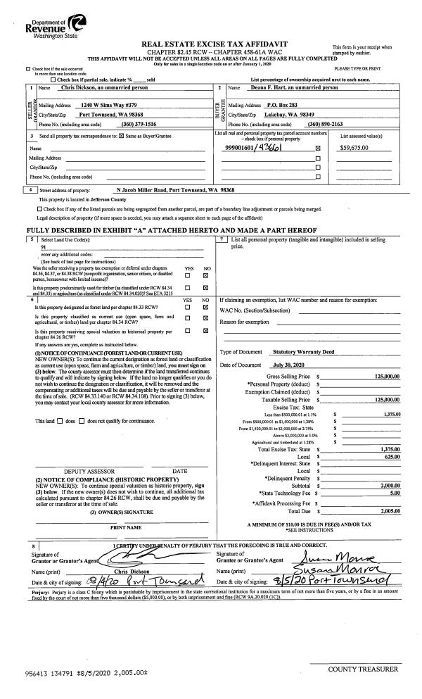
| 2 | 07/30/2020 | SWD | Statutory Warranty Deed | CHRIS DICKSON | DEANA F HART | | | $125,000.00 | 134791 | |
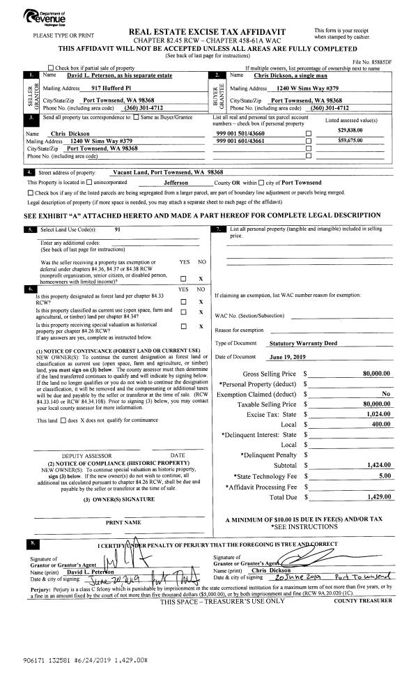
| 3 | 06/19/2019 | SWD | Statutory Warranty Deed | DAVID L PETERSON | CHRIS DICKSON | | | $80,000.00 | 132581 | |
|   | |
| 4 | 07/11/2011 | QCD | Quit Claim Deed | PETERSON, JANE FOSTER | PETERSON, DAVID LEE | 0 | 0 | $0.00 | 116335 | 0 |
| 5 | 03/08/1994 | SWD | Statutory Warranty Deed | GEORGE, THOMAS W/SPAETH, | PETERSON, DAVID L/JANE F | 0 | 0 | $40,000.00 | 73538 | 0 |
|   | |
| 6 | 03/02/1992 | SWD | Statutory Warranty Deed | JUNG, PAUL P | GEORGE, THOMAS W/SPAETH, SARAH | 0 | 0 | $0.00 | 67844 | 0 |
Payout Agreement
| No payout information available.. |