Property
Account |
| Property ID: | 43778 | Abbreviated Legal Description: | TOWNE POINT LOT 23 (REVISED) |
| Parcel # / Geo ID: | 999100023 | Agent Code: | |
| Type: | Real | | |
| Tax Area: | 0110 - C-50F1E1H2 | Land Use Code | 11 |
| Open Space: | N | DFL | N |
| Historic Property: | N | Remodel Property: | N |
| Multi-Family Redevelopment: | N | | |
| Township: | 30N | Section: | 10 |
| Range: | 1W |
Location |
| Address: | 2024 QUEEN ANNE PL PORT TOWNSEND, WA 98368 | Mapsco: | 138/019 |
| Neighborhood: | TOWNE POINT I & TOWNE POINT II | Map ID: | |
| Neighborhood CD: | 6150 |
Owner |
| Name: | WJM LIVING TRUST | Owner ID: | 113907 |
| Mailing Address: | WELSONIA J MAGAT TRUSTEE 2024 QUEEN ANNE PL PORT TOWNSEND, WA 98368-7305 | % Ownership: | 100.0000000000% |
| | | Exemptions: | |
Pay Tax Due
Select the appropriate checkbox next to the year to be paid. Multiple years may be selected.
*Convenience Fee not included
Taxes and Assessment Details
Property Tax Information as of
03/10/2026
Click on "Statement Details" to expand or collapse a tax statement.
* Please enter a valid date ** Please enter a valid date *
Statement Details |
| 2026 | 32921 | STATE - STATE LEVY (SCHOOL) | $324.92 | $324.90 | $0.00 | $0.00 | $0.00 | $649.82 |
| 2026 | 32921 | COUNTY - COUNTY LEVIES (CE, DD, VET, MH) | $129.91 | $129.88 | $0.00 | $0.00 | $0.00 | $259.79 |
| 2026 | 32921 | CONSERVE - CONSERVATION FUTURES | $3.90 | $3.89 | $0.00 | $0.00 | $0.00 | $7.79 |
| 2026 | 32921 | CITYPT - CITY OF PT | $184.38 | $184.37 | $0.00 | $0.00 | $0.00 | $368.75 |
| 2026 | 32921 | PORTPT - PORT DISTRICT | $52.47 | $52.46 | $0.00 | $0.00 | $0.00 | $104.93 |
| 2026 | 32921 | PUD1 - PUD #1 | $8.45 | $8.45 | $0.00 | $0.00 | $0.00 | $16.90 |
| 2026 | 32921 | HD2 - HOSP DIST #2 | $7.58 | $7.57 | $0.00 | $0.00 | $0.00 | $15.15 |
| 2026 | 32921 | SD50 - SCHOOL DIST #50 | $257.41 | $257.39 | $0.00 | $0.00 | $0.00 | $514.80 |
| 2026 | 32921 | FD1 - FIRE DISTRICT #1 | $172.02 | $172.01 | $0.00 | $0.00 | $0.00 | $344.03 |
| 2026 | 32921 | EMS1 - FIRE DIST #1 EMS | $66.14 | $66.13 | $0.00 | $0.00 | $0.00 | $132.27 |
| 2026 | 32921 | JCCD - JC Conservation District | $2.55 | $2.55 | $0.00 | $0.00 | $0.00 | $5.10 |
| 2026 | 32921 | NWA - Noxious Weed Assessment | $2.98 | $2.97 | $0.00 | $0.00 | $0.00 | $5.95 |
| 2026 | 32921 | TOTAL: | $1212.71 | $1212.57 | $0.00 | $0.00 | $0.00 | $2425.28 |
|
| 2026 | 32921 | $1212.71 | $1212.57 | $0.00 | $0.00 | $0.00 | $2425.28 |
Statement Details |
| 2025 | 32997 | STATE - STATE LEVY (SCHOOL) | $348.23 | $348.21 | $0.00 | $0.00 | $696.44 | $0.00 |
| 2025 | 32997 | COUNTY - COUNTY LEVIES (CE, DD, VET, MH) | $136.95 | $136.92 | $0.00 | $0.00 | $273.87 | $0.00 |
| 2025 | 32997 | CONSERVE - CONSERVATION FUTURES | $4.11 | $4.10 | $0.00 | $0.00 | $8.21 | $0.00 |
| 2025 | 32997 | CITYPT - CITY OF PT | $197.48 | $197.47 | $0.00 | $0.00 | $394.95 | $0.00 |
| 2025 | 32997 | PORTPT - PORT DISTRICT | $55.88 | $55.88 | $0.00 | $0.00 | $111.76 | $0.00 |
| 2025 | 32997 | PUD1 - PUD #1 | $8.96 | $8.96 | $0.00 | $0.00 | $17.92 | $0.00 |
| 2025 | 32997 | HD2 - HOSP DIST #2 | $7.99 | $7.99 | $0.00 | $0.00 | $15.98 | $0.00 |
| 2025 | 32997 | SD50 - SCHOOL DIST #50 | $254.50 | $254.48 | $0.00 | $0.00 | $508.98 | $0.00 |
| 2025 | 32997 | FD1 - FIRE DISTRICT #1 | $180.70 | $180.70 | $0.00 | $0.00 | $361.40 | $0.00 |
| 2025 | 32997 | EMS1 - FIRE DIST #1 EMS | $69.50 | $69.50 | $0.00 | $0.00 | $139.00 | $0.00 |
| 2025 | 32997 | JCCD - JC Conservation District | $2.55 | $2.55 | $0.00 | $0.00 | $5.10 | $0.00 |
| 2025 | 32997 | NWA - Noxious Weed Assessment | $2.15 | $2.15 | $0.00 | $0.00 | $4.30 | $0.00 |
| 2025 | 32997 | TOTAL: | $1269.00 | $1268.91 | $0.00 | $0.00 | $2537.91 | $0.00 |
|
| 2025 | 32997 | $1269.00 | $1268.91 | $0.00 | $0.00 | $2537.91 | $0.00 |
Statement Details |
| 2024 | 33059 | STATE - STATE LEVY (SCHOOL) | $315.07 | $315.06 | $0.00 | $0.00 | $630.13 | $0.00 |
| 2024 | 33059 | COUNTY - COUNTY LEVIES (CE, DD, VET, MH) | $134.82 | $134.81 | $0.00 | $0.00 | $269.63 | $0.00 |
| 2024 | 33059 | CONSERVE - CONSERVATION FUTURES | $4.05 | $4.04 | $0.00 | $0.00 | $8.09 | $0.00 |
| 2024 | 33059 | CITYPT - CITY OF PT | $192.64 | $192.63 | $0.00 | $0.00 | $385.27 | $0.00 |
| 2024 | 33059 | PORTPT - PORT DISTRICT | $55.69 | $55.68 | $0.00 | $0.00 | $111.37 | $0.00 |
| 2024 | 33059 | PUD1 - PUD #1 | $8.86 | $8.85 | $0.00 | $0.00 | $17.71 | $0.00 |
| 2024 | 33059 | HD2 - HOSP DIST #2 | $7.87 | $7.86 | $0.00 | $0.00 | $15.73 | $0.00 |
| 2024 | 33059 | SD50 - SCHOOL DIST #50 | $254.90 | $254.90 | $0.00 | $0.00 | $509.80 | $0.00 |
| 2024 | 33059 | FD1 - FIRE DISTRICT #1 | $178.27 | $178.26 | $0.00 | $0.00 | $356.53 | $0.00 |
| 2024 | 33059 | EMS1 - FIRE DIST #1 EMS | $68.09 | $68.09 | $0.00 | $0.00 | $136.18 | $0.00 |
| 2024 | 33059 | JCCD - JC Conservation District | $2.55 | $2.55 | $0.00 | $0.00 | $5.10 | $0.00 |
| 2024 | 33059 | NWA - Noxious Weed Assessment | $2.15 | $2.15 | $0.00 | $0.00 | $4.30 | $0.00 |
| 2024 | 33059 | TOTAL: | $1224.96 | $1224.88 | $0.00 | $0.00 | $2449.84 | $0.00 |
|
| 2024 | 33059 | $1224.96 | $1224.88 | $0.00 | $0.00 | $2449.84 | $0.00 |
Statement Details |
| 2023 | 33102 | STATE - STATE LEVY (SCHOOL) | $314.71 | $314.70 | $0.00 | $0.00 | $629.41 | $0.00 |
| 2023 | 33102 | COUNTY - COUNTY LEVIES (CE, DD, VET, MH) | $137.33 | $137.33 | $0.00 | $0.00 | $274.66 | $0.00 |
| 2023 | 33102 | CONSERVE - CONSERVATION FUTURES | $4.12 | $4.12 | $0.00 | $0.00 | $8.24 | $0.00 |
| 2023 | 33102 | CITYPT - CITY OF PT | $194.09 | $194.09 | $0.00 | $0.00 | $388.18 | $0.00 |
| 2023 | 33102 | PORTPT - PORT DISTRICT | $57.86 | $57.84 | $0.00 | $0.00 | $115.70 | $0.00 |
| 2023 | 33102 | PUD1 - PUD #1 | $9.11 | $9.10 | $0.00 | $0.00 | $18.21 | $0.00 |
| 2023 | 33102 | HD2 - HOSP DIST #2 | $8.01 | $8.01 | $0.00 | $0.00 | $16.02 | $0.00 |
| 2023 | 33102 | SD50 - SCHOOL DIST #50 | $249.72 | $249.72 | $0.00 | $0.00 | $499.44 | $0.00 |
| 2023 | 33102 | FD1 - FIRE DISTRICT #1 | $113.13 | $113.13 | $0.00 | $0.00 | $226.26 | $0.00 |
| 2023 | 33102 | EMS1 - FIRE DIST #1 EMS | $48.13 | $48.12 | $0.00 | $0.00 | $96.25 | $0.00 |
| 2023 | 33102 | JCCD - JC Conservation District | $2.55 | $2.55 | $0.00 | $0.00 | $5.10 | $0.00 |
| 2023 | 33102 | NWA - Noxious Weed Assessment | $2.15 | $2.15 | $0.00 | $0.00 | $4.30 | $0.00 |
| 2023 | 33102 | TOTAL: | $1140.91 | $1140.86 | $0.00 | $0.00 | $2281.77 | $0.00 |
|
| 2023 | 33102 | $1140.91 | $1140.86 | $0.00 | $0.00 | $2281.77 | $0.00 |
Values
| (+) Improvement Homesite Value: | + | $0 | |
| (+) Improvement Non-Homesite Value: | + | $177,642 | |
| (+) Land Homesite Value: | + | $0 | |
| (+) Land Non-Homesite Value: | + | $105,000 | |
| (+) Curr Use (HS): | + | $0 | $0 |
| (+) Curr Use (NHS): | + | $0 | $0 |
| | | -------------------------- | |
| (=) Market Value: | = | $282,642 | |
| (–) Productivity Loss: | – | $0 | |
| | | -------------------------- | |
| (=) Subtotal: | = | $282,642 | |
| (+) Senior Appraised Value: | + | $0 | |
| (+) Non-Senior Appraised Value: | + | $282,642 | |
| | | -------------------------- | |
| (=) Total Appraised Value: | = | $282,642 | |
| (–) Senior Exemption Loss: | – | $0 | |
| (–) Exemption Loss: | – | $0 | |
| | | -------------------------- | |
| (=) Taxable Value: | = | $282,642 | |
Taxing Jurisdiction
| Owner: | WJM LIVING TRUST | | |
| % Ownership: | 100.0000000000% | | |
| Total Value: | $282,642 | | |
| Tax Area: | 0110 - C-50F1E1H2 |
| CE | COUNTY CURRENT EXPENSE | 0.9034619479 | $282,642 | $282,642 | $255.36 | | |
| CNTYDD | DEVELOPMENTAL DISABILITIES | 0.0052121823 | $282,642 | $282,642 | $1.47 | | |
| CNTYVET | VETERANS RELIEF | 0.0052777810 | $282,642 | $282,642 | $1.49 | | |
| MENTAL | MENTAL HEALTH | 0.0052121823 | $282,642 | $282,642 | $1.47 | | |
| PTGEN | CITY OF PT GENERAL | 0.8551967795 | $282,642 | $282,642 | $241.71 | | |
| PTLLL | CITY OF PT - LIBRARY LID LIFT | 0.4010114288 | $282,642 | $282,642 | $113.34 | | |
| PTMVBOND | CITY OF PT MV BOND | 0.0484717981 | $282,642 | $282,642 | $13.70 | | |
| HOSP2CASH | HOSP DIST #2 GENERAL | 0.0536075306 | $282,642 | $282,642 | $15.15 | | |
| SCH50BOND | SCHOOL DIST #50 BOND 2016 | 0.5377451389 | $282,642 | $282,642 | $151.99 | | |
| SCH50CP | SCHOOL DIST #50 CAP PROJ | 0.4573475088 | $282,642 | $282,642 | $129.27 | | |
| SCH50MO | SCHOOL DIST #50 EP & O | 0.8262822886 | $282,642 | $282,642 | $233.54 | | |
| CONSERVE | CONSERVATION FUTURES | 0.0275621078 | $282,642 | $282,642 | $7.79 | | |
| EMS1 | FIRE DIST #1 EMS | 0.4679948282 | $282,642 | $282,642 | $132.27 | | |
| FD1 | FIRE DIST #1 GENERAL | 1.2171942929 | $282,642 | $282,642 | $344.03 | | |
| PORTPT | PORT OF PT GENERAL | 0.1134941229 | $282,642 | $282,642 | $32.08 | | |
| PORTPTIDD | PORT OF PT IDD 2019 | 0.2577346692 | $282,642 | $282,642 | $72.85 | | |
| PUD1 | PUD #1 GENERAL | 0.0597888892 | $282,642 | $282,642 | $16.90 | | |
| STATE | STATE SCHOOL PART 1 | 1.4940692947 | $282,642 | $282,642 | $422.29 | | |
| STATE2 | STATE SCHOOL PART 2 | 0.8050170049 | $282,642 | $282,642 | $227.53 | | |
| | Total Tax Rate: | 8.5416817766 | | | | | |
| | | | | Taxes w/Current Exemptions: | $2,414.23 | | |
| | | | | Taxes w/o Exemptions: | $2,414.23 | | |
Improvement / Building
| Improvement #1: | Manufactured Home | State Code: | 11 | 1755.0 sqft | Value: | $177,642 |
| Bathrooms (#): | 2 (FULL) | Bedrooms (#): | 2 | | Exterior Wall: | SI/ST | Floor Construction: | FRAME | | Foundation: | PO&BL | Heating/Cooling: | F/A | | Inside Verify: | YES-FIX | Roof Cover: | COMP |
|
| | Type | Description | Class CD | Sub Class CD | Year Built | Area |
| | MA | Main Area | 3+ | MDBL | 1990 | 1755.0 |
| | MDECK | MH Deck | 3 | * | 1990 | 216.0 |
| | MATT | MH Attached Garage | 3 | MDBL | 1990 | 360.0 |
| | MSKIRT_WD | MH Skirting - Wood | 3 | * | 1990 | 184.0 |
Sketch
| No sketches available for this property. |
Property Image
Land
| 1 | 6150-1187L | | 0.0000 | 0.00 | 0.00 | 0.00 | 1.00 | $105,000 | $0 |
Roll Value History
| 2026 | N/A | N/A | N/A | N/A | N/A |
| 2025 | $177,642 | $105,000 | $0 | $282,642 | $282,642 |
| 2024 | $185,420 | $105,000 | $0 | $290,420 | $290,420 |
| 2023 | $177,359 | $95,000 | $0 | $272,359 | $272,359 |
| 2022 | $177,359 | $90,000 | $0 | $267,359 | $267,359 |
Deed and Sales History
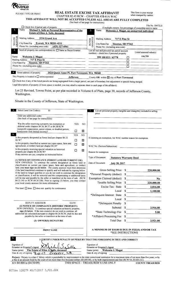
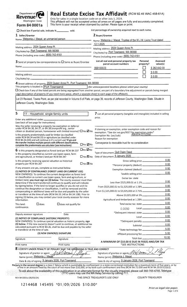
| 1 | 01/09/2026 | QCD | Quit Claim Deed | WELSONIA J MAGAT | WJM LIVING TRUST | | | | 145495 | |
| 2 | 07/28/2017 | SWD | Statutory Warranty Deed | ELLEN A SELLS | WELSONIA J MAGAT | | | $220,000.00 | 128279 | |
Payout Agreement
| No payout information available.. |