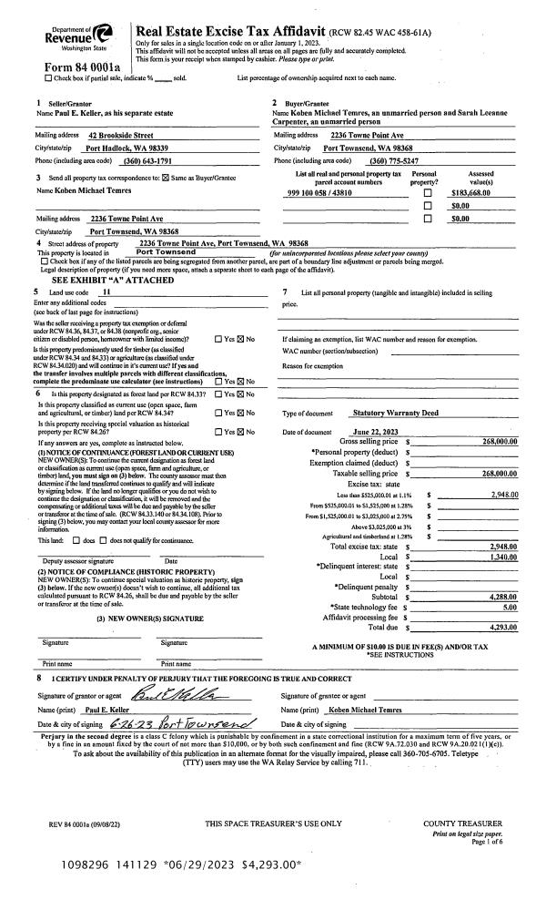
Property
Account |
| Property ID: | 43810 | Abbreviated Legal Description: | TOWNE POINT LOT 58 |
| Parcel # / Geo ID: | 999100058 | Agent Code: | |
| Type: | Real | | |
| Tax Area: | 0110 - C-50F1E1H2 | Land Use Code | 11 |
| Open Space: | N | DFL | N |
| Historic Property: | N | Remodel Property: | N |
| Multi-Family Redevelopment: | N | | |
| Township: | 30N | Section: | 9 |
| Range: | 1W |
Location |
| Address: | 2236 TOWNE POINT AVE PORT TOWNSEND, WA 98368 | Mapsco: | 139/015 |
| Neighborhood: | TOWNE POINT I & TOWNE POINT II | Map ID: | |
| Neighborhood CD: | 6150 |
Owner |
| Name: | KOBEN M TEMRES | Owner ID: | 109187 |
| Mailing Address: | SARAH L CARPENTER 2236 TOWNE POINT AVE PORT TOWNSEND, WA 98368-7313 | % Ownership: | 100.0000000000% |
| | | Exemptions: | |
Pay Tax Due
Select the appropriate checkbox next to the year to be paid. Multiple years may be selected.
*Convenience Fee not included
Taxes and Assessment Details
Property Tax Information as of
03/12/2026
Click on "Statement Details" to expand or collapse a tax statement.
* Please enter a valid date ** Please enter a valid date *
Statement Details |
| 2026 | 32953 | STATE - STATE LEVY (SCHOOL) | $301.04 | $301.02 | $0.00 | $0.00 | $0.00 | $602.06 |
| 2026 | 32953 | COUNTY - COUNTY LEVIES (CE, DD, VET, MH) | $120.35 | $120.34 | $0.00 | $0.00 | $0.00 | $240.69 |
| 2026 | 32953 | CONSERVE - CONSERVATION FUTURES | $3.61 | $3.61 | $0.00 | $0.00 | $0.00 | $7.22 |
| 2026 | 32953 | CITYPT - CITY OF PT | $170.84 | $170.81 | $0.00 | $0.00 | $0.00 | $341.65 |
| 2026 | 32953 | PORTPT - PORT DISTRICT | $48.61 | $48.60 | $0.00 | $0.00 | $0.00 | $97.21 |
| 2026 | 32953 | PUD1 - PUD #1 | $7.83 | $7.83 | $0.00 | $0.00 | $0.00 | $15.66 |
| 2026 | 32953 | HD2 - HOSP DIST #2 | $7.02 | $7.02 | $0.00 | $0.00 | $0.00 | $14.04 |
| 2026 | 32953 | SD50 - SCHOOL DIST #50 | $238.49 | $238.48 | $0.00 | $0.00 | $0.00 | $476.97 |
| 2026 | 32953 | FD1 - FIRE DISTRICT #1 | $159.38 | $159.37 | $0.00 | $0.00 | $0.00 | $318.75 |
| 2026 | 32953 | EMS1 - FIRE DIST #1 EMS | $61.28 | $61.27 | $0.00 | $0.00 | $0.00 | $122.55 |
| 2026 | 32953 | JCCD - JC Conservation District | $2.55 | $2.55 | $0.00 | $0.00 | $0.00 | $5.10 |
| 2026 | 32953 | NWA - Noxious Weed Assessment | $2.98 | $2.97 | $0.00 | $0.00 | $0.00 | $5.95 |
| 2026 | 32953 | TOTAL: | $1123.98 | $1123.87 | $0.00 | $0.00 | $0.00 | $2247.85 |
|
| 2026 | 32953 | $1123.98 | $1123.87 | $0.00 | $0.00 | $0.00 | $2247.85 |
Statement Details |
| 2025 | 33029 | STATE - STATE LEVY (SCHOOL) | $314.89 | $314.88 | $0.00 | $0.00 | $629.77 | $0.00 |
| 2025 | 33029 | COUNTY - COUNTY LEVIES (CE, DD, VET, MH) | $123.83 | $123.82 | $0.00 | $0.00 | $247.65 | $0.00 |
| 2025 | 33029 | CONSERVE - CONSERVATION FUTURES | $3.72 | $3.71 | $0.00 | $0.00 | $7.43 | $0.00 |
| 2025 | 33029 | CITYPT - CITY OF PT | $178.58 | $178.57 | $0.00 | $0.00 | $357.15 | $0.00 |
| 2025 | 33029 | PORTPT - PORT DISTRICT | $50.53 | $50.53 | $0.00 | $0.00 | $101.06 | $0.00 |
| 2025 | 33029 | PUD1 - PUD #1 | $8.10 | $8.10 | $0.00 | $0.00 | $16.20 | $0.00 |
| 2025 | 33029 | HD2 - HOSP DIST #2 | $7.23 | $7.22 | $0.00 | $0.00 | $14.45 | $0.00 |
| 2025 | 33029 | SD50 - SCHOOL DIST #50 | $230.13 | $230.12 | $0.00 | $0.00 | $460.25 | $0.00 |
| 2025 | 33029 | FD1 - FIRE DISTRICT #1 | $163.40 | $163.40 | $0.00 | $0.00 | $326.80 | $0.00 |
| 2025 | 33029 | EMS1 - FIRE DIST #1 EMS | $62.85 | $62.85 | $0.00 | $0.00 | $125.70 | $0.00 |
| 2025 | 33029 | JCCD - JC Conservation District | $2.55 | $2.55 | $0.00 | $0.00 | $5.10 | $0.00 |
| 2025 | 33029 | NWA - Noxious Weed Assessment | $2.15 | $2.15 | $0.00 | $0.00 | $4.30 | $0.00 |
| 2025 | 33029 | TOTAL: | $1147.96 | $1147.90 | $0.00 | $0.00 | $2295.86 | $0.00 |
|
| 2025 | 33029 | $1147.96 | $1147.90 | $0.00 | $0.00 | $2295.86 | $0.00 |
Statement Details |
| 2024 | 33091 | STATE - STATE LEVY (SCHOOL) | $284.30 | $284.30 | $0.00 | $0.00 | $568.60 | $0.00 |
| 2024 | 33091 | COUNTY - COUNTY LEVIES (CE, DD, VET, MH) | $121.67 | $121.63 | $0.00 | $0.00 | $243.30 | $0.00 |
| 2024 | 33091 | CONSERVE - CONSERVATION FUTURES | $3.65 | $3.65 | $0.00 | $0.00 | $7.30 | $0.00 |
| 2024 | 33091 | CITYPT - CITY OF PT | $173.83 | $173.82 | $0.00 | $0.00 | $347.65 | $0.00 |
| 2024 | 33091 | PORTPT - PORT DISTRICT | $50.25 | $50.24 | $0.00 | $0.00 | $100.49 | $0.00 |
| 2024 | 33091 | PUD1 - PUD #1 | $7.99 | $7.99 | $0.00 | $0.00 | $15.98 | $0.00 |
| 2024 | 33091 | HD2 - HOSP DIST #2 | $7.10 | $7.10 | $0.00 | $0.00 | $14.20 | $0.00 |
| 2024 | 33091 | SD50 - SCHOOL DIST #50 | $230.02 | $230.01 | $0.00 | $0.00 | $460.03 | $0.00 |
| 2024 | 33091 | FD1 - FIRE DISTRICT #1 | $160.86 | $160.85 | $0.00 | $0.00 | $321.71 | $0.00 |
| 2024 | 33091 | EMS1 - FIRE DIST #1 EMS | $61.44 | $61.44 | $0.00 | $0.00 | $122.88 | $0.00 |
| 2024 | 33091 | JCCD - JC Conservation District | $2.55 | $2.55 | $0.00 | $0.00 | $5.10 | $0.00 |
| 2024 | 33091 | NWA - Noxious Weed Assessment | $2.15 | $2.15 | $0.00 | $0.00 | $4.30 | $0.00 |
| 2024 | 33091 | TOTAL: | $1105.81 | $1105.73 | $0.00 | $0.00 | $2211.54 | $0.00 |
|
| 2024 | 33091 | $1105.81 | $1105.73 | $0.00 | $0.00 | $2211.54 | $0.00 |
Statement Details |
| 2023 | 33134 | STATE - STATE LEVY (SCHOOL) | $216.20 | $216.19 | $0.00 | $0.00 | $432.39 | $0.00 |
| 2023 | 33134 | COUNTY - COUNTY LEVIES (CE, DD, VET, MH) | $94.35 | $94.32 | $0.00 | $0.00 | $188.67 | $0.00 |
| 2023 | 33134 | CONSERVE - CONSERVATION FUTURES | $2.83 | $2.83 | $0.00 | $0.00 | $5.66 | $0.00 |
| 2023 | 33134 | CITYPT - CITY OF PT | $133.35 | $133.32 | $0.00 | $0.00 | $266.67 | $0.00 |
| 2023 | 33134 | PORTPT - PORT DISTRICT | $39.74 | $39.74 | $0.00 | $0.00 | $79.48 | $0.00 |
| 2023 | 33134 | PUD1 - PUD #1 | $6.26 | $6.25 | $0.00 | $0.00 | $12.51 | $0.00 |
| 2023 | 33134 | HD2 - HOSP DIST #2 | $5.51 | $5.50 | $0.00 | $0.00 | $11.01 | $0.00 |
| 2023 | 33134 | SD50 - SCHOOL DIST #50 | $171.56 | $171.54 | $0.00 | $0.00 | $343.10 | $0.00 |
| 2023 | 33134 | FD1 - FIRE DISTRICT #1 | $77.72 | $77.71 | $0.00 | $0.00 | $155.43 | $0.00 |
| 2023 | 33134 | EMS1 - FIRE DIST #1 EMS | $33.06 | $33.06 | $0.00 | $0.00 | $66.12 | $0.00 |
| 2023 | 33134 | JCCD - JC Conservation District | $2.55 | $2.55 | $0.00 | $0.00 | $5.10 | $0.00 |
| 2023 | 33134 | NWA - Noxious Weed Assessment | $2.15 | $2.15 | $0.00 | $0.00 | $4.30 | $0.00 |
| 2023 | 33134 | TOTAL: | $785.28 | $785.16 | $0.00 | $0.00 | $1570.44 | $0.00 |
|
| 2023 | 33134 | $785.28 | $785.16 | $0.00 | $0.00 | $1570.44 | $0.00 |
Values
| (+) Improvement Homesite Value: | + | $0 | |
| (+) Improvement Non-Homesite Value: | + | $156,872 | |
| (+) Land Homesite Value: | + | $0 | |
| (+) Land Non-Homesite Value: | + | $105,000 | |
| (+) Curr Use (HS): | + | $0 | $0 |
| (+) Curr Use (NHS): | + | $0 | $0 |
| | | -------------------------- | |
| (=) Market Value: | = | $261,872 | |
| (–) Productivity Loss: | – | $0 | |
| | | -------------------------- | |
| (=) Subtotal: | = | $261,872 | |
| (+) Senior Appraised Value: | + | $0 | |
| (+) Non-Senior Appraised Value: | + | $261,872 | |
| | | -------------------------- | |
| (=) Total Appraised Value: | = | $261,872 | |
| (–) Senior Exemption Loss: | – | $0 | |
| (–) Exemption Loss: | – | $0 | |
| | | -------------------------- | |
| (=) Taxable Value: | = | $261,872 | |
Taxing Jurisdiction
| Owner: | KOBEN M TEMRES | | |
| % Ownership: | 100.0000000000% | | |
| Total Value: | $261,872 | | |
| Tax Area: | 0110 - C-50F1E1H2 |
| CE | COUNTY CURRENT EXPENSE | 0.9034619479 | $261,872 | $261,872 | $236.59 | | |
| CNTYDD | DEVELOPMENTAL DISABILITIES | 0.0052121823 | $261,872 | $261,872 | $1.36 | | |
| CNTYVET | VETERANS RELIEF | 0.0052777810 | $261,872 | $261,872 | $1.38 | | |
| MENTAL | MENTAL HEALTH | 0.0052121823 | $261,872 | $261,872 | $1.36 | | |
| PTGEN | CITY OF PT GENERAL | 0.8551967795 | $261,872 | $261,872 | $223.95 | | |
| PTLLL | CITY OF PT - LIBRARY LID LIFT | 0.4010114288 | $261,872 | $261,872 | $105.01 | | |
| PTMVBOND | CITY OF PT MV BOND | 0.0484717981 | $261,872 | $261,872 | $12.69 | | |
| HOSP2CASH | HOSP DIST #2 GENERAL | 0.0536075306 | $261,872 | $261,872 | $14.04 | | |
| SCH50BOND | SCHOOL DIST #50 BOND 2016 | 0.5377451389 | $261,872 | $261,872 | $140.82 | | |
| SCH50CP | SCHOOL DIST #50 CAP PROJ | 0.4573475088 | $261,872 | $261,872 | $119.77 | | |
| SCH50MO | SCHOOL DIST #50 EP & O | 0.8262822886 | $261,872 | $261,872 | $216.38 | | |
| CONSERVE | CONSERVATION FUTURES | 0.0275621078 | $261,872 | $261,872 | $7.22 | | |
| EMS1 | FIRE DIST #1 EMS | 0.4679948282 | $261,872 | $261,872 | $122.55 | | |
| FD1 | FIRE DIST #1 GENERAL | 1.2171942929 | $261,872 | $261,872 | $318.75 | | |
| PORTPT | PORT OF PT GENERAL | 0.1134941229 | $261,872 | $261,872 | $29.72 | | |
| PORTPTIDD | PORT OF PT IDD 2019 | 0.2577346692 | $261,872 | $261,872 | $67.49 | | |
| PUD1 | PUD #1 GENERAL | 0.0597888892 | $261,872 | $261,872 | $15.66 | | |
| STATE | STATE SCHOOL PART 1 | 1.4940692947 | $261,872 | $261,872 | $391.25 | | |
| STATE2 | STATE SCHOOL PART 2 | 0.8050170049 | $261,872 | $261,872 | $210.81 | | |
| | Total Tax Rate: | 8.5416817766 | | | | | |
| | | | | Taxes w/Current Exemptions: | $2,236.80 | | |
| | | | | Taxes w/o Exemptions: | $2,236.80 | | |
Improvement / Building
| Improvement #1: | Manufactured Home | State Code: | 11 | 1016.0 sqft | Value: | $156,872 |
| Bathrooms (#): | 1 (FULL) | Bedrooms (#): | 2 | | Exterior Wall: | PL/T1 | Fireplace: | WD ST-AVG | | Floor Construction: | FRAME | Foundation: | PO&BL | | Heating/Cooling: | F/A | Inside Verify: | YES-FIX | | Roof Cover: | COMP |   |   |
|
| | Type | Description | Class CD | Sub Class CD | Year Built | Area |
| | MA | Main Area | 4 | MFH | 1980 | 1016.0 |
| | MWPOR | MH Wood Porch | 4 | * | 1980 | 147.0 |
| | MDECK | MH Deck | 4 | * | 1980 | 144.0 |
Sketch
| No sketches available for this property. |
Property Image
Land
| 1 | 6150-1187L | | 0.0000 | 0.00 | 0.00 | 0.00 | 1.00 | $105,000 | $0 |
Roll Value History
| 2026 | N/A | N/A | N/A | N/A | N/A |
| 2025 | $156,872 | $105,000 | $0 | $261,872 | $261,872 |
| 2024 | $157,619 | $105,000 | $0 | $262,619 | $262,619 |
| 2023 | $150,766 | $95,000 | $0 | $245,766 | $245,766 |
| 2022 | $93,668 | $90,000 | $0 | $183,668 | $183,668 |
Deed and Sales History
| 1 | 06/22/2023 | SWD | Statutory Warranty Deed | PAUL E KELLER | KOBEN M TEMRES | | | $268,000.00 | 141129 | |
| 2 | 06/06/2002 | SWD | Statutory Warranty Deed | RICHARD AUMOCK | KELLER, PAUL E/KARIN L | 0 | 0 | $85,000.00 | 94823 | 0 |
| 3 | 10/08/1993 | MH | Mobile Home | AUMOCK, THOMAS I/TRACI A | AUMOCK, RICHARD J | 0 | 0 | $0.00 | 72342 | 0 |
| 4 | 06/14/1993 | QCD | Quit Claim Deed | AUMOCK, THOMAS L/TRACI A | AUMOCK, RICHARD J | 0 | 0 | $0.00 | 71485 | 0 |
Payout Agreement
| No payout information available.. |